2024-06-29 공사중 현장 견학 - 인천 영종도 무심재

오픈하우스 소식

2024-06-29 공사중 현장 견학 - 인천 영종도 무심재

6 오대석 11 2,028 2024.07.02 16:47

안녕하십니까

 

정온건축사사무소 오대석입니다.

 

 

시공사인 제이종합건설과 건축주께서 허락해 주셔서 

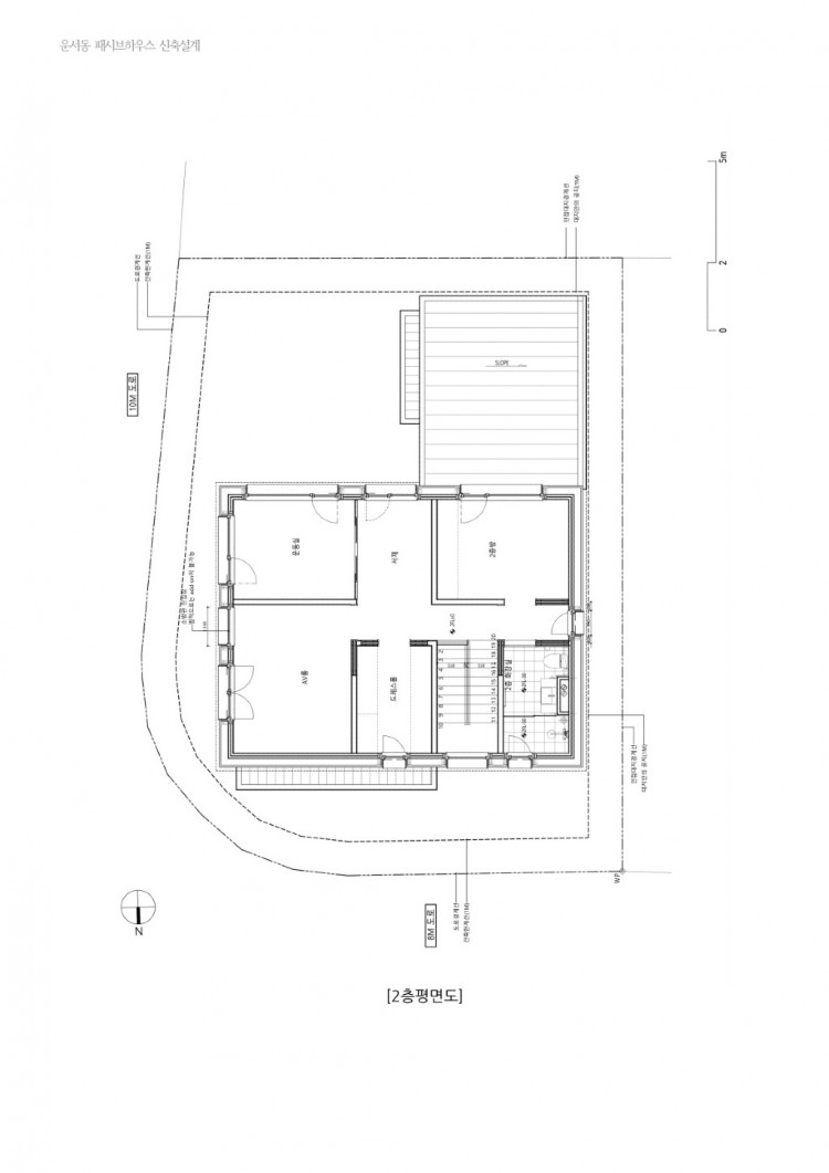
인천 영종도에 공사 진행중인 패시브하우스 인증주택 현장을 공개하는 행사를 진행하고자 합니다.

 

스틸하우스 + 이지블럭 외단열 + 잡자재복사냉난방 + 태양광9kWp

탄소발생량 제로에 도전하는 주택입니다.

 

완공된 이후에는 보지 못하는 창호 주변의 기밀작업, 스틸하우스에 적용한 이지블럭의 외단열시스템 등 패시브하우스의 속살을 볼 수 있는 흔치 않은 기회가 될 것 같습니다. ^^;

 

일시 : 2024/06/29 오전10시~오후1시

        (2시부터 현장에서 별도의 일정이 있어 이후 방문은 어렵습니다.) 
장소 : (삭제)
        (영종도 / 견학일 이후에는 지번 주소는 삭제하도록 할 예정입니다.)

 

10시30분 / 11시30분에 간단하게 10분정도 설명을 하는 시간이 있을 예정이며

나머지 시간은 편하게 오셔서 자유롭게 관람하시면서 

설계사/시공사/이지블럭 담당자들이 문의 주시면 친절하게 상담해 드리겠습니다.

 

[부탁드리는 사항]
별도의 주차장이 없습니다. 인근 주민들의 출입및 주차에 불편이 없는 근처에 주차후 방문 부탁드립니다.

https://blog.naver.com/fulnbi/223486732345

그리고 블러그에 공사 진행사항을 올리고 있습니다. 

방문이 힘든 분들께서는 블러그에 댓글이나 문의사항 올려주시면 안내드리겠습니다. 

감사합니다.

 

 

인천시 운서동 패시브주택 오픈하우스 [24.06.29]_2.jpg

 

인천시 운서동 패시브주택 오픈하우스 [24.06.29]_7.jpg

 

인천시 운서동 패시브주택 오픈하우스 [24.06.29]_3.jpg

 

인천시 운서동 패시브주택 오픈하우스 [24.06.29]_4.jpg

 

인천시 운서동 패시브주택 오픈하우스 [24.06.29]_5.jpg

 

인천시 운서동 패시브주택 오픈하우스 [24.06.29]_6.jpg

인천시 운서동 패시브주택 오픈하우스 [24.06.29]_9.jpg

 

인천시 운서동 패시브주택 오픈하우스 [24.06.29]_10.jpg

 

인천시 운서동 패시브주택 오픈하우스 [24.06.29]_8.jpg

인천시 운서동 패시브주택 오픈하우스 [24.06.29]_11.jpg

 

인천시 운서동 패시브주택 오픈하우스 [24.06.29]_12.jpg

 

인천시 운서동 패시브주택 오픈하우스 [24.06.29]_13.jpg

인천시 운서동 패시브주택 오픈하우스 [24.06.29]_15.jpg

 

인천시 운서동 패시브주택 오픈하우스 [24.06.29]_19.jpg

 

인천시 운서동 패시브주택 오픈하우스 [24.06.29]_20.jpg

 

인천시 운서동 패시브주택 오픈하우스 [24.06.29]_21.jpg

 

인천시 운서동 패시브주택 오픈하우스 [24.06.29]_22.jpg

 

인천시 운서동 패시브주택 오픈하우스 [24.06.29]_23.jpg

 

인천시 운서동 패시브주택 오픈하우스 [24.06.29]_25.jpg

 

인천시 운서동 패시브주택 오픈하우스 [24.06.29]_24.jpg

인천시 운서동 패시브주택 오픈하우스 [24.06.29]_28.jpg

 

인천시 운서동 패시브주택 오픈하우스 [24.06.29]_27.jpg

 

인천시 운서동 패시브주택 오픈하우스 [24.06.29]_26.jpg

 

인천시 운서동 패시브주택 오픈하우스 [24.06.29]_32.jpg

 

인천시 운서동 패시브주택 오픈하우스 [24.06.29]_29.jpg

 

인천시 운서동 패시브주택 오픈하우스 [24.06.29]_30.jpg

 

인천시 운서동 패시브주택 오픈하우스 [24.06.29]_31.jpg

Comments

10 디엔에이ㅣ신범석 2024.06.21 20:00
좋은 자리를 만들어주셔서, 감사합니다.
G 영호 아빠 2024.06.22 12:48
견학 할 수 있는 좋은 기회를 만들어 주셔서 감사합니다.
혹시 견학 하려면 따로 신청을 해야 할까요?
7 콜루 2024.06.22 14:54
그날 뵙겠습니다. ^^
6 오대석 2024.06.22 20:30
따로 신청은 없습니다 정해진 시간동안 방문해 주시면 됩니다 ^^ 감사합니다
1 라이언하트 2024.06.23 10:20
와우 저도 가겠습니다!
G whamip 2024.06.24 11:06
날로 발전하는 협회 회원사네요. 협업과 도전~ 훌륭합니다.
3 프로클리마 2024.06.24 11:20
수고많으십니다. 시간에 맞추어서 방문하겠습니다 ^^*
2 권희범 2024.06.24 18:20
아 가보고 싶은데 저는 못 갈 것 같습니다.
너무 아쉽네요.
G ltambs 2024.06.26 09:43
그러지 이번 주말 영종도에 갈 일이 있었는데... 좀 일찍 가서 한번 봐야겠네요....
좋은 기회 만들어 주셔서 감사합니다.
1 라이언하트 2024.06.28 21:05
사정이 생겨 못가게 되었네요. 완공 후 기회가 있길 소망하며 내일 좋은 시간 되시길 바랍니다.
G msshin46 2024.07.01 08:39
잘 보고 왔습니다.
친절한 설명과 깔끔한 현장, 체계적인 느낌이 들었습니다.
골조 선택의 폭이 넓어 졌습니다.
감사합니다.
Category