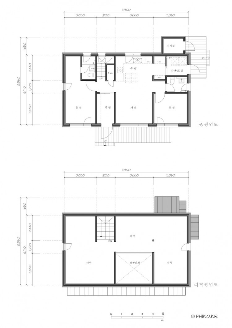
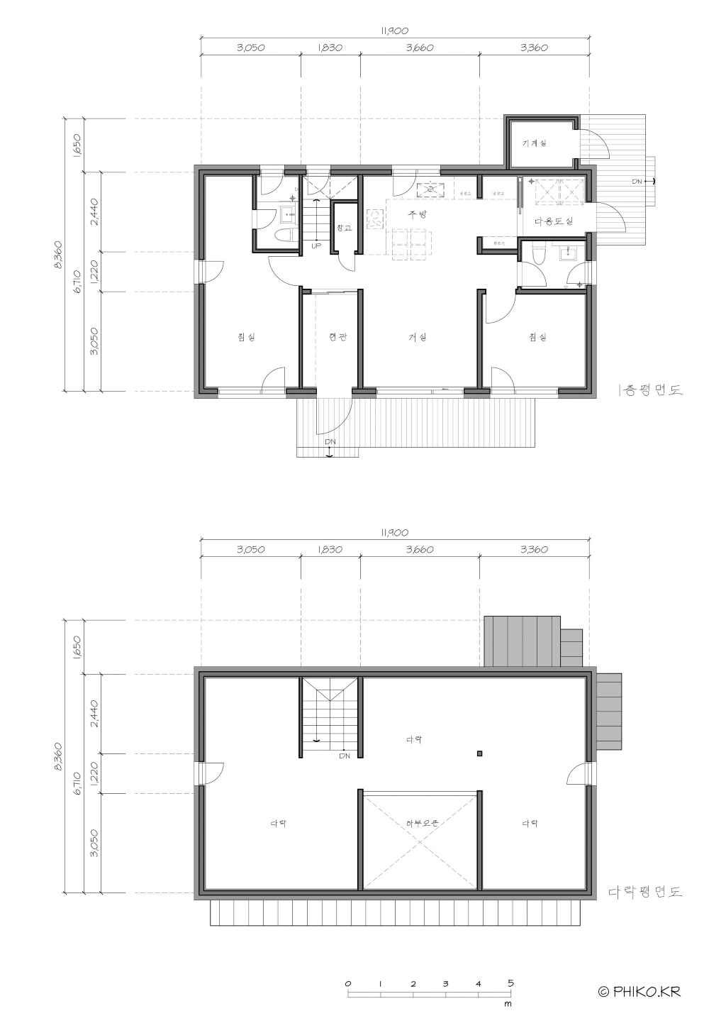
표준주택 V4 (1층+다락) : 25-A-W (85.03㎡)

표준주택

표준주택 V4 (1층+다락) : 25-A-W (85.03㎡)

M 관리자 34 34,893 02.21 16:33

 

1. 설계개요

마감재 및 외벽구성 

계약금액에 포함된 것과 제외된 사항 

아래 링크에서 확인하시기 바랍니다.

 http://www.phiko.kr/bbs/board.php?bo_table=z11_01&wr_id=1

 

2. 2025년 계약금액

정기적으로 매년 2번의 계약금액 검토 후 업데이트하고 있습니다.    

1월 고시된 금액에 오류가 있어서 2월 21일 날짜로 정정하게 되었습니다. 


3. RC로 변경할 경우

- 5% 금액 상승이 있습니다. (311,100,000+VAT 10%)

- 다락없는 평지붕으로 변경됩니다. 

- 디자인은 추후 공개될 예정입니다. 

 


 

  

25-A-W 타입 

계약금액 : 296,300,000원 (VAT 별도:10%) 

 

건축면적 : 25.72평 

연면적 : 25.72평

 

 

25-A-O.P1.jpg

 

 


 

 

25-A-O.P2.jpg

  

 

 

 * 아래 투시도는 예시이며, 외장재의 재료는 건축주가 선택가능합니다. 

0f6519784b3e49d5e2c87e988de8cd2b_1596426146_4678.jpg
0f6519784b3e49d5e2c87e988de8cd2b_1596426155_3996.jpg
 

Comments

G 월헌 2019.05.13 15:18
이 모델에 관심을 많이 가지고 있는데
가격은 언제 정해지며, 이모델로 언제쯤 첫하우스가 나오게 되나요?
M 관리자 2019.05.14 13:22
저희가 전체 모델의 가격을 다 확정하고 공개키로 하였으나, 지금까지의 진척상황으로 볼 때, 너무 오랜 시간이 소모된다는 것을 확인하였습니다.
30평 부터 시작해서 순차적으로 가격을 공개키로 방향을 전환하였습니다.
이번 주 말에 첫 모델의 가격을 공개할 예정입니다.

공사는 건축주가 나타나야 하는 것이므로, 그 시점을 저희가 예측키는 어렵습니다.
G 이재성 2020.06.15 10:01
다락전체형의 경우 문, 창호의 사이즈, 그리고 층고는 대략 얼마나 되는지요?
M 관리자 2020.06.15 10:08
이재성님..
아래 도면을 달라고 하셨던 그 학생분과 동일인이신지요?
G 이재성 2020.06.15 10:15
네 맞습니다. 글을 지웠어야 하는데 먼저 확인하셨네요.. 귀찮게 해드려 죄송합니다ㅠㅠ
M 관리자 2020.06.15 11:06
귀찮지 않으며, 답변은 앞선 글에 연속된 글로 드렸습니다.
G 손현주 2020.08.20 13:42
패시브하우스에 관심은 많아서 열심히 보고 있습니다
24평대로 c형 방3개 생각하고있는데
건축주가 나타나야 평면도가 나올까요?
M 관리자 2020.08.20 13:56
안방이 2개의 방으로 나뉘는 정도의 변화이니, 건축주가 나타나지 않아도 예측가능한 형태일 것 같습니다.
G 박철희 2020.09.29 11:13
24A-2 주택에 사용되는 자재는 무엇인가요? 지붕재(징크? 기와? 슁글) 외장재(시멘트 사이딩? 스타코? 세라믹사이딩?) 기타등등
M 관리자 2020.09.29 11:15
모든 표준주택이 같습니다.
준공 사진을 보시는 것이 더 나으실 텐데요.. 지붕은 칼라강판, 외장재는 조적 또는 타일벽돌입니다.
G 한엄지 2020.10.08 17:29
처마랑 데크 폭 알고 싶습니다
M 관리자 2020.10.08 17:36
전면 처마와 데크 모두 1미터 입니다.
G 오사라 2021.01.23 21:45
다락을 할 경우 화장실이 1개 밖에 안나오는게 맞는건가요  계단실 밑에 화장실이 들어가게 할수는 없는지요?
M 관리자 2021.01.23 22:55
좁긴 하지만 할 수 있습니다. ^^
G 오사라 2021.01.23 23:08
감사합니다. 해결되었습니다.  아  내일  가족들 설득하러 가야하는데  정말 감사합니다.  이제 이 도면만 출력해서 가면 되겠네요.  나랑 똑같이 고집불통 가족들을 설득할수 있을지 의심스럽지만 한껏 자신감이 생겼습니다. 화장실 2개 다락 ^------------^
M 관리자 2021.01.23 23:10
^------------^ 감사합니다.~~
G 김용희 2021.04.28 14:47
안녕하세요?
비전문가들의 비전문적인 문의에 짜증이 날 법도 한데 친절하게 대응해주셔서 감사합니다.

1. 금액포함 내역에 기초에 대한 부분이 안보이던데 당연히 포함되는거죠?
2. 콘크리트가 제 강도가 나오려면 한 달 정도 양생기간이 필요한데 그 후에 골조작업을 합니까?
3. 협회장님 글에 국산 열회수환기장치가 아직은 문제가 있는 것으로 표현하셨는데 국산모델을 선정하는 기준입니까?
4. 건축인허가와 관련된 이른바 허가방 계약은 건축주가 지역건축사무소와 따로 하나요? 아니면 회원사에서 일괄로 처리해 주나요?
M 관리자 2021.04.28 15:00
안녕하세요..
1. 네 포함입니다.
2. 설계강도가 필요한 것은 설계 하중이 모두 걸렸을 때 이므로, 목구조를 위한 하중을 받을 정도는 설계강도까지 발현되지 않아도 무방합니다. 그러므로 한달까지 가지는 않습니다.
3. 아닙니다. 외산 환기장치가 들어 갑니다.
4. 따로 하셔도 되고, 함께 하셔도 됩니다만, 지역도 살아야 하므로, 가급적 지역에서 별도로 처리되기를 희망하고 있습니다.
G 김용희 2021.04.30 09:10
안녕하세요? 추가질문입니다..
1. 표준주택은 이미 설계가 완료된 것이므로 계약금액에 상세설계비가 포함되었고 허가방 비용은 따로 지불해야 하는것으로 이해하고 있습니다. 맞는지요?
2. 회원사 중에 시공을 프리패브로 하는 회사가 있습니까? 있다면 공사비가 상당히 낮아질 것 같은데요
3. 계약 시 상세 공사비용이 제시됩니까? 예를 들면 안방 창호 자재비, 자재상세사양, 시공비 등등....
4. 직영공사에 사용하기 위해 상세 설계도면을 얻을 수 있습니까? 있다면 비용은 어느정도입니까?
M 관리자 2021.04.30 11:11
1. 맞습니다.
2. 없습니다. 프리패브는 규모의 경제를 따라가기에, 년간 물량이 일정 수준을 넘지 않는다면, 가격은 더 높다고 보실 수 있습니다.
3. 그렇지 않습니다. 전체 금액만 제시됩니다. 시공사마다의 개별 편차가 있을 수 있는데, 그 것을 매번 다시 계산할 수는 없기 때문입니다. 물론 제품의 사양은 제시됩니다.
4. 년말에 모든 상세도면을 공개할 예정입니다. 그 전까지는 비용과 상관없이 받으실 수 없으세요.
G 김용희 2021.04.30 13:17
친절한 답변 감사드립니다. 꾸벅~~
G 나경준 2021.05.11 08:44
다락 오픈형 24A-2-O에 좁긴하지만 계단실 밑에 화장실 추가가 가능하다고 답변 하셨는데, 수고스러우시겠지만 도면을 올려 주시면 정말 좋을것 같습니다. 이경우에 안방 드레스룸을 조금 줄이더라도 화장실 출입구를 안방으로 변경하는것도 가능하겠지요? 편하실때 답신 주시면 감사하겠습니다.
M 관리자 2021.05.11 09:21
30A타입이 24A타입과 유사합니다.
30A 유형 중 문의주신 타입이 있어서 참고하시면 될 것 같습니다.
http://www.phiko.kr/bbs/board.php?bo_table=z11_01&wr_id=267
G 정상현 2021.11.26 10:47
1. 다락의 경우 실내기준 최고 층고와 처저 층고는 어찌 되는지요?
2. 자연채광이 부족할 것 같은데 뻐꾸기창(도머)도 가능 할까요?
2-1. 가능하다면 최고 층고가 낮아 질까요?
M 관리자 2021.11.26 11:14
1. 타입마다 차이가 있습니다만, 대략적으로 다락천장고는 최저 450mm 최고 1800mm이라고 보시면 됩니다.
2. 표준주택은 뻐꾸기창을 도입하지 않고 있습니다.
G 배성환 01.16 14:54
1층 25평 + 다락까지 해서 표시된 금액인 걸까요?
 25-A-O 타입 보면 1층 25평 + 다락 21평정도 되어보이는데 총 46평정도로 생각되는데 그게 아래 계약금액으로 가능한가해서 문의 드립니다. 평당.. 650만원이라고 봐도 되는건지 궁금합니다.
계약금액 : 291,800,000원 (VAT 별도:10%)
건축면적 : 25.72평
연면적 : 25.72평
G 썬칩 06.17 15:17
1. 스틸 패시브하우스로 진행할 수 있나요? 경량 목구조 대비 단가 상승은 얼마나 될까요?
2. 로봇청소기를 운용하기 위한 거실/입구 수전 설치가 가능할까요? (오/폐수 버리기 등)
3. 현관을 좌측 끝으로 이동할 수 있나요? 추가 비용은요?
M 관리자 06.17 15:28
1. 가능하며, 5% 정도 상승됩니다.
2. 가능합니다.
3. 어떤 의미인지 제대로 이해를 하지 못했습니다. 평면의 변경은 구체적인 상담시에 가능 여부가 정해지게 되며, 공사비도 그 이후에 제시를 할 수 있습니다.
G 오영호 07.23 12:00
본 표준 주택으로 시공하고자 하는데 다음 사항 문의 드립니다.
1.  RC로 할 경우 평지붕으로만 가능한지요? 박공지붕은 안되는지. 제가 이전에 전원주택 거주할 때 평지붕이었는데 주누수도 되고 정기적으로 방수 공사가 필요해서 박공지붕으로 하였으면 합니다.
2. 표준주택에 썬룸을 추가로 설계 반영할 수 있는지요? 가능하다면 상담 시 비용도 같이 문의 드릴려고 합니다.
M 관리자 07.23 13:11
1. 가능합니다. 다만 지붕은 목구조여야 합니다.
2. 가능하나, 비용은 계약한 시공사에게 따로 받으셔야 합니다.
G 김혜결 07.31 08:26
이 모델로 복사냉방 설치시 추가비용은 얼마입니까?
다락은 설치가 안된다면 어느 정도의 영향이 있고 어떤 조치가 필요합니까?
M 관리자 07.31 09:26
추가 비용이 40평형과 같기 때문에 이 면적에 복사냉방 설치는 가성비가 낮은데요. 대략 2000만원 안쪽 입니다.
다락도 제습된 공기 공급은 되기에 큰 불편함은 없지만, 생활공간으로 하신다면 작은 벽걸이 에어컨을 설치하거나 해야 할 것 같습니다.
G 김혜경 07.31 15:03
추후에 적은 평수에 맞는 복사냉방이 가능할 경우 추후 설치는 가능합니까?
M 관리자 07.31 15:31
나중에 설치하는 것은 당연히 가능합니다만.. 가격은 한계가 있습니다.
지금 보다 용량이 줄어 든다고 해서 가격이 낮아 질 수 있는 구성이 아니라서요. 부품의 종류와 갯수는 동일하거든요..
Category