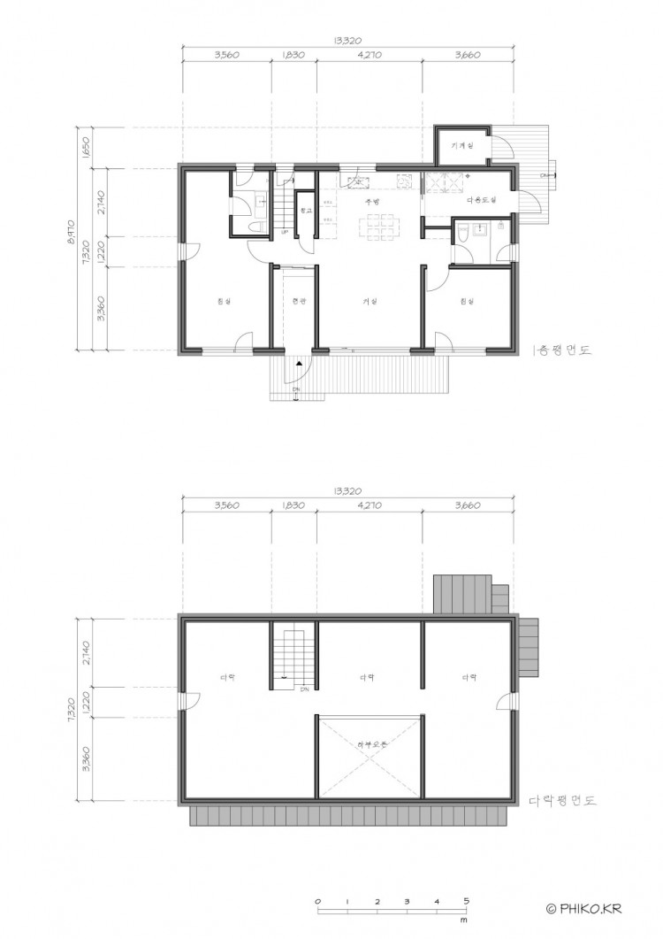
표준주택 V4 (1층+다락) : 30-A-W (102.88㎡)

표준주택

표준주택 V4 (1층+다락) : 30-A-W (102.88㎡)

M 관리자 44 35,552 02.21 16:34

 

1. 설계개요

마감재 및 외벽구성 

계약금액에 포함된 것과 제외된 사항 

아래 링크에서 확인하시기 바랍니다.

 http://www.phiko.kr/bbs/board.php?bo_table=z11_01&wr_id=1

 

2. 2025년 계약금액

정기적으로 매년 2번의 계약금액 검토 후 업데이트하고 있습니다.  

1월 고시된 금액에 오류가 있어서 2월 21일 날짜로 정정하게 되었습니다. 

  

3. RC로 변경할 경우

- 5% 금액 상승이 있습니다. (351,900,000+VAT 10%)

다락없는 평지붕으로 변경됩니다. 

- 디자인은 추후 공개할 예정입니다. 

 


   

30-A-W 타입 

계약금액 : 335,200,000원 (VAT 별도:10%) 

 

건축면적 : 31.12평 

연면적 : 31.12평

 

30-A-O.P1.jpg

 


 

30-A-O.P2.jpg

 

  

 


 

0f6519784b3e49d5e2c87e988de8cd2b_1596421545_0993.jpg

0f6519784b3e49d5e2c87e988de8cd2b_1596421839_5403.jpg
 

 

*완공사진

 

thumb-20230202102709_95d04ea77848a2a8b60ca7be17518a54_clv3_750x563.jpg


thumb-20230202102753_95d04ea77848a2a8b60ca7be17518a54_0d0c_750x563.jpg

 

thumb-20230202102759_95d04ea77848a2a8b60ca7be17518a54_xpyl_750x1000.jpg

 

thumb-20230202102826_95d04ea77848a2a8b60ca7be17518a54_r3q0_750x1000.jpg


thumb-20230202102816_95d04ea77848a2a8b60ca7be17518a54_9kte_750x1000.jpg

 

thumb-20230202102826_95d04ea77848a2a8b60ca7be17518a54_r3q0_750x1000.jpg

 

thumb-20230202102909_95d04ea77848a2a8b60ca7be17518a54_0tvr_750x1000.jpg

 

Comments

G 이원조 2019.08.31 15:47
계약금액에서 따로 부가세가 있나요?
M 관리자 2019.08.31 16:34
포함되어 있습니다.
G 소상훈 2020.08.24 13:08
단층형에서 방3개로도 가능한가요?
M 관리자 2020.08.24 13:37
네.. 외부 치수가 변경되지 않는 다면, 그 정도의 범위는 수용가능할 것 같습니다.
다락 유무와 이메일 주소를 비밀글로 올려 주시면, 방3개의 스케치 파일을 보내드리겠습니다.
G 배경조 2020.10.07 22:10
다락이 있는 경우에 안방 화장실이 없어지는 것인지, 아니면 계단 밑에 어떻게 구성되어 있는지 궁금합니다.
M 관리자 2020.10.07 23:03
없어지는 것입니다. 계단 밑은 창고로 사용됩니다.
G 최선녀 2020.10.08 15:22
다락이 있는 경우 안방 화장실이 없어진다고 하셨는데, 그럼 화장실은 1개가 된다는 것인가요?
화장실을 2개로 할 수도 있는지요?
M 관리자 2020.10.08 15:31
네. 드레스룸의 절반을 화장실로 만들 수는 있습니다.
G 한엄지 2020.10.10 16:26
자동방지등록 시간 초과라고 떴는데 덧글 안 지워졌어요. 운이 좋은 게 아니라면 고쳐주신 건가요? 감사합니다 ㅜㅜ
G 한엄지 2020.10.10 16:40
1. 표준주택에 나와 있는 전기 배선(내부, 외부), 콘센트(위치 높이 조절),  조명 배선에 추가나 제거가 가능한지 궁금합니다. 된다면 계약 후 시공사랑 추후 논의 하면되는 건가요?  불가능하다면 어디에 설치되는 지 도면을 볼 수 있나요?
2. 집이 동동남인데, 창의 크기가 거기에 따라 달라져야하나요?
3. 그림의 창을 없앨 수 있나요?(장을 안방에 높고 드레스룸을 알파룸으로 사용할 생각이라서요.)
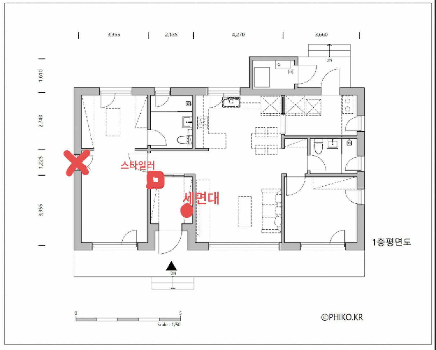
현관에 깊이 60cm 가량의 스타일러를 넣고 싶은데, 공간의 여유가 있나요?
현관에 세면대 넣고 싶습니다. 가능한가요?
지금 말한 것을 적용할 때  설계 추가금이 필요한 사항인가요?
4.  칼라강판, 타일벽돌 으로 되어 있던데 더 저렴한 자재로 바꾸면, 견적 정산될때 차감되나요?
 허용가능한 소재가 정해져 있나요?
5. 24평과 같이 처마길이 1m 인가요?
6. 층고가 궁금합니다.
7. 작은방에 원하면 추가금 내고 시스템 도어 설치 가능한가요? (소음민감형 인간)
6 gklee 2020.10.10 17:43
지나가다.. 현관의 세면대는 용도가 뭔가요?
G 한엄지 2020.10.10 17:54
1. 외출 후 집으로 들어왔을 때, 손 닦고 들어 오고 싶어서요.(요즘엔 코로나 때문에 더더욱)
2. 마당냥이 만지고 손 닦기 위해서요.
G 나디아 2020.10.10 18:42
머드룸이라고 불리는 장소도 있어요. 외국에선 머드룸이라 해서, 장화나 흙 묻은 옷을 두기도 하고, 수도등을 설비하여 손을 씻을 뿐만 아니라 흙 묻은 장화등을 씻기도 하는 장소로 쓴다고 합니다.
저희도 하고 싶었어요. 옆지기는 머드룸이 안되면 현관에 세면대 설치하자 했죠. 그것도 힘들어... 중문을 없애고 화장실로 직행할 수 있는 구조로 만들었지만요. 세면대 있으면 참 편리합니다.
6 gklee 2020.10.10 19:04
아.. 좋은 아이디어네요.
G 한엄지 2020.10.10 19:12
머드룸 좋죠... 패시브(급) 하우스 생각 안 했다면 머드룸도 만들고 팬트리도 만들고 그랬을 것 같은데 자금의 압박으로 ^^  지금도 패시브표준주택을 짓느냐 나디아님처럼 준패시브급? 집을 짓느냐 계속 고민 중입니다 ㅠㅠ  갈대와 같은 마음에 검색만 주구장창하네요.
G 나디아 2020.10.10 20:30
한엄지/
아... 윗 댓글은 gklee님께 쓴 댓글이었어요;;
저희 집 짓고 어머님께서도 잠시 '집 지을까?' 하셨더랍니다. 그 때 저는 단호하게 "표준주택"으로 답했더랍니다^^;;;
G 한엄지 2020.10.10 20:51
표준주택이 가성비 최고의 패시브주택이라는 건 이제 저도 알게 되긴 했는데, 고치면 안 된다는 게 많아서 처음  단독주택 짓는 입장으로는  아쉬움이 남는 게 많은 것 같아요. (  전 마당냥이 때문에 나름대로 포치 고려해서 설계했었거든요.  고양이 집 놓을 비 들이치지 않는 곳은 어떻게 마련해야나 이런 고민이요...) 뭐 또 준패시브 짓는다면, 아... 표준주택 지을 걸 이럴지도 모르겠지만요ㅋㅋ... 근데 공부하면 할수록 비전문가가 제대로 된 시공사와 공법을 고르는 게 어렵다는 걸 깨닫고 다시 표준주택 도면 보고 있습니다ㅠㅠ
M 관리자 2020.10.10 21:25
창문 삭제 등은 충분히 가능합니다.
시공사와 협의 중에 변경을 하시면 되고, 금액은 정산을 하게 됩니다.
정산금액을 납득하기 어려우면 협회에 중재 요청을 하시면 됩니다만, 그럴 확율은 낮으실 꺼여요.

-----------------------
1. 표준주택에 나와 있는 전기 배선(내부, 외부), 콘센트(위치 높이 조절),  조명 배선에 추가나 제거가 가능한지 궁금합니다. 된다면 계약 후 시공사랑 추후 논의 하면되는 건가요?  불가능하다면 어디에 설치되는 지 도면을 볼 수 있나요?
▶ 가능합니다.

2. 집이 동동남인데, 창의 크기가 거기에 따라 달라져야하나요?
▶ 꼭 그렇지는 않습니다만, 변해도 미비할 것 같습니다.

3. 그림의 창을 없앨 수 있나요?(장을 안방에 높고 드레스룸을 알파룸으로 사용할 생각이라서요.)
현관에 깊이 60cm 가량의 스타일러를 넣고 싶은데, 공간의 여유가 있나요?
현관에 세면대 넣고 싶습니다. 가능한가요?
▶ 네 가능합니다. 다만 맞통풍을 고려한 창문이라서요. 없애면 그만큼의 손실이 있음을 감안하셔야 합니다.

지금 말한 것을 적용할 때  설계 추가금이 필요한 사항인가요?
▶ 네, 변경된 도면을 그려야 하니까요. 비용이 추가될 것 입니다.

4.  칼라강판, 타일벽돌 으로 되어 있던데 더 저렴한 자재로 바꾸면, 견적 정산될때 차감되나요?
 허용가능한 소재가 정해져 있나요?
▶ 네 차감됩니다. 저희가 올 초에, 아스팔트슁글과 외부 시멘트사이딩으로 변경된 것을 아예 가격 공지를 하려고도 했었습니다. 밀린 일이 너무 많아서 개별 계약에 따른 시공사와 협의할 사항으로 남겨 두었습니다.

5. 24평과 같이 처마길이 1m 인가요?
▶ 네 처마길이는 모두 같습니다. 법적으로 면적에 포함되지 않는 최대 길이로 계획되었습니다.

6. 층고가 궁금합니다.
▶ 지금 정확히 기억이 나지 않습니다만.. 천장고는 2550 정도되는 것으로 기억됩니다.

7. 작은방에 원하면 추가금 내고 시스템 도어 설치 가능한가요? (소음민감형 인간)
▶ 네 그렇습니다.

---------------------------
성능과 무관한 외부 돌출물은 더 만드셔도 되어요.
이 역시 변경비가 추가되겠지만, 변경 금액도 정액이라서, 한꺼번에 하는 것이 좋습니다.
법적 면적과 관련된 것은 도면이 나간 다음에 시공사와 협의로 변경을 할 수는 없으니까요.
변경 금액이 정액인 것은... 반대로 변경 가능한 범위에 한계가 있다는 의미도 되지만, 외부 도출물(포치) 등은 적법한 범위 내에서 공사비 정산만 하시면 됩니다.
G 한엄지 2020.10.10 21:49
변경비 정액가가 얼만지요. 그리고 어떤 거 바꾸는 것부터 변경비가 적용 되는 건가요? 창문삭제도 세면대도 둘다  각각 변경 사항인가요?
법적 면적과 관련된 포치와 창문은 도면에서 바꿔야 하는 거고 전기 콘센트 조명은 나중에 현장에서 변경할 여지가 있는 건가요?
M 관리자 2020.10.10 22:36
휴일이라 정확한 금액은 월요일에 알 수 있지만.. 약 300만원 입니다.
창문삭제, 세면대 모두 변경사항입니다.

전기 콘센트 위치는 현장 협의사항이라기 보다는 착공 전 협의 사항입니다.
G 한엄지 2020.10.10 22:45
답변 감사합니다!
1 라일락 2020.10.19 11:07
30A-2평형 표준모델로 건축 상담을 받고 싶습니다.
M 관리자 2020.10.19 19:33
화면 맨 아래에 협회 전화번호가 있습니다.
전화 하셔서 표준주택 상담 신청을 하고 싶다고 하시면 됩니다.
G 지나가는이 2021.04.10 22:51
현 가격으로 계약 가능할까요?
인상된 가격은 언제나오나요?
부가세 포함 가격 맞지요?
(콘크리트 시범사업에는 부가세 비포함이라 댓글 달려있어서요)

바닥의 높이를 지면에서 50 ~ 1미터 높게 가능 할까요?

 15.2미터 대지에 가로 부분 13미터좀 넘는 것으로 보이는데 가능 할까요?
M 관리자 2021.04.11 09:58
현 가격으로 계약은 안되며, 인상된 가격은 15일 후에 공개될 예정입니다.
부가세 별도입니다.
기초의 높이는 가능하며, 그 만큼의 추가 비용이 발생합니다.
대지 길이는 형태를 봐야 겠지만, 치수 상으로는 가능합니다.
G 이경민 2021.05.14 14:45
너무합니다ㅠㅠ
10% 이상 인상되었네요.
예산 초과.
실망....좌절....
M 관리자 2021.05.14 20:39
네.. ㅠㅠ 어째요. ㅠㅠ
G 명석 2022.07.27 11:36
처마를 길게 뽑아 포치 형식으로 할 수 있나요? 가능할 경우 외부 블라인드 안하는게 나을까요?
M 관리자 2022.07.27 13:37
건축면적이 법적 허용 안에 있다면 가능합니다.
포치 부분의 외부블라인드는 제외할 수 있지만, 그게 낫다고는 보기 어렵습니다.
G 코로나와19 2023.11.13 07:48
골조가 목조인가요? 골조를 변경하게 되면 설계도 역시 달라지겠죠?
M 관리자 2023.11.15 00:51
목조 맞습니다.
골조 방식이 변해도 세밀한 치수 차이는 있겠지만, 근본적인 공간의 변화는 전혀 없다고 보셔도 무방합니다.
G 다락 2024.01.09 17:58
2024년 계약금액 변동있나요?
M 관리자 2024.01.09 20:23
지금 정산 중에 있습니다. 2주 후에 발표될 예정입니다.
G 3 2024.01.09 22:47
작년 기준 가격이 상승할까요 아니면 하락하나요?
M 관리자 2024.01.09 22:49
다소 올라갈 예정입니다.
G 2030년 건축주 2024.12.04 20:03
30-A 다락없는 철근콘크리트 집을 짓게되면 24년 기준 가격이 어떻게 될가요?
M 관리자 2024.12.04 20:16
같은 모델의 목조주택 가격에서 +5% 정도입니다.
G happyandy 01.07 15:24
잡자재 복사냉난방을 설치할 경우 기계실 내경이 1800 X 1800이라 들었는데,
표준주택 도면도 그에 맞춰 수정하게 되나요?
G 좋은집 05.10 01:21
대지형상 때문에 그런데 기계실을 건물 옆면으로 옮길수도 있나요. 다용도실 문쪽으로요. 다용도실 문을 없애고 그쪽에 기계실을 놓고 다용도실은 뒷쪽으로 창문을 내는 식으로요. 이것도 설계변경의 범주에 들어가나요?
M 관리자 05.12 15:59
happyandy 님 : 네 맞습니다.
좋은집 님 : 옆면으로 옮길 수 있으며, 창문도 변경가능합니다. 그리고 구조벽체의 이동이 아니기에 설계변경 범주에 들어가지 않습니다.
G NO다락 05.20 07:42
안녕하세요
다락을 없애면 가격이 어떻게 되나요? 그리고 다락 없을 때 층고는 얼마나 낮아질가요?
계단,창고 공간에 세탁기, 건조기 넣을 공간은 나올가요?
M 관리자 05.20 10:05
가. 다락의 제외 금액은 본격적임 상담시에 계산하여 정확히 알려 드릴 수 있습니다만.. 대략 3700만원 하락합니다.
나. 층고는 낮아지지 않습니다.
다. 세탁기와 건조기는 들어갈 수 있습니다.
G 부엉이 05.22 21:01
위에 표시된 건축면적, 연면적이 아파트로 봤을 때 전용면적인가요?
M 관리자 05.22 23:42
거의 그렇다고 보셔도 무방합니다.
Category