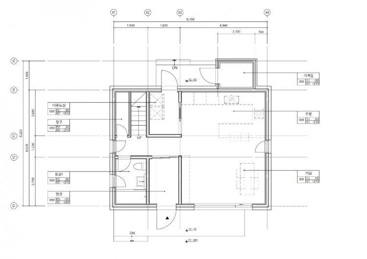
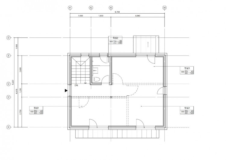
표준주택 V4 (2층) : 36D-A-S (120.47㎡)

표준주택

표준주택 V4 (2층) : 36D-A-S (120.47㎡)

M 관리자 36 27,688 02.21 16:36

 

1. 설계개요

마감재 및 외벽구성 

계약금액에 포함된 것과 제외된 사항 

아래 링크에서 확인하시기 바랍니다.

 http://www.phiko.kr/bbs/board.php?bo_table=z11_01&wr_id=1

36평의 2층은 내부벽체를 원하시는 곳에 하실 수 있도록 가변형으로 계획했습니다. 

단, 구조적으로 무리가 있으면 안되어서 협회와 협의가 필요합니다.

중간의 기둥은 꼭 필요한 기둥으로 없앨 수 없습니다. 

견적은 점선대로 적용된 상태입니다.

입단면도는 추후 업로드될 예정입니다.

 

2. 2025년 계약금액

정기적으로 매년 2번의 계약금액 검토 후 업데이트하고 있습니다.  

1월 고시된 금액에 오류가 있어서 2월 21일 날짜로 정정하게 되었습니다. 

  

3. RC로 변경할 경우

- 10% 금액 상승이 있습니다. (352,800,000+VAT 10%)

평지붕으로 변경됩니다. 

- 디자인은 추후 공개될 예정입니다. 

 


   

36D-A 타입 (다락없음)

계약금액 : 320,800,000원 (VAT 별도:10%) 

 

건축면적 : 18.81평 

연면적 : 36.44평

 

 

36D1.jpg

 

36D2.jpg

 

Comments

M 관리자 2019.03.02 11:54
이 타입의 공사비는 3월 12일에 게재될 예정입니다.
G 무식장이 2020.03.22 22:47
남향 땅이고, 북쪽에 인접대지경계선이 있을 경우 설비실 끝선 기준으로 1.5미터를 띄어야 하는거죠?ㅠ,.ㅠ
M 관리자 2020.03.23 10:00
네.. 그렇긴 합니다만.. 좌우로 여유가 있을 경우 옆으로 옮기셔도 괜찮습니다.
G 이규헌 2020.05.18 21:03
1.1층에서 올라가는 계단폭이 좁을듯한데 주방쪽을 줄이고 계단폭을 늘릴수 있나요?
2.현재 사용하는 빨래건조기가 가스용이라서 세탁실에서 환기구가 있어야 하는데 문제없나요?
3.창고용 건축물을 패시브가 아닌 일반으로
4×6사이즈로 건축할 경우 가설물인지?부속건물인지 궁금합니다.
가설물로도 건축이 가능한지요?
공사비용도 궁금하네요..
4.세종지역 경량목구조 공사업체가 궁금합니다.
5.공사계약 하려면 협회로 연락하나요?
6.전면 거실쪽과 방쪽 차양설치가 가능할까요?
7.2층 욕실을 미니주방으로 변경 가능한지요?
질문이 많았습니다.
답변 미리 감사드립니다.^^
M 관리자 2020.05.18 21:43
1. 그럴 수는 없습니다. 구조계산 부터 다시 해야 하기에....
2. 넵
3. 부속건물이며, 가설건축물로도 가능은 합니다만, 행정절차를 별도로 진행해야 합니다.
4. 세종엔 없고, 천안에 회원사가 있습니다.
5. 넵
6. 차양은 기본으로 포함됩니다.
7. 네 가능합니다. 금액은 조금 줄겠네요..
감사합니다.
G 이규헌 2020.05.18 22:55
관리자님 답변에 감사드립니다.
추가질문입니다.
위 도면은 경량목구조 박공지붕으로
이해하고 있는데요...
중목,또는 RC로도 변경이 가능한지요?
가능하다면 각각의 견적 증감여부를 알고싶습니다.
M 관리자 2020.05.18 23:04
중목은 아직 안됩니다. 물론 되기는 하겠지만 저희가 구조계산 조차 아직 하지 않았습니다. 그 이외에도 준비할 사항이 많아서요.

RC로는 가능하며, 비용상승은 없습니다. 다소 올라갈 수 있겠지만, 일단 없는 것으로 했습니다. 만약 생기더라도 시즌3에서 수정될 예정입니다.

RC는 현장의 불확실성이 높아서 금액이 올라갈 확율이 높은건데, 일단 시즌2를 보기로 했습니다. 때에 따라서는 이윤을 줄여야 할 수도 있겠지만, 소화해 낼 수 있는 범위라고 보았습니다.
G 김시후 2020.07.17 14:14
충북 청원구 오창전원주택단지에 혹시 건축이 가능한가요? 그리고 표준주택 도면은 앞으로도 계속 올리실 예정이신가요? 선택의 폭을 더 넓히도록 말입니다.
M 관리자 2020.07.17 15:42
네 건축가능하며, 주말 이사회 승인이 남긴 했는데, 소정의 추가금을 받고, 외관의 형태를 유지하는 전제로 실내공간 구성의 선택권을 드릴 예정입니다.
G 조순영 2020.08.19 14:01
혹시 제주도도 건축가능한가요?? 많이 비싸질까요??
자금 문제로 2년 정도 미뤄졌는데... 요즘 이상기후변화를 겪으니, 패시브하우스로 맘이 굳혀지네요~~
미뤄진게 다행이라는 생각이 들정도로...
다양한 표준모델 부탁드려요~~ 응원합니다
M 관리자 2020.08.19 14:59
제주도도 가능합니다. 마친 다음 주에 제주도 표준주택 계약이 있을 예정입니다.
금액은 평형에 따라 다릅니다만, 고시 가격보다 약 20% 증액되었습니다.
감사합니다.~
G 임선정 2020.10.14 14:23
표준주택은 창크기에 수정할순 없는건가요?  너무 덩치 큰 모습인데 문까지 작으니 너무 답답한 느낌이라...
M 관리자 2020.10.14 23:02
ㅎ.. 네 창크기는 원래 아주 컸었는데, 너무 크다고 하셔서 줄였던 거여요..
커질 수록 에너지 성능은 더 좋아지므로, 남향창의 크기에는 한계가 없습니다.
G 제주귀농 2021.03.12 21:14
25년부터 제주도도 시범도가 되어 한창 개발되길 기대합니다.
기다리고 있어요
M 관리자 2021.03.13 12:36
감사합니다.~
1 이제야 2021.07.03 11:01
안녕하세요 21년도 표준주택은 언제쯤 나오나요??
올해말이나 내년초에 집을 지을 계획이라 관심 많습니다..ㅎㅎ
M 관리자 2021.07.03 12:18
소소한 변경을 허용하기에, 21년도에 새로운 모델 공개는 당분간 없을 예정입니다.^^
1 이제야 2021.07.03 13:21
네 답변 감사합니다...제일 마음에 드는 구조에서 작은 변경쪽으로 생각해 봐야겠네요..^^
질문이 있어서요~
요즘 건축비 상승으로 요 타입이 저희 가족의 니즈에 마지노선이 되어서 여러가지 고민이 있습니다.ㅜㅜ
질문입니다.
1. 도면 오른쪽 편 계단과 화장실 위치가 바뀔 수 있을까요~?
2. 주방쪽 북향 창문이 없으면 문제가 있을까요~? 제 생각에는 냄새제거, 환기의 기능이 있을까하는 생각은 있지만. 전열교환기와 후드 만으로도 충분히 가능할거 같은데~ 어떻게 생각하시는지요~?
M 관리자 2022.04.20 09:21
안녕하세요. 표준주택은 일부 평면변경을 열어놓고 있어서 상담 후 논의하시면 됩니다.
질문에 대한 답을 드리면,
1. 이 경우, 계단을 위한 최소치수가 나오지 않아서, 1단의 계단 높이가 과하게 높아지게 되어 추천드리지 않습니다. 이런 경우, 바꾸고자 하는 이유 등을 협의해서 조정안을 내는 방법이 있습니다.
2. 북쪽창호는 있는 것이 좋긴 하나, 실제로 없애고 진행한 표준주택 케이스도 있습니다. 말씀하신 것처럼 전열교환기와 후드가 있어서 기능상으로 문제는 없습니다.
G 정구지 01.15 13:51
1층은 거실 부엌 간단한 화장실, 2층은 샤워시설 갖춘 화장실, 방2 이런 실용적인 2인 부부 아이 1~2명 젊은 부부가 원하는 평면도 기대합니다. 참고 좀 부탁드립니다.
M 관리자 01.17 01:40
네.. 지금 그런 방향으로 제작 중에 있습니다.
G 개코 01.23 17:46
위에 정구지님 말씀에 너무 공감 됩니다!
이 평형대가 너무 맘에 드는데 기존 평면도는 너무 답답한 느낌 이였던 거 같아요,
1층에 큰 거실과 주방이 있었으면 좋겠습니다!!
G 평면도 02.14 21:59
평면도가 누락된듯 합니다
올해 표준주택 라인업 리뉴얼에 맞춰 이 타입의 평면도를 수정하고 있다고 합니다. 위에 관리자님 댓글 참고해주시고 조만간 업데이트 된 평면도가 올라올테니 조금만 더 기다려보세요~
G 정구지 02.19 17:03
매일 한번씩 들어와보는데 아무래도 시간이 걸리겠지요. 고대합니다.
M 관리자 02.19 20:33
이번 주 금요일에 올라 올 예정입니다.
G 정구지 02.21 22:14
설계하느라 수고하셨습니다. 감사합니다.
M 관리자 02.23 15:28
감사합니다.
G 손형진 03.07 17:12
살고있는 곳이 아파트에 미친 사람들로 인해 2년간 소유권이전 및 신축 금지 가처분이 걸려있어 기다리며 매일 들여다보고 있는 예비 건축주입니다.

거실없이 주방 + 방4개로 꾸미고자 하는 딱 원하던 구조가 나와서 글 남깁니다.

다만 창고/보관 공간이 부족할 듯 하여 목구조 다락 추가 건축비가 공개되길 기다립니다.
M 관리자 03.09 00:00
다락 추가 공사비는.. 다락면적의 절반에 평당공사비를 곱하면 대개 맞습니다.
G 손형진 03.11 15:33
답변 감사합니다 관리자님
M 관리자 03.11 15:46
감사합니다.
G 좋은집 05.10 16:03
거실이 필요없는 사람을 위하여 거실에 벽을 치고 방으로 만들 수도 있을까요?
M 관리자 05.12 16:39
그럴 수 있습니다.
Category