지하층시공시 단열재 및 드레인보드 설치 방법에 대해 질문드립니다.

설계/시공관련 질문

질문 전에 먼저 검색을 해주세요.

 

지하층시공시 단열재 및 드레인보드 설치 방법에 대해 질문드립니다.

1 야구사랑 16 16,281 2021.06.09 16:06

이번에 건축을 진행중인 건축주입니다

지하층을 시공하면서

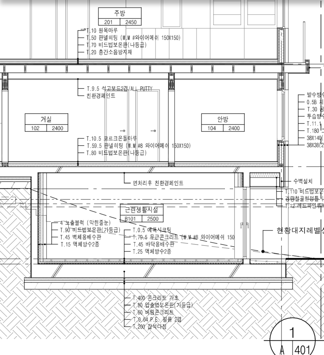
콘크리트면에 외부에 도막방수 칠하고

단연재(90T)로 설치하고

마지막으로 드레인보드 설치예정입니다

 

외부골조와 단열재 벽면설치시 질문입니다

프레타이 외부 노출부분을 전부제거하고

건축용본드로 단열재를 붙이고

다시 건축용본드로 드레인보드 붙이는 순서로 시공한다고 합니다

 

현장방문해보니 골조 상부하부 프레타이를 일부 제거를 안 했길래

여쭈어보니 프레타이 노출부분을 일부남겨놓고

단열재를 벽면과 고정시켜주는 역활로 쓰려고 남겨 놓고

단열재를 붙이는 직업을 실시하고 있었습니다

현장소장님 말씀대로 이렇게 시공해도 단열재성능 및 누수가 발생하지 않는지 궁금합니다

 

금일 현장에 방문을 해보니 드레인보드 설치작업을 진행중에 있었는데

드레인보드도 건축용본드로 붙여놓고 흘러내림으로 인해

못으로 상부와 겹치는 이음새를 고정시켜 놓았는데

이렇게 시공하면 단열재 성능 및 누수에 취약하지 않을지 궁금합니다

Comments

M 관리자 2021.06.09 17:35
안녕하세요..

플랫타이를 단열재 고정용으로 사용할 수는 없습니다. 모두 제거를 하는 것이 맞습니다.
다만 이를 다시 되돌리기는 늦은 것 같습니다.

드레인 보드는 건축용본드로 붙일 수가 없고, 붙일 필요도 없습니다. 그저 되메우기 전까지 임시로 어딘가에 고정을 해두면 되고, 협회의 경우.. 1층 외벽에 못으로 고정을 한 후에. 되메우기를 하고 나서 상부를 잘라 내는 방식을 택합니다.

그리고 이건 마음이 아프시겠지만...
드레인 보드의 방향이 반대로 되어 있습니다. 부직포가 붙은 표면이 단열재 쪽으로 가야 합니다. ㅠ
1 야구사랑 2021.06.14 17:33
답변 감사드립니다!
플랫타이 전부 제거해서 시공해 달라고 다시 한번 부탁드렸습니다.
질문하나 더 드리겠습니다!
드레인보드 구입업체에서도 부직포를 흙방향으로 해야 한다고 하고
현장소장님께서도 부직포가 흙방향쪽 이라고 하시던데
부직포 붙은부분이 단열재 쪽으로
요철부분이 흙쪽으로 설치되었어야 하는건가요?
M 관리자 2021.06.14 21:47
네.. 그 모든 분들이 알고 계신 것이.. 토목의 옹벽 시공시 하는 방향을 알고 계신거여요.

배수판은 물을 빼고자 하는 쪽에 돌기가 있는 것인데요..
옹벽은 흙 속의 물을 빼는 목적이고, 건축은 단열재 속의 물을 빼는 목적이라 그렇습니다.

건축분야에서 저희 협회를 제외하고는 지금 껏 배수판을 사용하지 않아 왔기에 그런 말씀을 하시는 거여요.

부직포가 붙은 롤배수판은 부직포 쪽에 돌기가 있어요.
1 데이빛 2022.03.13 23:21
관리자님, 지하층 피해야하는 이유ep13-2에 보니 드레인보드는 울퉁불퉁한 부분이 단열재 쪽으로 가야 공간을 만들어서 수압을 떨어뜨릴 수 있다고 하셨던 것 같은데요..돌기가 흙쪽으로 향해야 한다는 말은 또 다른 걸까요?
1 데이빛 2022.03.13 23:23
그리고 어떤 분 말로는 지하층 외방수 할 때 0.1미리 비닐을 치면 더 좋다고 하시더라고요..

<지하외벽>
타설시 구체 방수액 - 콘크리트 면처리 - 고뫄스나 아스팔트 프라이머 2회 - 0.1미리 비닐 - 단열재 - 방수시트 - 드레인보드 - 매립


<지하기초 바닥>
버림위 0.1미리 비닐(충분한 크기 - 나중에 벽체로 들어올려 붙이고 벽체 비닐로 덮어줌) - 단열재 - 벽체와 연결부 지수판 - 타설시 구체 방수액

이렇게요.

이건 어떻게 보시는지 궁금합니다.
1 데이빛 2022.03.13 23:25
허가용 도면 평면도인데요,

(1)지하층 기초, 바닥, 벽체 부분을 보면 단열재가 좀 얇은 것도 같은데 괜찮을까요? 그리고 기초 하부 비닐은 0.1미리가 맞겠죠?

(2)혹시 이런 구조에서 열교가 생길 수 있다면 어느
부분일까요?
M 관리자 2022.03.14 16:20
"돌기가 흙쪽으로 향해야 한다는 말"은 정반대의 이야기인데요.
도면을 보니 지하층은 내단열인데요. 도면으로 이해를 하면 되는지요?
G 불꽃남자 2024.01.01 20:01
배수판 제대로 설치된거 같은데요.... 돌기가 콘크리트 면쪽으로 설치되어서 토사의 물이 부직포를 통과해서 들어오면 콘크리트면과 돌기 사이의 틈새로 흘러내려서 잡석층으로 빠져나가 버리게 해서 토압을 감소시키고, 방수기능을 갖추게 하는 것이 드레인 보드의 설치 목적이죠..
만약 토사쪽으로 돌기를 붙인다면, 돌기 사이에 흙이 붙어서 물이 빠져나갈 통로가 없어져서 배수판의 효과가 없어질 것 같습니다.
G 다둥빠 2024.01.03 14:31
궁금해서 몇가지 질문 드립니다.

1. 외벽에 드레인보드 시공시 부직포가 안쪽으로 들어가는 이유가 단열재의 물을 빼는 목적이라고 하셨는데요. 단열재가 수분을 그렇게나 흡수 한다는 말씀인가요??

2. 단열재를 설치하지 않고 부직포 일체형 드레인보드를 설치한다면 그때는 부직포 부분이 흙쪽으로 나와야 하는건가요??

해외 제품들 사용기를 보니 돌기가 흙쪽으로 나오는것은 맞는데 부직포가 일체형으로 되어있는 것들도 돌기 쪽에 부직포가 부착되어 그쪽이 흙쪽으로 나오게끔 시공되어있는것만 보았습니다. 어떻게 시공하는게 정석일까요?
M 관리자 2024.01.03 15:11
1. 단열재가 흡수를 해서가 아니라, 흙 속의 물이 단열재에 직접 닿지 않도록 하는 목적입니다.
2. 단열재를 설치하지 않아도 부직포 일체형 드레인보드는 부직포가 건물쪽으로 향하는 것이 맞습니다. 그럼 결국 부직포일체형 드레인보드를 사용할 이유가 없게 되는데.. 그 것 밖에 없다면 건물쪽으로 향해야 합니다.

흙쪽으로 가는 것은 토목분야 (주로 옹벽에 사용되는 드레인보드)라서 그렇습니다.  부직포가 붙어 있는 것도 토목분야에서 사용되기 위해서 나온 것이고요.
G 다둥빠 2024.01.03 16:22
제가 이번에 시공을 준비 하면서 이곳 저곳 알아보고 하다보니
유럽쪽 사용하는 카다로그나 자료를 보면 건물 외벽에 사용하는것도 부직포 일체형을 쓰는데 거기에서는 부직포가 흙쪽으로 나오게 설치하게끔 되어 있던데요.

흙 되메우기 후에 부직포의 강도가 좋으면 흙에 눌려도 잘 눌리지 않고 필터 역할을 해주어서 물만 통과하게 하여 아래로 흐르면 유공관을 통해서 물이 빠져나가고 당연히 단열재나 외벽에 닿지 않는다고 생각되는데요.

또한 공간을 유지해 주어서 자연스럽게 공기층도 만들어주고 그로 인해서 단열효과까지 기대하고 있는데요...

어렵네요.. 어떻게 보면 이부분이 중요하지 않을 수 있는데 한번 하고 나면 다시 할 수 없기에 이렇게 질문 드립니다.
M 관리자 2024.01.03 18:23
잘못된 카다로그를 보신 거여요.

흙속의 물을 빼려는 목적이 아니고, 배수판의 한쪽은 평평한데.. 그 평평한 쪽이 단열재로 가게 되면, 단열재와 배수판 사이에 들어간 물이 표면장력에 의해 증발하지 못하고 계속 그 속에 머물게 되어요.
그래서 돌기가 단열재 쪽으로 가야 합니다.

그리고 단열효과는 무슨 의미인지 이해를 하지 못했습니다.
G 김현호 2024.05.30 08:20
관리지님의 설명은 드레인보드의 돌기가 벽체를 향해야 한다는 것 이구요 (맞나요?) 위에 야구사랑님댓글에 있는 사진을 확대해 보면 부직포쪽으로 돌기가 나있으므로 부직포가 있는 면이 벽체를 향해야 한다는게 맞는 듯 하네요
M 관리자 2024.05.30 14:23
네 맞습니다.
G 김수환 2024.08.20 10:04
안녕하세요. 본 글을 보고 미연에 실수를 방지 할 수 있게되었습니다. 감사드립니다.
협회의 이런 질답의 글들이 큰 도움이 됩니다.

혹시 기초가 버림바닥까지 외단열 메시미장 상태이고 잡석으로 되메우기 해야하는 상황일때.
(기초구조물 높이 1m)

단열재의 파손방지와 원할한 배수 및 건축물의 건조를 위해 드레인보드를 설치함에.
본 글을 통해 돌기의 방향때문에 건물측에 부직포가 향하게 시공해야함은 알겠는데요.

부직포가 있는 것과 없는 제품, 두 종류로 판매되고 있던데요.
부직포가 있는것 보다 없는게 좋을지, 반대로 부직포가 있는것이 좋을지 궁금합니다.

그리고 추가적으로 드레인보드와 맞닿을 메시미장 표면에 방수처리 하는것이 좋을지 안해도 괜찮을지 의견을 여쭙고 싶습니다.

만일 방수가 필요하다면
보통 토목 방수로 고뫄스를 많이 사용 하시는데.

현장에
A. 욕실에 이용되는 퍼런 아쿠아디펜스 같은 방수제
B. SIGA사의 지붕용 투습방수지
자재가 많이 남아 이를 이용해보고자 검토하는데 이용을 해도 될지. 도움이 될지 잘 모르겠습니다.

관리자님이시라면 위 재고를 어떻게 활용하실지 궁금합니다.
M 관리자 2024.08.20 20:55
부직포가 없는 것이 더 나은 선택입니다.
다만 대부분 부직포가 있는 것을 사용하기에, 없는 것이 더 구하기가 어려울 뿐입니다.

방수는 연속성을 가져야 의미가 있습니다. 흙속에 묻힌 외단열미장마감은 하부까지 방수의 연속성을 가질 수 없기에 의미는 없습니다.
Category