난방배관 최적 경로?

설계/시공관련 질문

질문 전에 먼저 검색을 해주세요.

 

난방배관 최적 경로?

1 송인 3 3,789 2022.06.23 11:08

;

 

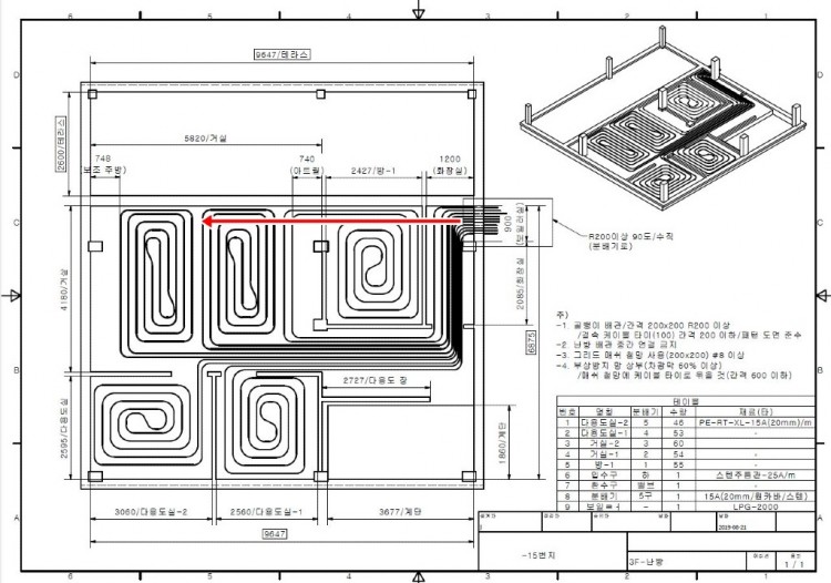
난방 배관을 화살표 방향으로 경로를 바꾸게 되면 거실과 방-1이 거리가 짧아집니다.

방-1는 극단적으로 짧아지고요, 이렇 때 난방 효율에 유리하게 될까요?

오히려 비등하게 거리를 맞춘 원안이 더 전체 효율에 유리할까요?

 또한 거실반투명하게 칠해진 부분을 뒤집어 배선하면 그 길이가 비슷해 집니다

다용도실-2에 붙은 벽이 냉장고 자리라할 때 나방이 되지 않아도 됨으로 유리한 점이 될까요?

 

변경안 화장실 벽체를 통과하는 난방 배관은 방수에도 유리하지 않다 싶은데 고견들 부탁드립니다.

 

감사합니다.

15-3-난방도-변경안.JPG

Comments

M 관리자 2022.06.23 21:08
열교가 효과적으로 감소 된다면, 난방열은 대부분 실내에서 소비를 할 수 있습니다.
그러므로 효율 보다는 골고루 열이 전달 되는 것이 더 중요하며, 그런 의미에서 전체 방의 배관 길이는 거의 일정하게 계획되는 것이 좋습니다.
즉 지금 난방배관 도면에서 표기된 길이는 적당해 보입니다.
최근에는 이런 개념 조차 희미해져서 배관 도면에 각 배관의 길이조차 명시하지 않는 도면도 허다한데, 이 도면은 그래도 기본은 지킨 도면으로 보입니다.
1 송인 2022.06.24 08:27
답변 감사합니다.
우리나라 최고의 건축포털 사이트 아닌가 싶습니다.

사실 설계 단계에서 난방배관도가 나온 건 아닙니다.
실제도가 없어 제가 직접 패턴을 잡고 컴퓨터로 루프 산출한 것입니다...
실제 배관을 해 보면 좀 짧아지게 됩니다. 그건 R반경 때문이지요, 실제는 R400, 이렇게 해야 그 배관 물량을 뽑았을 때 짧게 되는 문제에서 벗어날 수 있게 된다 판단해서 입니다...

문제는 이런 도면을 준비하면 시공업자 구하기가 매우 힘들다는 것입니다.
대부분 손사례를 칩니다. 도면대로 못해서 그런 것이 아니라 그런 건축주는 매사 피곤하다해서 피하는 것 같습니다. 사실 일이 없는 것도 아니니 이해를 합니다... 그래서  도면을 완벽(?)하게 준비하면 직접 시공하는 딜레마에 빠지게 되는 것 같습니다. 그래서 일부러 있는 도면도 제시하지 않는데 이건 그럴 수 없는 문제라 보이기는 하는 데 어려움이 따르는 게 사실입니다...

이 난방 설비도 질문을 드렸지만 답을 기다리기에 일정이 없어 어제부터 원안으로 직접 시작했습니다. 답변을 듣고 나니 마음이 좀 편해 집니다. 감사합니다.
근데 2, 3층은 더욱 넓으니 물리적으로 앞이 망막합니다...ㅜㅜ
M 관리자 2022.06.24 11:27
감사합니다.^^
Category