단열관련해서 문의 드립니다.

설계/시공관련 질문
질문 전에 먼저 검색을 해주세요.

 

 


단열관련해서 문의 드립니다.

G 새별아빠 2 3,654 2023.02.02 00:43

안녕하세요..

유튜브에서 제공해주시는 영상 많이 봐서 많은 정보를 얻었습니다.

 

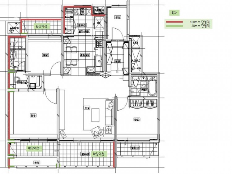
조건 및 환경

1. 안방쪽이 외벽입니다

2. 2008년도 아파트 8층이여서 총고 실내기준 2300정도 발코니 기준 2350정도 되는거같습니다.

3. 발코니 3군데 확장예정입니다.

 

안방, 화장실을 단열을 다시하고싶습니다.

위아래층 단열이 안되어있으면 확장을 비추천 하는걸로 알고있습니다.

 

궁금증

1. 화장실은 단열후에 조적을 다시 쌓아야 하나요?

   해당내용에 대해서 전혀 전무합니다. 참고할만 내용 알려주시면 감사하겠습니다.

2. 안방 단열은 100mm(XPS) 로 하면 될까요?

3. 날개벽은 결로방지로 30mm로 하면 될까요?

4. 최근영상에서 리모델링은 eps 보다 xps가 더 유리하다고 정확한 이유가 궁금합니다.

5. 위층 아래층 확장이 안되어있으면 발코니 바닥과 상부에 단열재를 높은 등급으로 넣어야 하지만,.

층고가 낮아서 제한이 많이 되는 상황입니다. 

결로방지 최소한의 단열재 두께는 어떻게 될까요?

 

다시한번 긴글 읽어주셔서 감사합니다.

Comments

M 관리자 2023.02.02 12:35
안녕하세요.

1. 그게 좋지만, 면적이 도저히 나오지 않는다면, 단열재와 단열재 위에 전방수석고보드를 떠발이 형식으로 붙일 수는 있습니다.
즉, 벽면정리 - 단열재 밀착시공 - 전방수석고보드 떠발이 시공 (면평활도) - 도막방수 - 타일접착 입니다.
그리고 타일 작업을 하시면 되는데, 주의할 것은 보통 떠발이 시공을 할 때, 접착본드를 듬성듬성 던지고 붙이는데, 접착 후의 접착본드가 단열재와 석고보드 표면의 40%를 넘어야 합니다. 그러므로 상당히 많이 발라야 해요.

2. 네 괜찮습니다.
단열의 원칙을 말씀드리는 것이 좋겠는데요.
30mm : 결로를 막기 위한 최소한의 단열
80mm : 단열을 했다고 느끼는 정도
150mm : 따뜻하다고 느끼는 정도
입니다.

4. 100mm 를 넘어가면 둘 다 괜찮습니다. 압출법단열재를 권해 드린 것은 습기투과성이 낮기 때문이지만, 단열재 조인트에 방습테잎을 붙이지 않으면 둘 다 헛 작업입니다.
즉, 100mm 보다 얇다면 XPS를 사용해야 하고, 그렇지 않다면 둘 다 사용가능하지만, 둘 다 방습테잎이 들어 가야 합니다. 안그러면 이런 일이 벌어져요.
https://www.phiko.kr/bbs/board.php?bo_table=z4_06&wr_id=170

5. 바닥 난방을 한다는 전제로 최소한의 단열재 두께는 30mm 입니다.
G 새별아빠 2023.02.02 12:40
감사합니다.
Category