내단열과 내단열시 창호설치방법문의

설계/시공관련 질문

질문 전에 먼저 검색을 해주세요.

 

내단열과 내단열시 창호설치방법문의

1 건축공부중 9 7,388 2024.04.04 16:46

안녕하세요. 저번에 외단열에대해 문의드렸지만 예산문제로 어쩔수없이 내단열으로 진행하게 되었습니다. 

ㅠ.ㅠ (로또라도 된다면야 할테지만....)

제대로된 외단열업체를 찾기도 힘들고 전체외장공사를 할려면 지붕부터 다 건드려서 견적이 너무 쎄게 나오네요. 저희 예산의 범주를 넘어섰습니다.  

 

어쨌든 협회에서 지양하는 내단열로 할려고 하는데 몇가지 궁금증이 있습니다. 

 

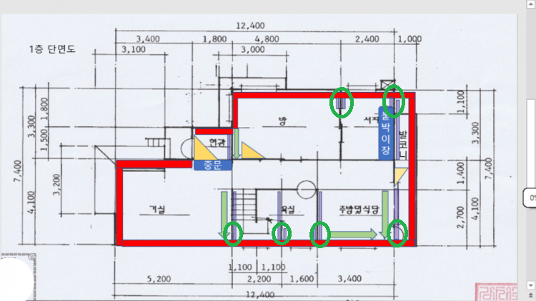
내단열단면도1.png

 

빨간색 = 아이소핑크 100mm

연보라색= 아이소핑크 30mm

노란색 = 문

그린색화살표 = 질문할부분들

 

건물 = 조적조 노후주택 

발코니 = 발코니 확장아니고 밑에 난방도 없음.  발코니 반정도 알루미늄샷시인데 국산의 단창 로이코팅 고정창과 환기를위해 열리는 단창을 섞어서 PVC소재로 변경하고 세탁기를 둘려고함

 

나머지 외부창은 독일식 시스템창호로 할예정

천장에 붙히는 30*45단열재는 같이 붙여줄꺼라 그림에선 생략했습니다.

 

질문1> 현관의 빨간색부분에 100mm를 넣으면 신발장을 넣을수 없는데 단열재를 어느정도 줄여서 작업해도 될까요? 줄인다면 어느정도 두께일까요?중문이 있어서 결로와 곰팜이만 안필정도이면 될것같습니다.

 

질문2> 그린색부분이 어떻게 처리해야할지 모르겟습니다.대부분 30mm 두께인데 다 붙여야 하나요?

 

내부 계단부분은 아마 계단이 있어 열교는 피할수 없을것 같아 최대한 노력해서 벽면을 붙힐 생각입니다. 

 

2-1> 거실 그린색화살표 : 계단아래빈공간에 창고처럼 문이 달려져있어 단열재를 어떻게 붙혀야 하는지 모르겠습니다.

 

2-2> 주방 그린색화살표 : 타일을 붙여야해서 외기에 붙은벽은 xps100mm붙인후  600각 타일을 붙일려면 어떻게 해야할지요? 그리고 주방과 발코니가  조적으로 되어있고 발코니에는 난방은 안하지만 세탁기를 둘려고 발코니외벽은 100mm로 발코니안내벽측은 30mm 단열재 부착을 할시 내부주방벽(그린색화살표) 은 단열재를 안붙혀도될까요?

 

2-3> 방문위 그린색화살표 : 방 문뒤쪽이 공간이 협소한데 30mm단열재를 붙히면 문을 옮기지 않는한 애매할것 같습니다. 

30mm+다루끼 +방화석고보드 2P의 경우 두께가 꽤나오는데 문과 벽이 5센치 남짓으로 보입니다. 

 

내단열단면도2.jpg

 

 

2층에서 100mm 와 30mm 단열재 빠진부분이 있는지 확인해주세요.

 

질문3> 난방배관없이 단열재로 단열공사하는 화장실에 방수법문의합니다. 

설비하시는 분이 이중배수를 몰라서 설명을 드려야하는데 단열재도 깔아야하니 어떤순서로 해달라고 할지 공정순서와 방법을 모르겠습니다. 단열재에 목상없이 석고보드만 붙혀도 타일붙일때 이상이 없을까요?

 

 

올철거 - 이중배수구 설치 - 아쿠아디펜스 2회 - 외벽xps100mm,내벽 30*45mm부착-전방수 석고보드 부본드부착 -바닥 구배잡아서 몰탈- 아쿠아디펜스 1회 - 타일 이게 맞는건거요?

 

내단열이중창.png

 

<질문4>

발코니 단창이고 폭이 100mm라 단열선을 맞춰서 시공되지 않을것 같습니다. 그냥 구조체위에 바로 올리는 수밖에는 폭이 안나올것 같습니다. 

반지하의 경우 이중창으로 교체할려고하는데 내단열의 경우는 단열재 붙혀서 목상작업까지 끝나고 창호를 사진처럼 내부쪽으로 붙혀서 설치하는게 맞지요? 만약 창호시공업자가 이렇게 할수없고 구조체에 올린다고 하면 다른 방법이 있을까요? 

 

 다행히 외부 물매가 되어져 있는 상태에고 아직까지 창문누수는 없었다고 합니다. 

 

<질문5> 반지하의 경우 옛날 창호라서 우풍이 들어와서 추운것같은데  제가 살아보진않았고 전에 세입자란분은 춥다하십니다. 샷시만 바꿀지 내단열도 같이 해야할지 고민입니다.  

 

반지하라 온도의 영향은 안받는것같은데 바닥에 습이 차오르거나 그런 현상이 있어 내단열이 더 악조건을 만드는것은 아닌지 

 

이미 싱크대가 있어서 외벽에 싱크대있는부분만 제외하고 방마다 내단열을 다 해두는것이 나을지

 

덧바시공은 창호업체에서 잘 이해를 못하시더라고요. 아마 안해주실려고 그런것 같습니다. 덧바시공없이 내단열하면 어떻게 해야할까요? 

시스템창 내단열.png

 

<질문6>


시스템 창호에서 덧바시공을 안한다면  위사진처럼 창호에 테이프 시공하고 나서 위에서 10 mm 내단열재붙이고 위에 나무마감하는 순서로 하는게 최선의 선택이겠죠?

 

 

내단열로 바꾸니 또 이것저것 공부해야될것이 많이 늡니다. 


Comments

1 건축공부중 2024.04.04 20:35
추가적으로 열회수형환기장치도 설치예정입니다. 결로 예방을 위한 내단열조언을 듣고싶습니다
11 잡자재 2024.04.05 12:35
질문1. 중문이 있으면 실내측에서 전달되는 열의 양이 줄어들고 현관문을 통한 열손실은 높아서 현관의 온도가 실내보다 더 낮아지게 됩니다. 따라서 상대습도는 더 올라감으로 결로와 곰팡이의 가능성이 더 올라가게 됩니다. 물론 이는 현관문의 단열성능과 연관성이 높습니다. 만약 현관문이 단열성능이 거의 없는 방화문이라면 방화문에 결로가 생기면서 습도가 낮아지게 됩니다.
저라면 단열재의 두께는 동일하게 100mm를 유지하고 현관문과 마주보는 벽이 내력벽이 아니라면 이를 털어내고 방의 크기를 조금 줄이면서 신발장을 만들고 턱이 지는 방쪽으로는 오픈 수납장을 넣는 식을 고려해 볼 것 같습니다. 개인적인 의견이니 참고 부탁드립니다.
 
질문2. 구조체로 인해 내단열이 끊어지는 부위로 결로방지를 위해 단열재 100mm를 붙인 안쪽으로 45cm  길이까지 30mm 단열재를 붙여주셔야 합니다. 다만 화장실 같은 경우 마감 등에 어려움이 있음으로 제외하는 것을 권장드립니다.
 
내부 계단측도 열교를 고려해서 외벽에서 45cm 길이까지는 30mm 단열재를 붙여주셔야 결로를 막을 수 있습니다.

문을 뜯어내실 계획이라면 날개벽 전체를 단열재로 쌓고 문틀을 재시공하는게 최선입니다. 

단열재를 붙인 후 석고보드를 접착용 우레탄 폼으로 붙이고 그 위에 타일시공이 가능합니다. 하지만 싱크상부장이 걸려야 한다면 단열재를 관통하여 구조체에 앙카작업 혹은 단열재 안쪽으로 각상을 짜고 장이 걸릴 자리에 합판시공이 되어야 장을 고정할 수 있습니다.

발코니에 단열을 하더라도 난방엑셀을 연장하지 않으면 열원이 없어 곰팡이가 발생할 가능성이 높습니다. 가능하다면 엑셀을 연장하시길 권장드립니다.

2-3. 현관문 맞은 편 벽을 말씀하시는 거라면 결로방지 단열재를 20mm 두께로 줄여서 시공하시길 권장드립니다. 혹은 30mm 단열재+석고보드 직접부착을 하면 5cm 안에서 마감이 가능하오니 참고 부탁드립니다.

2층에서 100mm 와 30mm 단열재 빠진부분
천장부위도 외벽에서부터 45cm 결로방지 단열재를 적용하셔야 합니다. 만약 바닥 방통을 재시공한다면 바닥도 마찬가지로 단열해주는게 좋습니다.
외벽과 붙은 날개벽도 단열이 끊어짐으로 결로방지 단열재를 적용해주시는게 좋습니다.

질문3>일반적으로 화장실 벽면에 단열재+전방수석고보드+방수 순으로 가능합니다만 단열재 시공에 따라 편심을 사용해 변기의 위치를 이동시켜야하는 등 변기의 위치와 문의 간섭을 고려해서 단열재 두께를 선정해야 합니다. 거기에 더하여 슬리퍼를 벗고 문을 닫을 수 있는 바닥의 높이를 생각하셔야 해서 바닥에는 단열을 못하는 경우가 대부분입니다. 그 경우 열원이 없으면 화장실이 추울 수 밖에 없음으로 난방을 연장하는 것을 권장드립니다.

네 단열재와 석고보드만 접착용 우레탄폼으로 전면접착이 되면 타일을 붙여도 괜찮습니다.
이중 배수구 부분은 현재 있는 배수구의 지름을 알려주시면 설명드리기 수월할 것 같습니다.

바닥과 벽의 방수가 하나의 그릇으로 이어질 수 있어야 해서 전방수 석고보드 후에 벽과 바닥을 이어서 방수 혹은 전방수 이전에 벽과 바닥을 방수하셔야 합니다.

질문4. 창호를 단열재가 감싸는 방식으로 적용해야 열교가 최소화되기에 창호발주시 주변에 공바를 둘러서 단열재가 창문공바를 감싸도록 시공하는 방법을 권장드립니다.

단열재를 시공한 상태에서 창틀을 올리고 창틀의 외부측은 구조체가 하중을 지지하고 단열재 안쪽으로 목상을 걸어 창틀의 내부측은 목상이 하중을 지지하는 방식으로 시공하시면 됩니다.
이때 기밀테이프는 창틀과 내단열재의 연결부위에 테이핑만 해주시면 됩니다.

질문5. 현재 건물의 단열상태에 따라 달라집니다만 창호의 성능만 너무 좋아지면 안생기던 곰팡이도 생길 수 있기에 단열 공사를 동반하는 것을 권장드립니다.

바닥의 습 부분은 그 양에 따라 배수판+바닥 단열(방습층)+엑셀파이프+ 집수정 공사가 동반되어야 합니다. 이는 상당히 큰 공사이고 층고에도 영향을 주기에 비용과 현장상황에 따라 달라질 것 같습니다.

시스템 창호에 덧바없이 내단열을 하게 되면 열교로 인해 결로가 생길 가능성이 높아집니다.

질문6. 일반적인 집성목의 두께가 18T라고 가정하고 내부에 10T 단열재를 시공하게 되면 30mm의 두께입니다. 덧바없이 시스템창호 안쪽으로 30mm에 마감을 하게되면 창호의 종류에 따라 다를 수 있습니다만 문이 열리지 않을 수 있습니다.
11 잡자재 2024.04.05 12:39
아래는 제가 아파트 공사할때 내단열시 적용했던 사례입니다.
핑크색이 결로방지 단열재, 빨간색이 외벽 단열재, 평면상의 빨간색은 천장 결로방지 단열재입니다.
11 잡자재 2024.04.05 12:42
창호 덧바와 단열 부분입니다.
11 잡자재 2024.04.05 12:43
이중창 + 내단열입니다.
11 잡자재 2024.04.05 12:44
시스템창호 덧바 실사진입니다.
M 관리자 2024.04.05 18:46
안녕하세요.

위의 댓글에 덧붙이면...

그림을 보니.. 발코니 확장이 아닌데, 주된 단열선을 외부로 잡으신 것 같습니다.
전체적인 결정은 방의 면적 등에 따라서 건축주가 직접 하셔야 하긴 하는데... 일단, 외벽의 내단열 100mm 로는 발코니를 통한 열손실이 제법 많습니다.
그러기에 발코니와 접한 방의 온도가 많이 내려갈 확률이 존재합니다.
이를 효과적으로 억제하기 위한 발코니 외벽의 단열재 두께는 약 150mm 이상이 필요하거든요.

그러므로 이런 상황에서는 발코니 외벽의 단열재 두께를 150mm 이상으로 키우고, 위의 댓글처럼 난방배관을 연장하거나 발코니의 안쪽 벽을 주된 단열선으로 보고, 외창도 그 위치에 같이 설치를 하는 것이 올바른 선택입니다. (흔한 아파트의 단열 방식)

물론 후자를 선택하면 발코니는 거의 외부이므로 겨울철 상당히 낮은 온도를 유지하게 됩니다.

이 부분의 선택에 따라서 실내 환경에 미치는 영향의 정도는 딱히 정량적으로 말씀드리기는 쉽지 않습니다. 저 역시 계산을 해보기 전에는 그저 감이고요.

그러므로 말씀드린 바와 같이 실내에 줄어드는 면적 등을 보시고 선택을 하시는 것이 좋겠습니다.
1 건축공부중 2024.04.08 12:56
질문1. 중문이 있으면 실내측에서 전달되는 열의 양이 줄어들고 현관문을 통한 열손실은 높아서 현관의 온도가 실내보다 더 낮아지게 됩니다. 따라서 상대습도는 더 올라감으로 결로와 곰팡이의 가능성이 더 올라가게 됩니다. 물론 이는 현관문의 단열성능과 연관성이 높습니다. 만약 현관문이 단열성능이 거의 없는 방화문이라면 방화문에 결로가 생기면서 습도가 낮아지게 됩니다.
저라면 단열재의 두께는 동일하게 100mm를 유지하고 현관문과 마주보는 벽이 내력벽이 아니라면 이를 털어내고 방의 크기를 조금 줄이면서 신발장을 만들고 턱이 지는 방쪽으로는 오픈 수납장을 넣는 식을 고려해 볼 것 같습니다. 개인적인 의견이니 참고 부탁드립니다.
▶ 현관문은 1등급 단열문로 교체예정입니다. 어쩜 제마음을 읽으셨는지 저도 현관이 작아 불만인데 남편은 내력벽이라도 구조변경시 위험하지 않을까 싶어 구조변경을 반대한답니다. 철거후에 고려해보겠습니다.
 
질문2. 구조체로 인해 내단열이 끊어지는 부위로 결로방지를 위해 단열재 100mm를 붙인 안쪽으로 45cm  길이까지 30mm 단열재를 붙여주셔야 합니다. 다만 화장실 같은 경우 마감 등에 어려움이 있음으로 제외하는 것을 권장드립니다.

▶ 네 제가 30*450을 30*45로 잘못 표기했습니다.
 
내부 계단측도 열교를 고려해서 외벽에서 45cm 길이까지는 30mm 단열재를 붙여주셔야 결로를 막을 수 있습니다.

문을 뜯어내실 계획이라면 날개벽 전체를 단열재로 쌓고 문틀을 재시공하는게 최선입니다.

단열재를 붙인 후 석고보드를 접착용 우레탄 폼으로 붙이고 그 위에 타일시공이 가능합니다. 하지만 싱크상부장이 걸려야 한다면 단열재를 관통하여 구조체에 앙카작업 혹은 단열재 안쪽으로 각상을 짜고 장이 걸릴 자리에 합판시공이 되어야 장을 고정할 수 있습니다.

▶ 주방이 작아 상부장을 해야할것 같습니다. 30T로 주방벽면을 하면 타일시공후 긴 앙카를 이용해 벽면까지 고정하는 방법으로 해보겠습니다.
 
발코니에 단열을 하더라도 난방엑셀을 연장하지 않으면 열원이 없어 곰팡이가 발생할 가능성이 높습니다. 가능하다면 엑셀을 연장하시길 권장드립니다.

▶ 올 동배관인데 현재까지 문제가 없어서 특별히 이상이 없으면 방통은 안할것 같습니다.
대신 한파일때 세탁기와 보일러가 발코니에 있으니 라디에이터나 히터를 켜둘생각입니다.

2-3. 현관문 맞은 편 벽을 말씀하시는 거라면 결로방지 단열재를 20mm 두께로 줄여서 시공하시길 권장드립니다. 혹은 30mm 단열재+석고보드 직접부착을 하면 5cm 안에서 마감이 가능하오니 참고 부탁드립니다.
▶ 네 단열재와 석고보드 떡가베로 마감을 하겠습니다.

2층에서 100mm 와 30mm 단열재 빠진부분
천장부위도 외벽에서부터 45cm 결로방지 단열재를 적용하셔야 합니다. 만약 바닥 방통을 재시공한다면 바닥도 마찬가지로 단열해주는게 좋습니다.
외벽과 붙은 날개벽도 단열이 끊어짐으로 결로방지 단열재를 적용해주시는게 좋습니다.

▶ 연보라색 짧은부분은 30mm 45cm의 결로방지 단열재를 표현한것이고 위의 천장은 겹쳐서 표현을 못했습니다. 천장부분도 결로방지 단열재를 적용하겠습니다.
외벽과 붙은 날개벽도 벽마감에 따라 30*450단열재를 적용하던지 전체벽을 30mm로 하던지 최대한 노력해서 해보겠습니다. 방통을 할 계획이 없어 벽면 밑에부분을 까서 단열재를 붙히긴 힘들것같고 장판을 제거하고 벽면전체를 단열시공할 예정입니다. 


질문3>일반적으로 화장실 벽면에 단열재+전방수석고보드+방수 순으로 가능합니다만 단열재 시공에 따라 편심을 사용해 변기의 위치를 이동시켜야하는 등 변기의 위치와 문의 간섭을 고려해서 단열재 두께를 선정해야 합니다. 거기에 더하여 슬리퍼를 벗고 문을 닫을 수 있는 바닥의 높이를 생각하셔야 해서 바닥에는 단열을 못하는 경우가 대부분입니다. 그 경우 열원이 없으면 화장실이 추울 수 밖에 없음으로 난방을 연장하는 것을 권장드립니다.

▶ 추운화장실 정말 싫지만 난방공사를 안하니 100T와 결로방지벽체를 통해 나름 최선을 다해보겠습니다.  화장실은 바닥난방없이 휴젠트 시공을 생각중에 있습니다.

네 단열재와 석고보드만 접착용 우레탄폼으로 전면접착이 되면 타일을 붙여도 괜찮습니다.
이중 배수구 부분은 현재 있는 배수구의 지름을 알려주시면 설명드리기 수월할 것 같습니다.

▶ 철거가 다음달말이나 가능해서 아직은 알수 없습니다.

바닥과 벽의 방수가 하나의 그릇으로 이어질 수 있어야 해서 전방수 석고보드 후에 벽과 바닥을 이어서 방수 혹은 전방수 이전에 벽과 바닥을 방수하셔야 합니다.
▶ 네 이해했습니다.

질문4. 창호를 단열재가 감싸는 방식으로 적용해야 열교가 최소화되기에 창호발주시 주변에 공바를 둘러서 단열재가 창문공바를 감싸도록 시공하는 방법을 권장드립니다.

단열재를 시공한 상태에서 창틀을 올리고 창틀의 외부측은 구조체가 하중을 지지하고 단열재 안쪽으로 목상을 걸어 창틀의 내부측은 목상이 하중을 지지하는 방식으로 시공하시면 됩니다.
이때 기밀테이프는 창틀과 내단열재의 연결부위에 테이핑만 해주시면 됩니다.

▶ 이중창 설치업자와 시스템 창호 업자가 달라 각각 공바를 둘러달라고 애기해보겠습니다.

이중창은 내단열과 목공을 한후 공바를 두른째 창호 설치를 하면 된다는 것이고
시스템창은 공바를 두른 시스템창을 구조체에 연결한뒤 내단열 공사를 진행하면 된다는 애기일까요?

질문5. 현재 건물의 단열상태에 따라 달라집니다만 창호의 성능만 너무 좋아지면 안생기던 곰팡이도 생길 수 있기에 단열 공사를 동반하는 것을 권장드립니다.

바닥의 습 부분은 그 양에 따라 배수판+바닥 단열(방습층)+엑셀파이프+ 집수정 공사가 동반되어야 합니다. 이는 상당히 큰 공사이고 층고에도 영향을 주기에 비용과 현장상황에 따라 달라질 것 같습니다.

시스템 창호에 덧바없이 내단열을 하게 되면 열교로 인해 결로가 생길 가능성이 높아집니다.
▶  바닥의 습부분은 아마 세입자가 없어서 난방을 하지 않아 생긴것 같습니다만.
제가 기존의 바닥공사를 진행하지 않고 전주인이 해서 배수판+바닥 단열(방습층)+엑셀파이프+ 집수정이 있을것 같지는 않아보여요. 엑셀파이프랑 집수정같은 펌프는 보여요.

한가지 걱정되는것은 반지하에 이중창을 설치하게되면 100T로 내단열을 해야할지 30T나 50T로 줄여서해야할지 아니면 아예 단열공사를 안하는게 결로현상에 좋을지는 판단이 안되서요.

질문6. 일반적인 집성목의 두께가 18T라고 가정하고 내부에 10T 단열재를 시공하게 되면 30mm의 두께입니다. 덧바없이 시스템창호 안쪽으로 30mm에 마감을 하게되면 창호의 종류에 따라 다를 수 있습니다만 문이 열리지 않을 수 있습니다.

▶ 픽스창도 더러있는데 T/T도 중간에 중간에 있어서 확인해볼께요. 되도록 덧바가 최선의 선택이라 이해하겠습니다.

바쁘신데 너무 좋은 댓글을 달아주셔서 놀랬습니다. 다시한번 감사드립니다.
1 건축공부중 2024.04.08 13:19
그림을 보니.. 발코니 확장이 아닌데, 주된 단열선을 외부로 잡으신 것 같습니다.
전체적인 결정은 방의 면적 등에 따라서 건축주가 직접 하셔야 하긴 하는데... 일단, 외벽의 내단열 100mm 로는 발코니를 통한 열손실이 제법 많습니다.
그러기에 발코니와 접한 방의 온도가 많이 내려갈 확률이 존재합니다.
이를 효과적으로 억제하기 위한 발코니 외벽의 단열재 두께는 약 150mm 이상이 필요하거든요.

그러므로 이런 상황에서는 발코니 외벽의 단열재 두께를 150mm 이상으로 키우고, 위의 댓글처럼 난방배관을 연장하거나 발코니의 안쪽 벽을 주된 단열선으로 보고, 외창도 그 위치에 같이 설치를 하는 것이 올바른 선택입니다. (흔한 아파트의 단열 방식)

물론 후자를 선택하면 발코니는 거의 외부이므로 겨울철 상당히 낮은 온도를 유지하게 됩니다.

▶ 발코니 내벽을 주된 단열선으로 이해했습니다. 발코니안에는 바닥난방은 없고 보일러와 세탁기만을 둘려고해서 외부공간으로 생각해서 100mm생각했는데 150mm 로 하더라도 열원이 없어 추운것은 어쩔수 없다는 것이지요?

발코니와 방,주방으로 연결된부분의창은 모두 없앨 예정입니다.
이때 단열재 선택방법은 다음과 같을것같습니다.

1> 발코니 외벽과 붙은 내벽 100T 발코니 방과 붙은 내벽 30T 방 내벽 30T (가능)
2> 발코니 외벽과 붙은 내벽 30T  발코니 방과 붙은 내벽 100T 방내벽 30T (발코니방과 붙은내벽에 보일러가 있어 시공이 불가능)
3> 발코니 외벽과 붙은 내벽 100T 발코니방과 붙은 내벽 30T 방내벽 100T
( 방내벽에 100T 공간은 가능한데 주방쪽은 타일작업과 이미 너무 좁아서 100T 가아닌 30T까지 하고 외기와 맞닿는 부분만 100T로 가능)

1>과 3>이 최선의 방법이겠죠.

발코니를 실내처럼  이용하지 않을꺼로 추운것은 괜찮으나 최소한 결로를 방지하고 세탁실로 이용하고 싶습니다.
안되면 세탁기는 2층 화장실 내부로 설치해야하는데 대부분의 생활은 1층에서 할것 같아 이왕이면 발코니에 세탁실을 두고 싶은게 제 욕심입니다.
Category