윗집 천정 에어컨 결로누수 의심, 보상은 임대인? 세입자?

하자관련 질문/사례
질문 전에 먼저 검색을 해주세요.


윗집 천정 에어컨 결로누수 의심, 보상은 임대인? 세입자?

G 이제 잡자 9 8,968 2022.09.21 23:37

안녕하세요.

 

2021년 부터 누수로 너무나 큰 고통을 받고있어 글을 올립니다.

 

<상황>

-윗집은 2021년에 이사와서 에어컨 설치, 거실 스탠드, 안방 벽걸이

- 피해세대(아랫집) 천정형 에어컨 설치

 

1.2021년 8월 10일 최초 누수 발생 확인 

  - 관리실이 확인하여 안방 에어컨 배수관(입상)에 관을 삽입하는 공사를 함(10월 말)

    .에어컨 매립배수관일거라고 생각하고 진행

  - 누수는 10월 초중 부터 멈췄음

 

2.2022년 8월 1일 같은 공간에서 누수가 발생함을 확인 <그림1,2>

-   - 빠르게 점검구를 설치하고 확인 3일정도 누수가 지속되다 마름

  - 2주정도 뒤 거실 복도에서 누수 확대 확인

  - 점검구 설치하여 확인하니 오래된 곰팡이 확인<그림3>

 

3. 누수일지 작성(8.31.~ 9.21.)

  - 누수일지 작성해보니 날씨가 더웠던 기간은 <그림4>와 같이누수가 발생하고, 기온이 낮은 몇일 동안은 <그림5>와 같이 누수가 멈추는 것을 확인

 

 *결론(개인적인 생각)

- 에어컨을 쓸만한 날씨일때만 누수가 발생하며, 많은 누수가 아닌 미세 누수인 점으로 미루어보아

  윗집의 에어컨 설치의 특이점이 있는 상태로 인하여 냉매관이 매립되어있는 곳에서 결로 등의 누수가 발생하고 있는것 으로 추정됨.

 

<문의사항>

- 윗집은 세입자가 살고 있는 상태로, 임대인은 매우 비협조적이고 관심이 없어서, 누수탐지업체도

제가 직접 불러서 동의받고 진행하였습니다. 2021년에 관리실에서 공용부분인 입상관의 문제로 파악하여 콘크리트를 깨는 공사를 2회 진행하였으며, 결국 해결이 되지 않아 2022년에 다시 발생하였습니다.

 

2022년부터는 세입자도 누수 탐지 검사 등을 거부하는 등 엄청나게 비협조 적인 상황입니다.

다행히 오랜 설득을 하여 이번주에 누수탐지를 다시 진행하기로 하였습니다.

 

문의1) 제가 생각하는 누수이유가 맞을지 글 및 사진을 보고 고견을 여쭙습니다.

 

문의2) 에어컨을 전문으로 하시는 누수탐지업체가 방문예정으로 제 이야길 듣고 원인을 알것같다고 하신 상황으로, 누수 원인이 윗집 에어컨으로 확인이 된다는 가정하에 걱정되는 부분이 있습니다.

윗집 임대인과 임차인은 인정을 하지 않거나, 서로 보상을 미룰 것으로 예상되는데, 이럴때 공사 등 처리 주체는 윗집 임대인과 임차인이 해결할 문제이기 때문에 피해세대는 가해세대주인 윗집 임대인에게 이야기하고 수리를 요청하라고 네이버 등에서 글을 보았습니다.

 

윗집 임대인에게 법적인 근거 등을 고지하면서 빨리 수리를 해달라고 하고 싶은데 근거 조항등을 알 수 있을지 궁금합니다. 가해세대 세입자에게 떠넘기며 서로 핑퐁만 할 것 같습니다 ㅠㅠ

 

( 2년동안 비협조적인 윗집으로 인해 피해세대 세입자가 이사나가고 세를 주지도 못하는 등 연속적인 피해가 엄청 큽니다ㅠㅠ 검사하자고 사정하고 빌고... 정말 분노가 차오릅니다)

 

 

<그림1>

KakaoTalk_20220916_012600427.jpg

<그림2>

KakaoTalk_20220916_012600427_01.jpg

<그림3>

20220831_180633.jpg

<그림4>

20220909_101939.jpg

<그림5>

KakaoTalk_20220921_222625415_02.jpg

Comments

M 관리자 2022.09.22 07:45
혹시 윗집 에어컨 배관 사진은 없으신가요?

보상 협의는 윗집 임대인에게 청구를 하게 됩니다. 보상 후, 임대인과 임차인이 상호간에 따질 것이 있다면 그 분들 간의 문제입니다.
또는 임대인과 임차인이 서로 합의하여 임차인이 보수를 하게 할 수도 있습니다. 그러나 이 합의가 되지 않는다면 이 역시도 임대인이 먼저 보수를 해주어야 합니다.
G 이제 잡자 2022.09.22 15:22
답변 감사드립니다.

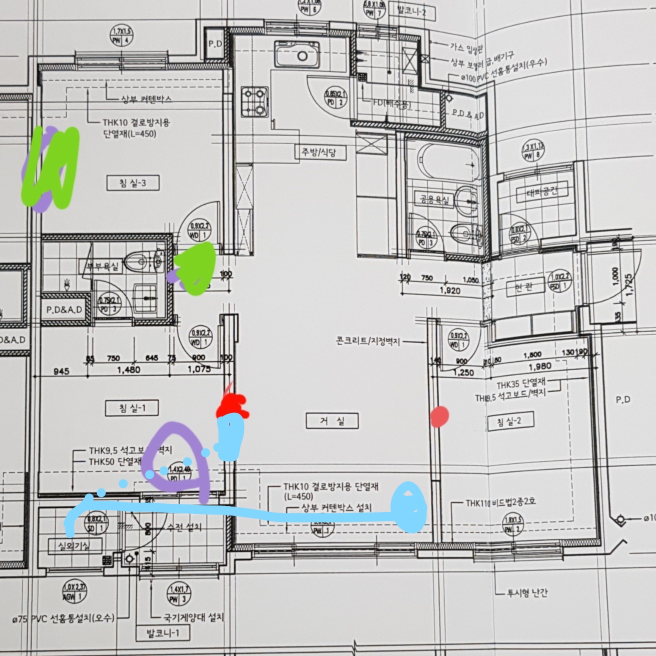
1. 도면의 하늘색 동그라미가 거실 에어컨 및 안방의 벽걸이 에어컨이며, 빨강색 점이 드레인(입상)관입니다. 하늘색 선은 동관이 지나갈 것으로 예상되는 경로구여(마루 아래로 매립되어있어 정확한 경로는 모르는 상태입니다)
보라색 및 초록색은 피해세대의 누수 발생 지점입니다.(천정)

2.임대인에게 청구를 하려고 하는데, 임차인에게 떠넘기며 서로 핑퐁 할 것을 대비하여 법적인 근거를 이야기 해주고 임대인에게만 이야기하고 싶습니다. 민법 제634조,제758조 1항의 "현재 점유자가 손해가 발생할 것을 우려해 방지에 관련해서 주의 의무를 게을리하지 아니하였으며, 임차인의 통지의무를 성실히 수행하였을 때에는 최종적인 손해배상의 책임이 소유자에게 있는 것으로 간주한다" 이 내용이 해당이 되는걸까요?
M 관리자 2022.09.22 15:35
임대인과 임차인의 책임 범위는 아래 글을 참고하시면 되실 것 같습니다.
https://www.scourt.go.kr/portal/gongbo/PeoplePopupView.work?gubun=23&seqNum=1737

에어컨 배관만으로의 누수로 보기에는 침실3의 누수위치가 너무 깊어 보입니다. 여기에 대한 판단은 현장에서 측정을 하신 분이 판단을 하셔야 할 것 같습니다.
G 이제 잡자 2022.09.23 21:33
좋은 내용(링크) 알려주셔서 너무 감사드립니다!!

누수 순서는 침실1 => 거실복도 -> 침실3으로 이어졌으며, 누수 양도 순서대로 작아졌습니다.
특히 침실 3은 일회성 누수로 보여지구요.(공사 이후)

추정 하기론, 2021년 침실1의 입상배관 보완을 위해 콘크리트 벽을 부시는 공사를 2회 하였는데 그때 진동으로 물길이 달라진것이 아닌가 생각 하고 있습니다.

내일 누수 탐지를 진행합니다. 부디 좋은 결과가 있기를 정말 간절히 기도합니다 ㅠㅠ
관리자님 너무너무 감사드립니다!
M 관리자 2022.09.23 23:22
네 아무쪼록 원인을 이번 기회에 제대로 찾으시길 기원하겠습니다.
G 김은영 2023.06.17 00:31
안녕하세요  저도 에어컨피해인지모를누수로고통받고있어여쭈어봅니다 혹시어떻게되셧나요
M 관리자 2023.06.17 10:58
글을 쓰신 분이 김은영님의 질문 글을 볼 확률이 극히 낮습니다.
답변을 기다리실까봐 노파심에 댓글을 남깁니다.
G 김은영 2023.06.17 13:09
다른방법은없으신지 연락할방법은없는지요?
M 관리자 2023.06.17 21:04
네 불행히도 없습니다.
Category