안녕하세요. 결로 및 통기관 환기캡 주변 고드름 관련 하여 회원님들의 견해를 듣고 싶습니다.

하자관련 질문/사례
질문 전에 먼저 검색을 해주세요.


안녕하세요. 결로 및 통기관 환기캡 주변 고드름 관련 하여 회원님들의 견해를 듣고 싶습니다.

G 조영철 3 3,534 2023.02.01 09:28

안녕하세요.

 

최근 (2022.05)에 건물 준공을 마치고, 입주를 하였습니다.

본 건물은 제가 운영하는 사업체와 주거 공간이 포함된 지하1층 + 지상 5층 + 다락

으로 구성된 상가주택 건물 입니다.


저희 창호가 알미늄 시스템 창호이다 보니 이번에 급격히 날이 추워질때 

창호 프레임의 결로는 발생된 이력이 있습니다 (위드지스 창호)

 

이 부분은 게시판을 참고하며, 습도계를 모두 위치해 두고 환기 및 관리를 통해

현재는 극심한 온도차가 일어나지 않는 한 별다른 결로 이슈는 없었습니다.

 

다만, 이번에는 조금 다른 이슈가 발생 되어, 혹시라도 이 부분에 대한

회원님들의 견해가 있으실 지 하여 문의 드립니다.

 

 

이슈는 우수관 및 통기관 결로 + 통기관과 연결된 환기캡들의 고드름 현상 입니다.

 

개인적으로는 위 둘이 서로 연결관계가 있다고 생각 되어 지며, 먼저 후자인

통기관과 연결된 환기캡의 고드름 현상을 보여 드립니다.

 

먼저 건물 외부에서 생기는 고드름 부분입니다. (측면에서 줌으로 찍다 보니 화질이 좋지 않습니다/사진에서 최상층에 보여지는 벤츄레이터가 통기관용입니다)

------------------------------------------

 

2023-01-30 08.09.37.jpg

 

 


------------------------------------------

 

2023-01-29 14.05.49.jpg

 

 

 

날이 가장 추웠던 최근의 5층 환기캡 입니다.

------------------------------------------

 

2022-12-16 08.31.24.jpg

 

 

 

지면과 가장 가까운 2층의 환기캡 입니다.

------------------------------------------

 

2023-01-30 08.09.18.jpg

 

 

 

맺혀있던 고드름이 떨어진 모습 입니다.

------------------------------------------

2023-01-29 17.19.57.jpg

 

 

이게 만약 화장실과 연결된 환풍기에서 나오는 습기가 맺힌 고드름이라면

오히려 이해를 하겠는데, 그게 아닌 통기관과 연결된 배기구에 맺힌 고드름이

라고 생각하면 다소 이해가 안가는 부분이 있어서 공유 드립니다.

 

원래 이 정도의 고드름이 통기관 배기구에서 발생되는 것이 맞는 걸까요?

 

궁금하여 검색을 하던중에, 어느 근생 건물의 한개층에서 인테리어를 하던중에, 통기관을

하수구로 잘 못 인지하여 연결하는 바람에 관이 막혀 습기와 결로가 심하게 발생되어

내시경 확인 후 시공을 한 현장을 보게 되어, 그럴 가능성은 없는건지 궁금합니다.

(저희의 경우 저희만 사용하기도 하고 건물 자체에 사용 인원이 적어 물 소비가 아주 적은편입니다)


다만, 통기관이 막히면 변기에서 이상 신호 (꿀렁거림등) 가 발생된다고 하던데

이상점이 딱히 보이거나 하지는 않았습니다.

 

 

다음은 결로 부분에 대한 문의 입니다.

(저희는 이 부분이 위에 문의 드린 통기관의 문제와 엮여있다고 생각 되어집니다)

 

도면 부터 공유 드립니다.

 

 

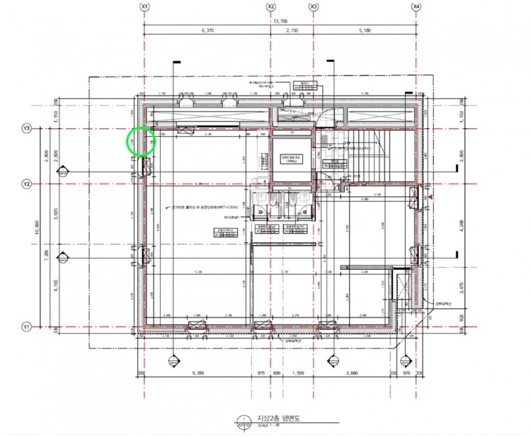
2층 (근생) 도면 입니다. 녹색 부분이 통기관이 지나는 곳 입니다.

 

2층.jpg

 

 

 

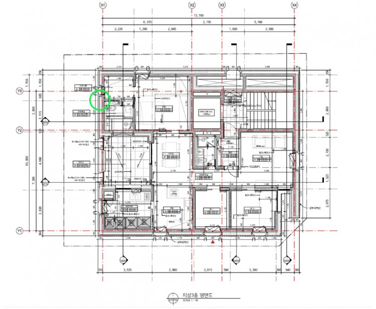
3층 (주택) 도면 입니다. 녹색 부분이 통기관이 지나는 곳 입니다.

 

 

3층.jpg

 

 

횡단면도 입니다. 이 부분이 현재 시공사에서는 이슈 원인으로 보고 있습니다.

 

일조권을 받으면서도 건물 각층의 높이를 살리려다 보니, 3층의 천정 일부가 낮아지며,

다른곳과 달리 해당 부분만 외단열 (4층의 테라스 하부) 및 몰탈 + 페데스탈이

적용 되었습니다.


횡단면도.jpg

 

아래는 3층 낮은 부위의 결로 발생 이미지 이며,

2022-12-18 18.21.51.jpg

 

작업 환경상 공간이 좁다 보니, 시공사에서는 해당 부분 천정 목공을 걷어내고, 폼 단열로 내부에서

작업을 하여 결로를 줄여보자는 입장입니다.

 

다만, 저희는 이게 여기서 결로가 시작되어 습기가 많이 배출됨에 따라, 통기관 연결된 배기구에 고드름이 생기는것인지, 아니면 그와 다르게 통기관 연결이 잘 못 되어서 한파시 취약한 3층의 천정부가 젖는것인지 정확히 모르겠습니다.

 

 

한파가 심해질때의 2층 벽면 입니다 (젖은 부위가 통기관이 지나는 부분입니다)

 

2022-12-18 07.09.26.jpg

 

 

 

 

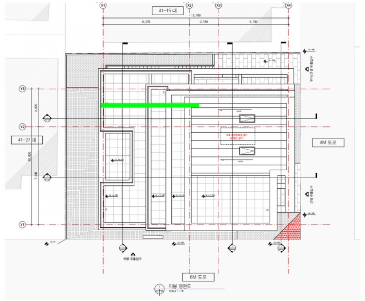
아래는 천정에서 테라스를 따라 하부까지 연결된 통기관의 경로 입니다.

 

 

지붕.jpg

 

 

 

좌측면도.jpg


 


처음 문의를 드리는것인데 다소 두서없이 적은거 같습니다.

 

현재 시공사는 준공 이후 자잘한것부터 여러가지 신경쓰며 같이 고민해 주시고 있으며,

설계사분도 많은 부분에 있어 상담을 해 주고 계십니다.

 

다만, 좀 더 객관적 자료들이 궁금하다 보니 이렇게 글을 남기게 되었습니다.

 

긴 글 읽어 주셔서 감사합니다.

 

 

 

 

Comments

M 관리자 2023.02.01 14:01
안녕하세요..

먼저 몇가지 질문이 있습니다.

1. "통기관과 연결된 환기캡"이라고 하셨는데, 이 상황이 잘 이해가 되지 않아서요.
통기관은 오수관과 연결되어 옥상으로 직접 (다른 배관의 간섭없이) 나가도록 해야 하므로, 이 통기관과 환기캡이 연결되어 있을 수는 없거든요. 이 부분에 대한 좀 더 자세한 설명 부탁드립니다.

2. 통기관은 구조체 속에 매립이 된 건가요? 아니면 구조체 외부에 나가 있는 건가요?

3. 결로가 생겼다는 곳이 아래 그림에 표시된 부분인가요?

4. 통기관의 경로가.. 맨 아래 입면도에서는 수직의 직선으로 표현을 하셨는데, 배치도는 수평방향으로 이동이 있는 것으로 그려 놓으셨는데.. 이 부분을 죄송합니다만, 다시 표면을 해주시면 좋겠습니다.
위에 평면도에 표시된 바로는 외벽을 따라 올라가는 것 까지는 이해를 하였는데요.. 그게 어느 층에선가 꺽여서 옥상으로 간 것 같아서 그렇습니다.
G eggchoap@n… 2023.02.01 14:42
상세한 피드백 감사 드립니다.

1번 질문에 대한 답

전달받기로는 통기관과 연결된 환기캡으로 들었습니다.
저도 처음에는 화장실 환풍기 연결부인가 했는데, 나중에 설비측과 통화하는걸 들어보니 통기관과 연결된 눈물방지후드캡 이라는 답을 들었습니다.

다만 이게 건너 들은거라 다소 부정확할 수 있습니다.
지금 도면을 도면서 사진 대조해 보니, 다소 통기관과 위치 거리가 있네요..
그렇다면 이는 통기관이 아닌 다른 환기구 일까요?

환풍기랑 연결된 부분은 분명히 아닌데, 층별로 원래 저런 환기구가 존재 하는지도 궁금 합니다.


2번 질문에 대한 답

네 맞습니다. 통기관은 매립 상태 입니다.


3번 질문에 대한 답

네 맞습니다. 3층의 화장실 부 (4층의 테라스 하부) 에 생겼습니다.
추가로 첨부 드리는 3,4층 이미지에서,


3층의 녹색라인 = 4층의 테라스 파란 라인

입니다. 높이 한계 문제로, 해당 공간들 (3층) 이 높이가 다운 되었습니다.
추가로, 결로가 심히 발생되는 구역은 3층의 화장실 (레드 원 라인) 입니다.


4.번 질문에 대한 답

제가 설명을 잘 못 드린거 같습니다.
제가 아는  기준으로는 첨부 드리는 이미지 최하단처럼 구성이 되어 있습니다.


바쁘실텐데 답변 감사합니다.
M 관리자 2023.02.01 15:47
그럼 우선 통기관과 환기캡이 서로 연결되었는지에 대한 정보의 확인이 우선일 것 같습니다.

만약 그러하다면 통기관이 여러번 꺽이게 되어 원할한 통기가 어려울 것으로 (현장에서) 판단을 하고, 꺾이는 지점 외부에 환기캡을 달아서 연결을 한 것일텐데요..

우선은 연결이 되었다고 가정을 하면....
벽체 통기관 매립 위치에서의 결로 현상과 환기캡에서 다량의 수증기가 나와서 어는 문제가 설명이 됩니다.
우선은 이 관이 순수 통기관으로 사용되고 있는지, 아니면 일부 하수관으로 사용되고 있는지를 파악하신 후에, 순수 통기관이라면 환기캡의 구멍을 임시로 막는 조치를 하는 것이 좋겠습니다.
막고도 건물에서 오수/하수 사용의 문제가 없다면 통기기능을 정상적으로 하는 것이므로, 계속 막고 사용하시면 되세요.
그러면 고드름이나 벽의 결로도 없어질 것입니다.

천장의 결로는... 외단열 건물에서 열교가 발생한 원인이 궁금하긴 하나, 천장의 마감을 일부 뜯는다고 하셨으니..  넓은 면에 폼을 붙이는 것이 양도 많이 들고, 생각처럼 평평하게 잘 되지는 않습니다. 그러므로 손이 들어가서 작업이 가능하다면, 30mm 의 압출법단열재를 폼본드로 잘 붙이는 것이 더 낫긴 합니다.
Category