봉수파괴로 고생하고 ㅡ

하자관련 질문/사례

질문 전에 먼저 검색을 해주세요.


봉수파괴로 고생하고 ㅡ

G 뉴산 6 2,180 2024.06.14 17:51

안녕하세요

고민이 되어 문의드립니다

신축빌라(5f)입니다

신정통기관설치 됐구요

각층2가구씩 살고요.

ㅡ401호에서 양변기를 사용후 물을 내리면 봉수가 내려가지않고 잠깐 올라오다 정상적으로

 잘 내려가면서 순간 구르릉 소리가 나고요

ㅡ301호 아래층 에서는 봉수가 빠집니다.

ㅡ허나 401호에서 대야에 물로 한번에 부어버리면

   잘내려가고 301호 봉수도 정상입니다

ㅡ다른가구들은 모두 정상입니다

#오수관은 모두 노출된 곳은 없습니다

인터넷 보면 어어벤트 애기가 많은데

ㅡ다른좋은 방법은  없는지요.

 ㅡ만약 에어벤트로 해결할 수밖에  없다면

 설치한다면 위치는 어디가 좋은가요

#난망인 관계로

  두서없는 글로 부탁드립니다.

ㅡ감사합니다

Comments

M 관리자 2024.06.17 10:57
안녕하세요.
그럼 401호 오수관과 301호 오수관 사이에 통기관 연결이 안된 것으로 보이는데요.
미니벤트를 설치해서 해결은 가능하지만, 문제는 오수관이 콘크리트 속에 매립된 상태인 것으로 보여서... 매립된 배관을 찾아서 콘크리트를 깨 낸 후에 설치가 되어야 하는데, 그게 현실적으로 실행은 꽤 어려울 것 같습니다.

현실적인 것은 301호 봉수가 깨지는 바닥 배수구에, 봉수 없이 냄새 유입을 막는 장치를 설치하는 것인데요.
우선 아래와 같이 기존 봉수보다 조금 더 높은 물을 담을 수 있는 제품을 설치해 보시고
https://front.wemakeprice.com/product/2157289360

그 것도 깨진다면.. 비록 머리카락 등이 끼면 냄새가 올라 올 수는 있으나, 물이 필요없는 제품을 끼우는 것이 마지막 방법일 것 같습니다.
https://www.coupang.com/vp/products/8075552721?itemId=22747258494&vendorItemId=89936384539&sourceType=srp_product_ads&clickEventId=c6d0bd00-2c4c-11ef-bd9d-809be465d873&korePlacement=15&koreSubPlacement=1&q=%EC%8B%A4%EB%A6%AC%EC%BD%98+%ED%8A%B8%EB%9E%A9&itemsCount=36&searchId=aae7f007d92c4142aa9477b7988e165b&rank=0&isAddedCart=
G 뉴산 2024.06.17 12:10
바쁘실텐데
말씀 고맙습니다.
제생각으로는
1ㅡ301호에 변기 밑 배수라인에 노출 에어벤트를 설치하면 301호에 봉수를 깨지기 전에 노출 에어벤트로 공기가 유입되면  301호 봉수해
결 되지 않을까.
아니면
2ㅡ401호 변기 밑 배수 라인에 노출 에어벤트를
 설치하여 공기유입을 시킨다면 301호 봉수가
깨지지 않을까 생각합니다.
#위와같이 벤트를 설치한다면
관리자분께서 말씀하신301,401사이 오수관
미설치에대한 통기관 대치가 되지않을까요.
만약 가능 하다면 벤트 설치는 301과401중
어느쪽이 좋을까요.
더운 날씨에 기쁜시간 보내세요
G 뉴산 2024.06.17 12:29
사진은 인터넷에서.
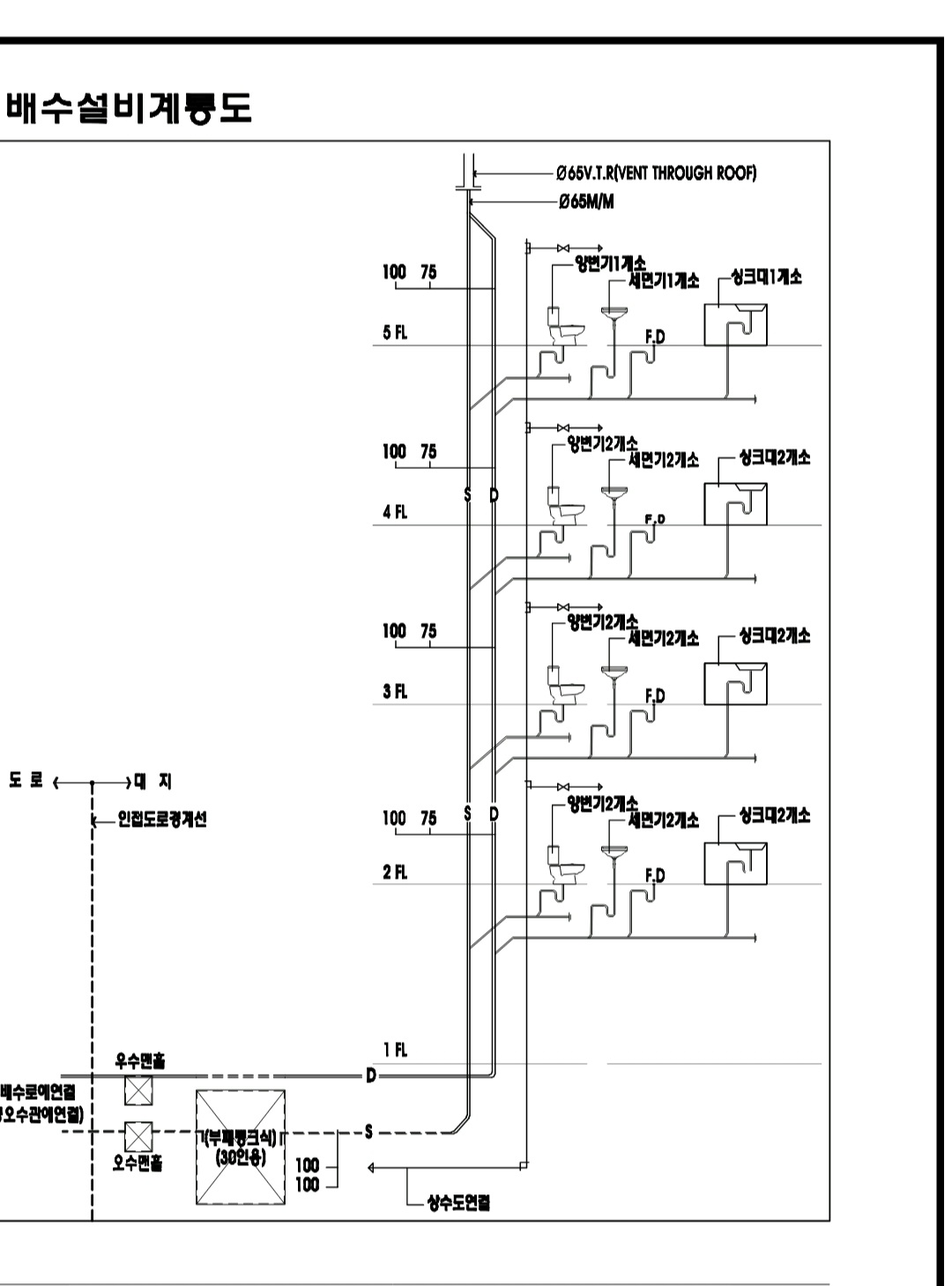
ㅡ오배수 도면 보내봅니다ㅡ
설치하기는 401호가 편하고요.
301호는 봉수가 깨지니 봉수전에서 공기가 유입되면  되지 않을까요
M 관리자 2024.06.17 12:43
도면대로 시공이 되었다면 통기관의 지름이 작아서 생기는 문제 같습니다.
설치 위치는 둘 사이 어디에 있든 상관없습니다.
G 뉴산 2024.06.17 16:32
답변 감사합니다.
많은 도움이 됩니다
M 관리자 2024.06.17 21:22
감사합니다.
Category