집 안 냄새

하자관련 질문/사례

질문 전에 먼저 검색을 해주세요.


집 안 냄새

G 층간냄새 40 4,311 2024.07.21 09:37
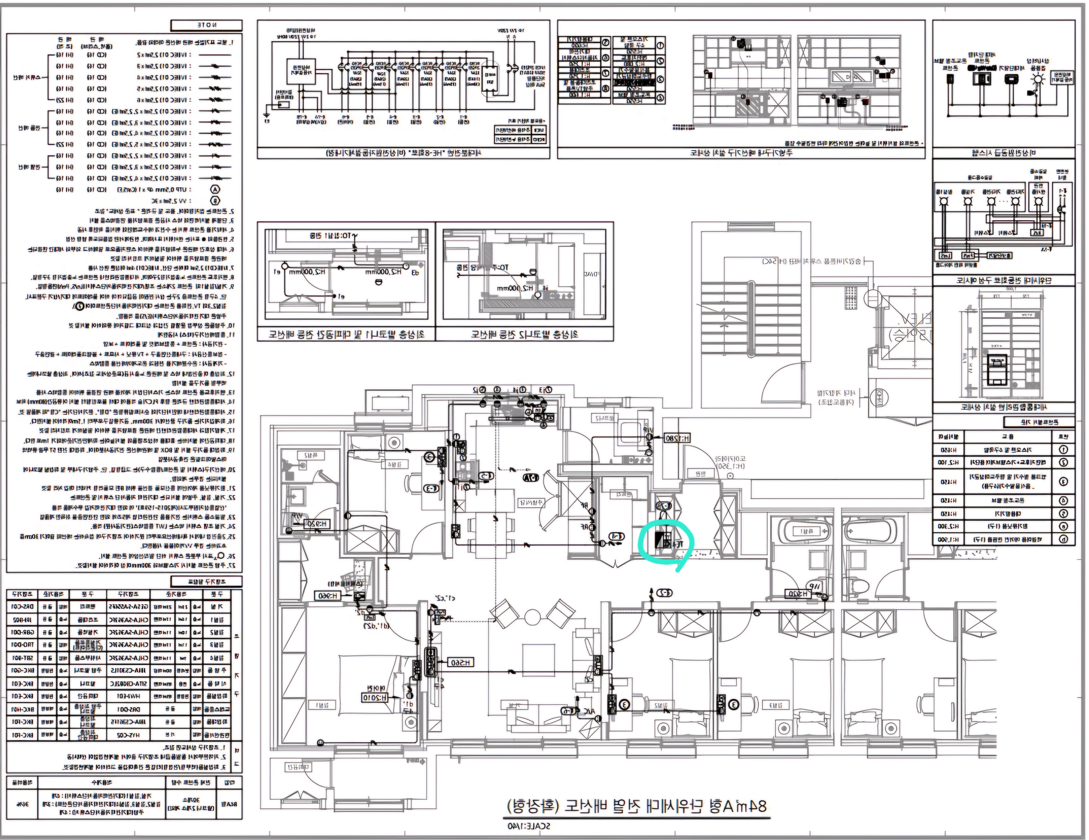
안방 거실 식탁 다른방들도 간헐적인 냄새.

민트색으로 표시한 부분이 냄새나는 위치.


아래층들 전자담배 냄새로 결론이 났으며


실험결과 Pd조적벽 마감미흡은 아닌걸로 결론이 났습니다.


(안방과 안방화장실pd구간 사이 천장에 향기 건조시트지넣고 실험) 보라색 표시부분 천장에 시트지넣고 실험.


30%정도의  냄새를 전기코드,전등스위치 에서 그 냄새가 새어 나와 막는 작업을 하였고 (부직포 ,글루건) 냄새가 5%대로 줄어들었음에도


간헐적으로 (제 예상으로는 아래집이 전자담배를 핀 후로 추정됨.문닫는 소리, 탁자에 프라스탁같은거 탁하고 놓는소리후 냄새 발생) 새벽까지 이어지는 아래층과 아래아래층 또 그 아래층 3,4집이 피는 전자담배냄새로  고통받고 있습니다.

(환기관 다른냄새와 섞여서 기이한 냄새발생 ,바로옆에서 전자담배 냄새를 맡았을땐 향기만 나는걸 확인. 아파트 단지 안 분리수거장 옆자리에서(안방건너방쪽에 있음) 비슷한 냄새가 나길래(밖인데도 그 냄새가 남아 있었음) 알아본 결과 그 자리에서 액상전자담배를 피는 사람이 있었음. 

그 분이 거기서 필때는  안방과 건너방 창문을 맞바람이 치도록 열어 놨음에도 안방 구석자리에서 기이한 냄새가 20%정도로 나면서 환기를 시켜도 사라지지 않았음.

액상전담이 글리세린과 니코틴등 여러 혼합물이 들어가는데 

글리세린의 영향으로 진득하게 그 자리에 남아서 환기를 시켜도 사라지지 않고 고통을 준다고 생각합니다.


저와 똑같은 증상의 다른아파트 어느분께 받은 사진으로 보니 


Pd안쪽 벽에 전선관이 지나가고 있었으며 하자신청시 그곳을 제일 먼저 폼으로 막았다고 하네요

그리고 조적벽 안쪽 틈새 마감을 직접 하셨는데도

냄새가 완전히 사라지지 않고  난다고 합니다.

그 분은 뜯어놓은 조적벽을 임시로 두꺼운벽지?같은걸로만  막아놓기만 한 상태라

냄새가 나는것일지도 모르는데  냄새가 잡히지 않으니 막지도 못하겠다고 하셨습니다.

 


이 사진을 보시고 원인파악 및 해결책 제시좀 부탁드립니다 ㅠㅠ

 

 

 

 

 

 

Comments

M 관리자 2024.07.20 23:14
아래에 올려 주신 (폼으로 구멍 등을 막은) 사진은 어느 부위를 찍은 것일까요?
G 층간냄새 2024.07.21 09:10
Pd구간 공용배관이 지나가는 안쪽 벽면입니다
이 사진에세 보이는 곳 아랫쪽 벽면입니다
G 층간냄새 2024.07.21 09:43
베란다
G 층간소음 2024.07.21 09:43
다른집  평면도 입니다.
G 층간냄새 2024.07.21 09:44
안방쪽 타공부위
G 층간냄새 2024.07.21 09:45
댓글에 올린 사진 모두 타아파트입니다.
G 층간냄새 2024.07.21 09:46
본문내용  글추가 했습니다. 다시 한번 읽어주세요~
G 층간냄새 2024.07.21 09:50
안방쪽
G 층간냄새 2024.07.21 09:51
베란다쪽
M 관리자 2024.07.21 12:56
전선의 입출구를 막는 것은 하셔야 하는데...
거기에 더해서.. 관리사무소에 보관 중에 준공도면 중에 "세대 확대평면도"라는 것이 있습니다.
이 도면을 보면 건식벽과 콘크리트 벽이 서로 만나는 지점을 찾을 수 있습니다.
이 결절점 부위의 마감을 절개해서 그 안을 보셔야 합니다. 주로 틈새는 거기에 있거든요.
G 층간냄새 2024.07.29 20:37
콘센트도면인데 민트색도그라미가 현관신발장 분전함 입니다.그런데 그곳에선 냄새가 나지 않습니다.  어디가 시작점일까요? 시작점만 막으면 될꺼같은데 주방벽콘센트부터 다 막아야 하는데 알려주시면 감사하겠습니다
M 관리자 2024.07.30 09:56
그럼 지금 구멍을 낸 부분이 아래 표시된 위치인가요?
불행히도 도면 상으로는 어떠한 전선도 그 곳을 통과하는 것이 없는데요. 그 배관이 무엇인지 관리사무소에 물어 보셔야 할 것 같습니다.
M 관리자 2024.07.30 09:57
다만 이를 떠나서, (전선까지 포함해서) 다 막았다고 하셨는데, 그래도 냄새가 유입되는 것은.. 그 벽 자체가 아니라 그 벽과 외부벽이 만나는 지점에서 유입될 가능성이 높아 보입니다.
그 외에는 딱히 원인을 찾을 수 없었습니다.
G 층간냄새 2024.07.30 16:08
구멍을 낸 집은 저희집이 아니라 증상이 비슷한 다른아파트입니다 ㅠㅠ 저희집 콘센트 전선관을 다 막지 못했습니다. 다 막자니 일이 너무 커져서 시작점을 찾아서 막고 싶습니다. 전열 배선도로는 시작점을 찾기 어려운가요?
M 관리자 2024.07.30 20:05
시작점은.. 올려 주신 도면에 마크를 해 놓으신 부분입니다.
그 곳에서 모든 전열배관이 시작되거든요.
G 층간냄새 2024.07.30 20:54
분전함이 있는 신발장 안에 디퓨저를 놓고 실험해 보니, 콘센트함이나 전등스위치에서 나는 냄새에 디퓨저 냄새는 나지 않았습니다. 그리하여 원인을 찾던중 저희집과 증상이 비슷한 타아파트 사시는 어느분이  pd를 뜯은 안쪽 사진을 보여주셨는데 그 안에 전선관이 지나가고 있었고, 그리하여 그게 원인이지 않을까 하는 의심을 해보았습니다.
M 관리자 2024.07.30 20:58
타 아파트 사례는, 지금 아파트를 직접 뜯어서 비교해 보기 전에는 별 도움이 되지 않을 것 같습니다.
G 층간냄새 2024.09.23 10:06
안녕하세요. 덕분에 많은 도움받고, 원인을 찾게 되어 저처럼 힘들게 고통받으시는 분들을 위해 댓글을 남겨둡니다. 저는 원인을 찾았고  처리후 평온함과 고통에서 벗어나게 되었습니다. 그동안 고생한것만 생각하면 분노가 차오르고 눈물이 나네요. 하.... 
원인은 힘*환풍기가 문제였습니다.
저희집 환풍기는 여러개의 흡기구멍을 추가 할 수 있는 제품이고, 자바라와 프라스틱 연결부위만 죽어라 막았지만, 원인은 프라스틱 연결부위와 본체와의 연결부위(위에서 아래로 끼우는 타잎 )사이로 바람이 다 새고 있었고 그래서 화장실천장에 조금씩 나는 악취와 결합되어  그곳이 바람으로 꽉 차게된 후 천장벽 사이 미세틈새로 악취바람을 밀어내어 안방, 주방,거실까지 냄새가 나는거였더군요.  환풍기를 연기로 실험해서 새는 부위를 테이프로 싹 막았더니 현저하게 악취가 줄어들었고 화장실 천장안에 건조기용 향기시트지를 넣어서 실험해보니 주방식탁자리에서 그 향이 나더군요. 하하하하 참으로 황당했습니다. 환풍기 반대편으로 바람이 새고 있으리라 그 누가 생각할까 싶네요. 저 환풍기 회사는 정신차려야 합니다.
냄새로 고통받으시는 분들이 그 고통에서 하루빨리 벗어나시기를 바랍니다.
M 관리자 2024.09.23 17:32
그나마 다행이고, 알려 주셔서 감사합니다.
G 층간냄새 2024.10.16 23:01
지난번 환풍기본체를 막고 해결됐다고 생각했는데  식탁자리에서 나는 냄새만 해결되고 아직도  안방에선 간헐적으로 악취가 납니다  저는 이 냄새를 맡으면 혀가 써지거든요  도저히 안되겠어서
매립형휴지걸이, 벽걸이에어컨밑 콘센트 등등을 뜯었습니다. 지난번엔 가벽쪽 콘센트와 전등스위치 쪽만 부직포로 막았거든요
그랬더니 매립형휴지걸이  박스아래쪽을 다 파손시켜 놨더라고요 까대기?를 하다말고  환풍기 가동시 그쪽에서 냄새바람이 새어나오고 있었습니다.
G 층간냄새 2024.10.16 23:11
벽걸이에어컨 아래 콘센트함은
뜯어보니 나사에 녹이 있고 군데군데 녹이 나 있더라고요 이쪽에서도 악취바람이 새어나오고 있었습니다.
근데 이쪽이 에어컨드레인배관자리인데 혹시 누수가 있을까요?  벽지겉으로 누수자국같은건 보이지 않습니다.그러나 아주 미세하게 누수가 진행중이라면 
그 냄새가 원인이지 않을까 싶은데요
전선이 아래에서 위로 나와있는데 오른쪽은 위에서도 아래로 전선이 나와있음. 안방에 다른콘센트함에서는 녹이 보인적이 없습니다. 전에 살던 사람이  안방 베란다와  안방화장실에  곰팡이를 잔뜩 키우며 살았었습니다.
그때는 변기정심문제와 하수구문제가 있어서  방안 습도가 다른방보다 2,30%가량 높았었습니다.
저도 이사와서 잘 모를때  제습기를 전에살던집처럼 만큼만 돌렸더니
먼지다듬이가 침대에 잔뜩 생겨서  가구도 싹 버렸습니다.(톱밥을 뭉쳐서 만든 애쉴리 가구)  방이습해서 녹이 난거라면 다른곳도 녹이 있는게 정상이겠죠? 저 부분만 녹이 났다는건 에어컨배수관에 작은문제라도 있기 때문이겠죠? 덕분에 도움많이 받고 있습니다 항상 감사합니다~~
G 층간냄새 2024.10.16 23:13
오른쪽부분
M 관리자 2024.10.17 00:57
누수의 흔적으로는 보이지 않습니다. 있다면 결로가 있을 수 있는데, 그저 추정일 뿐, 이 배관이 어디로 시작해서 이 곳으로 왔는지를 볼 수 있는 도면이 있어야 합니다.

우선은 의심이 되는 배관을 모두 막아 보는 수 밖에는 없을 것 같습니다.
G 층간냄새 2024.10.17 10:51
저 민트색으로 그린부분이 에어컨배수관입니다. 관리사무실에 도면을 받아서 올려보겠습니다.
G 층간냄새 2024.10.17 17:46
궁금한것이 있습니다. 에어컨배관드레인  도면이 보고싶어서 관리실에 측면도를 요구했더니 

전기 및 기계 관련해서 '단위세대'당 단면도, 입면도는 별도로 만들지않습니다.  다만, '계통도' --- 지하층~옥상층 구간에 해당 --- 즉, 각층간 구성(시공) 도면만 존재합니다.

'건축'은 단위세대당  입면도(단면도)가 있습니다.

관리소-방재실에  우리단지의 제반 준공도면이 청사진으로 준비되어 있으니 확인을 원하시면 언제라도 방문하여 각분야 도면목록을 확인하시면 됩니다.

라고 하시는데 측면도가 없는게 맞는건가요?
G 층간냄새 2024.10.17 17:47
이걸보고 어떤식으로 물이 빠져나가는지  알수 있나요?
M 관리자 2024.10.17 21:22
입면도는 없는 것이 맞습니다.
다만 제가 말씀드린 것은 에어컨 배관의 결로가 아니라, 전기선 배관 내부의 결로입니다. 그러므로 이 도면이 아닌 전열 배선도가 필요합니다.
G 층간냄새 2024.10.17 23:17
전열배선도는 위에 댓글로 올려놨습니다. 에어컨쪽 콘센트전선이 아래에서 위로 나와있고 거기서 냄새가 나오더라고요 일단 테이프와 실리콘으로 막았는데 밤시간대에 가스냄새같은게 방안에 은은하게 나고 있어요. 환풍기를 틀면 더 심해지는거 같습니다. 실리콘냄새인지 먼지 이제는 코도 이상해진거 같네요
G 층간냄새 2024.10.17 23:21
전문가를 불러서 해결하고 싶어도 어떤전문가를 불러야할지도 모르겠고  어디를 어떻게 해야지 해결이 될런지도 몰라서 힘드네요.  Pd문제라기엔  pd바람이 지나가는 안방과 건너방 사이에 향기시트지를 넣어놔도 그냄새는 아니기에 pd를 뜯는것도  아닌거같고  에휴 ㅠ
M 관리자 2024.10.17 23:30
아. 그럼. 저 역시 짐작이 되는 것이 없습니다.
다만 결로로 인해 그런 냄새가 나지는 어렵습니다.
G 이산 2024.10.30 08:25
여름 대비 온도가 많이 떨어진 상태에선 pd.관련 악취가 현저히 줄어드는 상황이라
여름 대비 피해가 덜 할지 싶습니다.
전 관련해서 아직 셀프로 이리 뜯고 저리 뜯고 하고 있는 상황입니다
피드백도 올려주시고 수고 많으십니다.
제가 관련해서 카톡 채팅방을 열어 놓은 상태 입니다.
들어오셔서 정보 공유 해주시면 감사드리겠습니다.
G 층간냄새 2024.11.19 16:20
저희집은 점검구가  화장실 천정 벽쪽에 있어서  거길 열어보니 환풍기 가동시 그 구멍으로 악취냄새가 많이 새나오고 있더라고요  상부쪽 틈새도 있고요.
질문1. 환기공용배관의 누기는 하자 또는 공용부 문제로 관리사무실에 수리요구 할 수 있는 부분인가요?
질문2. 피트(pid)안은 원래 냄새가 나는게 정상 인가요?
G 층간냄새 2024.11.19 16:22
점검구(검정색뚜껑부분)
G 층간냄새 2024.11.19 16:25
왼쪽편 회색은 단단한 스티로폼 같은건인데 이것이 무엇이며 이걸로 마감을 해도 되는것인지 궁금합니다
M 관리자 2024.11.19 21:06
왼쪽 회색은 단열재 맞으며, 마감이라기 보다는.. 천장 속이라서 마감을 하지 않은 결과입니다.
하자보수 기간이 지나면, 아파트 관리규약을 보셔야 겠지만, 화장실 PD 와의 연결부 틈새는 전용으로 보는 경향이 대부분입니다.
틈새에 대한 것은 아래 글이 도움이 되실 것 같습니다.
https://www.phiko.kr/bbs/board.php?bo_table=z4_03&wr_id=14317
G 층간냄새 2024.11.20 15:06
천장속이라? 저기는 pid안 사진입니다
고로 pid안이라  마감을 하지 않았다 그 말씀 이시죠?
제가 궁금한것은 PD안은  환기공용관이 문제가 없이 제대로 설치되었어도
환풍기를 가동시 그 안에서 냄새바람을 유발하는것이 정상인가요?
M 관리자 2024.11.20 15:10
PD 안에서 냄새가 있는 것이 정상/비정상을 따지기는 어렵습니다.
오로지 실내 측에 영향을 미치는 마감 상태인가가 중요합니다.
G 층간냄새 2024.11.20 22:31
답변 감사합니다~~ 저희아파트는 5년차이고  냄새로 계속 하자신청을 했지만 안난다며 차일피일 미루다  단체소송이 접수됐다며 이젠 더이상 못온다며 하자보수를 올스탑했습니다.  ㅠㅠ
그때 당시는  화장실 천장안을 우레탄폼으로 대충 쏴주고 갔습니다.  그때 당시에는 이런문제에 대해서 몰라서  그렇게 당했는데    환기공용관에 누기가 있다면 관리사무실에 보수신청을 하려고 합니다.  오수,하수공용관에 누수가 생길시  공용처리되어  보수를 받을수 있는걸로 알고 있습니다. 그런데 누기에  관해서는 내용이 나와있질 않아서요  환풍기공용관의 누기에 관해서 조취사례가 있는지 궁금합니다
M 관리자 2024.11.20 22:36
냄새라는 것은 그 기준을 잡기가 어렵고, 개인별 편차도 크기 때문에 이를 정량적으로 평가할 방법이 없습니다.
그러므로 시공사에서도 거의 대응을 하지 않고 있는 것 중에 하나 입니다.
그러므로 딱히 무언가 참고할 사례도 마땅한 것이 없습니다.
G 층간냄새 2024.12.26 19:06
저희집 원인은 pd조적벽 틈새로 밑집들의 액상전자담배냄새가 원인이였습니다. 예측컨데 5명의 다른 액상향때문에 매번 다른냄새가 났으며, pd안을 지나며 이상한 냄새로 변하여  고통스런 냄새를 유발하였습니다. (저는 이제 이 냄새를 맡으면 혀가 써집니다.)그래서 굉장히  고통스럽고 힘들죠.  그러나 가해자 세대에선 노담이라고 우기며  집확인도 안시켜주고 있는 상황입니다.  밑집이 환풍기를 교체한다고 하더니  좀 나아지긴 했지만 그래도 여전히 그 냄새가 날때는 환기를 시켜야 합니다.  제가 아파트톡방에 계속 고통을 호소하니 이젠 안방화장실에선 안피고, 거실화장실에서 피는지 거실쇼파자리에서 강하게 냄새가 나네요
그나마 안방에서 안나니 다행인걸까요  그집이 외출하면  집안공기가 현저하게 청정해 집니다.  액상전자담배가 심각한건 이런 역하고 두통과 속울렁거림을 유발하는데  막상 가해세대에서 노담인척  모르쇠로 일관하면서 인접세대만 엄청난 피해를  주고 있다는겁니다. (5층윗집에선  샤워금방마친 냄새로 인식된다고합니다.)  글리세린이라 환기도 바로 잘 안되고 오래걸립니다. 한두집만 피해를 보니, 노담인척 속이고 있으면 어떻게 할수가 없다는 겁니다. ㅠㅠ  확인 결과 추정으로 밑집,밑밑집,밑밑밑밑집이 액상전자담배를 피우는걸로  예측됩니다. 저희집에 가장 피해를 주는건 밑집이고요.  밑집이 외출한거 같으면  굉장히 집안공기가 청정해 지기 때문입니다.  ㅠㅠ
Category