외단열 내단열 구분

하자관련 질문/사례
질문 전에 먼저 검색을 해주세요.


외단열 내단열 구분

G 세선 9 1,339 2024.12.26 20:41

안녕하세요.

 

외벽이 드라이비트 공법이라서 외단열 건물로 알고 있었습니다.

 

그런데 석고보드에 곰팡이가 피어서 안쪽 확인차 석고보드를 제거하고 보니 

 

안쪽에도 단열이 되어있는 것을 확인했습니다.

 

드라이비트 공법으로 된 외단열 건물이 아닌 것일까요?

 

외벽 사진과 안쪽 단열 모습 입니다.

 


외벽.jpg

 

내측 단열.jpg

Comments

M 관리자 2024.12.26 23:51
안녕하세요.
외단열 건물이라고 하더라도, 여러가지 이유로 내단열을 추가하는 경우가 있습니다.
G 세선 2024.12.27 01:38
그럼 혹시 도면을 보면 외단열 건물인지 내단열건물인지 구분이 가능할까요?
M 관리자 2024.12.27 09:09
네 가능합니다.
G 세선 2024.12.27 16:35
답변감사합니다. 질문이 많아서 죄송합니다. 어디에 문의할곳이 없어서...
도면으로 확인하는 법이 많이 어려울까요? 확인하려면 여기에 도면을 올려야될까요?
M 관리자 2024.12.27 23:38
여기에 올려 주시면 되세요.
설계사무소 이름, 주소 등이 노출되지 않도록 잘라서 올려 주셔야 합니다.
G 세선 2024.12.28 11:22
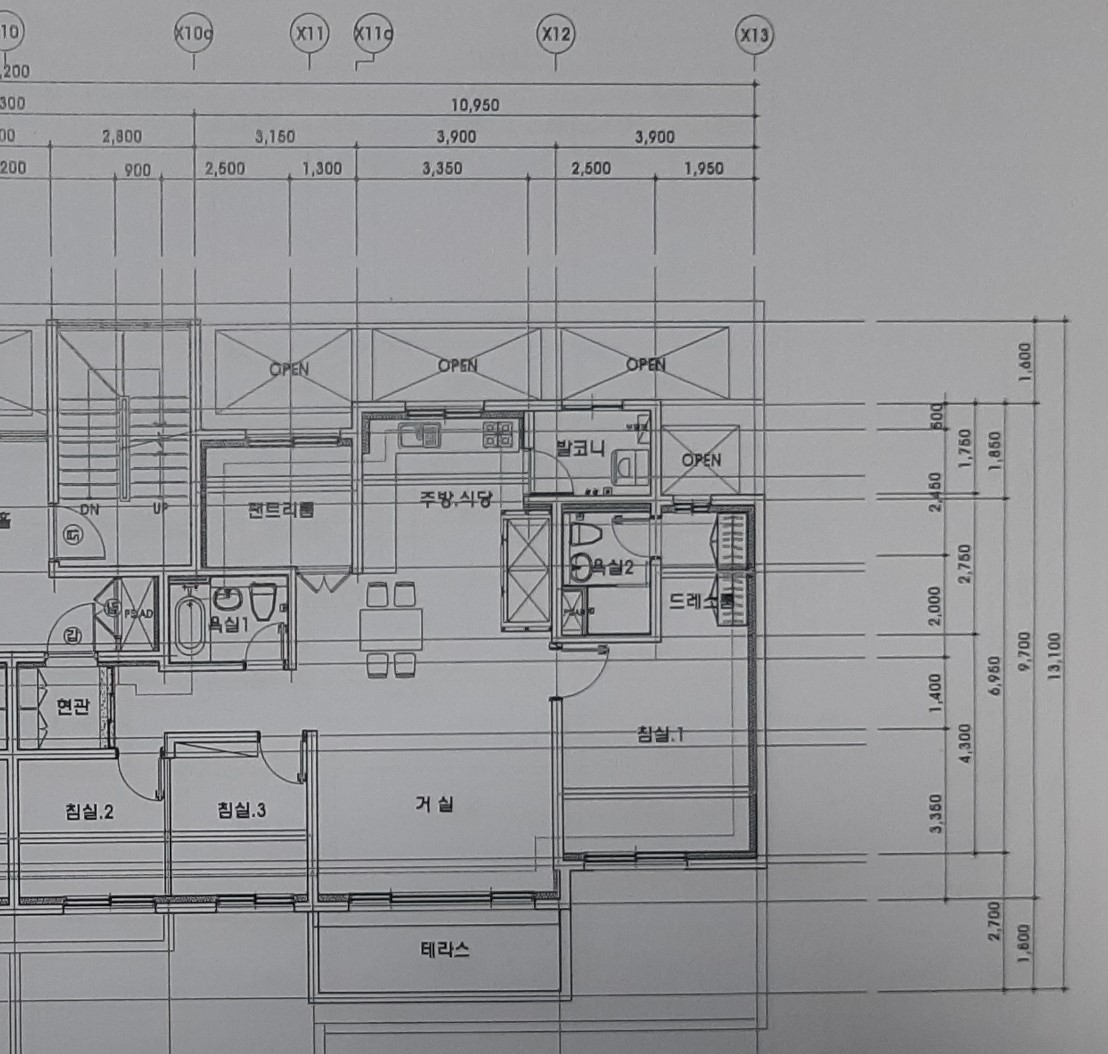
첨부하다 비밀글이 클릭이 되었는데 수정이 안되어서요. 다시 올립니다.
도면은 전형적인 내단열 구성입니다. 벽면에 회색으로 보이는 부분이 단열재 입니다.
M 관리자 2024.12.29 10:38
감사합니다.
G 세선 2024.12.29 10:50
감사합니다.
Category