세탁실 천장누수

하자관련 질문/사례

질문 전에 먼저 검색을 해주세요.


세탁실 천장누수

G 누수싫어 22 11,754 2020.10.21 18:19

안녕하세요. 

아파트 누수 관련 질문을 드리려고 합니다.

 

fe8b9d263ca904da5f96873e6f716059_1603262328_8699.jpeg
fe8b9d263ca904da5f96873e6f716059_1603262342_3217.jpeg
fe8b9d263ca904da5f96873e6f716059_1603262346_4783.jpeg
 

1.준공 20년이 넘은 아파트이고 거주하는 층은 18층 현재 세입자가  

살고 있습니다.

세탁실 천장에 누수가 있는데 관리사무소 직원과 동행해서

윗층으로 가서 세탁실 벽 하단 점점구를 통해서

보니 위에 천장에 물이 맺혀 있는 걸 확인했고 

20층에 사람이 없어서 더 이상 확인은 어려웠습니다.

19층은 천장과 기둥부분에 심한 곰팡이가 피어 있구요.

관리실에선 외벽을 의심하고 있는데 지금 당장은 어떤 조치를 취하는 것은 

어렵다는 입장이고 월말쯤 되어야 가능하다고 합니다.

 

※ 창문 왼쪽 옆 모서리 위에서 쭉 아래까지 결로처럼 축축하고 상태가 좋지 않아서 

   규조토페인트로 시공하였지만 이번에 보니까 페인트가 부풀어 있는 부분이 많네요

 

fe8b9d263ca904da5f96873e6f716059_1603263004_9184.jpg
fe8b9d263ca904da5f96873e6f716059_1603263010_2292.jpg
fe8b9d263ca904da5f96873e6f716059_1603263014_9345.jpeg
fe8b9d263ca904da5f96873e6f716059_1603263017_7192.jpeg
 

2.세탁실로 들어가는 입구 옆 벽 하단 도배에 누수로 보이는 흔적이 있구요

저런 현상이 있는 걸 인지한 건 재작년인데 누수테스트를 해 봐도 전혀 

이상이 없어서 지켜 보기로 했는데 마침 그 무렵 윗집에서 누수가 있어서 도배 마감을 

우리에게 해 줬고 수리를 해서 재누수는 없었는데 

또 얼마 안가서 저 부분만 조짐이 보이더니 지금 상태가 되었습니다.

만져보면 젖어 있지는 않고 하단 몰딩도 영향을 받은 것으로 보입니다.

아랫집엔 누수로 인한 문제제기나 연락은 지금까지 없는 상태입니다.

관리사무소는 이 부분은 세대 배관문제일 가능성이 크고 윗집과는 관계가 없는 것으로 봅니다.

 

3,아파트의 냉온수 배관과 난방본관(보일러->싱크대 분배기)이 메타폴배관이고

여기저기서 배관문제로 고생하는 세대가 점점 늘어나서 원인에 관계없이

예방적으로 위 배관전체 교체를 하려고 공사일정을 잡아 놓았습니다. 

 

※ 4개의 그림 중에 위 2개는 최조 인지시 찍은 사진입니다

 

질문1 

어떤 부분의 누수 가능성이 높은 걸까요?

우리쪽 배관 문제라면 이 정도 기간이면 아랫집에서 무슨 크레임이 들어 올 것이고 

벽지가 항상 젖어 있을텐데 그것도 아닌 것같고 너무 답답하네요.

 

질문2

설비사장님은 벽 하단 부위도 위에 누수와 관련이 있을 수 있다고 합니다.

원인과 상관없이 교체하기로 결정했는데 그대로 진행을 해도 될까요?

다시 일정을 바꾸기가 어려워서요.

혹시 우리쪽 이상이 아닌 경우를 대비해서 그 부위나 주변 배관을 사진과 동영상으로 꼼꼼히 촬영하고 향후 원인 제공자에게 부분도배비용를 청구하려고 하는데 가능할지요?

Comments

M 관리자 2020.10.21 22:17
맨 처음 사진의 천장에 ㄴ자로 꺾여서 벽 속으로 들어간 배관은 무엇인지 혹시 아니나요?
M 관리자 2020.10.21 22:33
그리고 이 역시 세탁실과 지금 누수가 진행되는 벽체 사이의 벽에 지나는 배관이 있는지를 보셔야 합니다.
비록 오래된 건물이라서 도면이 없을 가능성이 있지만.. 그래도 한번 물어봐 주세요..
G 누수싫어 2020.10.21 23:25
1. 확실하진 않지만 위치상으로 봐선 세탁실 배수구 육가 드레인 배관인 것 같습니다.
  아래 바닥에 배수구의 위치와 일치합니다.

2. 시간이 많이 걸리더라도 노력해 보겠습니다.
  위생도면이라고 하면 될까요?
M 관리자 2020.10.21 23:30
네.. 위생배관도 입니다.
M 관리자 2020.10.21 23:31
정황상 누수가 맞아 보입니다. 미세한 누수...

세탁실 모서리 누수는 바닥 타일 틈으로 들어간 물 또는 (확율이 높지는 않지만) 외벽의 균열을 타고 윗집 바닥으로 들어온 물일 수도 있습니다.

벽의 누수는 배관의 누수로 보이구요.
G 누수싫어 2020.10.22 17:40
미세한 누수라고 추측하신 부분의 대략적인 누수 경로를 듣고 싶습니다.
바로 위층의 육가 배수구의 크랙 가능성이 있는 건가요?
세탁기 물빠짐이나 바닥 물청소후 틈새로 물이 흘러 들어 천장이 저렇게
되었다는 말씀이신거죠? 하단 벽 누수는 저희 쪽 배관이 원인이고...
M 관리자 2020.10.22 18:52
네.. 일단은 그렇게 추정이 됩니다.
구조체 속의 배관은 누수탐지기로 잡기가 무척 어렵거든요.
G 누수싫어 2020.10.22 19:30
그러면 저번에 바로 위층 하단 점검구를 통해 확인한 위층 ㄴ자 관이 꺽여 들어간
벽체속 천장에 붙어 있는 물기는 저희 집 천장 누수와는 관련성이 떨어진다는 말씀이군요.
다시 말하면 위층의 세탁실 전체 천장과 벽의 곰팡이나 물기와는 별개다라는...
만일 이럴 경우 그나마 제가 어떤 조치를 취해야 하나요?
사람을 불러 탐지를 해야 될지 아니면 관리사무소 처리를 보고 나서
원인을 좁혀 나가야 하는 것인지...
M 관리자 2020.10.22 22:59
네.. 별개로 보입니다.
말씀드린 바와 같이 우선 도면을 확인하는 것이 좋겠습니다.
실제 그 쪽에 배관이 지나간다면.. 탐지업체를 불러 정밀검사를 해보고, 그 역시 확인이 된다면 그 배관을 영구적으로 잠그던가 벽을 일부 깨내어서 배관을 보수해야 할 것 같습니다.
G 누수싫어 2020.10.23 21:58
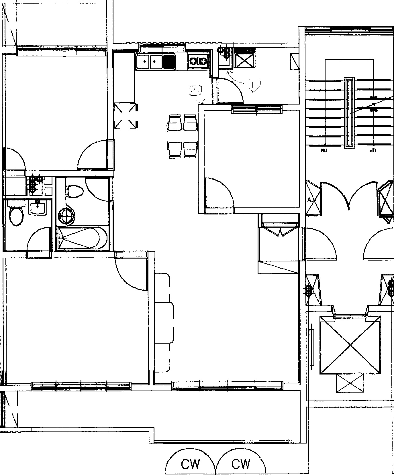
위생배관도면입니다. 난방 및 온냉수 배관 도면은 없어서 올리지 못했습니다.
G 누수싫어 2020.10.23 22:04
희미하게 표시된 동그라미 1, 2 번호가 천장누수 벽 하단 누수입니다.
M 관리자 2020.10.24 11:52
아.. 그 벽 쪽에 배관이 전혀 없는데요..
그럼 배관 누수는 아닙니다.
윗 집 또는 해당 세대의 타일 틈새로 들어온 물 같아 보이는데요. 문제는 이 것이 윗 집의 문제일 경우 벽체의 아랫 쪽 부터 젖기는 어렵다는 점입니다.

발코니에서 물을 사용하지 않는다면, 윗 세대에도 물 사용을 물어 보셔야 하는데..
걸레받이까지 다 뜯은 다음.. 이 물이 바닥에서 부터 석고보드가 빨아 올린 것인지, 위에서 부터의 누수인지를 보셔야 할 것 같습니다.
G 누수싫어 2020.10.24 17:49
주말인데도 글을 주셔서 너무 감사합니다.
지금 도면 보시면 세탁실 밖에서 문을 열면 오른 쪽에 작은 방 창문이 있습니다.
그 창 바로 아래 벽에 간단한 세탁을 할 수 있는 냉온수 수전이 있구요
보일러에서 벽 아래로 냉온수 배관이 방안으로 들어와서 방 가장자리 따라서
연결되고 마름모 같은 도형 쪽으로 나와 공용화장실로 나오는 것으로 알고 있습니다.
도면 2번 아래로 관이 통과되는 지는 잘 모르겠어요.

처음 제 추측은 벽지 하단의 오염은 냉온수 배관의 미세 크랙으로 인한 것으로 보았지만
작은 방 안쪽 가장자리며 모서리나 바닥을 살펴봐도 별다른 오염이나 변색이 없어요.
혹시 다른 곳에 문제가 있나 생각했고 마침 이번에 천장누수가 생겼고
이번 천정누수는 바로 위층이 원인이라고 생각했는데 거기도 피해가 생긴 걸 확인하고
그러면 그 위에 층이 원인이고 1차로 바로 위에서 데미지를 입고 2차로 저희 집
천장을 적시고 나머지 여분의 물이 어딘가로 흘러 내려 벽지에 영향을 줬을 것으로 생각했습니다.
근데 그럴 가능성은 답글 보니 떨어져 보이긴 합니다.
저희 집 세탁실 바닥은 세탁기 외엔 물 사용은 없어 보이는데 한번 살펴야겠네요.
여하튼 다음 주 노후 배관교체 공사를 하니까 여러가지 정보를 올리겠습니다.

※ 석고보드가 아니라 이전 두드렸을 때 그냥 시멘트인 것 같던데 마찬가지인가요?
M 관리자 2020.10.25 10:54
아.. 그렇군요..
수전이 있다면 관이 있다는 거네요..  그럼 2번 아래로 관이 직접 통과하는 지의 여부는 큰 상관이 없습니다. 균열 부위를 타고 흐르는 거니까요. 거리는 조금 있을 수 있습니다.

네 시멘트 벽도 마찬가지입니다.

배관교체 공사를 하면 더 명확해 질 것 같습니다.
G 누수싫어 2020.10.26 21:37
1. 오늘 배관공사로 인해 바닥을 일부 뜯어 보니 도면 2번 벽지 오염부분 맞은 편
  가스쿡탑 바닥 아래로 지나가는 메타폴 온수 배관이 약간 부풀어 터진 곳에서 미세누수가 뱔견되
  었고 바닥도 약간 젖어 있었는데 여기서 나온 습기를 벽이 빨아 들이면서 오염이 생겼을
  가능성이 가장 높다고 합니다. 천장누수로 인한 확률은 배제할 수 없지만 떨어진다고 하네요.

2. 도면 1번 확살표 표시에서 꺽어지는 벽면 중간 높이 정도에 세탁기와 연결되는 수전이
  있는데 오늘 배관교체를 위해 수전부분의 주위를 조금 절개하고 안쪽 벽을 보니 물이
  묻어 있는 걸 확인했습니다. 안쪽 천장에 있는 관의 누수 확율이 아주 높다고 합니다.
  벽 모서리 부분의 축축함도 같은 원인이라고 추측하고 있네요. 외부 벽면이나
  세탁실 바닥의 배수구 쪽에서의 천장 누수 가능성은 낮게 보는 것 같아요.
  바로 위층과 전화 통화를 했는데 그 쪽에서도 모서리 부분이 물기로 많이 젖어 있다고 합니다.
 
첫번째 경우에 바닥의 미세누수로 반대쪽에서 습기를 빨아 들일 수 있나요?
거리는 가운데 문보다 약간 더 넓은데도...

그리고 두번째 경우는 바로 위층보다 그 위층을 의심하고 있던데 어떻게 생각하시는지요?
저번에 점검구로 봤을 때 바로 위층 벽 안 천장 물기로 인해 더 그렇게 추측하는 것 같습니다.

조만간 무슨 결단을 해야 할 것 같은데 관리소는 외부 벽을  아직 의심 하는 것 같고
다급한 아래 위 두 집만 난감한 상황입니다. 섣불리 탐지 의뢰를 하는 것도 그렇게 쉽지가 않습니다. 그냥 고민만 많아지네요.
M 관리자 2020.10.26 22:14
1. 그럴 경우 바닥도 젖어 있어야 합니다. 그러면 석고보드가 물을 흡수하는 것은 아주 쉽게 이루어 집니다.
2. 그건 현장의 상황을 알지 못하니.. 저도 추론은 어려울 것 같습니다.

배관 누수가 있다는 것이 확인된 거 아닌가요? 망설이시는 것은 그 위의 윗집으로 부터의 누수라고 의심되는 것 때문인가요? 그렇다면.. 지금 도면의 1번 화살표가 표시된 벽체는 시멘트 벽돌로 된 벽입니다. 즉 해체가 가능한 벽이어요. 그 것을 안 쪽에 머리가 들어갈 정도로 구멍을 내어서 그 안을 살펴 볼 수 있습니다. 그렇게 라고 하셔야 할 것 같습니다.
부분 철거 후 다시 벽돌로 쌓을 필요는 없고, 점검구같은 것으로 작은 문을 만들어 놓아도 괜찮습니다.
G 누수싫어 2020.10.26 22:38
천창누수는 배관이 원인으로 확인 된 것이 아니고 그렇게 점검한 사람들 대부분 추측할 뿐입니다.
오늘 세탁기 수전부분 절개 때 확인한 몰도 안쪽 벽에 그냥 묻어 있는 걸 확인했을 뿐이고
관의 크랙이 존재하는 지는 확신이 안 서니니까...
말씀대로 해서라도 조만간 해결할려고 합니다. 날도 추워지는 데 더 이상 기다리기도 그렇네요.
M 관리자 2020.10.26 22:42
벽은 배관 누수가 확실해 보입니다. 그 하부의 젖음이.. 상부 층에서 부터 시작될 확율은 아~~~~주 극히 낮습니다.
G 누수싫어 2020.10.26 22:55
오늘 뱔견한 미세누수배관 말씀이시죠. 저는 바로 위층과 함께 두 곳의 천장 동시에 하려구요.
그게 가장 확실한 것 같고... 항상 좋은 조언 해 주셔서 감사합니다.
M 관리자 2020.10.26 23:30
네 그렇습니다.
위 층과 함께라면 더 좋겠습니다. 배관의 노후도는 모든 집이 다 같을 테니까요..
그 곳은 단열재가 없는 부분이라서.. 배관의 수명을 조금이라도 더 길게 하려면.. (가능하다면) 배관에 단열을 조금이라도 해주는 것이 좋습니다.
G 누수싫어 2021.01.22 22:55
시간이 많이 경과했지만 결과에 대해 말씀드리는 것이 예의인 것 같아 글을 올립니다.
벽지부분의 누수는 배관공사후 없어 진 것 같아요. 지금까지 확산되지는 않네요.
날 풀리면 저 부분을 어떻게 처리할지 생각중입니다. 그냥 두기는 뭐하고...

세탁실 천장누수는 아직 미해결 상태입니다. 관리실에서 이 문제를 해결하려고 했는데
아직 무소식이라네요. 기존 누수 세대의 윗 세대도 문제가 생겨 범위가 확대된 것으로 보입니다.
근데 더 이상 저 시커먼 부분이 확산되진 않아서 무슨 조화인지 모르겠네요.
보수 받는 것이 이렇게 힘들 줄 몰랐네요.
M 관리자 2021.01.23 15:30
알려 주셔서 감사합니다.
확산되지 않는 것은.. 비가 덜 오는 탓도 있고, 이 일이 알려 지면서 타 세대에서 세탁실의 물 사용을 조심하시는 경우도 있어서요. 딱히 원인이 무어라 말씀드릴 수는 없을 것 같습니다.

날 풀린 후, 봄비가 온 다음 일주일 정도 지나도 이상이 없다면 마감을 하셔도 괜찮을 것 같습니다.

아파트 보수가 참 어렵습니다. ㅠㅠ
Category