WUFI 관련 질문 1 페이지 > (사)한국패시브건축협회 (Passive House Institute Korea)
한국패시브건축협회
협회안내
임직원 및 회원사현황
조직도
인사말
주요 사업
목적 및 연혁
가입안내
협회 정관
공평성 선언문
오시는 길
공지
공지사항
협회 동정
회원사 동정
협력사 동정
보도자료 /소식
오픈하우스 소식
신청
패시브건축 인증 신청
신축
리모델링
기밀성능테스트 신청
에너지성능 현황분석 신청
건축부재 시뮬레이션 신청
실무자 교육 신청
세미나 신청
표준주택 견학 신청
장비대여신청
표준주택
표준주택
표준주택 문의
표준주택 사례
시즌1
시즌2
시즌3
시즌4
표준주택 시공과정
경량목구조
스틸하우스
RC+평지붕
자료실
기술자료
자료 내려받기
전문가 칼럼
책 소개
Passipedia 번역
질문/하자사례
자주 묻는 질문
설계/시공관련 질문
하자/불편 관련 질문
열해석관련 질문
Energy# 관련 질문
WUFI 관련 질문
이런 저런 이야기...
사례집
사례집(저에너지/패시브)
사례집(회원일반건축물)
좌충우돌 제로에너지 아파트 리모델링
인증건물 매매/임대
자재정보
단열
회원사_하이셀 : 엘에스기연
회원사_EZ Block : 이지블록
회원사_동건
회원사_정양SG
회원사_디케이보드
외단열미장마감
방수상부외단열공법(역전지붕)
회원사_주잡자재
회원사_주티푸스코리아
열교
회원사_티푸스코리아
회원사_TB Block
회원사_이비엠리더
회원사_스타빌엔지니어링
회원사_정양SG
기밀
회원사_프로클리마 : 프로클리마코리아
회원사_유로벤트 : 이루카씨앤티
회원사_SIGA : 잡자재
창호
회원사_케멀링 : 엔썸
회원사_레하우 : 유로레하우
회원사_KBE : 우신윈시스템
회원사_살라만더 : 에스알펜스터
회원사_바우엔 : 승효
회원사_디크닉 :삼익산업
회원사_트로칼 :윈체
차양
환기
회원사_SSK : 스타즈스터링코리아
회원사_은성화학
회원사_옥토아이앤씨
회원사_휴마스터
회원사_komfovent : 잡자재
협력사_대호에이엘
설비
회원사_복사냉방 : 잡자재
회원사_ 건식난방패널 : 에코-에너다임
친환경
회원사_ESB : 프로클리마코리아
협력사_코닝정밀소재
협회안내
임직원 및 회원사현황
조직도
인사말
주요 사업
목적 및 연혁
가입안내
협회 정관
공평성 선언문
오시는 길
공지
공지사항
협회 동정
회원사 동정
협력사 동정
보도자료 /소식
오픈하우스 소식
신청
패시브건축 인증 신청
기밀성능테스트 신청
에너지성능 현황분석 신청
건축부재 시뮬레이션 신청
실무자 교육 신청
세미나 신청
표준주택 견학 신청
장비대여신청
표준주택
표준주택
표준주택 문의
표준주택 사례
표준주택 시공과정
자료실
기술자료
자료 내려받기
전문가 칼럼
책 소개
Passipedia 번역
질문/하자사례
자주 묻는 질문
설계/시공관련 질문
하자/불편 관련 질문
열해석관련 질문
Energy# 관련 질문
WUFI 관련 질문
이런 저런 이야기...
사례집
사례집(저에너지/패시브)
사례집(회원일반건축물)
좌충우돌 제로에너지 아파트 리모델링
인증건물 매매/임대
자재정보
단열
외단열미장마감
방수상부외단열공법(역전지붕)
열교
기밀
창호
차양
환기
설비
친환경
메인
협회안내
공지
신청
표준주택
자료실
질문/하자사례
사례집
자재정보
0
자주 묻는 질문
설계/시공관련 질문
하자/불편 관련 질문
열해석관련 질문
Energy# 관련 질문
WUFI 관련 질문
이런 저런 이야기...
WUFI 관련 질문/요청
WUFI-FAQ (4) WUFI 시뮬레이션 결과 분석 및 평가
WUFI-FAQ (3) 공기층의 함습량과 통기층 설정
+ 4
WUFI-FAQ (2) 기상데이터 소스
+ 1
WUFI-FAQ (1) 재료물성 데이터 소스
+ 1
[WUFI Plus 에너지평가 계산에 대해 질문드립니다.]
-16
|
G
이소민
|
댓글
1
|
2025.03.27
WUFI Plus를 활용하여 건물 에너지 리트로핏 후 에너지 평가를 분석하고 있습니다. 에너지 평가 결과는 총 열획득량과 열손실량이 동일하게 열평형을 이루는 상태에 도달하기 위한 …
더보기
wufi 질문
-17
|
G
3ㄱ
|
댓글
1
|
2024.12.04
우피사이트에서 학생용 라이센스를 신청했는데 보통 언제 답장 주나요? 이틀전에 신청을 했는데 답장이 없어서요....
https://wufi.de/en/사이트
-18
|
G
rhfhe
|
댓글
1
|
2024.11.26
wufi 인터넷 사이트가 들어가지지 않은 이유 알 수 있나요?
wufi 홈페이지 안들어가짐
-19
|
G
김세은
|
댓글
2
|
2024.03.26
https://wufi.de/en/webshop/도메인에 들어가지지 않는데, 혹시 학생인증하고 wufi plus를 다운받을 수 있는 방법이 있을까요? 이리저리 다 들어가봤는데도 w…
더보기
WUFI Pro 6.7 Standing Seam Metal Roof
-20
|
G
김승후
|
댓글
5
|
2023.06.26
안녕하세요, 한국패시브건축협회 홈페이지에서 많이 배우고 있습니다. 감사합니다. WUFI 로 메탈루프를 할때 어셈블리를 어떻게 넣어야 하고 관련 설정을 어떻게 하는지 고민하는 와중에…
더보기
결로 판정 방법 관련해서 문의드립니다.
-21
|
G
wldp
|
댓글
5
|
2023.05.19
안녕하세요. 건축물 벽체의 습열거동을 주제로 연구하고 있는 학생입니다. 현재 특정한 외벽 벽체구성에서 서로 다른 단열재를 적용하였을 때 습열거동이 어떻게 변화하는지 비교하는 실험을…
더보기
WUFI 그래프에 대한 데이터와 건축재료의 위치
-22
|
1
와니
|
댓글
4
|
2022.03.08
안녕하세요 WUFI Pro 6.5를 사용하고 있는데요. 위 첨부한 사진의 예와 같이 프라운호퍼에서 배포한 가이드라인 및 교육자료나 WUFI 관련 해외 자료 등에서 WUFI를 통해 …
더보기
결로판정 방법과 건축 재료의 구분
-23
|
1
와니
|
댓글
5
|
2021.09.08
안녕하세요 WUFI Pro 6.5를 사용하고 있는 사용자입니다. 본 게시판에 있던 결로판정 방법에 대한 문의와 답변 내용을 보았습니다. http://www.phiko.kr/bbs/…
더보기
재료의 물성 변경
-24
|
1
와니
|
댓글
5
|
2021.08.25
국내 경량목구조 현장에서 자주 사용해오던 R19, R30 글라스울을 모델링하고 싶은데요. WUFI 재료 데이터베이스에는 비슷한 수준의 글라스울이 없네요. R19, R30 글라스울이…
더보기
WUFI Pro에 U-Value 기능
-25
|
1
와니
|
댓글
6
|
2021.08.17
안녕하세요 WUFI Pro 사용자 입니다. 질문에 앞서 항상 친절하고 자세한 답변 해주셔서 감사합니다. 구조체 모델링을 하고 시뮬레이션을 돌린 후에 U-Vaule 버튼을 클릭해서 …
더보기
기초 바닥에 대한 WUFI 분석 방법 및 필요성
-26
|
1
와니
|
댓글
2
|
2021.08.16
안녕하세요. WUFI Pro를 사용하고 있는 사용자입니다. 외벽, 지붕, 지하벽에 대한 WUFI 분석의 사례는 많이 보았는데 줄기초나 매트기초 바닥면에 대한 WUFI 분석 사례는 …
더보기
WUFI 기상데이터와 최소 단열기준에 관한 질문
-27
|
1
와니
|
댓글
4
|
2021.07.19
안녕하세요. 현재 WUFI Pro를 사용하고 있는 사용자 입니다. 국내 기상환경에서 지어지는 목조주택의 습열환경을 분석하면서 국내 환경에서 적용하기 적절한 인풋값에 대한 고민을 하…
더보기
WUFI 버전 업데이트
-28
|
1
우유사랑
|
댓글
2
|
2021.07.08
안녕하세요. 저는 현재 WUFI Pro 6.4를 사용하고 있습니다. 최근 6.5.2 버전까지 업데이트가 되었다는 내용을 보고 업데이트를 진행하고 싶은데요. (라이센스 기간은 많이 …
더보기
방습에 관한 질문
-29
|
G
Heinz
|
댓글
1
|
2021.06.17
안녕하세요. 외부벽 방습에 관련한 질문을 드립니다. 서울 신길동에 저에너지 4 층 목조 빌라를 건축할 계획입니다. 설계한 외부벽의 구조는 U- value 0.15 W / (m2K)…
더보기
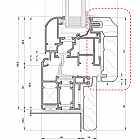
WUFI에서 목재창호 해석?
-30
|
1
nhahn
|
댓글
11
|
2020.04.20
안녕하세요, WUFI사용자는 아닌데, 질문이 있어서 글을 올립니다.WUFI에서 목재창호 프로파일에 대한 해석작업이 가능한가요?사진은 인터넷에서 찾을수있는 알루미늄 우드 창호 도면을…
더보기
철골구조 모델링
-31
|
G
rkfhtn
|
댓글
3
|
2020.03.26
안녕하세요WUFI 를 모델링하는 과정에서 궁금한점이 있어 문의드립니다.혹시 철골구조 모델링도 가능한가요??예제파일에 있는지 궁금합니다...
WUFI 관련 질문
-32
|
G
rkfhtn
|
댓글
7
|
2020.03.12
안녕하세요WUFI 프로그램 버전 관련해서 질문이 있습니다.WUFI 프로그램을 통해서 결로량(g/㎡)을 확인하고 싶은데요WUFI pro 도 확인이 가능한가요?아니면, WUFI bio…
더보기
WUFI 모델링과 관련하여 질문있습니다!!
-33
|
1
안녕하
|
댓글
8
|
2020.02.17
안녕하세요 WUFI 활용해서 건물외피 열습기 거동분석을 공부하고 있는 학생입니다.모델링하던중 궁금한 점이 있어 질문 남겨드립니다!1) WUFI를 사용해서 지붕, 벽의 모델링이 가능…
더보기
wufi material
-34
|
1
sp002211
|
댓글
2
|
2019.12.16
안녕하세요! WUFI PRO로 여러 케이스를 만들어 보고 있던 중 궁금한 점이 생겨 질문 남깁니다.XPS, EPS, MineralWool, PF가 Moisture Storage F…
더보기
콘크리트 결로
-35
|
1
sp002211
|
댓글
3
|
2019.11.13
기존 벽체가 콘크리트 300mm인 건물에 페놀폼 100mm인 단열재 + 석고보드 마감을 하는 경우를아래 첨부한 사진과 같이 모델링을 하였는데 콘크리트만 있는 경우와 단열재를 추가한…
더보기
결로판정
-36
|
1
sp002211
|
댓글
7
|
2019.11.12
안녕하세요WUFI에서 결로 판정을 할 때 ISO 13788 기준을 사용한다고 배웠는데 200g/m^2 기준치를 사용하려면꼭 벽체를 0.01m + 나머지 부분 으로 나눠서 모델링을 …
더보기
WUFI 관련해서 질문 드립니다!
-37
|
1
sp002211
|
댓글
1
|
2019.10.14
안녕하세요~WUFI내에서 모델링하는 것 외에 따로 에너지 플러스처럼 인풋 데이터를 입력하는 다른 방법이 있는지 궁금합니다!WUFI Plus는 스케치업에서 만든 모델을 불러 올 수 …
더보기
WUFI 질문 드립니다.
-38
|
1
sp002211
|
댓글
1
|
2019.09.16
안녕하세요.저번 질문글에서 WUFI pro로 응축수를 계산한 것이라고 하셨는데 계산 결과가 kg 단위로 나오는 것을 찾지 못하여 다시 질문 드립니다ㅠㅠ또한 응축수 계산 이외에도 W…
더보기
WUFI에 관련해 질문 드립니다.
-39
|
1
sp002211
|
댓글
5
|
2019.08.27
안녕하세요. WUFI Pro와 Plus에 관해 질문이 있습니다.1. Wufi Pro와 THERM의 차이점이 Mould와 관련된 것 이외에도 있는지2. Pro가 2D이고 Plus가 …
더보기
글쓰기
Search
검색대상
제목
내용
제목+내용
회원아이디
회원아이디(코)
글쓴이
글쓴이(코)
검색어
필수
Login
Login
자동로그인
회원가입
|
정보찾기
Category
자주 묻는 질문
설계/시공관련 질문
하자/불편 관련 질문
열해석관련 질문
Energy# 관련 질문
WUFI 관련 질문
이런 저런 이야기...