WUFI에서 목재창호 해석?

WUFI 관련 질문/요청

WUFI에서 목재창호 해석?

1 nhahn 11 3,723 2020.04.20 10:12

안녕하세요, WUFI사용자는 아닌데, 질문이 있어서 글을 올립니다.

 

WUFI에서 목재창호 프로파일에 대한 해석작업이 가능한가요?

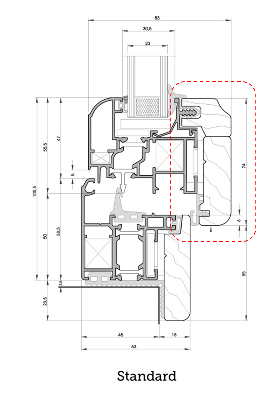
사진은 인터넷에서 찾을수있는 알루미늄 우드 창호 도면을 예시로 했습니다. 표시한 부분이 실내측의 해석하고자 하는 목부재 부분이구요. 실내면은 목재, 실외면은 알루미늄이며 알루미늄 프로파일 중간에 PA단열바가 있습니다. 

 

실내온습도 고정(e.g. 20C, 50%)/실외온습도 연간기상데이터 기준 상태에서 

1) 해당 목부재의 연간 함수율 변화

2) 해당 목부재의 연간 표면/내부결로 판정

을 보고자 합니다. 

결로판정만 보면 THERM에서도 가능하겠지만, 연간데이터 확인+부재 함수율 변화는 WUFI에서만 가능할거 같아서요. 근데 창호 대상 해석은 WUFI에선 사례를 못본거 같아요...

 

질문.

1. WUFI에서 해당 내용에 대한 해석이 가능한지요?

2. 만약 가능하다면, WUFI PRO에서도 제한적으로나마 가능한지요? 아니면 2D나 PRO에서만 해석이 가능한 내용인지...

Comments

6 Hun0524 2020.04.20 10:32
안녕하세요
질문해주신 창호와 관련된 습열거동 분석은 WUFI 2D 프로그램을 활용하여, 목부재의 연간 함수율 변화와 내부결로 판정이 가능합니다.
Pro 에서는 해당 부재를 표현할 수가 없기 때문에 제한적으로도 불가능합니다.
1 nhahn 2020.04.21 01:15
감사합니다. 혹시 창호 관련 해석 사례를 확인할 수 있는 자료(Technical Report, Paper 등)가 있다면 알려주실 수 있나요?

그리고, WUFI 2D에서 가능하다면, Plus에서도 가능한 거겠지요?한번 가늠해보기 위한 테스트를 해보고싶은데 2D는 무료버전이 제공되지 않는것 같고 plus는 가능한 거 같아서요...
6 Hun0524 2020.04.21 15:53
WUFI 2D 프로그램을 활용하여 협회에서 창호부위를 분석했던 사례는 존재합니다.
프로파일이 아닌 창호 연결부위를 분석한 적이 있습니다.

프라운호퍼에서 발간한 테크니컬 노트도 있지만, 독일어입니다 ㅠ ㅠ. (독일 WUFI 홈페이지 문헌 부분에 있는 것으로 알고 있습니다.)

PLUS 에서는 벽체의 단면 구성과 창호 설정만 가능하기 때문에 창호 세부적인 부재 표현은 불가능합니다.

올려주신 창호도면에서 목재부위는 실내측에 노출되어 있어, 함습량 변화가 크지는 않을 것으로 보여지나, 도면과 다른 목재 프로파일의 데이터는 WUFI 2D를 통해서만 분석이 가능할 것 같습니다.
1 nhahn 2020.04.22 16:55
답변 감사합니다. 테크니컬 노트는 자료를 다시 찾아보겠습니다.

아...그리고 참고로 함수율 변화를 보려는 이유는,

1)환기/제습/가습 등의 습기관리가 제대로 이루어지지 않은 주택의 경우, 경험적으로 종종 겨울철 20%대에서 여름철 7~80%대 사이의 실내습도를 가지는 상황에 놓이게 된다고 보고, 이에 따른 부재 변형이 발생하지 않을까 하는 판단(물론 관리를 잘하는 집들은 논외)
2)목재에 내부/표면결로 발생 후 관리미숙으로 방치 시 이 또한 함수율에 영향을 주어 결국 변형으로 이어지지 않을까 하는 생각

이었습니다. 개인적 궁금증이자 취미로 진행하는 연구이긴 합니다^^
M 관리자 2020.04.22 23:11
두가지 측면에서 그렇게 심각하게 접근할 것은 아닌 것 같은데요.

1. 응력을 받는 구조용 부재가 아니며,
2. 목재의 변형은 목재의 함수율과 큰 연관이 있습니다. 이런 부자재는 함수율 9% 미만의 목재를 사용하셔야 하는데, 그 조건만 지켜 주시면 실내의 습도 변화와 무관하게 변형은 없을 것입니다.
1 nhahn 2020.04.23 17:03
음...그럴수도 있겠군요. 그렇다면 다시한번 질문 드립니다.

1)새로 사진을 첨부하였는데, 위와 같이 목재가 일부(목재가 전부 하중을 받는 경우도 있더군요)하중을 담당하는 형태일 경우엔 상황이 달라질 수 있지 않을까요?

2)초기함수율이 8~10% 수준인 목재라 하더라도, 지속적으로 고습/저습 조건 하에 놓이면 해당 조건에 맞게 함수율이 평형을 이루게 될 것이고, 그렇게 되면 결과적으로 계절에 따른 수축변위가 발생할거라 생각하는데 (예를 들어 여름에 15%까지 올라갔다가 겨울에 10%로 떨어지면 5%에 해당하는 수축변위 발생하여, 이것이 창짝의 변형과 이에 의한 유리굴절 및 파손 등으로 연결)

개인적으로 생소한 분야인데 공부하면서 고민하는중이다 보니 부정확한 이해를 바탕으로 하고 있을 수 있습니다. 틀린 가정이라면 아낌없이 조언해주세요!

그리고...바쁘실텐데 짬내서 답변 달아주셔서 항상 감사합니다^^
M 관리자 2020.04.23 17:32
1. 이 부분은 구조의 영역이어요. 습기와는 상관없는... 그러므로 해석을 하시면 될 것 같습니다. 예로 들은 창호도 그런 해석을 통해서 프레임의 크기가 정해진 것일 테니까요
2. 나무를 조금 공부해 보시면 좋을 것 같은데요. 일정 함수율 이하로 내려가면 (변형이 생길 정도의) 수분을 흡수하지 않습니다. 수종마다도 조금씩 다르니, 어떤 나무로 만들지를 함께 고민해 보시면 되실 것 같습니다.
1 nhahn 2020.04.28 09:06
감사합니다. 좀더 고민해 보겠습니다! 어렵군요 ㅠㅠ
6 gklee 2020.07.13 00:01
"일정 함수율 이하로 내려가면 (변형이 생길 정도의) 수분을 흡수하지 않습니다"의 값을 표현하기위한 명칭이 있나요? 재흡수율이라던가..
M 관리자 2020.07.13 09:35
그런 표현이 있을 수도 있겠습니다만, 건축분야에서 사용되지는 않았습니다. 저 역시 그러하구요.
그 표현이 필요한 이유가 있으실까요?
6 gklee 2020.07.13 10:51
그 값으로 자재를 구분하고싶어서요. 그 표현으로 검색하면 그 물성이 높은순서대로 정리된 자료도 있을것같구요. 제가 DIY로 제작해야하는 부분들이 꽤 있는데 그 물성이 어느정도 이상인것들 가운데서 고르고싶구요.(예-자작나무합판의 ㅇㅇㅇ값)
Category