EZBlock 김천 율곡동 RC주택 _ 갬성 인테리어(협회 인증주택)

협력사 동정

EZBlock 김천 율곡동 RC주택 _ 갬성 인테리어(협회 인증주택)

2 EZBlock 4 1,674 2024.06.02 11:38

안녕하세요. EZBlock 입니다!

오랜만에.. 김천 RC주택(협회 인증주택)에 적용되고 있는 최신 트랜드의 인테리어 과정을 소개해 드립니다.

 

EZBlock 시스템은 패시브하우스의 5대요소 중, 3대요소(단열/열교차단/기밀)를 EZBlock 시스템 하나로 구현할 수 있습니다.

나머지 고성능 창호와 열회수환기장치는 협회에서 인증받은 제품과 시공협력사를 통해 구현해 나갑니다.

결국, 패시브하우스는 거주하는 사람이 건강하고 쾌적하게 거주할 수 있는 환경을 구현하는데 가장 큰 목적이 있습니다.

 

하지만, 인간의 욕구는 채워진 하나로만.. Never, 만족하지는 않는것 같습니다~ㅠ

결국, 이러한 욕구로 인해 세상은 점점더 개선되고 발전되어 왔으며.. 앞으로도 그러할것이라 생각됩니다.

 

패시브하우스는 EZBlock 시스템을 통해 구현하고 성능을 만족하는 것은 어렵지 않으나..

내부를 최신 트랜드에 맞게 꾸미는 일과 역할은 또 다른 전문가 집단이 개입 되어야 합니다.

기본적으로 건축설계 당시, 내부 인테리어에 대한 계획과 마감 계획을 세우지만..

(다들 아시겠지만..) 가장 일반적인 수준(도배/장판)에 그칠 수 밖에 없습니다.

 

또 다른 나만의 감성(갬성^^)을 위해서는 또 다른 투자가 필요하기도 합니다.

(자본주의 논리이지만.. 그 결과는 확실히 다르긴 합니다~ㅠ)

 

김천주택은 처음 설계단계부터.. 그렇게 계획 되었습니다.

구조와 패시브 성능은 EZBlock RC 외단열 시스템으로 계획하고, 냉난방 설비는 복사냉난방(잡자재)으로 실내는 최신 트랜드를 반영한 전문 인테리어 업체를 통해 진행한다는 점이 일반적인 현장과 달랐던 점입니다.

 

지금까지는 계획한 대로 EZBlock 시스템을 통해 패시브성능을 구현한 상황이니..

본격적으로 실내 인테리어 과정에 대한 설명을 드리고자 합니다.

 

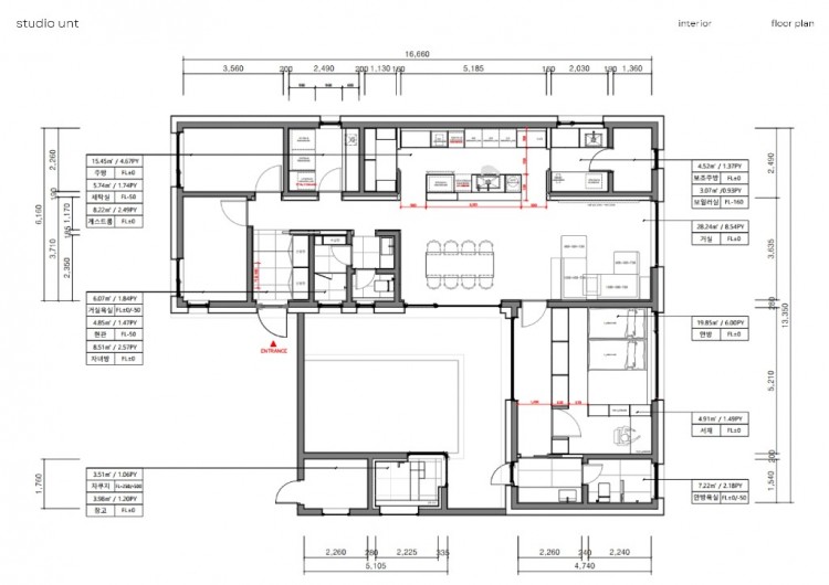
참고로 인테리어는 "인테리어쇼(인쇼)"의 파트너사인 'Studio unt"에서 설계 및 컨설팅(자재선정 및 시공감리)을 진행하고 실제 현장시공은 건축주분이 지정한 해당 지역의 인테리어 업체에서 진행하고 있습니다.

 

11.jpg

 

2.jpg

 



본격적인 인테리어 작업 전..

EZBlock RC 구조 및 단열 시공 이후, 직영 현장이다보니 건축주분이 직접 허드렛일은 손수 작업 하였습니다.

 

아래 사진은 시스템창호 시공, 열회수 환기장치 배관 시공 이후.. 바닥 평활도용 기포 콘크리트를 일반적으로 사용하는데 반해, 김천 현장은 건축주분이 석분을 이용해 일일이 바닥을 고르며 작업을 진행하였다고 합니다~ㅠ

(이후 순차적으로.. 비닐 - 단열재 - 비닐 - 엑셀배관 - 방통 순으로 진행 되었습니다!)

 

3-1.jpg

 

3-2.jpg

 

3-3.jpg

 

3-4.jpg

 

일반적인 콘크리트 구조의 벽체 평활도를 육안으로 정밀하게 판단하는것은 매우 어렵습니다.

벽체 평활도 및 창호 개구부 치수의 정확도는 후속공정인 인테리어 하시는분들의 현장평가가 가장 정확합니다!

 

EZBlock 시스템의 장점 중 하나가 벽체 평활도 및 개구부의 치수 정확도가 매우 높다라는 점입니다.

이러한 장점은 잘 알려지지 않은 부분이지만.. 김천 현장을 통해 재조명 하고자 합니다.

 

건축주분으로 부터 전해들은 이야기는 현장에서 인테리어 목수분들이 전하기를 "수십년동안 콘크리트 현장을 봐왔지만.. 이렇게 (외벽)벽체 평활도가 좋은 현장은 처음이다.. 특히 창호부 각도(90도)와 치수가 너무 정확하다" 라는 칭찬을 받았다고 합니다^^

 

 

4.png



위 사진은 EZBlock이 접하는 외벽으로.. 동일한 조건에서 목작업이 이루어 지고 있는 상황에서 콘크리트 벽체와 석고보드 사이의 공간이 일정하게 유지되고 있음을 알 수 있습니다.

 

아마도 현장에서의 판단은 외벽은 평활하니.. 얇은 각재 하나로도 충분하다고 판단하였을 것이고, 면을 맞추기 위한 추가적인 작업은 필요하지 않다고 판단하였기에 가능한 결정이라 생각됩니다.

 

이는 지금까지 인식되어온 국내 콘크리트 현장의 불신으로 인해 EZBlock 현장까지 도매급으로 취급 받는것에 대한 항변의 표현이며.. 협회에서 유일하게 일체타설이 인정되는 EZBlock 시스템임에도 불구하고.. 협회 유투브를 통해 일반인들에게 전달되는 것은 일체타설을 금지한다로 각인되어.. 그로인해, 역설적이게도 직접적인 피해를 보고 있는 EZBlock 시스템이 처한 저항의 몸부림 일수도 있습니다~ㅠ

(김천 주택을 통해 EZBlock RC 외단열 시스템의 장점과 가치를 재 각인 시키기 위함이기도 합니다~^^)

 

5.png



EZBlock 외단열 시스템의 유로폼 체결 이미지로 이지블록은 유로폼을 안정되게 지지하는 지그(Jig) 역할을 완벽히 수행해 냅니다.

 

이러한 결과로 인해 유로폼과 유로폼과의 체결에서는 절대, 확보할 수 없는 벽체 평활도를 EZBlock 시스템에서는 구현할 수 있는 비결이기도 합니다!

 

 

6.png

 

위의 이미지는 동일한 김천현장의 내벽으로.. EZBlock이 개입되지 않는 내부 칸막이벽이며, 유로폼과 유로폼만의 체결로 이루어 지다보니.. 벽체 평활도를 외벽만큼 확보 할수가 없는 것입니다.

하여, 사진에서 확인할 수 있듯이.. 각재 여러개를 이용해 면을 맞추는 작업이 진행되었습니다.

 

결국, 이러한 상황이 누적되면.. 자재와 품도 늘어나고, 그 만큼 실내공간도 줄어드는 결과로 이어집니다~ㅠ

 



7-1.jpg

 7-2.jpg



현재, 실내 인테리어 작업중이며.. 건축주분이 촬영하여 보내주신 사진을 게제하고 있습니다~!

 

 

-----------------------------------------------------------------------------

 



다음은 인쇼 파트너사인 "studio unt"에서 보내주신 컨셉 이미지입니다.

현장 이미지와 매칭시켜 보시면 대략.. 유추가 가능할듯도 합니다!

 

컴퓨터로 모델링한 컨셉의 이미지 이지만.. 멋져 보입니다!

그리고, 자재 선정 및 기획이..

일반적인 건축설계에 동반되는 기본적인 인테리어 계획과 다르긴 합니다~^^



8.jpg

9.jpg

10.jpg

10.jpg

12.jpg

13.jpg

15.jpg

14.jpg

16.jpg

17.jpg

18.jpg

 

이대로 구현된다면.. 멋진 주택이 완공될것 같습니다.

 

패시브하우스 성능에 최신 트랜드와 갬성(감성)이 녹아든 인테리어.

쾌적의 끝판왕 복사냉난방 시스템(열회수환기장치 포함).

여기에 사용자 편리성이 가미된 최첨단 홈 IOT 시스템 구축.

 

벌써부터, 기대가 됩니다^^

 



PS.

시각적으로 멋진 감성의 인테리어 뒷면에서.. 시간이 지날수록, 결로가 생기고 곰팡이 냄새가 난다면.. 그 멋진 감성 인테리어도 무용지물이 됩니다!

(집안 전체의 단열을 아무리 두껍게 잘 하였다고 하여도.. 어느 모서리 지점 한곳에만 곰팡이가 발생해도 그 냄새를 근본적으로 없애기는 어렵습니다!)

 

본 글의 취지는 멋진 감성의 인테리어 이전에 선행되어야 할 구조의 건전성, 북측 비난방 구간에서도 결로와 곰팡이가 발생되지 않는 패시브수준의 단열, 열교 차단, 기밀성능이 우선되어야 함을 전달하기 위한 목적이 더 크며, 계획의 우선순위에서 쾌적성을 담보할 수 있는 부분의 투자가 선행되고 난 이후 일 때.. 멋진 갬성의 인테리어가 더 돋보일 수 있다는 취지입니다^^

 



----------------------------------------------------------------------



EZBlock이 추구하는 가치가 반영된 김천주택!


오래간만에 EZBlock 시스템으로 지어진 RC주택이 완공되어 갑니다.

아마도.. 준공시점이 여름철 장마기간 또는 폭염 및 열대야가 지속되는 시점이 될 듯 합니다.

 

하지만, 김천주택은 여름철 긴 장마로 인한 습한 환경, 폭염으로 인한 열대야 등 기후변화로 인한 극한적인 외부환경에도 대응할 수 있는 주택입니다.

무엇보다 콘크리트 주택의 최대 강점인 축열성능을 극대화 시켜줄 복사냉난방 시스템이 큰 역할을 할것으로 기대해 봅니다.

 

준공시점에 김천주택의 오픈하우스가 예정되어 있으니.. 많은 관심 부탁드립니다.

감사합니다~!

 

 

EZBlock 김천주택 RC구조(기초 & 벽체) 시공편 (다시보기)

 

 

 

 

Comments

10 디엔에이ㅣ신범석 2024.06.02 09:18
기대되는 현장입니다.
오픈하우스 행사를 진행하시면, 참석하도록 하겠습니다.
2 EZBlock 2024.06.02 11:34
신소장님! 오픈하우스 기대해주셔도 좋습니다^^
1 바림 2024.06.03 14:02
정말 기능적으로도 디자인으로도 멋진 집이 완성될것 같습니다
오픈하우스가 기대됩니다
2 EZBlock 2024.06.03 19:22
바림님, 패시브하우스 성능에 최신 트랜드가 반영된 갬성이 있는 인테리어까지..
저희도 기대가 됩니다^^
Category