[*]용인 영덕동 배관설계도면 올려드립니다.
한국패시브건축협회
협회안내
임직원 및 회원사현황
조직도
인사말
주요 사업
목적 및 연혁
가입안내
협회 정관
공평성 선언문
오시는 길
공지
공지사항
협회 동정
회원사 동정
협력사 동정
보도자료 /소식
오픈하우스 소식
신청
패시브건축 인증 신청
신축
리모델링
기밀성능테스트 신청
에너지성능 현황분석 신청
건축부재 시뮬레이션 신청
실무자 교육 신청
세미나 신청
표준주택 견학 신청
장비대여신청
표준주택
표준주택
표준주택 문의
표준주택 사례
시즌1
시즌2
시즌3
시즌4
표준주택 시공과정
경량목구조
스틸하우스
RC+평지붕
자료실
기술자료
자료 내려받기
전문가 칼럼
책 소개
Passipedia 번역
질문/하자사례
자주 묻는 질문
설계/시공관련 질문
하자/불편 관련 질문
열해석관련 질문
Energy# 관련 질문
WUFI 관련 질문
이런 저런 이야기...
사례집
사례집(저에너지/패시브)
사례집(회원일반건축물)
좌충우돌 제로에너지 아파트 리모델링
인증건물 매매/임대
자재정보
단열
회원사_하이셀 : 엘에스기연
회원사_EZ Block : 이지블록
회원사_동건
회원사_정양SG
회원사_디케이보드
외단열미장마감
방수상부외단열공법(역전지붕)
회원사_주잡자재
회원사_주티푸스코리아
열교
회원사_티푸스코리아
회원사_TB Block
회원사_이비엠리더
회원사_스타빌엔지니어링
회원사_정양SG
기밀
회원사_프로클리마 : 프로클리마코리아
회원사_유로벤트 : 이루카씨앤티
회원사_SIGA : 잡자재
창호
회원사_케멀링 : 엔썸
회원사_레하우 : 유로레하우
회원사_KBE : 우신윈시스템
회원사_살라만더 : 에스알펜스터
회원사_바우엔 : 승효
회원사_디크닉 :삼익산업
회원사_트로칼 :윈체
차양
환기
회원사_SSK : 스타즈스터링코리아
회원사_은성화학
회원사_옥토아이앤씨
회원사_휴마스터
회원사_komfovent : 잡자재
협력사_대호에이엘
설비
회원사_복사냉방 : 잡자재
회원사_ 건식난방패널 : 에코-에너다임
친환경
회원사_ESB : 프로클리마코리아
협력사_코닝정밀소재
협회안내
임직원 및 회원사현황
조직도
인사말
주요 사업
목적 및 연혁
가입안내
협회 정관
공평성 선언문
오시는 길
공지
공지사항
협회 동정
회원사 동정
협력사 동정
보도자료 /소식
오픈하우스 소식
신청
패시브건축 인증 신청
기밀성능테스트 신청
에너지성능 현황분석 신청
건축부재 시뮬레이션 신청
실무자 교육 신청
세미나 신청
표준주택 견학 신청
장비대여신청
표준주택
표준주택
표준주택 문의
표준주택 사례
표준주택 시공과정
자료실
기술자료
자료 내려받기
전문가 칼럼
책 소개
Passipedia 번역
질문/하자사례
자주 묻는 질문
설계/시공관련 질문
하자/불편 관련 질문
열해석관련 질문
Energy# 관련 질문
WUFI 관련 질문
이런 저런 이야기...
사례집
사례집(저에너지/패시브)
사례집(회원일반건축물)
좌충우돌 제로에너지 아파트 리모델링
인증건물 매매/임대
자재정보
단열
외단열미장마감
방수상부외단열공법(역전지붕)
열교
기밀
창호
차양
환기
설비
친환경
메인
협회안내
공지
신청
표준주택
자료실
질문/하자사례
사례집
자재정보
0
표준주택
표준주택 문의
표준주택 사례
표준주택 시공과정
공동구매
[*]용인 영덕동 배관설계도면 올려드립니다.
G
함석진
7
13,207
2019.03.18 22:03
1,169
181212_영덕동 1087-31 단독주택_1F.pdf (408.1K)
2019.03.18
157
181212_영덕동 1087-31 단독주택_2F.pdf (240.3K)
2019.03.18
안녕하세요
말씀하신대로 설계도면 올려드립니다.
저는 저희집이 설계가 어려울줄 모르고^^;; 사전에 올려드릴 생각을 못했습니다.
참고가 되었으면 좋겠네요.
잘 부탁드립니다.
출력
Comments
M
관리자
2019.03.18 22:18
감사합니다. 훨씬 빠르게 진행될 수 있을 것 같습니다.
감사합니다. 훨씬 빠르게 진행될 수 있을 것 같습니다.
G
함석진
2019.03.19 09:08
삭제
다행이네요^^ 연락 기다리겠습니다~
다행이네요^^ 연락 기다리겠습니다~
6
오대석
2019.03.22 12:54
배관 작업을 위한 의견을 먼저 보내드립니다.
본 의견은 절대적인 것은 아니므로 소개해드린 양지시스템 사장님과 현장 조건 등을 고려하여 다시 한번 협의 부탁드립니다.
1. 외부 공기 흡기구는 다용도실 측 벽면에 설치하여 배기구와 보일러 연도, 화장실 배기구와 벽면을 달리하여 설치하도록 하는 것을 추천 드립니다.
2. 작업실 문을 SD(철재문)으로 하셔서 급기된 공기가 문 하부 틈으로 빠져 가가는 구조가 만들어 질 수 없을것 같기도 합니다. 그럴 경우 내부에 배기를 하나 더 추가하는 것도 검토해 주십시요
3. 다락층의 급기구는 겨울처 외부의 건조한 공기를 공급하여 천창의 결로를 조금 줄일 수 있지 않을까해서 배치해 보았습니다.(효과 여부는 확실치 않습니다.^^;)
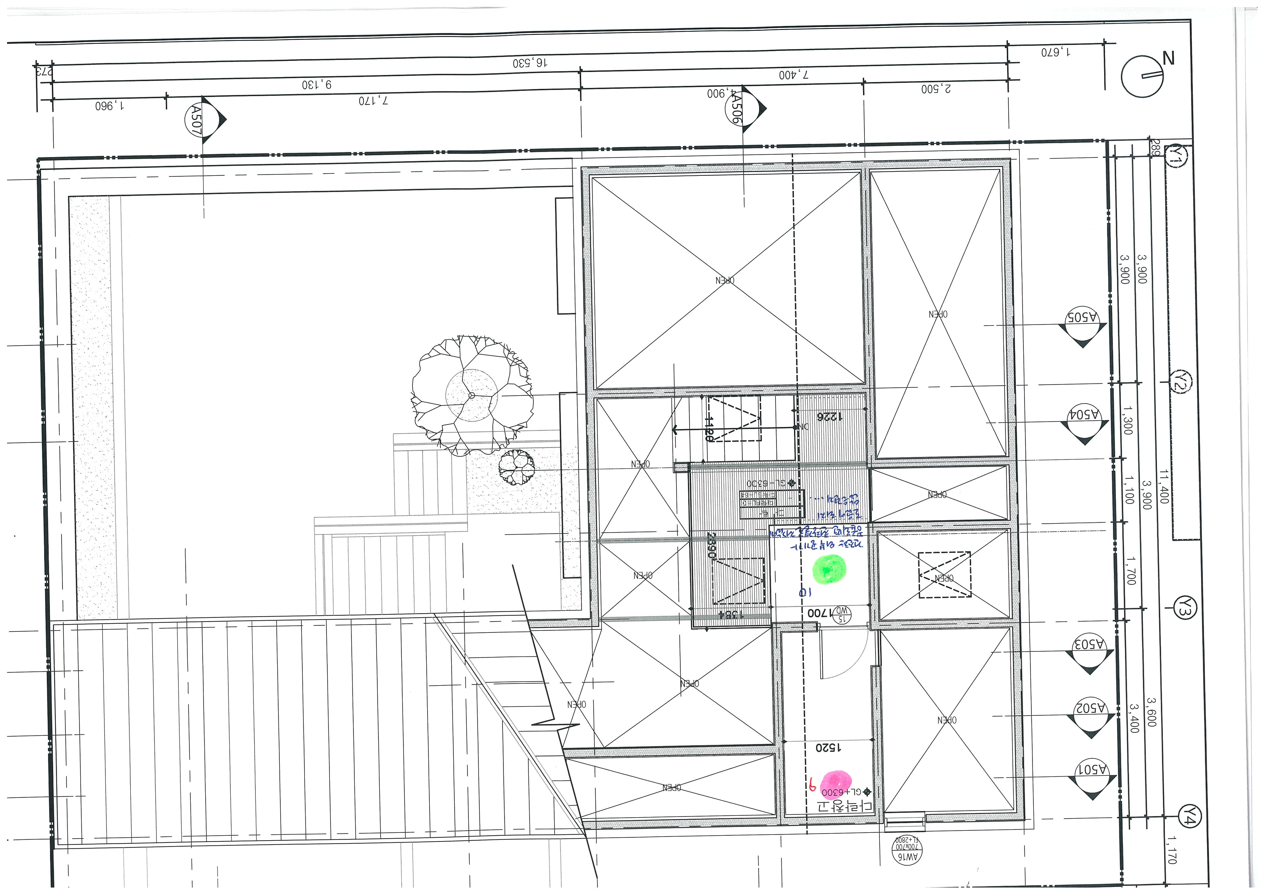
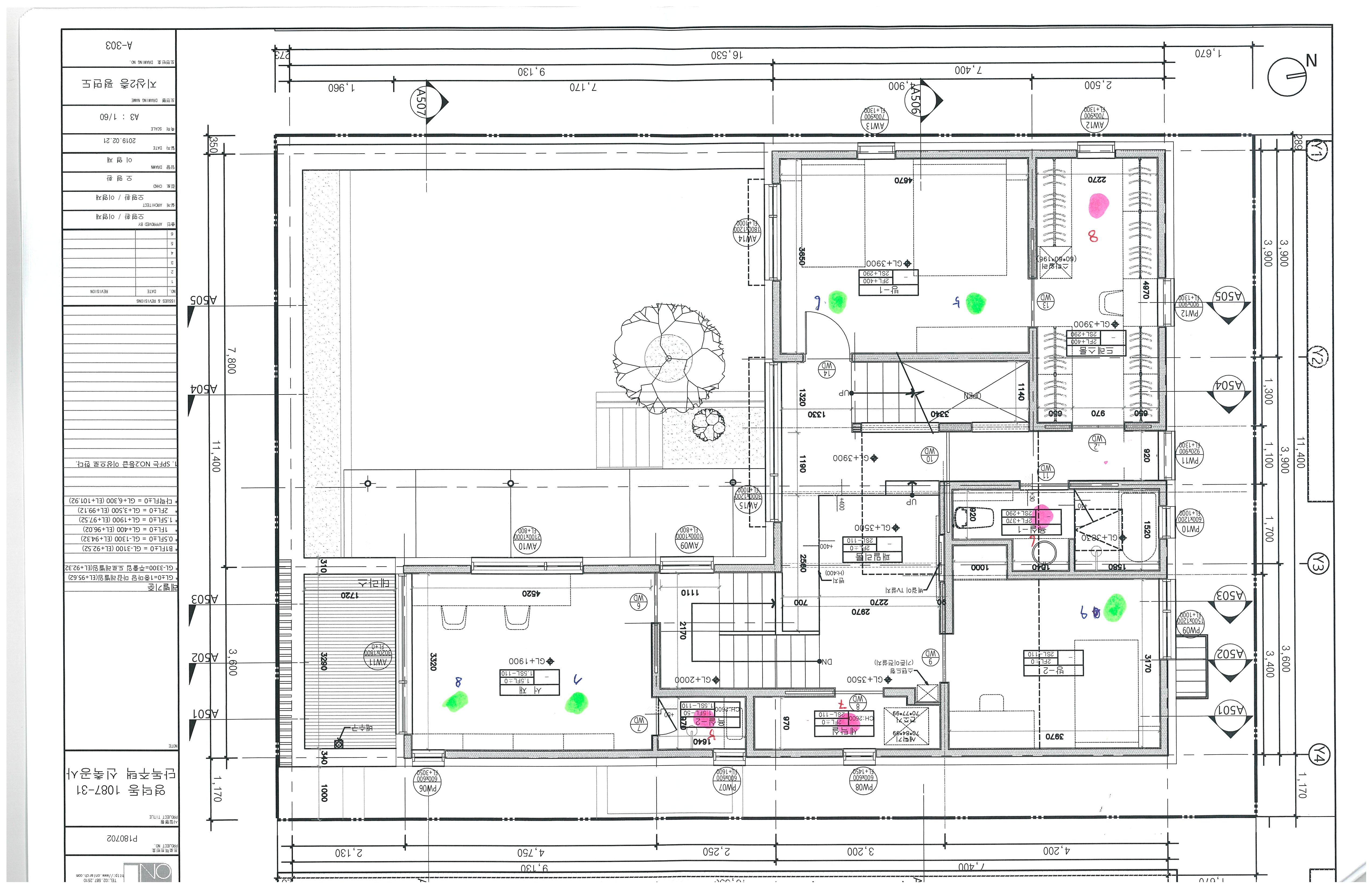
배관 작업을 위한 의견을 먼저 보내드립니다. 본 의견은 절대적인 것은 아니므로 소개해드린 양지시스템 사장님과 현장 조건 등을 고려하여 다시 한번 협의 부탁드립니다. 1. 외부 공기 흡기구는 다용도실 측 벽면에 설치하여 배기구와 보일러 연도, 화장실 배기구와 벽면을 달리하여 설치하도록 하는 것을 추천 드립니다. 2. 작업실 문을 SD(철재문)으로 하셔서 급기된 공기가 문 하부 틈으로 빠져 가가는 구조가 만들어 질 수 없을것 같기도 합니다. 그럴 경우 내부에 배기를 하나 더 추가하는 것도 검토해 주십시요 3. 다락층의 급기구는 겨울처 외부의 건조한 공기를 공급하여 천창의 결로를 조금 줄일 수 있지 않을까해서 배치해 보았습니다.(효과 여부는 확실치 않습니다.^^;)
6
오대석
2019.03.22 12:55
2층
2층
6
오대석
2019.03.22 12:57
다락
다락
6
오대석
2019.03.22 12:58
죄송하지만 여러번 수정하여 시도했는데 계속 도면이 거꾸로 업로드 되네요 ^^;
연두색이 급기 / 분홍색이 배기 입니다.
그리고 현재 도면에서 장선 하부에 덕트가 지나갈 수 있는 공간이 없거나 부족한 상황입니다. 이 부분도 같이 협의하시며 진행하고, 건축공사 진행하는 업체 분들과도 같이 협의가 되어야 할 부분입니다.
감사합니다.
죄송하지만 여러번 수정하여 시도했는데 계속 도면이 거꾸로 업로드 되네요 ^^; 연두색이 급기 / 분홍색이 배기 입니다. 그리고 현재 도면에서 장선 하부에 덕트가 지나갈 수 있는 공간이 없거나 부족한 상황입니다. 이 부분도 같이 협의하시며 진행하고, 건축공사 진행하는 업체 분들과도 같이 협의가 되어야 할 부분입니다. 감사합니다.
G
함석진
2019.03.22 13:05
삭제
네 감사합니다. 설계사 분과 현장 소장님과도 공유하여 답글 올리겠습니다. 감사합니다.
네 감사합니다. 설계사 분과 현장 소장님과도 공유하여 답글 올리겠습니다. 감사합니다.
이전
다음
삭제
수정
목록
Login
Login
자동로그인
회원가입
|
정보찾기
Category
표준주택
표준주택 문의
표준주택 사례
표준주택 시공과정
본 의견은 절대적인 것은 아니므로 소개해드린 양지시스템 사장님과 현장 조건 등을 고려하여 다시 한번 협의 부탁드립니다.
1. 외부 공기 흡기구는 다용도실 측 벽면에 설치하여 배기구와 보일러 연도, 화장실 배기구와 벽면을 달리하여 설치하도록 하는 것을 추천 드립니다.
2. 작업실 문을 SD(철재문)으로 하셔서 급기된 공기가 문 하부 틈으로 빠져 가가는 구조가 만들어 질 수 없을것 같기도 합니다. 그럴 경우 내부에 배기를 하나 더 추가하는 것도 검토해 주십시요
3. 다락층의 급기구는 겨울처 외부의 건조한 공기를 공급하여 천창의 결로를 조금 줄일 수 있지 않을까해서 배치해 보았습니다.(효과 여부는 확실치 않습니다.^^;)
연두색이 급기 / 분홍색이 배기 입니다.
그리고 현재 도면에서 장선 하부에 덕트가 지나갈 수 있는 공간이 없거나 부족한 상황입니다. 이 부분도 같이 협의하시며 진행하고, 건축공사 진행하는 업체 분들과도 같이 협의가 되어야 할 부분입니다.
감사합니다.