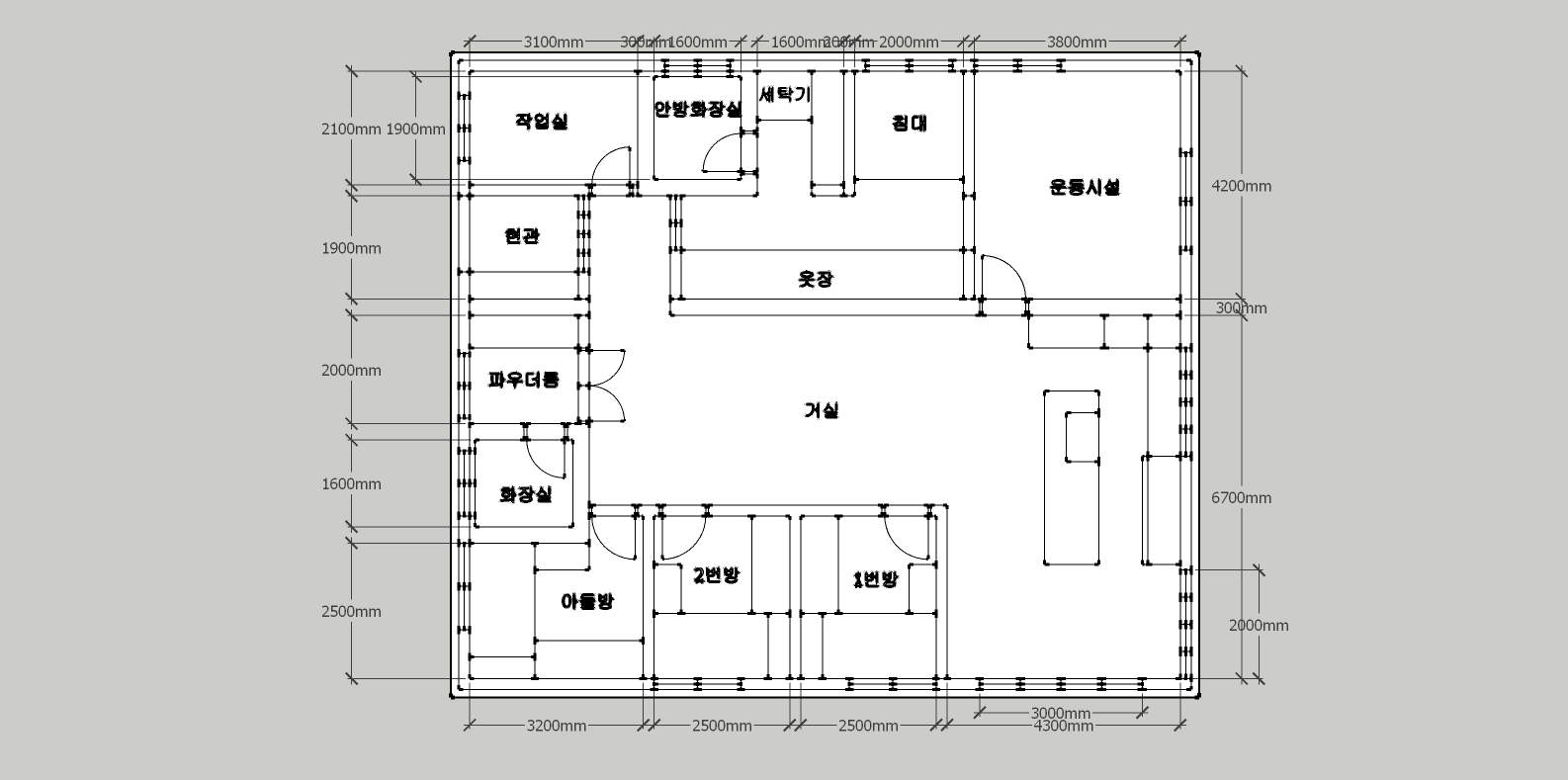
[*]저도...도면이요..
한국패시브건축협회
협회안내
임직원 및 회원사현황
조직도
인사말
주요 사업
목적 및 연혁
가입안내
협회 정관
공평성 선언문
오시는 길
공지
공지사항
협회 동정
회원사 동정
협력사 동정
보도자료 /소식
오픈하우스 소식
신청
패시브건축 인증 신청
신축
리모델링
기밀성능테스트 신청
에너지성능 현황분석 신청
건축부재 시뮬레이션 신청
실무자 교육 신청
세미나 신청
표준주택 견학 신청
장비대여신청
표준주택
표준주택
표준주택 문의
표준주택 사례
시즌1
시즌2
시즌3
시즌4
표준주택 시공과정
경량목구조
스틸하우스
RC+평지붕
자료실
기술자료
자료 내려받기
전문가 칼럼
책 소개
Passipedia 번역
질문/하자사례
자주 묻는 질문
설계/시공관련 질문
하자/불편 관련 질문
열해석관련 질문
Energy# 관련 질문
WUFI 관련 질문
이런 저런 이야기...
사례집
사례집(저에너지/패시브)
사례집(회원일반건축물)
좌충우돌 제로에너지 아파트 리모델링
인증건물 매매/임대
자재정보
단열
회원사_하이셀 : 엘에스기연
회원사_EZ Block : 이지블록
회원사_동건
회원사_정양SG
회원사_디케이보드
외단열미장마감
방수상부외단열공법(역전지붕)
회원사_주잡자재
회원사_주티푸스코리아
열교
회원사_티푸스코리아
회원사_TB Block
회원사_이비엠리더
회원사_스타빌엔지니어링
회원사_정양SG
기밀
회원사_프로클리마 : 프로클리마코리아
회원사_유로벤트 : 이루카씨앤티
회원사_SIGA : 잡자재
창호
회원사_케멀링 : 엔썸
회원사_레하우 : 유로레하우
회원사_KBE : 우신윈시스템
회원사_살라만더 : 에스알펜스터
회원사_바우엔 : 승효
회원사_디크닉 :삼익산업
회원사_트로칼 :윈체
차양
환기
회원사_SSK : 스타즈스터링코리아
회원사_은성화학
회원사_옥토아이앤씨
회원사_휴마스터
회원사_komfovent : 잡자재
협력사_대호에이엘
설비
회원사_복사냉방 : 잡자재
회원사_ 건식난방패널 : 에코-에너다임
친환경
회원사_ESB : 프로클리마코리아
협력사_코닝정밀소재
협회안내
임직원 및 회원사현황
조직도
인사말
주요 사업
목적 및 연혁
가입안내
협회 정관
공평성 선언문
오시는 길
공지
공지사항
협회 동정
회원사 동정
협력사 동정
보도자료 /소식
오픈하우스 소식
신청
패시브건축 인증 신청
기밀성능테스트 신청
에너지성능 현황분석 신청
건축부재 시뮬레이션 신청
실무자 교육 신청
세미나 신청
표준주택 견학 신청
장비대여신청
표준주택
표준주택
표준주택 문의
표준주택 사례
표준주택 시공과정
자료실
기술자료
자료 내려받기
전문가 칼럼
책 소개
Passipedia 번역
질문/하자사례
자주 묻는 질문
설계/시공관련 질문
하자/불편 관련 질문
열해석관련 질문
Energy# 관련 질문
WUFI 관련 질문
이런 저런 이야기...
사례집
사례집(저에너지/패시브)
사례집(회원일반건축물)
좌충우돌 제로에너지 아파트 리모델링
인증건물 매매/임대
자재정보
단열
외단열미장마감
방수상부외단열공법(역전지붕)
열교
기밀
창호
차양
환기
설비
친환경
메인
협회안내
공지
신청
표준주택
자료실
질문/하자사례
사례집
자재정보
0
표준주택
표준주택 문의
표준주택 사례
표준주택 시공과정
공동구매
[*]저도...도면이요..
G
김태호
18
3,280
2019.03.21 01:37
이렇게 올리면 되는건가요?
출력
Comments
M
관리자
2019.03.21 13:48
단면도는 없으신지요?
단면도는 없으신지요?
G
김태호
2019.03.26 09:46
삭제
네..일단..스케치업으로 해논 이거뿐인데..스케치업 파일을 보내드릴까요?
네..일단..스케치업으로 해논 이거뿐인데..스케치업 파일을 보내드릴까요?
M
관리자
2019.03.26 19:18
네.. 그거라도 주시면 감사하겠습니다.
네.. 그거라도 주시면 감사하겠습니다.
G
김태호
2019.03.27 16:45
삭제
1
패시브.skp (4.0M)
2019.03.27
댓글내용 확인
비밀댓글 입니다.
G
김태호
2019.03.28 15:46
삭제
1
패시브.skp (3.7M)
2019.03.28
댓글내용 확인
비밀댓글 입니다.
G
김태호
2019.04.02 23:25
삭제
안녕하세요...도면에 표시는 언제쯤 해주시는지요...그리고 물품 구매는 언제 가능한지 궁금합니다.
안녕하세요...도면에 표시는 언제쯤 해주시는지요...그리고 물품 구매는 언제 가능한지 궁금합니다.
M
관리자
2019.04.03 19:28
물품구매에 대한 발주는 되었습니다.
입금 요청은 별도로 드릴 예정입니다.
도면은 앞으로 하루 이틀 정도 걸릴 것 같습니다.
물품구매에 대한 발주는 되었습니다. 입금 요청은 별도로 드릴 예정입니다. 도면은 앞으로 하루 이틀 정도 걸릴 것 같습니다.
G
fulnbi
2019.04.03 19:29
삭제
죄송합니다 내일중으로 올리도록 하겠습니다
죄송합니다 내일중으로 올리도록 하겠습니다
6
오대석
2019.04.04 10:19
먼저 평면이 일반적이지 않아 거실에서의 위치를 조금 고민했습니다.
3가지 대안을 작성해 보았는데 객수가 많은 것이 우선 좋은 조건입니다.
나머지는 혹시 분배기 가격이 부담스러우시거나 하나로 오던 관을 'Y'자로 분배해서 연결해야하는 상활이라면 차라리 급배기 수량을 줄이는 것이 좋을 것이라 판단하여 작성해 보았습니다.
화장실은 전동댐퍼가 있는 강제배기관을 별도로 두셔야 합니다.
먼저 평면이 일반적이지 않아 거실에서의 위치를 조금 고민했습니다. 3가지 대안을 작성해 보았는데 객수가 많은 것이 우선 좋은 조건입니다. 나머지는 혹시 분배기 가격이 부담스러우시거나 하나로 오던 관을 'Y'자로 분배해서 연결해야하는 상활이라면 차라리 급배기 수량을 줄이는 것이 좋을 것이라 판단하여 작성해 보았습니다. 화장실은 전동댐퍼가 있는 강제배기관을 별도로 두셔야 합니다.
6
오대석
2019.04.04 10:20
급기9개 배기8개
급기9개 배기8개
6
오대석
2019.04.04 10:21
급기7, 배기7
급기7, 배기7
6
오대석
2019.04.04 10:21
급기6, 배기6
급기6, 배기6
G
김태호
2019.04.11 08:15
삭제
급기9 배기8인걸로 하면..필요한 자제들 다 포함해서 얼마정도인가요?
급기9 배기8인걸로 하면..필요한 자제들 다 포함해서 얼마정도인가요?
M
관리자
2019.04.12 16:08
공사비는 담당 시공사에게 견적을 받으셔야 하셔요.
저희는 기기값만 담당을 하고 있습니다.
공사비는 담당 시공사에게 견적을 받으셔야 하셔요. 저희는 기기값만 담당을 하고 있습니다.
G
김태호
2019.04.30 13:08
삭제
통화 할때 말씀 드렸는데..직접 시공할꺼라고요...자제만 잘챙겨주시면...직접 시공할 계획입니다.
통화 할때 말씀 드렸는데..직접 시공할꺼라고요...자제만 잘챙겨주시면...직접 시공할 계획입니다.
M
관리자
2019.04.30 21:06
네^^
저희는 공구 신청하신 것만 공급을 합니다. 나머지 디퓨저와 배관 등은 시공사에게서 공급을 받아야 하는데.. 직접 시공을 하신 다 하더라도, 해당 자재는 시공사를 통해 공급을 받아야 합니다.
네^^ 저희는 공구 신청하신 것만 공급을 합니다. 나머지 디퓨저와 배관 등은 시공사에게서 공급을 받아야 하는데.. 직접 시공을 하신 다 하더라도, 해당 자재는 시공사를 통해 공급을 받아야 합니다.
G
김태호
2019.06.15 15:10
삭제
물건을 어떻게 받나요? 이제 설치해야할꺼 같은데.
물건을 어떻게 받나요? 이제 설치해야할꺼 같은데.
M
관리자
2019.06.15 16:12
지금 열심히 오고 있는 중입니다.
예상 도착일을 알아보고 공지해드리겠습니다.
지금 열심히 오고 있는 중입니다. 예상 도착일을 알아보고 공지해드리겠습니다.
이전
다음
삭제
수정
목록
Login
Login
자동로그인
회원가입
|
정보찾기
Category
표준주택
표준주택 문의
표준주택 사례
표준주택 시공과정
입금 요청은 별도로 드릴 예정입니다.
도면은 앞으로 하루 이틀 정도 걸릴 것 같습니다.
3가지 대안을 작성해 보았는데 객수가 많은 것이 우선 좋은 조건입니다.
나머지는 혹시 분배기 가격이 부담스러우시거나 하나로 오던 관을 'Y'자로 분배해서 연결해야하는 상활이라면 차라리 급배기 수량을 줄이는 것이 좋을 것이라 판단하여 작성해 보았습니다.
화장실은 전동댐퍼가 있는 강제배기관을 별도로 두셔야 합니다.
저희는 기기값만 담당을 하고 있습니다.
저희는 공구 신청하신 것만 공급을 합니다. 나머지 디퓨저와 배관 등은 시공사에게서 공급을 받아야 하는데.. 직접 시공을 하신 다 하더라도, 해당 자재는 시공사를 통해 공급을 받아야 합니다.
예상 도착일을 알아보고 공지해드리겠습니다.