경북 성주군 수륜면 백운리 917 - 단독주택 (3.7리터) - 배**님댁

사례집(저에너지/패시브)

경북 성주군 수륜면 백운리 917 - 단독주택 (3.7리터) - 배**님댁

화미건축 1 9,925 2017.06.29 15:50
*용도단독주택 (3.7리터) 
건축물주소[ 40063 ] 경북 성주군 수륜면 백운리 917
건축물이름배**님댁 
설계사화미건축 
시공 또는 시공관리화미건축 
에너지컨설팅(사)한국패시브건축협회 
설계기간2016년1월~2016년5월 
시공기간2016년10월~2017년1월 
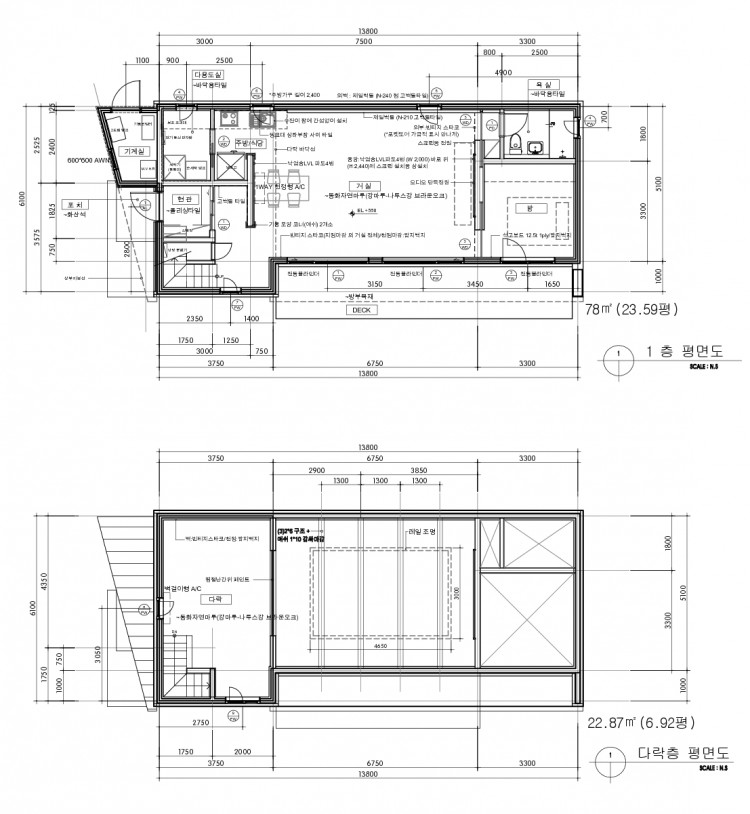
건축면적78  ㎡
연면적100.87 (다락방 22.87제곱미터 포함)  ㎡
규모지상1층 
구조방식일반목구조 
난방설비등유보일러 
난방용량20,000Kcal 
주요내장재스터코빈티지, 고벽돌타일, 낙엽송LVL 
주요외장재청고벽돌타일 
외벽구성T10 스타코 + T6 MFG보드 + 20×20 세로각재(20mm 통기층) + 투습방수지 + 2×2 스터드(T38 글라스울 32K 가등급) + 2×4 스터드(T38 글라스울 32K 가등급 세로) + T11.1 OSB + 2×6 스터드(T140 글라스울 25K 가등급) + 가변형 투습지 + 2×2 세로각재(38mm 설비층) + T9.5 석고보드 + 합지벽지 
외벽 열관류율0.192  W/㎡·K
지붕구성T0.5 칼라강판 + T2 쉬트방수 + T11.1 OSB + 2×4 통기층 + 투습방수지(지붕용) + 2×2 가로각재(T38 글라스울 32K 가등급) + 2×10 스터드(T235 글라스울 25K 가등급) + 가변형 투습지 + 2×2 각재(38mm 설비층) + T9.5 석고보드 2겹 
지붕 열관류율0.158  W/㎡·K
바닥구성T12 바닥타일+T35 시멘트 몰탈(12 온수배관) + T0.03 PE필름 1겹 +
T50 비드법보온판 1종 2호 + 에폭시 방수 페인트

기초: T200 콘크리트 + T0.03 PE필름 + T200 EPS 1종 4호 + T100 XPS +
T 0.03 PE필름 + T100 무근콘크리트 + T100 쇄석 
바닥 열관류율0.068  W/㎡·K
창틀제조사Kommering 
창틀 열관류율1.000  W/㎡·K
유리 제조사ensum 
유리 구성5로이+16ar+4투명+16ar+6로이 
유리 열관류율0.76  W/㎡·K
창호 전체열관류율
(국내기준)
0.993  W/㎡·K
현관문 제조사코렐 
현관문 열관류율2.030  W/㎡·K
환기장치 제조사Repuro 250 
환기장치효율
(난방효율)
80  %
난방면적70.64  ㎡
난방에너지요구량36.60  kWh/㎡·a
난방부하21.1  W/㎡
1차에너지소요량153  kWh/㎡·a
계산프로그램에너지샵(Energy#) 2016v1.31 
인증담당자김태룡 
인증번호2017-P-006 
건축공사비184,000  천원
평당공사비6,820 (건축공사)  천원
신축공사
ac17fbfbf95e54cfd36b27089eba6081_1498719054_8108.jpg
ac17fbfbf95e54cfd36b27089eba6081_1498719060_3607.JPG
ac17fbfbf95e54cfd36b27089eba6081_1498719064_7917.JPG
ac17fbfbf95e54cfd36b27089eba6081_1498719068_9807.JPG
ac17fbfbf95e54cfd36b27089eba6081_1498719073_0805.JPG
ac17fbfbf95e54cfd36b27089eba6081_1498719081_8266.JPG
ac17fbfbf95e54cfd36b27089eba6081_1498719087_6407.jpg
ac17fbfbf95e54cfd36b27089eba6081_1498719091_9797.JPG
.931fdb00dbdfadb8923a8c14fd03dd06_1499732461_846.jpg

Comments

gklee 2017.11.15 22:20
아담하면서도 멋진 집이네요.
Category