설계/시공관련 질문 243 페이지 > (사)한국패시브건축협회 (Passive House Institute Korea)
한국패시브건축협회
협회안내
임직원 및 회원사현황
조직도
인사말
주요 사업
목적 및 연혁
가입안내
협회 정관
공평성 선언문
오시는 길
공지
공지사항
협회 동정
회원사 동정
협력사 동정
보도자료 /소식
오픈하우스 소식
신청
패시브건축 인증 신청
신축
리모델링
기밀성능테스트 신청
에너지성능 현황분석 신청
건축부재 시뮬레이션 신청
실무자 교육 신청
세미나 신청
표준주택 견학 신청
장비대여신청
표준주택
표준주택
표준주택 문의
표준주택 사례
시즌1
시즌2
시즌3
시즌4
표준주택 시공과정
경량목구조
스틸하우스
RC+평지붕
자료실
기술자료
자료 내려받기
전문가 칼럼
책 소개
Passipedia 번역
질문/하자사례
자주 묻는 질문
설계/시공관련 질문
하자/불편 관련 질문
열해석관련 질문
Energy# 관련 질문
WUFI 관련 질문
이런 저런 이야기...
사례집
사례집(저에너지/패시브)
사례집(회원일반건축물)
좌충우돌 제로에너지 아파트 리모델링
인증건물 매매/임대
자재정보
단열
회원사_하이셀 : 엘에스기연
회원사_EZ Block : 이지블록
회원사_동건
회원사_정양SG
회원사_디케이보드
외단열미장마감
방수상부외단열공법(역전지붕)
회원사_주잡자재
회원사_주티푸스코리아
열교
회원사_티푸스코리아
회원사_TB Block
회원사_이비엠리더
회원사_스타빌엔지니어링
회원사_정양SG
기밀
회원사_프로클리마 : 프로클리마코리아
회원사_유로벤트 : 이루카씨앤티
회원사_SIGA : 잡자재
창호
회원사_케멀링 : 엔썸
회원사_레하우 : 유로레하우
회원사_KBE : 우신윈시스템
회원사_살라만더 : 에스알펜스터
회원사_바우엔 : 승효
회원사_디크닉 :삼익산업
회원사_트로칼 :윈체
차양
환기
회원사_SSK : 스타즈스터링코리아
회원사_은성화학
회원사_옥토아이앤씨
회원사_휴마스터
회원사_komfovent : 잡자재
협력사_대호에이엘
설비
회원사_복사냉방 : 잡자재
회원사_ 건식난방패널 : 에코-에너다임
친환경
회원사_ESB : 프로클리마코리아
협력사_코닝정밀소재
협회안내
임직원 및 회원사현황
조직도
인사말
주요 사업
목적 및 연혁
가입안내
협회 정관
공평성 선언문
오시는 길
공지
공지사항
협회 동정
회원사 동정
협력사 동정
보도자료 /소식
오픈하우스 소식
신청
패시브건축 인증 신청
기밀성능테스트 신청
에너지성능 현황분석 신청
건축부재 시뮬레이션 신청
실무자 교육 신청
세미나 신청
표준주택 견학 신청
장비대여신청
표준주택
표준주택
표준주택 문의
표준주택 사례
표준주택 시공과정
자료실
기술자료
자료 내려받기
전문가 칼럼
책 소개
Passipedia 번역
질문/하자사례
자주 묻는 질문
설계/시공관련 질문
하자/불편 관련 질문
열해석관련 질문
Energy# 관련 질문
WUFI 관련 질문
이런 저런 이야기...
사례집
사례집(저에너지/패시브)
사례집(회원일반건축물)
좌충우돌 제로에너지 아파트 리모델링
인증건물 매매/임대
자재정보
단열
외단열미장마감
방수상부외단열공법(역전지붕)
열교
기밀
창호
차양
환기
설비
친환경
메인
협회안내
공지
신청
표준주택
자료실
질문/하자사례
사례집
자재정보
0
자주 묻는 질문
설계/시공관련 질문
하자/불편 관련 질문
열해석관련 질문
Energy# 관련 질문
WUFI 관련 질문
이런 저런 이야기...
설계/시공관련 질문
질문 전에 먼저 검색을 해주세요.
스스로 단열시공을 하려는데 이래도 될까요
7209
|
G
담
|
댓글
2
|
2022.08.19
안녕하세요. 2층짜리 주택입니다 시작하고보니 일이 엄청 많다는 걸 느낍니다 1층 방 두 개에 결로로 곰팡이가 생겨서 단열시공을 하려던 중 잘못되가는 걸 느끼고 질문드립니다 1) 천장을 그대로 두고 벽에만 아이소핑크를 붙여도 하자가 나지 않을까요? 천장 목상, 석고보드를 철거하는게 맞겠지…
더보기
압출스치로폰치 맞는지 궁금합니다.
7208
|
G
이광해
|
댓글
2
|
2022.08.19
살짝만 눌려도 들어가고 푹신푹신합니딘. 1cm압출 스치로폰치입니다.
역전지붕 옥상 외단열 할시 하중 질문입니다
7207
|
G
이웅희
|
댓글
4
|
2022.08.19
콘크리트 200 철근 14?16? 역전지붕 계획중입니다 마감 재료로 투수블럭(1m2당 125kg) 할 생각인데 설계쪽에서 고정하중이라 너무 무겁다고 하지말라고 합니다 제 생각은 무근도 하는데 이걸 못하겠어?하는 생각인데 정말로 안되는건가요?
옥탑 방수 관련 질문드립니다.
7206
|
1
jun89
|
댓글
4
|
2022.08.18
안녕하세요. 예전부터 유튜브 시청하면서 어머니 집을 이렇게 바꾸면 되겠다 하고 싶어서 질문드려요. 현재 옥상 가장자리 둘래에 데니스기와 데니스벽 철거를 한 상태입니다. 그리고 구배는 잡혀 있는 상태이고요. 질문1 난간을 설치하려고 하는데요. 방송에서 말씀하신 거처럼. 앙카는 누수에 치명…
더보기
안녕하세요 바닥에폭시 크랙 보수 문의
7205
|
G
최선구
|
댓글
3
|
2022.08.18
바닥에 크랙이생겨 에폭시가 부셔저서 보수하려고하는데 어떻게 진행하면 좋을까요,,,
콘크리트 폐기물을 성토아래에 묻어도 될까요?
7204
|
1
쿨에어
|
댓글
4
|
2022.08.18
안녕하세요 예비건축주입니다 제목이 좀 아리송 하실텐데 제 필지에 주변에 전신주가 없어 지중화를 해야 하는 상황입니다 대략 60미터를 파야하는데 약 60센치깊이로 콘크리트가 되어있습니다 여기서 나오는 콘크리트 폐기물을 제 필지 바닥에 묻고 그 위로 성토를 해도 될까요? 견적서상 폐기물이 …
더보기
난방배관위 타일 시공관련 문의
7203
|
1
kangin
|
댓글
3
|
2022.08.18
안녕하십니까 거실위에 타일시공하려고하는데 방통을 치지않고 시공 해보려고 합니다. 시공 방법으로는 석분 평활도 -> 단열재 시공 -> 난방배관시공 -> 난방배관사이 석분매움 -> 사모래시공 -> 타일시공 이렇게 하려고 합니다. 혹시 이방법으로 시공시 문제될게 있…
더보기
오수배관 시공 시 거실욕실과 안방욕실 엮어도 문제 없나요
7202
|
G
그린
|
댓글
4
|
2022.08.18
안녕하십니까 항상 좋은 의견에 감사합니다. 같은 세대의 부부욕실하고 거실 욕실이 인근에 붙어있어하나의 오수수직관으로 안방이랑 거실이랑 같이 사용해도 되는지 ?? 문제가 생길 수 있는지.. 만약 가능하다면 용량을 많이 늘려야할까요?
자갈 깔린 방통 문의
7201
|
G
1인
|
댓글
11
|
2022.08.18
안녕하세요? 리모델링 준비 중 협회 자료에서 많은 도움받고 있습니다. 현재 리모델링하려는 주택이 심야 축열식 온돌 난방인데요. 바닥 방통을 까고 엑셀 설비를 하려고 합니다. 현재 상태는 열반사 단열재(1cm) - 부직포 - 자갈(14cm) - 방통(자갈 섞여 8cm)으로 슬라브에서 방통…
더보기
방수 방법 문의드립니다.
7200
|
G
방수문의
|
댓글
7
|
2022.08.17
노후주택 리모델링을 하고 있습니다. 중간에 보수를 한 것 같긴 한데 바닥 상태가 매우 안 좋아 전체적으로 방수를 하려고 합니다. 방수를 위해 몇 군데 견적을 받았는데 의견들이 서로 달라 어떻게ㅜ진행해야할 지 고민이 되네요. 1. 현재 방수층이 우레탄인지 아크릴인지 모르겠습니다. 업체마다…
더보기
여러분의 골조는 안녕하신가요?
7199
|
4
아리아스타크
|
댓글
8
|
2022.08.17
안녕하세요~ 경기도권에서 협회인증 주택을 진행하고 있는 건축주입니다. 지난주부터 이어진 폭우로 인해 골조가 많은 비에 맞았습니다. 바텀플레이트도 많이 젖어있구요, 일부분은 비의 영향인지 크랙도 보이고 곰팡이처럼 보이는 흔적도 보이고 있네요 시공사측에선 잘 말리면 문제 없다고 하는데,,,…
더보기
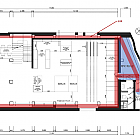
베란다 조적이 언처지는 부분 복합방수 방법 문의 件
7198
|
G
하늘이
|
댓글
4
|
2022.08.17
** 수고가 많으십니다. 1. 신축건물 2년반 경과 베란다 누수 발생 (시공 문제점은?) 1) 방수시공 확인내용 (그림1 참조) 2) 지붕 오수관이 베란다 조적벽에 붙여서 설치 빗물이 누름콘크리트 조인트 부분으로 떨어짐(뜸새발생) 2. 베란다 누수 하자 보수를 어떤 방법으로 하는것이 좋…
더보기
드라이비트 마감재 관련
7197
|
G
해피니스
|
댓글
8
|
2022.08.17
안녕하세요. 건물 뒷벽을 보수할 일이 있어서요. 드라이비트로 하려고 생각중인데요, 드라이비트 마감재가 여러가지가 있더군요.. 인접건물에 가리는 곳이라 보이는 곳이 아니라서 외형적인 멋스러움은 크게 생각하지 않고, 내구성(공간이 좁아서 추후 보수시 난이도가 높습니다.)이나 발수/방수성 등…
더보기
옹벽 연결시공
7196
|
G
김석주
|
댓글
4
|
2022.08.17
사진 올리기가 잘 안되서 파일로 올립니다. 사진처럼 옹벽 좀낮고 직각이리서 이번 비로 흙이 넘쳐 흐릅닙니다. 좀 높이고 빨강선 처럼 비스듬하게 하고 파란색 지점에 구멍을 뚫어 철근 심고 공구리 칠까 하는데...이거 보다 더 좋은 방법이 있으면 가르켜 주시면 고맙겠습니다.
단독주택 지하 방습벽 관련 문의
7195
|
G
KHJ
|
댓글
3
|
2022.08.17
안녕하세요~ 저는 현재 단독주택 리모델링 설계를 맡고 있습니다 지하 방습벽 관련해서 자문을 좀 구해보고 싶어서 글 올리게 되었습니다 지하에 원래부터 방습벽이 조성되어 있었고, 안쪽에 집수정도 되어있어서 물이 그쪽으로 모이게끔 되어 있었습니다 그런데 공사를 하던중에 벽부에 물방울이 맺히다…
더보기
평철 난간 녹방지 방법 + 옥상 방수 문의
7194
|
1
잘할수있어
|
댓글
2
|
2022.08.17
가정집에 살고있어 옥상을 마음대로 사용할 수있습니다. 아이랑 어제 옥상에서 놀다보니 우레탄 방수제가 가루로 묻어나서 신발이며 옷이며 너무 더러워졌더라구요... 검색해보니 신나를 너무 많이 사용했거나, 경화작업이 불량했던 것 같습니다. 약 50평정도 되는 공간이라 업체에 맡기면 금액이 너…
더보기
외단열재 하지 작업과 창호부위에 대해 질문드립니다.
7193
|
G
모카
|
댓글
2
|
2022.08.16
외단열재 하지 작업과 창호부위에 대해 질문드립니다. 안녕하세요. 궁금증이 있어 협회에 문의드립니다. 늘 감사드립니다. 원래는 외단열 미장마감으로 끝내려고 하였으나 중간에 하지을 걸어 그 위에 금속재를 대든 다른 마감을 해서 띠를 두른 느낌을 살리려고 합니다. 이 경우 철물을 콘크리트 벽…
더보기
OSB 곰팡이 관련상담
7192
|
G
어뭉
|
댓글
2
|
2022.08.15
안녕하세요 장마와함께 방통을 치면서 양생과정중 집전체를 밀봉?했더니 오늘 확인해보니 OSB 곳곳에 곰팡이가 자리잡았습니다 특정부위만 있는게 아니라 1층,2층 대부분의 벽체에 곰팡이가 보이는데 단순히 닦고 잘 말리면 문제가 없을까요?ㅜㅜ 닦는 요령도 있을까요? 링크를 첨부해도 될지모르겠지…
더보기
보일러 배관 질문드립니다.
7191
|
G
질문
|
댓글
1
|
2022.08.15
안녕하세요. 현재 지하 및 지상2층의 단독주택 공사중입니다. 보일러실은 지하에 마련되어있고 보일러실부터 각층 기포 콘크리트에 메인배관이 묻어져있습니다. 옛날집이라 동배관으로 매립되어있어 제거 후 교체 예정인데 궁금한 부분이있어 여쭙습니다. 1. 질문글들을 보니 메인배관도 엑셀배관으로 하…
더보기
기계실 단열방화문
7190
|
1
내인생의가을날
|
댓글
2
|
2022.08.15
수고하십니다. 건강한 집을 만들기 위하여 단열과 기밀 등 협회의 기준을 쫒아 집을 짓고자 합니다. 따라서, 창호도 협회 회원사인 앤썸 제품을 쓸 계획인데, 협회의 표준주택 스펙을 보니 기계실은 '철제 단열방화문'을 적용하고 있음을 알게 되었습니다. 본인이 생각중인 앤썸 제품과는 100만…
더보기
지붕 판넬과 벽체 연결부위 방수 문의
7189
|
1
브랜든
|
댓글
5
|
2022.08.15
안녕하세요. 지붕 샌드위치판넬과 벽체(경량콘크리트패널 xps압축) 판넬 접합부위를 방수를 해야하는데, 관련된 사례가 없어서 고심 중입니다. 외장재는 롱브릭타일 시공 예정으로 지난 번 말씀주신대로 메시미장을 진행하려고 합니다. 지붕 샌드위치판넬과 벽체 판넬 접합부위를 방수처리를 해야하는데…
더보기
신축아파트 외벽 붙박이장
7188
|
G
신축입주
|
댓글
1
|
2022.08.14
안녕하세요, 신축아파트에 곧 입주하는데 안방 외벽에 붙박이장설치가 가능할지 문의드립니다. 사진의 빨간색 표시한곳에 설치할까 고민중이고 단열재로는 콘크리트 옹벽앞에 경질우레탄 145t가 사용되었다고 합니다.
바닥 단열
7187
|
G
김석주
|
댓글
2
|
2022.08.14
보통은 바닥에 단열재을 먼저 깔고 배관작업 하고 기포치는데... 저는 단열재는 안깔고 먼저 기포치고 굳으면 난방 배관 깔고 싶은데 이렇게 하면 단열에 큰문제가 없을까요?
아이소핑크 단열재 연결선, 두께 이 정도면 될까요?
7186
|
G
시온
|
댓글
11
|
2022.08.14
30년 가까이 된 구축 1층 아파트입니다. 전부 확장, 확장부 전기판넬 상태로, 산동네라 너무 추워서 단열시공 희망중입니다. 베란다 바닥 미장이 설계도상 56mm로 확장상태를 유지하며 거실 마루와 수평을 맞추려면 아이소핑크 단열재가 최대 50T도 안 들어갈 것 같아서, 비확장 발코니 상…
더보기
글쓰기
241
242
243
244
245
246
247
248
249
250
Search
검색대상
제목
내용
제목+내용
회원아이디
회원아이디(코)
글쓴이
글쓴이(코)
검색어
필수
Login
Login
자동로그인
회원가입
|
정보찾기
Category
자주 묻는 질문
설계/시공관련 질문
하자/불편 관련 질문
열해석관련 질문
Energy# 관련 질문
WUFI 관련 질문
이런 저런 이야기...