건축물 옥상 지붕 면적 산정이 궁금합니다.

설계/시공관련 질문

질문 전에 먼저 검색을 해주세요.

 

건축물 옥상 지붕 면적 산정이 궁금합니다.

G 도사유 10 295 10.21 13:58

안녕하세요. 건축물 옥상 지붕 면적 산정이 어떻게 되는지 궁금해서 글 남깁니다.

지상 4층 다가구 주택 건물입니다.
1~4층까지 다가구이고 옥탑에는 계단탑을 계획 하였습니다.
여기서 지붕을 장식으로 해서 덮고 싶은데 여기서 수평투영면적에 포함이 되는지 궁금합니다.
계단탑에서 부터 지붕이 시작되는데 지붕 덮이는 면적이 1/2 오픈하면 면적에서 제외 되나요?


걸리는게 계단탑에 출입문이 있어 계단탑이나 장식탑으로 인정이 안될까봐 의문입니다.
만약 그렇다면 계단탑에서 떨어진 공간만 지붕을 덮으면 면적 제외 인정이 되는지 궁금합니다.

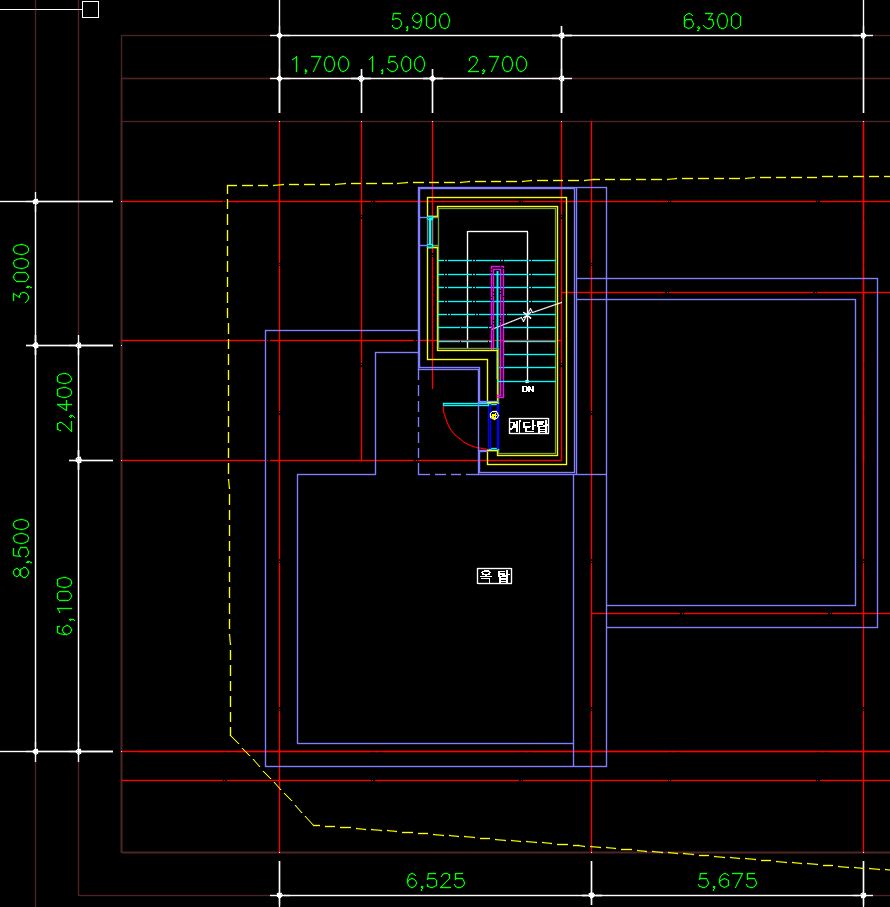
옥상층 평면도입니다.

Comments

G 도사유 10.21 14:17
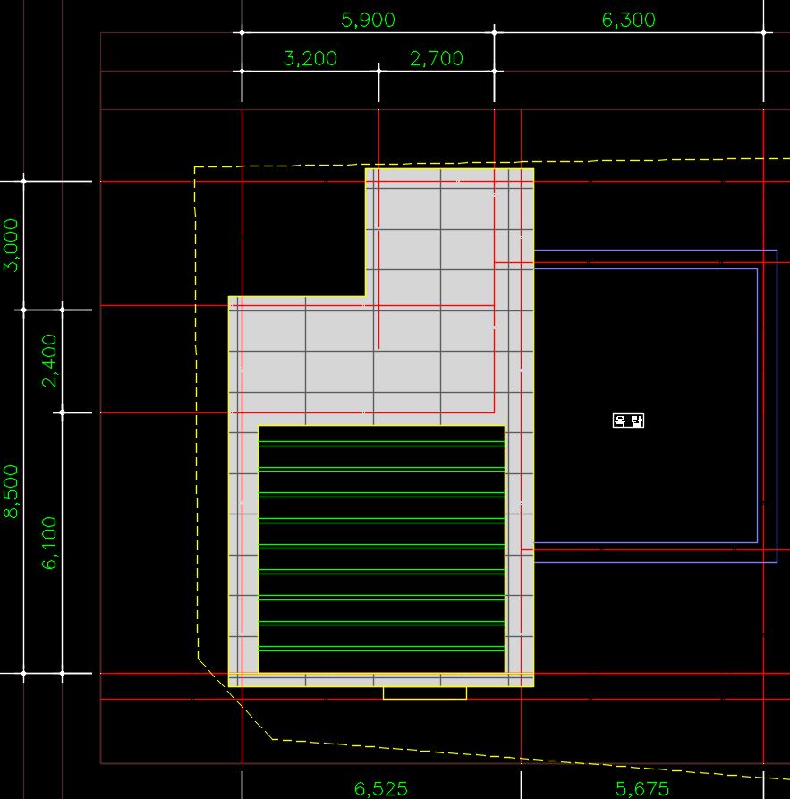
옥탑층 도면입니다.
G 도사유 10.21 14:18
지붕을 이렇게 계단탑과 연결해서 덮었을 때 면적 산정에 들어가는 건가요?
4 재섭 10.21 14:31
덮히는 면적이 건축면적에서 1/8이하여야 면적산입을 안합니다(옥탑기준이 그러함)
그래서 개구가능한부분 제외하고 항상 닫혀있는부분면적산정에서 건축면적 1/8이하로 맞추시면 됩니다
그거보다 땅이 일반주거지역이면 정북일조사선에 안걸려야합니다
G 도사유 10.21 14:41
답변 감사합니다.
현재 계단탑을 1/8 이하로 허가를 받은 상황에서 추가로 장식 지붕을 설치하려고 했을 때 지붕 설치가 가능하니 궁금합니다.
G 도사유 10.21 14:44
그리고 계단 탑 좌측에는 장애인용 승강기를 설치해서 면적에서 제외 되었는데
이부분도 답변주신것처럼 지붕 덮는 면적 산정때 포함해야되는건가요?
G 도사유 10.21 14:47
면적 말고 층수 관련해서도 만약 1/8을 넘어가면 층수 산입이 되는 건가요?
4 재섭 10.21 15:03
기존과 추과분 합산이 1/8이하면 됩니다

장애인용 승강기는 옥탑까지 올라오면 옥탑에서도 면적이 빠집니다.
옥탑에 올라 오지 않는다면 옥탑면적에서는 별개로 따져봐야합니다
다만 오버헤드때문에 (비어있는 공간으로) 올라오는것이라면 빠집니다

옥탑면적이 1/8이 넘는다면 면적뿐아니라 층수로도 산정해야하는 사항입니다
G 도사유 10.21 15:10
명쾌한 답변 감사합니다.
마지막으로 지붕에 그림처럼 루버 형태로 덮는다면 개구부 부분 빼고 루버 부분 면적을 다 포함해서 계산하면 되나요?
장식용으로 봐줘서 면적에서 제외되는 경우가 없을까요?
4 재섭 10.21 15:19
개구가 가변적인건 대충봐주긴합니다(타프 같이 천으로 덮는다던지)
루버면 그냥 루버두께같은거 계산안하고 쭉다 열린공간으로 칩니다
G 도사유 10.21 17:08
친절한 답변 감사합니다 많은 도움이 됐습니다!
Category