통기관 문의

설계/시공관련 질문

질문 전에 먼저 검색을 해주세요.

 

통기관 문의

G 봄비 26 4,803 2024.04.23 23:21

안녕하세요.

2층 철근콘크리트 주택 짓고 있는 중입니다.

오수 하수 통기관 때문에 궁금한 점이 있습니다.

 

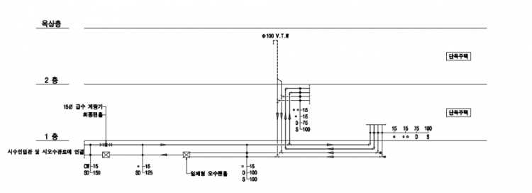
1. 설계도면

통기관 도면.png

 

2. 현재 시공중인 상태

통기관1.png

 

높이차이.png

 

 

현재 1층벽면과 2층바닥 시공중입니다.

시공사는 통기관을 도면과는 좀 다르게 오수, 하수 각각 만들예정으로,  

통기관 배관을 1층 천장속에서 바깥측면으로 빼두었습니다.

(그림에선 오수관만 그려봄)

 

(질문)

1. 현재 시공하는 대로 통기관을 시공하여도 별 문제는 없는걸까요?

 

2. 천장속 높이가 주방쪽은 250mm, 다용도실쪽은 300이어서 높이가 좁은데(천장속 높이는 어느정도는 더 키울수 있습니다)

마지막 확대한 그림에서 통기관과 오수관이 만나서 올라갈때, 그 높이차는 어느정도나 되어야 할지 궁금합니다.

 

3. 주방후드도 통기관과 같은 높이에  1m정도 떨어져서 위치해 있습니다.

왼쪽 두개의 동그라미 초록색이 오수, 하수 통기관이고 오른쪽이 주방후드 배관슬리브입니다.

통기관  500mm 밑에 다용도실 창문이 있는데, 통기관에서 냄새유입문제가 염려됩니다.

또한 다용도실 후드 작동시 창문을 열어두면 후드에서 나간 냄새가 그대로 창문으로 유입될까요?

통기관, 주방후드.jpg

 

 

 

Comments

M 관리자 2024.04.23 23:31
안녕하세요.

1. 문제가 있을 수도 있고 없을 수도 있는데요. 원칙에서는 벗어난 방법입니다.
예상될 수 있는 문제점은
가. 냄새가 주변 창문을 통해서 세대 내로 유입될 수 있는 위치라는 점
나. 풍속이 강한 겨울철 통기관을 통한 공기 유입으로 배관이 얼 수 있다는 점

2. 끝에서 끝의 차이가 최소 150mm 는 되어야 합니다.

3. 위의 답변으로 갈음할 수 있을 것 같습니다.
G 봄비 2024.04.23 23:55
늦은시간 답변 감사합니다.
1.답변 중 나. 통기관을 통한 공기 유입으로 배관이 얼수 있다는 점
 : 통기관과 오수관이 만나는 길이가 짧아서 오수배관이 얼 수 있다는 뜻일까요?
그럼 얼마나 길어야 되는지 궁금합니다.

2. 끝에서 끝의 차이 의미 : 밑에 그림에서 빨간색 선 길이라면 오수배관지금이 100, 통기관50이어서 이두개만 합쳐도 150mm인데, <끝에서 끝>은 파란색 화살표 길이의 의미인지요?
G 봄비 2024.04.23 23:56
아. 그리고 원칙은 어떻게 하는건지 알려주실수 있으신가요?
G 봄비 2024.04.23 23:58
그리고 통기관은 단열재로 감싼것으로 압니다. 통기관이 50mm인데 겉으로 대충봤을때 100mm정도 되어보입니다.
G 봄비 2024.04.23 23:59
통기관 전체를 단열재로 감싼 것은 아니고 통기관슬리브매립시 감싼것입니다.
M 관리자 2024.04.24 09:10
1. 통기관과 외부의 길이가 너무 짧다는 뜻이었습니다.

2. 아래 배관의 상부와 윗배관의 하부가 150mm 이격되어야 한다는 뜻이었습니다.
안그러면 역류할 수도 있습니다.

원칙은 옥상으로 올리는 것 입니다.
G 봄비 2024.04.24 10:07
관리자님 제가 생각하는 통기관 경로가 괜찮은지 한번 부탁드립니다.

<1번안>  1층 오하수배관은 1층 다용도실 빨간색 색칠한 곳에서 2층으로 올라갑니다.
그럼 통기관과 오하수배관은 2층 기계실 슬라브밑에서 만나서, 통기관은 기계실 바닥을 뚫고 기계실을 통과하여 옥상 바닥(빨간색)부분으로 올라옵니다. 이 때 옥상은 평지붕 역전지붕 방식인데, 누수위험없이 가능할까요?
(논외이지만, 2층기계실 전열교환기 배관이 1층으로 내려갈 때 2층 기계실 바닥을 뚫도록 설계될 예정이기도 합니다)

<2번안> 통기관을 기계실 벽체 안에 매립하여(파란색) 계속 옥상 계단실 벽체까지 올려서 3층 계단실 벽면에서 옆으로 빼는 방법입니다.
벽체는 200mm인데 통기관 50mm 관을 두개를 넣어도 될까요? 아니면 어느 지점에서 한개로 합쳐서 올려도 되는지요? 
* 만약 통기관을 한개로 합친다면 50mm관으로 충분할까요? 또한 어느 정도 지점에서 합쳐야 할까요?
G 봄비 2024.04.24 10:08
사진 첨부가 1개만 되어서 올립니다.
G 봄비 2024.04.24 10:09
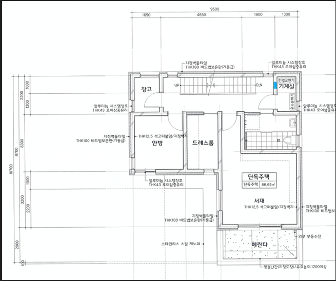
2층도면
G 봄비 2024.04.24 10:10
3층도면
G 봄비 2024.04.24 10:10
3층도면
M 관리자 2024.04.24 15:27
50mm 통기관 두개를 하나로 합쳐도 괜찮습니다.

벽에 매립하는 조건은 해당 벽이 비내력벽이어야 합니다. 그러면 매립이 가능합니다.
통상적으로는 아래와 같은 개념으로 접근을 합니다.
G 봄비 2024.04.24 16:14
위 그림은 옥상 바닥을 둟고 올라갔는 방법인것 같습니다.
위 그림처럼 하면 좋겠으나, 시공사는 그동안 문제된적 없었는데, 제가 요구하는 방식이 상식적이지 않다고 하셔서, 관리자님 그림처럼 해달라고 요구하기가 힘겹습니다.

기계실 벽과 3층 계단실 벽은 철근콘크리트로 되어있는 내력벽인것 같습니다.
저희 건축사님도 50mm여서 벽체안에 매립해도 괜찮다고 하시고, 시공사 소장님도 괜찮다고 하십니다.
(이런 질문은 바람직하지 않은것 같지만) 관리자님 생각하시기에는 안괜찮을까요?
M 관리자 2024.04.24 16:48
국가 표준 시방서에는 "벽 두께의 1/3 이하의 지름만 매립가능" 이라고 되어 있습니다.
그러므로 50A 배관은 200mm 벽에 매립이 가능합니다.

다만 여러 배관이 동시에 묻힐 경우, 각 배관의 거리는 중심기준으로 배관 지름의 3배를 띄우도록 되어 있습니다.
그러므로 50A 배관을 두개 보낼 경우, 그 배관 사이의 끝에서 끝의 이격거리는 100mm 정도 되어야 합니다.
이 것만 유의하시면 무리는 없습니다.
G 봄비 2024.04.24 17:10
관리자님 빠르고 쉬운 설명 정말 감사드립니다^^
G 봄비 2024.04.24 23:08
궁금한 점이 또 생겼습니다.
1. 창문이 멀리 떨어진 곳을 찾다보니 계단실 벽면 3층 중앙정도가 통기관 출구로 적당할 것 같은데, 그러려면 2층벽으로 올라가서 가로로 길게 3~4미터를 간 후에 위로 올라가야 합니다.
통기관이 이처럼 가로로 길게 가도 상관없을까요?

2. 1층 화장실 오수,하수관에서 2층으로 올라가는 오수, 하수관까지는 10미터는 되는 것 같습니다.
1층 오하수관 배관에 대한 통기관이 별도로 없고 집 전체 하나의 통기관만 있는데, 이렇게 길면 1층 화장실이나 주방의 통기관의 역할을 할 수 있는걸까요?
G 봄비 2024.04.25 00:02
3. 신정통기관의 경우 하부 오하수관 직경과 동일한 직경의 통기관을 연결한다고 하는데,
저희는 오하수관이 100인데 그러면 통기관도 100mm여야 할까요?
통기관을 50으로 해도 괜찮다고 하셨는데, 위와 같은 글을 봐서 여쭤봅니다.
M 관리자 2024.04.25 10:54
1. 통기관은 내부에 결로수가 발생하기에 수평으로 길게 가는 것은 좋지 않습니다. 다만 결로수가 적절히 배출될 수 있도록 기울기를 준다면 괜찮습니다.

2. 길이 자체는 문제가 없습니다. 아파트는 몇십미터를 넘게도 하니까요.

3. 위의 글의 연장선인데요. 길이가 길 경우 같은 지름으로 하는 것이 원칙입니다. 그러나 몇층 되지 않기에 지름이 작아도 무방합니다.
G 봄비 2024.04.25 15:17
관리자님 너무 감사합니다^^
M 관리자 2024.04.25 16:37
감사합니다.
G 마리오 2024.04.25 17:41
같은 집을 짓고 있는 건축주 입니다. 통기관에 대한 설명이 별로 없어서 외국 배관 방식을 찾아보니, 건물에 저렇게 통기 장치를 설비하는 나라는 인도 정도 밖에 없더군요.
신정통기관은 물이 배관을 진행할 때 진행 방향 측에 생기는 양압과, 사이펀 현상으로 벌어지는, 트랩에 있는 봉수의 깨뜨림은 막을 수 있지만, 물이 배관에서 진행할 때, 변기같은 설비와 배관 사이에 생기는 음압은 없앨 수가 없는 구조인 거 같습니다. 실제는 어떨지 잘 모르겠습니다.
그래서 신정통기관을 할 때는 배관의 가로 거리를 제한해야 할 거 같다는 생각이 드는데, 별로 설비 규정 같은 게 없는 거 같습니다.
M 관리자 2024.04.25 17:50
신정통기관이 가장 간편하기는 하나, 그런 이유로 각 층에 물려 있는 위생기구 또는 배수구가 2개 이하를 권장하고 있습니다.  동시 사용률이 낮다면 더 물려도 되긴 하고요.
G 마리오 2024.04.30 11:20
설비팀에 물어보니 신정통기관을 2층 배관의 수평부보다 하부에 연결할 거라고 하더군요.

신정통기관 설비를 찾아보면 원칙적으로는 그렇게 하면 안된다고 하는데(물넘침선 150이상 상부에 연결해야 함), 현재 설비팀은 2층 물이 내려가면서 생기는 압력에 의해 1층의 설비에서 봉수가 빨려나가는 사이펀 현상이 생기는 것을 막기만 하면 된다고 생각하고 있습니다.
https://youtu.be/iVR17VTfy9A?si=UXJ3GjtsCeeyW8zC

그런데, 그건 2층의 설비에서도 마찬가지 일 거 같습니다. 설비팀은 왜 1층만 고려하고 있는지 모르겠습니다.
2층의 물이 수직부로 떨어질 때의 압력에 의해 봉수가 딸려 나올 것인데, 물이 수직으로 떨어지기 전에 공기가 공급되지 않으면 봉수가 파괴되기는 마찬가지일 것입니다. 그래서 신정통기관을 상부 물넘침선 150 이상으로 연결하라고 한 거 같거든요.

일단 , 설비팀에 통기관을 수평부 물넘침선 상부에 연결하게 요청하고, 또 배관이 길어지는 문제점을 해결하기 위해 추가로, 통기밸브라는 것이 있던데 이걸 연결하면 어떨까요? 아래는 신정통기관만 있는 구조에서 추가적인 통기 밸브가 없을 때 배관내 배수의 진행을 보여주는데, 음압에 의해 역으로 배관 내 물결이 치고 배수가 진행이 안되는 게 보이네요. (동영상 대목)
근본적으로 짚어보자면, 통기관을 대체 어떻게 올리려고 이렇게 설계를 했는지 모르겠습니다.

요약
1.설비팀이 2층 배관의 수평부 하부로 신정통기관 수직부를 연결하려고 함. 설비 원칙에는 어긋나는 것 같음.
2.통기 밸브를 따로 설치하는 것은 어떨지 문의드립니다.
M 관리자 2024.04.30 17:38
1. 수평부 하부에서 연결되는 모양을 알아야 하는데요.
예를 들어 해당 배관은 2층 하부지만, 1층 기준으로는 상부이기에, 1층을 위한 통기관으로써의 기능을 갖출 수 있고, 역류할 수 있는 형식만 아니면 유효합니다.
즉, 반대로 2층을 위한 통기관은 별도로 만들어서, 1층 통기관과 연결되어 하나로 묶인 후 옥상으로 올라가는 구조로 하면 무리가 없습니다.

2. 혹은 2층만을 위한 소형통기밸브를 사용하셔도 괜찮습니다. 유효한 제품입니다.
G 마리오 2024.04.30 21:01
관리자님 답변 감사드립니다!
M 관리자 2024.05.01 09:43
감사합니다.
Category