발코니 부분을 다운하지 않았습니다.

설계/시공관련 질문

질문 전에 먼저 검색을 해주세요.

 

발코니 부분을 다운하지 않았습니다.

G 마틴킴 14 2,883 2024.01.11 11:45

안녕하세요. 매번 답변에 감사드립니다.


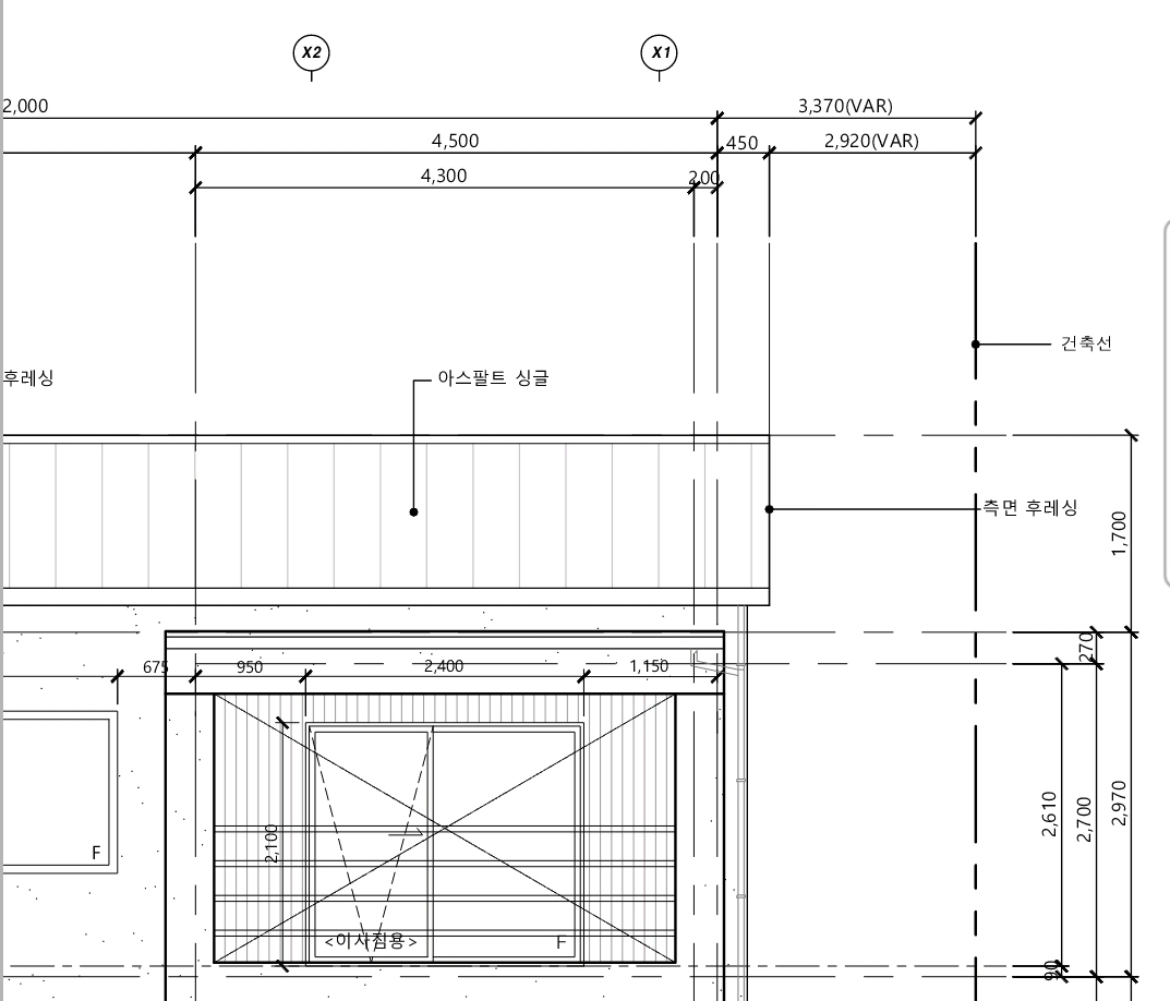
현재 골조가 끝난 상태입니다. 골조를 마치고 보니 발코니 부분(발코니 옆은 방입니다.)을 아래 설계와 같이 다운을 시키지 않고 내부와 같은 높이로 진행되었습니다.



2.png

 

1.jpg

 

현재 시공은 아래와 같이 되었습니다.

4.png

 

이럴 경우에 발코니의 압출법 단열재를 50t 로 줄이고 내부를 비드법 50t로 바꿔도 괜찮을까요?

발코니의 길이는 약 1000~1200 사이입니다.

더 좋은방법이 있다면 알려주시면 감사하겠습니다. 

 

또, 위와 같이 시공되었을 때 난간을 어떻게 설치하면 좋을까요?

추가적인 정보가 필요하시다면 말씀해주세요.

 

항상 감사드립니다.

Comments

M 관리자 2024.01.11 11:58
안녕하세요
이어치기한 부분에 지수제 시공은 된 상태인가요?
G 마틴킴 2024.01.11 12:09
시공한것으로 알고있습니나.
M 관리자 2024.01.11 12:27
이전 질문하신 것을 보면 일조사선 제한에 걸리는 거 같은데요. 어느 정도 여유가 있는 편인가요?
G 마틴킴 2024.01.11 12:39
발코니 앞쪽으로는  충분히 여유가 있습니다.
M 관리자 2024.01.11 12:46
자꾸 질문을 드려 죄송합니다만...
발코니로 나가는 창문 부위를 자른 단면도가 있을까요?
G 마틴킴 2024.01.11 12:53
정확히 제가 몰라서 우선 올립니다.
G 마틴킴 2024.01.11 12:53
이것도 첨부합니다
M 관리자 2024.01.11 13:08
필요한 것은 단면도이긴 합니다만 ..일단 알겠습니다.
제가 이동 중이라 저녁까지 답변 드리겠습니다.
G 마틴킴 2024.01.11 13:17
감사드립니다.
M 관리자 2024.01.11 22:08
일자로 쳐진 상태에서 상부에 50을 올리나 다 올리나 결국 같을 것 같습니다.
즉 실내 높이보다 외부 높이가 더 높게 올라가게 되는데요. 이 것이 우리나라의 보편적 건물에서 보기가 어려워 어색하실 수 있으시겠으나, 다른 방법은 없어 보입니다.

다만 담당 건축사와 협의를 하셔야 하는 것이, 발코니로 나가는 창문의 하부 높이가 단열재+쇄석 높이까지 올라가야 하고, 외부 난간대 하부로 높아져야 하므로 일부 설계 변경이 되어야 합니다.

만약 위/아래로 단열재를 나누는 것도 가능은 하나, 이 역시 가능성 여부를 담당 건축사와 협의를 하셔야 할 것 같습니다.
G 마틴킴 2024.01.11 23:29
네 감사드립니다. 건축사님과 협의하여 보도록 하겠습니다.
집짓는길이 험난하기만 하네요..
M 관리자 2024.01.11 23:35
ㅠㅠ 그러게요.
도면 대로 하지 않은 부분에 대해서는 진중히 말을 해둘 필요가 있습니다. 그래야 최소한 재발을 막을 수 있습니다.

예를 들어, 마감이나 시공의 방법 등에 대해서는 설계 도면에 대해 시공사가 이런 저런 의견을 낼 수는 있습니다. 실제로 잘못된 도면도 많기에 그렇습니다.
하지만 구조체는 이견이 있을 수 없고, 있다고 하더라도 시공 후 되돌릴 수가 없기에 미리 협의가 되어야 하는 사항이기 때문입니다.
G 마틴킴 2024.01.12 00:42
건축사님과 얘기나눠봐야겠지만
그렇다면 도면대로 진행하고 발코니 전면부를 아예 썬룸처럼 막아버리는건 어떨까요?
M 관리자 2024.01.12 07:09
그거야말로 면적의 변경을 수반하므로 건축사분과 이야기를 해보셔야 합니다.
Category