계단 밑 욕실 시공 관련 문의드립니다

설계/시공관련 질문

질문 전에 먼저 검색을 해주세요.

 

계단 밑 욕실 시공 관련 문의드립니다

G 푱양냉묜 19 3,007 2023.12.22 21:35

계단 아래 욕실 일부가 포함되어 있는데요

기존에는 계단 아래에 조적벽을 쌓고 문을 만들어 놓은

상태였습니다

 

이번에 수리를 하면서 조적벽을 허물고 

그 안에 욕조를 넣고 싶은데 

인테리어 업체에서 막상 조적벽을 허무려니 

자신이 없어하는듯 합니다

 

인테리어 상담 받을 때 건축사님께도 

상담을 받은 적이 있었는데 그분은 조적벽을 허무는 것에 대해

큰 문제 없다고 말씀하셨고 혹시나 싶어서 다른 건축사님께도

여쭤봤더니 계단 아래 슬라브가 있다면 조적벽은 헐어도 

문제없을 거라고 하시는데 맞는 건지 다시 한번 확인차

문의드립니다... 

 

참고로 계단이 코너부분에서 한번 꺾이는 형태입니다

 

집이 70년대에 지어져서 얼마나 건실한 형태일진 

모르겠으나 슬라브 상태가 양호하다면 조적벽을 

헐어도 될까요?ㅜㅜ

만약 현장상태를 확인해주실 분이 있다면...

어떤분께 의뢰를 드려야 할까요??

 

그리고 계단 아래 공간의 천장 마감에 대해서도 

문의드립니다 

경사가 져있어서 smc천장은 어렵고 방수석고보드에

방수페인트로 마감을 한다는데...

방수라지만 습기가 많이 올라오는 욕조 바로 위인데

괜찮을지요...ㅜㅜ 

 

Comments

M 관리자 2023.12.23 11:26
하중을 받는 조적벽이 아니므로 철거를 하셔도 괜찮습니다.
천장은 전면 도막방수를 먼저 하고 그 위에  "전방수석고보드", 그리고 비닐계페인트를 하셔야 합니다. 
적어 주신 "방수페인트"가 무엇인지 모르겠으나, 나중에라도 구체적으로 어떤 제품인지 알려 주시면 좋겠습니다.
10 디엔에이ㅣ신범석 2023.12.24 08:34
제가보기에는, 계단 경사부분아래는 비 내력벽일 수 있어도, 그 옆부분(경사계단아래와 문사이벽)은 상부 슬라브를 잡아주는 내력벽일 수 있습니다. 그 위치의 2층 사진도 첨부부탁드립니다.
G 푱양냉묜 2023.12.25 20:58
감사합니다 계단 방향이 꺾이는 지점입니다
G 푱양냉묜 2023.12.25 20:59
2층에서 바라본 계단 모습입니다
G 푱양냉묜 2023.12.25 21:29
혹시 조금이라도 도움이 될까 하여 제가 대략 구조를 그려드립니다 한가지 더 조심스러운 것이 2층에 불법증축된 부분이 있습니다...
G 푱양냉묜 2023.12.25 21:30
측면방향 구조도 함께 올려드립니다
G 푱양냉묜 2023.12.25 21:35
아래 사진에서 표시된 부분이 불법증축된 부분입니다
G 푱양냉묜 2023.12.25 21:57
신범석 님께서 내력벽일 수도 있다고 하신 부분은 혹시 여기일까요?
G 푱양냉묜 2023.12.25 22:18
아...생각해보니 불법증축한 부분이 더 있습니다...ㅜㅜ
이쯤 되면 전문가를 현장으로 모셔야 할까요(구조기술사?)
G 푱양냉묜 2023.12.25 22:20
본채 옆에 아래 사진과 같이 증축을 하였습니다
G 푱양냉묜 2023.12.25 22:26
1층 다른 각도에서 찍은 사진도 보내드립니다
G 푱양냉묜 2023.12.26 00:44
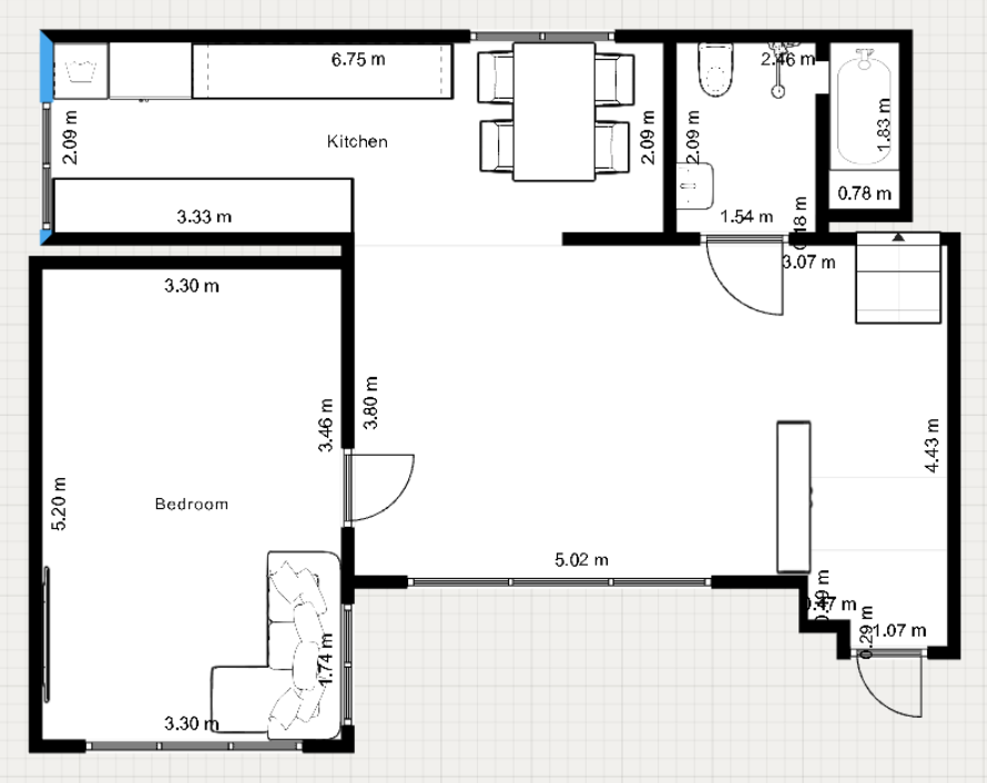
혹시 몰라 도면도 함께 첨부드립니다
제가 실측하여 작성한 것이라, 정확치 않은 부분이 있을 수 있습니다
1층 도면입니다
G 푱양냉묜 2023.12.26 00:47
2층 도면입니다
10 디엔에이ㅣ신범석 2023.12.26 10:36
제가 보기에는 옆부분(경사계단아래와 문사이벽)은 1층을 거쳐 지붕까지 올라가는 벽으로 보이며, 구조적으로 크게 작용하지는 않겠지만, 지붕하중과 2층하중을 받아주는 내력벽으로 조심스럽게 판단이 되요. 그부분은 철거를 않하시는 게 좋으실 듯 합니다.
G 푱양냉묜 2023.12.26 13:14
말씀 감사합니다 신범석님...혹시 말씀주신 벽의 위치가 정확히 어디일까요? 번거로우시겠지만 위치를 표시해주실 수 있으실까요? 제가 말씀만으로는 정확히 어디인지 잘 모르겠습니다ㅜ
10 디엔에이ㅣ신범석 2023.12.26 15:54
저 위치벽이 1층과 2층이 동일위치에 위치해 있는 것으로 보입니다.
G 푱양냉묜 2023.12.26 16:28
신범석님, 바쁘실텐데 도움주셔서 감사합니다!
10 디엔에이ㅣ신범석 2023.12.26 16:58
도움이 되셨다면, 저는 행복합니다.
M 관리자 2023.12.27 19:21
붉은 색 빗금친 부분이 콘크리트 계단 구조이므로, 아래 쪽의 파란색으로 빗금친 부분은 비내력벽으로 보입니다.
2층 벽체는 콘크리트 계단위에 올라타 있는 것이라서, 2층 구조와는 무관하기에 철거가 가능합니다.

다만 불법증축한 부분이 많고, 외벽의 사진으로 볼 때 해당 증축 외벽의 상태도 그리 좋아 보이지 않기에, 건축사가 개입을 하는 것이 좋을 것 같습니다.
Category