지하층 거실 상부가 주차장인 경우의 역전지붕 상세 관련글 작성했었는데요.

설계/시공관련 질문

질문 전에 먼저 검색을 해주세요.

 

지하층 거실 상부가 주차장인 경우의 역전지붕 상세 관련글 작성했었는데요.

1 건축하는김모씨 14 3,708 2023.12.26 10:02

안녕하세요. 일전에 지하층 거실 상부가 외부 주차장일 경우 역전지붕의 상세에 관하여 질의 드린적이 있었는데요ㅎ

 

아래 글입니다.

https://www.phiko.kr/bbs/board.php?bo_table=z4_01&wr_id=60068 

 

시공사에서 지하층 천정슬라브 레벨이 GL에서 -400이나 내려온다고 물이 어떻게 빠지냐며 계속 내단열로 바꾸고 슬라브 레벨을 올리자 하여, 투수블럭 > 잡석 하부로 물이 흘러 대지로 자연스럽게 나가는 구조고, 남은 물은 상부가 막혀있지 않아 증발 되니 그냥 해달라고 말씀드렸는데 계속 우겨서요 ㅜ 

 

제 생각이 맞는지 한 번 확인코자 글올립니다.

캡처-2.JPG

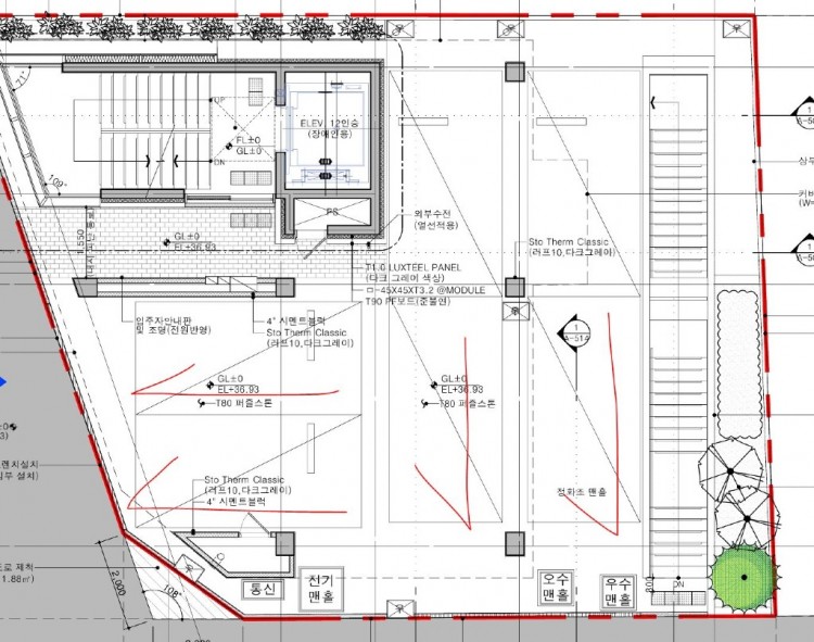
대지 경계따라 트렌치를 설치하였으며, 배치도 상에 빨간 화살표 그린 것과 같이 콘크리트 슬라브 칠때 상부에 두께를 더 주어 구배를 만들어달라고 요청드렸고, 상세는 아래 이미지와 같이 구성하였습니다.

 

 

캡처-1.JPG

(우선 좌측 부분의 하부 무근은 빼고 쇄석으로 변경 요청을 하려고 합니다.)

시공사 측 의견은 방수층 라인이 너무 아래에 있어 물이 안빠질 것 같다는 의견을 계속 피력하는데, 혹시 이 상세대로 진행하면 그런 걱정을 해야할까요?

 

위에서 언급 드린 것 처럼 방수시공만 잘 하면 물도 안 고이고, 슬라브나 단열재의 물도 상부로 다 증발할 것이라 생각되어서요... 

 

해당 레벨에서 물이 흘러나가지 못할 것 같다고 의견을 주셔서 제 생각에는 빨간색으로 표시한 것 처럼 쇄석 영역을 아래로 넓혀서 유공관을 설치해줄까 하는데, 두 의견에 대하여 답변 받아볼 수 있을까요?

 

항상 협회통해서 많이 배우고 있습니다. 감사합니다 :D  


Comments

3 밀리미터mm 2023.12.26 12:59
저도 현재 같은 디테일로 설계해놨는데 추후 시공들어갈 때 무슨 이야기가 또 나올지 벌써 걱정이 되네용
1 건축하는김모씨 2023.12.26 15:06
밀리미터님 안녕하세요 :D 전에 작성했던 질의에도 댓글 달아주셨었는데, 도움 많이 되었었습니다 ㅎ 혹시 실제로 상세대로 준공낸 프로젝트가 있으실까요?
1 건축하는김모씨 2023.12.26 16:58
추가적으로 주차장 바닥 상세는 T30받침몰탈 대신 쇄석으로 진행하기로 했습니다.
3 밀리미터mm 2023.12.26 21:37
아니요 저도 거실상부 주차장에는 처음 적용해봅니다. 역전 지붕은 여러번 해봐서 이제 좀 괜찮은데 주차장은 또 다른 이야기인지라...
M 관리자 2023.12.27 20:08
레벨은 아무런 문제가 없는데요..
일례로 대규모 현장에서는 GL-2000 을 더 들어가는 거실 상부 주차장도 흔한데, 깊을 수록 구조체가 안정적인 것은, 외기의 열적 변화와 구조체가 서로 무관해 지기 때문입니다. 그러므로 이 열적 변화를 벗어나면.. 결국 물빠짐이라는 개념 보다는.. 방수 자체의 건전성에 달려 있습니다.

소규모건축물에서 거실상부가 외부 주차장일 때 하자가 심한 것도, 구조체가 외기 온도에 따라 변형을 일으키면서 방수층이 찢어지기 때문입니다.
그래서 최소한 이렇게 (상부 방수+단열+쇄석) 해야 열적 변화에 의한 구조체 변형이 줄어들기에.. 지속가능한 형식을 만들 수 있습니다. 오히려 지금의 30mm 받침몰탈을 쇄석으로 변경을 하신 다고 하셨는데... 30mm 몰탈층도 하자를 유발하지만 그 두께 그대로 쇄석으로 바꾸는 것도 하자로 이어질 확률이 높습니다.  너무 얇은 쇄석층은 차량의 무게에 밀리게 되어서, 나중에 포장면 표면이 울퉁불퉁해 질 수 있거든요. 그러므로 지금보다 구조체를 100mm 정도 더 내리고, 쇄석의 두께를 늘려 주는 것이 더 나은 결과를 보장받을 수 있습니다.

즉 보행용 포장 하부의 쇄석은 최소 50mm, 차량용 포장 하부의 쇄석은 최소 100mm 라고 보시면 되세요.
이때 사용되는 파쇄석의 지름은 13mm 내외여야 합니다.
상상으로는 파쇄석이 두꺼울 수록 차량의 바퀴에 더 눌릴 것 처럼 느껴질 수 있는데, 실제 물리적 변형은 그 반대입니다. 그리고 포장에 사용되는 퍼즐스톤은 300x300 이상의 크기를 사용하셔야 하고요..
1 건축하는김모씨 2023.12.28 15:29
밀리미터mm
그렇군요 ㅎㅎ 시공 과정에 이슈 있으면 관련내용 한 번 계속 적어내려가 보겠습니다. 답변 감사합니다 :)

관리자
그러네요... 대규모 현장은 훨씬 깊죠. 답변 감사합니다 ㅎㅎ 도면 수정하여 시공사에 그렇게 전달해야겠습니다.

하나 더 궁금한 것이, 말씀하신 것 처럼 GL-2000 정도의 위치에 하부 슬라브가 존재할시,  슬라브 > 방수 > 단열재 > 역전지붕 배수판 > 부직포를 시공한 후 나머지 약 1600의 두께는 어떻게 채워야하나요?

경사차이가 큰 대지에 건축물의 프로젝트를 진행하고 있는데, 한 쪽이 대지 GL 선에서 1000정도 아래에 슬라브가 위치한게 있어서요.

처음에는 부직포 위에 성토를 하고 다짐 후 상부에 T200 쇄석을 깔고 최종마감을 하는 것으로 그렸다가, 다짐을 하는 순간 통기층(?)이 없어진다고 생각되어 그냥 부직포 상부를 전부 직경 40~45의 쇄석으로 까는 것으로 수정하여 도면을 작성한 상태입니다.

근데 이게 막상 그려보니 좀 ^^... 이상해보여서요...
M 관리자 2023.12.28 16:37
최근에 그 정도의 깊이는 경량토나 EPS 로 채우는데요..
검단 사건과 같이.. 이렇게 설계를 하더라도 토사를 메우는 경우가 있기에, 구조적으로 문제가 될 수 있습니다.
그러므로 토사의 무게로 구조계산을 하시되, 실제 도면은 EPS 로 메우시면 되세요.
1 건축하는김모씨 2023.12.28 17:11
그럼 경량토로 하면 부직포 > 경량토 > 최종마감으로 시공이 된다는 말씀 맞으실까요?
최종마감 하부에 쇄석을 채운다거나 그럴 필요는 없는지 싶어서 여쭤봅니다 ㅎ
1 건축하는김모씨 2023.12.28 17:13
작성한 도면과 다르게 만약 현장에서 토사로 메우는 경우 하자가 발생할까요?
M 관리자 2023.12.30 13:19
조경 마감이 아니어서 별도의 마감재가 들어가야 한다면, 그 깊이는 파쇄석으로 채우는 것이 맞습니다.
즉 방수층-보호층(배수판+부직포)-굵은 파쇄석-부직포-가는 파쇄석-마감 입니다.

토사로 메워도 되긴 합니다. 다만, 대부분 그렇듯이 다짐이 제대로 되지 않기에 5년 정도 후면 마감면이 침하가 되는 원인이 됩니다. 또한 토사의 무게를 고려한 구조계산이 되어야 하고요.
1 건축하는김모씨 2024.01.04 13:53
답변 너무 감사합니다 :)

해외 상세에서도 굵은 쇄석 > 부직포 > 가는 쇄석 으로 쌓는 것을 자주 보았는데, 이렇게 쌓는 이유가 있을까요?
M 관리자 2024.01.04 17:06
몇가지 이유가 있습니다.

1. 굵은 쇄석이 같은 높이라면 더 가볍습니다. 그래서 더 저렴합니다.
2. 굵은 쇄석이 하부에 있다면 빗물의 배수 속도에 도움이 됩니다.
3. 모두 굵은 쇄석이 최선이지만, 마감의 관점에서 가는 쇄석이 상부에 개입되어야 합니다.
1 건축하는김모씨 2024.01.05 17:42
답변 너무 감사합니다 :D
M 관리자 2024.01.08 18:33
감사합니다.
Category