신축 아파트 전열교환, 단열, 냉방 시스템 문의 드립니다.

설계/시공관련 질문

질문 전에 먼저 검색을 해주세요.

 

신축 아파트 전열교환, 단열, 냉방 시스템 문의 드립니다.

1 지아 3 5,088 2023.12.07 19:08

 

 

1. 안녕하세요. 신축 아파트 입주를 앞두고 냉방 시스템 문의 드립니다. 

기본 전열교환기는 설치되어 있고 에어컨 배관도 설치되어 있다고 합니다.  아직 에어컨은 설치를 하지 않은 상태인데, 이 상태에서 공조식으로 냉방 급기 시스템을 설치할 수 있을까요? 전열교환기에 연계해서 사용하는 시스템이 있다면 좋겠습니다.  각방에 균일한 온도를 공급하고 냉기가 너무 강하지 않은 방식을 찾고 있습니다. 믈론 제습도 되면 더 좋겠지요. 

 

2. 보통 신축 아파트에 설치된 전열 교환기가 공기 청정기를 따로 두지 않아도 충분한 성능일까요? 

아니라면 혹시 협회에서 추천해 주시는 추가 필터가 장치가 있으실까요? 


3. 신축아파트에 단열은 내단열이라 결로가 있을 수 있다고 협회 방송에서 들었습니다.  현재 신축에서 제가 미리 손을 좀 보고 들어가면 방지할 수 있는 부분이 있을까요? (떼 봐야 아는 거라 어쩔 수 없는 걸까요?)  

실크벽지로 마감을 했던데, 단열재 위에 방습층을 붙였어도 신축에 실크벽지는 내부 결로가 생길까요? 미리 합지 등으로 바꾸고 들어가야 할지 결정을 하고 싶어서요. 

마지막으로 베란다와 다용도실은 단열재가 들어가지 않았다고 합니다. 아예 단열을 하고 들어가는게 좋을지 아님 그대로 두고 환기를 잘 하면서 춥게 덥게 사는게 맞는지 고민입니다.  조언 부탁드려도 될까요?  만일 단열을 추천하신다면 단열재는 뭐가 나을까요? 이보드, 우레탄폼 등을 사용하는 것 같던데 전문가의 조언을 듣고 싶습니다. .. 그리고 단열을 추천하실 경우 셀프로 하면 하자가 많이 나올까요? ^^ 

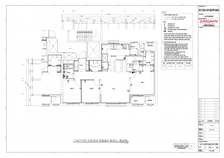
혹시 보실까봐 단열 도면 하나 첨부해 드립니다. ^^

 

열외로 단열재 자체에 대한 질문입니다.  한국에서 사용한는 단열재들은 화학성분을 방출하지는 않습니까? 

혹시 그렇다면, 친환경 소재의 단열재가 있을까요?  앞으로 집을 지을 계획이라 한번 여쭤 보았습니다.  



Comments

M 관리자 2023.12.07 21:47
안녕하세요.

1. 기존 시스템에 공조식 냉난방은 불가능합니다. 냉방을 하려면 모든 배관 표면의 결로를 막기 위한 단열을 해야 하기에 적용될 수 없습니다.

2. 기존 환기장치의 모델을 알아야 정확한 답변이 되겠습니다만... 대개의 경우 기기 필터로는 실내 공기질을 유지하기 어렵습니다. 아래 필터박스의 설치를 진진하고 고민해 보세요.
https://www.jabjaje.com/goods/goods_view.php?goodsNo=1000000425

3. 올려 주신 도면으로 볼 때, 이 아파트는 그래도 설계가 잘된 편입니다. 드레스룸 바닥 전체에도 난방배관이 깔려 있고, 열교도 비교적 잘 끊어져 있습니다.
그러므로 따로 손댈 것은 없어 보입니다. 일단은 그냥 입주를 하시고 생활을 해보시는 것이 좋겠습니다. 그리고 실외기실 등은 제대로 단열을 하지 않는다면 결국 결로를 피하기 어렵습니다. 오히려 환기를 꾸준히 하는 것이 더 낫습니다.

다만 실제 시공의 건전성은 별개이므로 장담은 할 수 없긴 합니다.

단열재의 경우, 친환경이라는 단어의 정의에 따라서 달라질 수 있습니다만, 인체에 영향을 미치는 유해가스 측면에서만 본다면, EPS 소재의 단열재가 가장 안전합니다. 다만 어떤 단열재라고 하더라도 외단열을 한다면 실내 공기질에 미치는 영향은 없다고 보셔도 무방합니다. 또한 건전한 집이 되러면 외단열이어야 하기도 하므로, 단열재의 종류는 그저 맞는 위치와 맞는 시공이 되면 괜찮습니다.
G graciah 2023.12.08 09:30
빠른 답변 정말 감사합니다.  많은 고민이 해결 되었습니다.  다만 지금 상황에선 냉방을 위해선 에어컨 설치외엔 답이 없는 거군요? 저는 공조식 냉난방 환기가 되는 기숙사에 거죽하고 있고 공기질이나 온도에 넘 만족하고 있어서 들어갈 아파트에도 비슷한 시스템을 구현해 보고 싶었던 거에요.  (에어컨의 센 냉기가 너무 싫어서요ㅠ)  그럼 이 기숙사이 배관은 단열이 되어 있는 것일까요?  배기 등 장비실이 옥상 전체에 있었는데 방처럼 깨끗하더라요 ㅎ
M 관리자 2023.12.09 12:02
네 냉방온도에 배관결로를 막을 방법은 배관 단열을 하는 것 밖에는 없기에, 말씀하신 기숙사는 중앙공조방식에 함석덕트 시공이 되어 있고, 그 위에 단열을 한 건물일 것 같습니다.
Category