평지붕외단열(역전지붕) 무근콘크리트 시공

설계/시공관련 질문

질문 전에 먼저 검색을 해주세요.

 

평지붕외단열(역전지붕) 무근콘크리트 시공

1 수야수야 11 6,765 2023.10.23 14:31

안녕하세요. 

늘 많은 도움 받고 있어서 감사드리구

설계 중 궁금한 부분이 있어 글 남깁니다.

 

역전지붕 계획중 불가피하게 

무근콘크리트를 추가 해야 할 상황이 되었습니다.

 

평지붕외단열(역전지붕)에 무근콘크리트 시공하게 되었을때

아래와 같은 디테일이어도  괜찮을지

혹 추가 되어야할 부분이 있는지 부탁 드립니다.

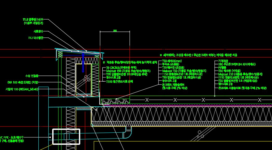
화면 캡처 2023-10-23 142314.jpg

Comments

11 잡자재 2023.10.23 18:35
말리고싶습니다만 상황이 그러하시다니 ^^; 저라면 아래와 같이 시공할 것 같습니다.
무근의 수축과 팽창에 대응하기 위해 측면에 PE소재의 측면완충재를 추가해주시는게 좋겠습니다. (단열재는 압축강도가 높아서 경우에 따라서 파라펫이 밀릴 수도 있을 것 같습니다.)
배수판을 넣는 것은 하부의 물이 배수되도록 공간을 주기 위해서이니 단열재 위에 투습방수지를 깔고 상부에 배수판을 시공하는 방안도 추천드립니다. 거기에 더해서 3개의 배수구가 필요해 보입니다. 무근 상부의 주 배수구, 무근 하부 단열재 상부의 배수구, 단열재 하부의 배수구. 이렇게 3개층의 물이 배수가 되도록 배수구를 만들어주셔야 할 것 같습니다. 혹은 측면 부위를 트렌치처럼 무근을 치지 말고 쇄석으로 채워서 측면배수구로 만들면 2개의 배수구로도 가능할 것으로 보입니다.
1 단독설계중 2023.10.23 20:37
무근을 쳐야하는 이유가 무엇인지 알 수 있을까요?? 최상층을 이용해야하기 때문일까요??
협회에서 추천하는 쇄석으로 하는 이유는 하자 보수에 용이함으로 알고 있는데 무근을 치면 하자보수가 어렵지 않나요??
M 관리자 2023.10.24 01:00
최선은...
배수판을 생략하고, PE필름+무근콘크리트를 타설하되.. 파라펫으로부터 약 200~300mm 는 콘크리트가 채워지지 않도록 거푸집을 세워서 타설을 하고, 그 빈 부분만이라도 쇄석을 채우고 배수구로 연결되도록 하는 것입니다.
1 수야수야 2023.10.25 09:20
답변 감사합니다.
건축주 요청사항이라 외단열+무근을 치는 방법을 적용해야 할것 같아요.
부분적으로 쇄석을 적용하는 방법으로 고민해보겠습니다.

외단열에 무근을 치는경우 크랙가는것 이외에 다른 단점이 있을까요?
M 관리자 2023.10.25 11:16
균열은 부차적인 하자이고,
개별적으로는 방수의 하자가 생겼을 때.. 너무나 큰 비용이 들어간다는 것이 가장 큰 단점이며,
사회적으로는... 옥상 콘크리트의 축열 때문에 도시가 더워지는 현상을 피하기 어렵다는 점이 있습니다.
1 수야수야 2023.10.25 11:41
답변 감사합니다.
너무나도 많이 배우고 있습니다 .
사진과 같은 디테일이면 될지
배수판을 삭제해도 될지 계속 의문이어서요~

아직 공부할게 너무 많은것 같습니다.
M 관리자 2023.10.25 15:06
무근 아래 배수판은 의미가 없기에 삭제하셔도 무방합니다.
1 수야수야 2023.10.25 15:19
답변 감사합니다.^^ 많은 도움이 되었어요.
M 관리자 2023.10.25 22:09
감사합니다.
G semodol47@… 2024.03.22 15:20
역전지붕 무근 타설때 거푸집을 고정하는 방법도 쉽지가 않겠네요.
현재 철골 건물 옥상,테라스쪽 어쩔수없이 역전지붕 시공해야되는 상황인데 옥상,테라스를 운동시설(테니스장)로 쓰고싶어하는 건축주의 의견때문에 고민이 많았습니다.
참고하고갑니다.
M 관리자 2024.03.22 20:23
단열재 위에 합판 거푸집을 대고 타설을 해야 하는 번거로움은 있습니다만, 높이가 얼마 되지 않아서 측압의 문제는 없습니다. 그저 ㄴ자 처럼 합판거푸집을 만들어 주고, 뒤쪽의 파라펫에 각목으로 밀리지만 않게 지지를 하면 되는데요. 현장에서 시공하시는 분이 잘 할 수 있는 부분입니다.
Category