도면을 통해 단열 상태 판단과 솔루션 조언 부탁 드립니다

설계/시공관련 질문

질문 전에 먼저 검색을 해주세요.

 

도면을 통해 단열 상태 판단과 솔루션 조언 부탁 드립니다

G 슈팅 5 6,468 2023.10.15 22:15

 

안녕하세요 

2008년 건축, 2009년 준공된 RC 단독주택을 매수 했습니다.

일부는 노출 콘크리트 일부는 치장벽돌로 되어 있는데요.

 

도면산으로 노출콘크리트는 내단열로 석고보드와 콘크리트 벽체 사이에 단열재가 있어야 했으나

막상 석고보드 일부를 잘라보니 콘크리트가 그대로 노출 되었습니다.

 

뭔가 이상해서 도면을 다시 보니 단열재가 있는 것 처럼을 보이는데 정보가 없네요.

혹시 아래 도면을 보시고

 

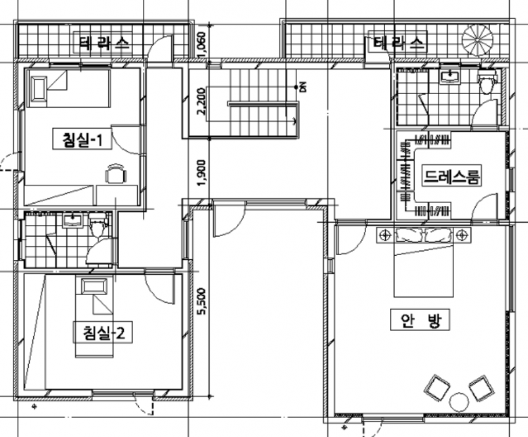
1. 노출 콘크리트 벽면에 내단열재가 표기 되어 보이는데 도면상에는 정보가 없습니다. 실제로 석고 보드를 잘라보니 단열재가 없는데요.. 단열재가 없는게 정상일까요? (마지막 2번째 사진이며, 도면상 안방 우측 벽 입니다.)

2. 내단열재가 없다면 후노출 콘크리트로 중단열이 되어 있을까요?

3. 치장벽돌 마감 벽체는 벽돌과 콘크리트 사이에 단열재가 있는 것 처럼 그려는져 있는데 단열재 정보가 도면상에서 작성되어 있지 않네요. 역시 단열재가 아예 없는 것 일까요?

4. 마지막 사진에 보면 환기 구멍이 벽에 뚤려 있습니다. 예전에 집을 지을때 결로 방지를 위해 썼던 방법이라고 하는데요. 방마다 2개씩 있어 모두 막고 전열교환기를 설치하려고 합니다. 막는 방법은 어떤게 가장 좋을까요?

 

그리고 마지막으로 이렇게 외단열, 내단열 모두 안되어 있는 상황에서는 어떻게 단열을 하는게 가장 효율적인지 궁금합니다.

아 전열교환기는 컴포벤트로 하러고 견적은 받았습니다

공사가 예정보다 늦어져 아직 준비만 하고 있네요

주단면도.png

 

계단면도.png


현황도1.png

 

KakaoTalk_20231010_171847037_01.jpg

KakaoTalk_20231010_171847037_02.jpg

Comments

M 관리자 2023.10.16 23:05
안녕하세요.. 답변이 늦어 죄송합니다.

-----------
1. 노출 콘크리트 벽면에.. 말씀하신 대로 표기는 없지만, 그저 누락된 것일 뿐, 내단열재로 예상되는 두께는 존재합니다. 그리고 이 건물이 지어질 당시에도 건축법에 의한 단열재 규정이 있었기에, 단열재 자체가 없을 수도 없고요.
그러므로 화장실의 경우 조적벽과 콘크리트 사이가 비어 있는 것 처럼 그려져 있지만, 그 부분이 단열재에 해당 된다고 볼 수 있습니다.
실재 시공은 확인해 봐야 하고요.

2. 중단열은 아닙니다.

3. 치장벽돌 마감 벽체는 벽돌과 콘크리트 사이에 단열재가 있는 것으로 그려져 있는 것이 맞고, 이 당시에는 단열재의 종류를 도면에 잘 적는 편이 아니었습니다. 물론 지금도 크게 달라진 것은 없지만... 물론 실제 적용 여부는 확인이 필요합니다.

4. 환기구멍(?)은 시멘트벽돌과 몰탈로 틈새없이 채우는 것이 좋습니다. 그리고 기존 벽체와의 사이에 미세한 균열이 생길 수 있기에, 몰탈 건조 후 기밀테잎을 표면에 붙혀 주는 것이 최선입니다.
G 슈팅 2023.11.02 02:39
답변 감사합니다.

추가 질문 드립니다
1번 질문은 화장실이 아닌 평면도상 안방과 드레스룸에 해당하는 질문 이었습니다 첨부드린 사진이 안방의 석고보드를 일부 잘라낸 것인데요. 단열재 없이 콘크리트 벽이 드러나 있습니다. 이 벽은 노출 콘크리트 벽이고 도면상 내단열재가 있어야하나 없습니다.. ㅠㅠ 이 경우 단열을 어떻게 하는게 좋을까요?

사진도 다시 첨부 드립니다.
M 관리자 2023.11.03 04:49
그렇네요. 도면엔 내단열인 구간인데.. 단열재가 없는 거네요.
이 경우 단열의 방법은 달리 뾰족한 수가 없습니다. 마감 석고보드를 걷어 내고 단열을 하셔야 합니다.
G 슈팅 2023.11.20 17:48
내단열과 외단열을 두고 인테리어 업체와 논의를 하고 있습니다.
아예 외단열 업체를 불러서 외단열을 하고 스타코 마감을 하는 것을 이야기 했는데요.
이 경우 어느정도 단열재 두깨를 사용해야 할까요?
외단열 업체에서는 준불연재로 50mm 를 이야기 했는데 너무 얇은거 아닌가 싶고.
내단열 외단열을 동시에 하는게 맞는지 외단열만 해도 괜찮은지 궁금합니다.
M 관리자 2023.11.22 02:22
단열 두께의 느낌은 아래와 같습니다.
30mm : 결로 곰팡이를 억제할 수 있는 최소두께, 그러나 엄청 추움
50mm : 단열을 했다는 것을 느낄 수 있는 최소 두께, 그러나 추운 것은 같음. 그저 엄청만 아님
80mm : 따뜻함을 느끼는 최소 두께
120mm : 무언가 만족할 수 있는 최소두께
입니다.

외단열이 건전하다면 내단열은 필요로 하지 않습니다. 그리고 내단열을 추가하는 비용으로 외단열의 건전성에 투자를 하는 것이 올바른 방법입니다.
그러나 불행히도 우리나라에서 건전한 외단열은 너무나 먼 이야기이기에 30mm 내단열은 필요악일 수 있습니다.
Category