지하층 단열재 위치 문의

설계/시공관련 질문

질문 전에 먼저 검색을 해주세요.

 

지하층 단열재 위치 문의

1 zqkd139824 7 721 09.11 09:37

안녕하세요 현재 계획설계 중 지하층의 단열재 위치관련하여 질의를 드립니다.

급하게 표현하여 질의를 드려 설명이 부족한점 죄송합니다.

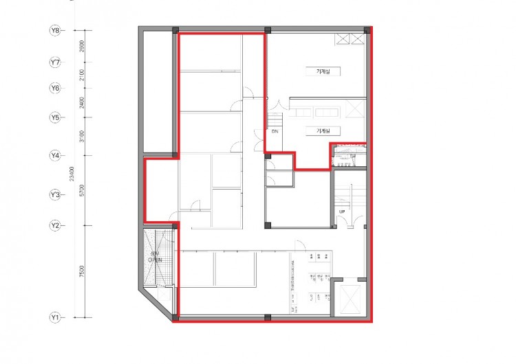
올려드린 사진은 총 4장입니다. 1,2가 알트1 이고 3,4가 알트2입니다.

CIP공법을 예상하고 있습니다.

 

1. 

알트1 지하층 외벽을 단열필요공간과 단열필요하지않은 공간을 구분하여 내단열과 외단열을 섞어서 하는것.

알트2 지하층 외벽을 단열필요공간과 단열필요하지않은 공간을 구분하지않고 최대한 외단열로 전체 벽체를 감싸는 것. 

둘 중 벽체단열 관점에서 시공성과 공사비를 고려하였을 때 합리적인 방식은 무엇인가요? 전부 내단열을 하지 않은 것은 코어 폭과 연관이 있습니다.

 

2.

상부가 주차장으로 사용됩니다. 이경우 지하층의 천장의 단열은 내부에서 PF보드로 마감하는 방식과 알트2 벽체처럼 전체를 단열재를 외측에서 까는것이 시공성이나 기능적에서 유리하지는 않은지 궁금합니다. 외부에서 깔게 되었을때 차량의 하중 토심과 직접닿게 되었을때 문제의 소지가 없는지도 궁금합니다. 외부에 까는게 지장이 없다면 외단열과 같은 압출법보온판을 적용하면 될까요?

 

급하게 질문하여 두서없이 질문드리는점 양해 부탁드립니다..!

1_페이지_1.jpg

 

1_페이지_2.jpg

 

1_페이지_3.jpg

 

1_페이지_4.jpg

Comments

M 관리자 09.11 13:13
안녕하세요.
CIP에서 지하 외벽의 외단열이 가능한 상태인가요?
1 zqkd139824 09.11 13:17
안녕하세요 CIP에서 지하 외벽의 외단열이 가능한 상태라고 질문하신 점을 이해하지 못하였습니다. 대지경계까지 일정이상의 거리가 있냐는 말씀이신가요?
M 관리자 09.11 13:39
네.. 유사한 질문이었습니다. CIP와 합벽일텐데요. 구조체를 타설하기 전에 CIP에 단열재를 붙이고 철근 배근 후에 타살을 하는 식인가 해서 여쭈언 본 것입니다.
1 zqkd139824 09.11 17:24
아마 그런방식이 되지않을까 합니다. 제가 이부분에서는 지식이 부족해서 여쭤봅니다. CIP를 적용할때 말씀해주신 방식말고 다른 방식이 있나요?
M 관리자 09.12 16:45
^^ 아닙니다. 저야 말로 무언가 독특한 다른 방법으로 하실까 여쭈어 보았습니다.
CIP에 단열재 일체타설이 생각보다 고른 단열 성능을 내기 쉽지 않은데요. 그럼에도 불구하고 이 부분은 고려하지 않고 답변 드리겠습니다.

-----------
난방이 필요없는 실 (기계실 등등)이 많아서 가능한 범위 내에서 외단열과 내단열을 혼용 하는 것이 나은 선택으로 보입니다.
즉 오른쪽 코어 쪽은 외단열을 하고, 나머지 구간은 내단열을 하던가, .. 코어와 왼쪽 일부 구간을 외단열로 하고, 나머지를 내단열로 하는 방법입니다.

주차장도 외단열을 할 수는 있습니다. 압출법단열재를 이용해야 하는데.. 아래 글이 도움이 되실 수 있습니다.
https://www.phiko.kr/bbs/board.php?bo_table=z4_04&wr_id=16782

그리고 만약 평지붕 내단열을 선택한다면 PF보드 보다는 PIR이 더 나은 선택일 수 있습니다.
G jaew1992 09.13 13:16
항상 친절하신답변 감사드립니다. 덕분에 항상 많은 공부가 되고 있어요
M 관리자 09.13 13:35
감사합니다.
Category