필로티 주차장에 있는 소화수조 및 펌프기계실 동해 가능성 여쭤봅니다.

설계/시공관련 질문

질문 전에 먼저 검색을 해주세요.

 

필로티 주차장에 있는 소화수조 및 펌프기계실 동해 가능성 여쭤봅니다.

1 천년건축 5 2,293 2023.07.05 15:21

안녕하세요,

 

상가 건물 골조공사를 진행하고 있는 현장 입니다.

 

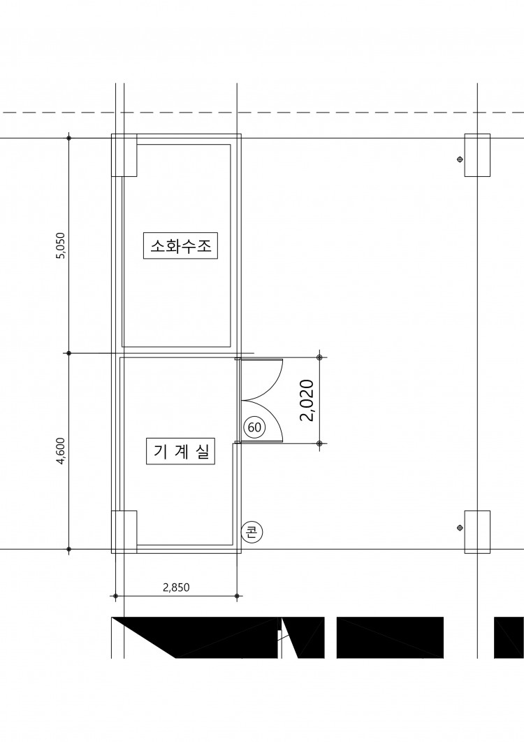
1층이 필로티 주차장이고, 주차장 한켠에 콘크리트 소화수조(탱크 따로 없이 콘크리트 박스에 물을 채우는 방식)와 소방펌프 기계실이 있습니다.

 

건축도면상으로는 단열재가 시공되지 않는 부분인데,

 한겨울철 250 두께의 콘크리트 벽체를 통해 전도되는 냉기로 20톤 용량 (바닥에서 2000mm가 수위)의

소화수조가 조금이라도 동결될 가능성이 있을까요?

 

소방감리분과 소방시공사 양측 모두 확답할수 없는 부분이라고하여 협회원분들의 의견을 여쭙고자 합니다. 

 

Comments

M 관리자 2023.07.05 16:03
안녕하세요..
질문이 먼저 있는데요.
1. 지역이 어디신지
2. 어느 한쪽이라도 볕이 드는 곳이 있는지
가 궁금합니다.
1 천년건축 2023.07.06 08:50
안녕하세요,
1. 지역은 경기도 성남시 입니다. (중부2지역)
2. 첨부한 사진 기준으로 윗방향(소화수조 벽체 4면중 기둥과 연결된 2850 길이의 벽체)만 햇볕이 들어옵니다. (건물 방위로는 남동) 그외 벽체는 주차장 천장 하부여서 햇볕이 일부만 들어오거나 거의 안들어옵니다.
M 관리자 2023.07.06 14:06
전혀 얼지 않기는 어려운 위치입니다. 다만 소화기능에 지장이 있을 동결도 되기 어렵습니다. 물의 양이 워낙 많아서 그렇습니다.
다만 감리의 입장에서는 이 표면의 얇은 동결도 인정을 하지 않을 수 있기에, 만약 승인이 어렵다고 한다면 약간의 외부 단열 조치는 취하셔야 할 것 같습니다.
1 천년건축 2023.07.06 14:22
넵, 답변 감사드립니다. 역시 외단열 시공을 하는 것이 좋을것 같네요.
M 관리자 2023.07.06 14:32
감사합니다.
중부2지역이고, 물이 20톤이나 되기에.. 약 50mm 이상의 EPS2종3호면 무리가 없어 보입니다.
Category