외부 매립 난방배관 문의드립니다.

설계/시공관련 질문

질문 전에 먼저 검색을 해주세요.

 

외부 매립 난방배관 문의드립니다.

G 쿠아호아 16 3,475 2023.05.26 17:00

이전에 환기배관 관련 문의드렸었는데, 난방배관도 추가로 문의드립니다.

 

메인동에서 다른 2개동으로 배관연결이 되다보니 외부에 매립이 되어야 됩니다. 기술단에서 보온재 및 열선시공하면 괜찮다고 제안은 해주셨는데, 뭔가 자신감이 없이 대답을 해주셔서...불안한마음에 문의드립니다.

 

이럴경우 동결심도를 고려한 매립깊이, 배관보온재 두께 등에대한 기준이 있을까요?? 없다면 좋은 제안을 좀 부탁드리겠습니다.

그리고 열선사용이 필수가 될까요? 찾아보니 보온재에 사용하는 열선의 경우 소모품? 수준으로 시간이 지나면 열선손상으로 교체필요하며 화재 케이스들도 있어서...되도록 피하고싶네요.


3개동으로 주택이 구성되어 있다보니, 최초 설계시 생각하지 못했던 난관들이 계속나오네요.ㅜㅜ

처음에 집짓기를 너무 쉽게 봤었나봅니다. 원하는 독특함과  토지모양에 어울리는 구성에 좋아했었는데, 지금도 좋긴하지만 살짝 머리가 아프네요ㅜ

 

의견 부탁드리겠습니다.

감사합니다.

Comments

M 관리자 2023.05.27 13:45
이건 그리 좋은 설계는 아닌데요. 최선은 보일러는 세 개 동으로 분리해서 설치하는 것입니다.

-------------
상황을 정확히 이해하기 위해서 해당 부분의 단면이 필요한데요. 배관이 지나가는 자리에 기초구성이라도 알려 주시면 좋겠습니다.
G 쿠아호아 2023.05.28 01:09
설계 완료 후 착공 전 이것저것 알아보던 중 (피코네 열심히 보고있습니다) 미리 공부하지 안은것에 대해 반성중입니다...ㅠㅠ.
허가신고까지 끝나고 착공 전 상태라 구조를 변경하기는 어려운 상태며, 사실 부모님께서 사실 곳인데 건물 디자인을 상당히 마음에 들어 하시기에...현상태에서 개선필요 사항들을 보완하기위해 알아보고 있습니다.

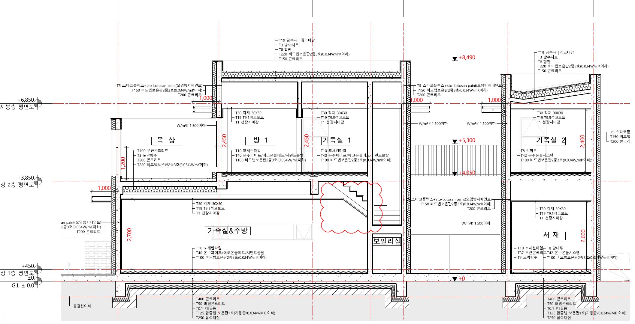
캐드파일이 없어 아래 첨부와 같이 그림파일로 올려드립니다. 혹시 단면 파악이 가능하실지요?
배관이 매립되어야 하는 이동로 부분은 콘크리트로 230mm / 450mm 입니다.
G 쿠아호아 2023.05.28 01:12
댓글내용 확인
M 관리자 2023.05.30 13:26
파악 되었습니다. 감사합니다.

오래 고민을 해 보았으나, 매립은 불가하다는 결론입니다.
그 보다는 안방과 서재의 경우 전기를 이용한 건식난방을 하시는 것이 좋겠습니다. 태양광 약 5kWp 정도의 용량이라도 설치를 하면 더 좋고요.

열선을 사용해도 도면을 그려보니.. 안되는 구간이 존재를 했습니다. 열선의 수명도 문제가 될 수 있고요.
그러므로 깨끗하게 포기를 하시고 난방 구간을 나누는 것이 최선입니다.

----
그럼에도 불구하고 배관을 연결해야 한다면.. 반지하층 같은 피트공간을 만들어야 가능한데. 그 공사비라면 그냥 전기료를 내는 것이 더 나을 것 같습니다.

----
그리고 이 모든 것을 떠나서.. 아직 설계 중라면.. 도면을 수정해야 할 부분이 있는데요. 담당 건축사가 협희의 의견을 어떻게 생각할지에 따라서 말씀을 드리는 것이 좋을지 잘 모르겠습니다.
G 김태형 2023.05.30 21:08
고민끝에 정성스런 답변 정말 감사합니다.
저도 계속해서 동파등의 걱정으로 불안하고, 가스보일러를 개별로 하자니 공간이 안나오고 하여, 말씀해주신것과 같이 전기건식으로 개별로 하는것에 대해 알아보고있었습니다만, 안방의 경우는 욕실이 있어 난방용 적은사이즈 전기보일러로는 대응이 어려워보여 결국 가스보일러를 개별 설치해야되는건가 하는 생각이 듭니다. 다만 공간이 안나와서 걱정이네요. 보일러 공간을 위해 안방에서 무언가를 포기하고 마련해야 되는데, 부모님 계획을 틀어야하니 마음에 걸리네요ㅜㅜ

두가지 추가 문의드립니다.
1. 매립이 어려운 사유에 대해 좀더 자세히 알려주실수 있으실까요? 예로, 특정깊이로 매립할경우 보온재가 특정두께 이상이 되어야 되는데 지금 깊이로는 보온재가 너무 두꺼워져서 불가하다...라던지 하는 사유에 대해 알고싶습니다.
2. 반지하층 같은 피트공간이 있으면 가능하다 해주셨는데, 거실과 안방 하부 일부구간에 지하층이 있습니다. 말씀하시는 부분이 가능할지 파악이 가능하실까요?
설계 완료단계는 아니지만 캐드파일을 받았습니다. 어떤도면이 판단하시기 좋을지 몰라 몇가지 도면파일을 비밀글로 첨부해보겠습니다. 감사합니다.
G 김태형 2023.05.30 21:14
G 김태형 2023.05.30 21:14
G 김태형 2023.05.30 21:15
M 관리자 2023.05.30 23:32
알겠습니다.
이 부분은 내일 정리해서 다시 말씀드리겠습니다.
G 김태형 2023.06.07 13:26
관리자님~ 혹시 추가로 문의드린 1,2번 항목 알수있을까요?
M 관리자 2023.06.07 13:51
아.. 죄송합니다.
제가 글을 놓쳤습니다.
혹시 온라인 회원가입이 된 상태실까요?
G 김태형 2023.06.07 14:22
현재 미가입 상태입니다. 가입해도 될까요?^^
M 관리자 2023.06.07 14:27
네.. 쪽지를 드려야 할 것 같아서요...
G 김태형 2023.06.07 15:46
네, 가입신청했습니다. 인증메일이 오지않아 확인부탁드리겠습니다.
M 관리자 2023.06.07 19:10
인증처리 후 쪽지 보내 드렸습니다.
Category