파라펫과 배수구 없는 옥상 역전지붕 시공 문의

설계/시공관련 질문

질문 전에 먼저 검색을 해주세요.

 

파라펫과 배수구 없는 옥상 역전지붕 시공 문의

G 열손가락목공방 10 4,953 2023.05.09 13:26

안녕하세요. 


유튭으로 시청만 하다가(항상 감사하게 보고 배우고 있습니다.) 


협회 글 남기는게 쉽지 않네요. 

 

염치도 없는 것 같고, 제 사랑스런? 건물의 치부를 드러내느것 같기도 하고요.


하지만 저와 같은 고민하실 분들이 있을듯 하여 감히 남겨봅니다.


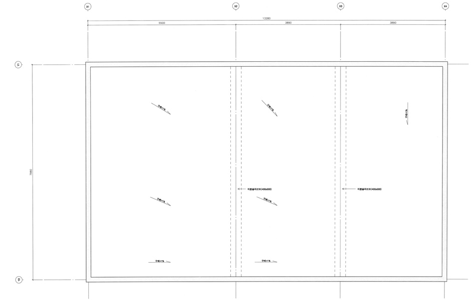
2년전 평지붕 노출콘크리트 건물(100제곱미터 13 x 8m)을 매입했는데


파라펫(난간)이 없습니다.


또한 옥상슬라브에 우수 배관이 없습니다. 


벽체를 따라 빗물이 내려가서 자연스럽게? 오염되길 의도 했던것 같습니다.


노출콘크리트.jpg

(난간, 우수드레인 별도로 없이 벽체 타고 우수가 흐르는 깍두기 모양 노출콘크리트 건물)

 

작은 기울기(도면상 1%)로 콘크리트 자체로 방수를 한것인 줄 알았는데 

구배.png

얼마전 사다리타고 올라가보니 회색 우레탄 도막방수도 병했했던것 같습니다.

 

시간이 많이 지나고 관리가 안되서 우레탄 도막이 콘크리트면을 물고 떨어지는 상태입니다.

천창.jpg

(옥상, 4개의 천창, 벽체에는 유리창이 없습니다)

 

현재 천장에서 뚝뚝 떨어지는 누수는 없으나 바닥과 벽체 이어지는 모서리에 물기가 스미는 곳이 

 

있어서 방수 및 주변 대지 정리(집수정, 유공관 등)를 하려합니다.  

------------------------------------------------------------------------------------------------------

일단 옥상 방수에 대해서 3가지 안이 있을듯한데


1. 전통?의 우레탄 도막방수 3년주기로 반복

2. 징크 시공 (견적 받아봤고 고민중입니다.이거하려면 적금 깨야 ㅠㅜ)

3. 역전지붕


1번보다 오래가고 2번보다 싸고 하자시 가역적인 역전지붕을 시공하고 싶지만 

걸림돌이 2가지 있습니다. 일반적인 시공예에서 보이는


1. 파라펫(난간)이 없다. 

2. 옥상내 우수 드레인 배관이 없다.


이 경우 역전지붕을 시공할 방법이 있을까요?


스민 물의 배수와 자갈과 단열재 쇄석 등의 레이어층의 추락과 바람으로부터 보호해 줄 

난간에 대한 고민이 드네요.


난간과 하지를 짜서 구배를 줌과 동시에 우수관을 삽입할만큼 높이고, 그 위에 방수층 등 레이어를 올려야할지


현상태에서 방수층 시공하고 레이어층을 보호해줄 각파이프와 스텐망 등의 테두리를 시공 후 

(옥상 방수층아닌 벽체 상단에 앙카)

 

기존처럼 물이 담벼락 타고 내려갈수 있도록 하고 시공해도 될까요? 

(구배가 보장되지않으니 방수층과 단열재사이에 물고임이 걱정됩니다.)


평지붕 방수 2 영상에서 저와 비슷한 질문하신분에 대한 답으로 


옆으로 빠지는 홈통도 보여주셨는데 그에대한 디테일이나 시공사례는 후속영상에서도 못본거 같아서요.

옆구리배수.jpg

 

 

평지붕방수4에서 제시하셨던 낮은 파라펫의 역전지붕시공 예처럼 풀어나가고 싶으나

(https://www.youtube.com/watch?v=smqppWaHRXE&t=3348s 55:58)

저와 다른점이 저것마저 낮은 난간과 옥상 내부 배수구가 있는 상황이었던것 같습니다.

 

 

 

좋은 아이디어 있으면 가르침 부탁드립니다.

 






Comments

G 인트루김실장 2023.05.09 13:37
제 짧은 생각으로는 파라펫과 배수구를 만들어야 할것 같은데... 구배가 보장되지 않더라도 단열재와 방수층 사이의 미량의 물고임은 역전방수의 특징중 하나인 증발로 해결 되는걸로 알고 있습니다. 아무튼 저도 확실한 해결방법이 궁금하네요... 그런데 왜 모자이크를 ㅎㅎㅎ
G 열손가락목공방 2023.05.09 13:43
이미 이리 지어진 이상 파라펫을 거푸집 콘크리트 타설 양생하는게 아닌 간이로 앙카, 철물 등으로 보강해야겠죠? 모자이크는 이미 공개된 두 분 용안이지만 제가 함부로 올려도 되나 싶어서요. ㅎㅎ. 초상권이 민감한 세상이라 쓸데없이 자기검열했나봅니다. 글 수정도 안되네요.
M 관리자 2023.05.09 21:29
ㅎㅎ... 모자이크 ..

------------
그림까지 그려야 할 것 같고.. 내용도 조금 길어서 내일 저녁까지 답변을 드려야 할 것 같습니다.
하루만 기다려 주시길 부탁드리겠습니다.
M 관리자 2023.05.11 21:41
답변이 늦어서 죄송합니다.

현 상황에서는 두가지 방식으로 접근 가능합니다.

첫번째는 몰탈로 방수턱을 만드는 방법입니다. D10 두 줄 정도의 철근을 배근하여 몰탈로 삼각형 턱을 만들고, 그 위에 시트방수는 하는 개념입니다.
외관의 오염도 사라질 것이고, 마감도 상대적으로 깔끔합니다. 다만 이 경우는 평지붕을 관통하여 배수구를 별도로 만들어 주어야 하는 단점이 있습니다.
M 관리자 2023.05.11 21:42
두번째는

알루미늄 펀칭메탈을 이용한 디테일입니다.
이 경우는 빗물을 지금처럼 외벽으로 흘려 보내는 것이 같기에 별도의 배수구를 형성할 필요는 없습니다.
청색은 후레싱이며, 녹색의 점선이 알루미늄펀칭메탈입니다.
M 관리자 2023.05.11 21:42
그저 개념이기에...
질답이 오고가면서 현실화하면 될 것 같습니다.
G 열손가락목공방 2023.05.12 00:16
콘크리트라 조적으로 턱을 만들어야 하나도 생각해봤는데 철근 배근에 몰탈은 조금 더 고오급지면서 난도가 있네요. 관통 배수구는 상상도 못했었는데 역시 전문가는 다르군요. 질문이 또 생깁니다.
1. 첫 번째 방법의 경우 내단열재를 2번 관통하는데 보완해야 할 부분이 있나요? 배수구는 75mm나 100mm 정도로 하면 될까요?
2. 첫 번째와 두번째의 경우 조적턱이나 펀칭메탈 높이는 단열재와 쇄석 마감 높이보다 높을 정도만 하면 될까요?
3. 두 번째 방법의 경우 후렉싱과 펀칭메탈의 고정은 어떻게 해야 할까요?
4. 두 번째 방법의 경우 절곡되어 옥상에 맞닿는 길이가 어느 정도 되야 할까요?
    그림상 후렉싱보다 알루미늄 펀칭메탈이 더 긴데 숨겨진 디테일이 있는 건가요?

해법을 제시해주셨으나 부족해서 의문이 또 생겨버렸네요. 추가 답변이 없어도 제시해주신것만으로도 너무 감사합니다.

다시 한번 시간 내서 이리 정성스러운 답변해주셔서 감사합니다.
M 관리자 2023.05.12 00:29
1. 배관 설치 후 훼손된 단열재를 따로 보수를 하면 되세요. 외측으로 물이 흐르는 기울기를 가졌을 거라 판단되므로.. 배수구는 75mm 네 개 (사방 한 개씩)이면 될 것 같습니다.

2. 쇄석보다 30mm 정도 높으면 됩니다.
3,4. 후레싱과 평지붕의 만남은.. 방수층 위에 접착실리콘을 발라서 접착을 먼저 하고, 측면에서 칼블럭으로 박아서 고정을 하는 방식입니다.  그런 후에 후레싱과 방수층 사이에 방수테잎으로 붙여 주면 됩니다.
펀칭메탈은 고정없이 쇄석의 무게로 지지 되는 방식입니다. 그래서 높이의 두 배에 걸친 뿌리(ㄴ자 평구간)가 필요합니다.
G 열손가락목공방 2023.05.12 01:39
1. 배수 기울기는 건물 한쪽 측면으로(정면에서 오른쪽) 1%로 설계상 되어있지만 물곰팡이 자국보면 비 많이 오면 사방팔방으로 흘러내리는게 맞는거 같긴 합니다. 4개나 뚫어야 되는군요 ㄷㄷㄷ 정면 좌측은 복층으로 사무실이라 그쪽은 못뚫을것같습니다. 정면 우측으로 1,2개 뚫으면 관이 커져야 될까요? 일반건물 옥상도 배수구는 1개만 본거 같은데 4개는 정말 무섭네요 ㅎㅎ

3,4. 방수시트에 후레싱으로 접착하면 테두리가 후레싱 두께만큼 높아지는 건데 얇아서 물 배출은 영향을 큰 영향은  못 미치나요? 아니면 조금 고이더라도 증발되어 없어 지는 건가요? 배수가 조금 덜 원활해서 물기가 있어도 단열재와 쇄석이 열과 자외선 보호해주는게 더 큰건가요?
 아... 다시 생각해보니 후레싱 전면 접착 아니면 틈으로 배수는 되겠네요.

2번 안이 끌리긴 하네요.
M 관리자 2023.05.12 22:09
지붕에 물을 뿌려 보셔서, 약해게 나마 기울기가 있다면, 그 방향으로 100mm 관 두 개를 시공해도 무방합니다.

조금 고이더라도 증발되어 사라지게 됩니다. 비노출 쇄석 마감이므로 고여있는 물이 방수층에 영향을 미치지는 않습니다.
Category