창호테이프 붙이려는데요.

설계/시공관련 질문

질문 전에 먼저 검색을 해주세요.

 

창호테이프 붙이려는데요.

3 풀신 6 182 11.25 17:26

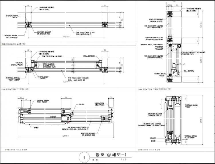
 창호테이프 붙이려는데요. 화질이 좀 낮네요. 

 어떻게 하면 되나요? 
처음 해보는거라서.
도면상 창호테이프가 시공하라고 되어있나요? 

3m꺼 있어서 붙이려고 하는데요. 

 야메로 건축배워서 질문하기도 어렵네요 ㅠㅠ

조언 부탁드립니다. 감사합니다. 

스크린샷 2025-11-25 171813.png

 

스크린샷 2025-11-25 171807.png

 

스크린샷 2025-11-25 171800.png

 

스크린샷 2025-11-25 171754.png

 

스크린샷 2025-11-25 171746.png

Comments

M 관리자 11.26 11:55
올려 주신 도면에는 창호테이프를 시공하라는 표시가 되어 있지 않습니다.
3 풀신 11.27 09:43
그러면 유투브에서 설명해주시는 누수 문제가 이 도면상에선  발생 안 하나요? 감사합니다~~
M 관리자 11.27 13:02
당연히 발생 합니다.^^
그저 우리나라의 많은 건축사가 그런 부분에 대한 도면 표시를 하지 않고 있을 뿐입니다.
3 풀신 11.29 22:26
앜... 그러면 어찌할까요.... 설계변경? 건축사설득도 안 될것 같고..
할 줄 아는 창호업체 구해서 몰래 붙일까요?
M 관리자 11.30 11:12
이미 공사를 진행 중이시라면 시공사에게 방수테잎 시공을 요청하시면 될 것 같고, 설계중이시라면 도면에 방수테잎을 표시해 달라고 하시면 되세요. 건축주가 이런 일련의 행위를 몰래하실 이유는 없습니다.
도면에 표시가 안될 것 같다면, 나중에 시공 견적을 받으실 때, 창호 주변 방수테잎을 포함해 달라고 하시면 되고요.
3 풀신 11.30 11:14
저희는 시공사입니다ㅋㅋ. 우선 할줄 아는 업체 구해보겠습니다.
Category