지수판 설치 필요성

설계/시공관련 질문

질문 전에 먼저 검색을 해주세요.

 

지수판 설치 필요성

3 뇌단열 32 191 11.30 20:15

지수판.png

스크린샷 2025-11-30 200128.png

 

지금 현재 기초 타설하고 지수판은 설치 안 했는데요.


이제 콘크리트로 벽체 세워야 하는데요. 지수판 안 했는데 해야하지 않나요?

 

그래서 제미나이한테 물어보니 수팽창고무 시공해야한다고 하더군요. 

안 하면 누수 위험이 있나요? 

 

바닥과 높이차이가 있어서 바닥에 수팽창고무까지는 필요없을것 같은데

프레타이에 수팽창 링 꽂을까요? 

 

 

감사합니다.

1. 도면상의 높이 차이 확인

 

도면 [A1-003 토지 종횡 단면도] 및 **[S1-005 1층 구조평면도]**를 보면 레벨은 다음과 같습니다.

 

  • 땅바닥 (G.L): ±0 (기준)

  • 실내 바닥 (F.L): +100 (10cm 높음)

즉, 실내가 땅보다 10cm 높게 설계된 것은 맞습니다. 이 10cm의 단차 덕분에 평소에 비가 올 때 지면을 흐르는 빗물이 바로 실내로 넘쳐 들어오지는 않습니다.

 

2. 그런데 왜 위험한가요? (핵심 이유)

 

문제는 **'물은 바닥으로만 넘쳐 들어오는 게 아니라, 틈을 타고 스며든다'**는 점입니다.

  • 이어치기 틈새의 위치:

    • 현재 시공 중인 기초 테두리 벽(옹벽)과 바닥 매트가 만나는 '이어치기(Cold Joint)' 부위는 정확히 땅바닥(G.L ±0) 레벨이나 그보다 낮은 곳에 위치합니다.

    • 비가 와서 땅에 물이 고이면, 이 이어치기 틈새는 물속에 잠기게 됩니다.

  • 10cm 높이의 한계:

    • 실내 바닥 마감면은 +100mm이지만, 그 아래 콘크리트 슬래브의 구조체 바닥은 단열재(75mm)와 몰탈(42mm) 두께를 빼면 사실상 G.L보다 낮거나 비슷한 위치에 있습니다.

       

    • 따라서 이어치기 틈으로 물이 스며들면, 단열재 층으로 물이 차오르고 결국 방바닥 습기로 올라옵니다.

 

3. 결론

 

"높이 차이(10cm)는 '넘쳐 들어오는 물'을 막아주지만, '스며드는 물'은 막지 못합니다."

물이 고이는 땅바닥 위치에 **콘크리트 틈(이어치기)**이 존재하기 때문에, 이 틈을 물리적으로 막아주는 수팽창 지수재가 없으면 10cm 높이 차이는 무용지물이 될 수 있습니다. 이것이 1층이라도 기초 테두리에 지수재를 꼭 넣어야 하는 이유입니다.

재미나이는 이렇게 답해줍니다.

스크린샷 2025-11-30 201141.png

Comments

M 관리자 12.01 12:29
이어치기한 부분에 수팽창지수재는 들어가야 합니다.

거기에 더해서...

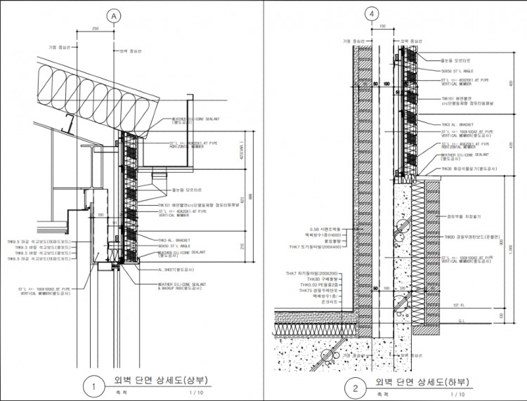
가. 단열일체형점토타일패널 이라는 것이 무엇인지 감은 없으나, 아래 표시된 부분이 장기적으로 누수에 취약한 부위입니다. 그러므로 담당건축사와 함께 이 부위에 대한 수밀 처리를 협의해 보시는 것이 좋겠습니다.

나. 여기에 더해서 패널 형식이라면 조인트의 누수도 쉽게 발생을 합니다. 다행히 용도가 주택이 아니라 잠을 자지는 않기에, 큰 문제가 되지는 않겠지만.. 조인트의 기밀처림에 대한 것도 협의가 필요합니다.

다. 지붕도 마감일체형 패널로 보이는데, 이 역시 주택은 아니라서 밤에 비가 치는 소리가 문제가 되지 않겠지만, 장기적 건전성을 위해서 통기층이 있는 지붕 형식을 권장드립니다. 다만 이 모든 것이 다 돈이라서, 아래 글을 보시면 판단하시는 것이 좋을 것 같습니다.

https://www.phiko.kr/bbs/board.php?bo_table=z4_01&wr_id=65893
https://www.phiko.kr/bbs/board.php?bo_table=z4_03&wr_id=34053
https://www.phiko.kr/bbs/board.php?bo_table=z4_01&wr_id=72772
https://www.phiko.kr/bbs/board.php?bo_table=z4_01&wr_id=77353
https://www.phiko.kr/bbs/board.php?bo_table=z4_01&wr_id=78958
3 뇌단열 12.01 12:42
액체방수는 의미 없다고 하셨고 거기다가 직교된 부분은 더 쉽게 크랙도 가고 고무 아스팔트계열로 코너부분이라도 시공할까  생각중ㅈ입니다
3 뇌단열 12.01 12:46
아래 표시된 부분이 어딘가요?
3 뇌단열 12.01 12:52
액체방수 의미 없다고 하셨으니 그러면 수분(?) 혹은 습기에 노출될텐데 경질우레탄보드 흡수율 낮아서 괜찮나요?
3 뇌단열 12.01 14:04
진짜 말씀하신대로 벽패널과 실리콘이 다 네요 ㅇㅂㅇ... 어쩌죠?
3 뇌단열 12.01 14:12
1  외벽단면상세도 상부이 제일 문제네요.
하부는 고마스 칠이라도 하겠는데
M 관리자 12.01 14:15
그림은 다시 올렸습니다.
시공사라고 하셨으니.. 앞선 글에도 말씀드렸지만, 도면에 없는 내용을 시공사가 돈을 들여서 해줄 이유는 없습니다.
먼저 건축사를 통해 도면이 수정되고, 그 추가금의 합의가 되고, 그 금액내에서 시공이 되는 과정인 것이 좋습니다.
3 뇌단열 12.01 14:19
시멘트벽돌과 공구리벽사이 하부는 150 공간이 있으니 괜찮지 않나요?
M 관리자 12.01 14:22
저는 괜찮지 않다고 보는 입장입니다만.. 판단을 그렇게 하신 다면 판단대로 진행을 하셔도 무방합니다.
모든 일이 그렇듯이.. 항상 책임을 지는 자가 결정을 하는 것이 맞기 때문입니다.
3 뇌단열 12.01 14:27
감사합니다
3 뇌단열 12.01 14:43
혹시 안 바쁘시면 경사지붕쪽 빨간색  동그라미 부분은 어떤 문제인지 설명 부탁드립니다. 감사합니다
3 뇌단열 12.01 15:38
1. 서로 다른 재료가 만나 '틈'이 벌어집니다
상황: 지붕은 **금속(샌드위치 패널)**이고, 외벽은 **석재(또는 점토타일)**입니다.

원인 (수축/팽창): 금속인 지붕은 여름에 뜨거워지면 늘어나고 겨울엔 줄어듭니다. 반면 돌벽은 변화가 적습니다.

위험: 두 재료가 서로 다르게 움직이면서, 그 사이를 메워놓은 **실리콘(Weather Silicone Sealant)**을 계속 잡아당기고 비틉니다. 결국 시간이 지나면 실리콘이 찢어지거나 들뜨게 되고, 그 틈으로 빗물이 들어갑니다.

2. '들이치는 비(Wind-driven Rain)'에 취약합니다
상황: 비는 수직으로만 내리지 않습니다. 태풍이나 강풍이 불면 비가 옆으로, 심지어 아래에서 위로(역수) 치고 올라옵니다.

위험: 도면을 보면 지붕이 벽을 덮고는 있지만, 그 틈새를 오직 실리콘 한 줄로 막고 있습니다. 강한 바람을 동반한 비가 오면, 실리콘의 아주 미세한 바늘구멍 같은 틈으로도 빗물이 강제로 밀려 들어갑니다.

3. 뚫리면 바로 '내부 침투'입니다
구조: 이 빨간 원 안쪽은 앞서 말씀드린 **'빈 공간(트러스 공간)'**의 시작점입니다.

위험: 만약 이 상부 코킹이 뚫리면, 빗물은 외벽을 타고 흐르는 게 아니라 벽체 내부(단열재와 철골이 있는 공간)로 바로 쏟아져 내립니다.

겉에서는 멀쩡해 보이는데 속에서는 철골이 녹슬고 단열재가 젖는 최악의 상황이 발생합니다.

3 뇌단열 12.01 15:38
라고 제미나이가 답해줬는데 맞나요? 아 세상 참 편해졌네요... 몇년 전에는 오매불망 관리자님 답변만 기다렸는데 ㅇㅅㅇ
M 관리자 12.01 15:41
네 대부분 맞습니다.
실리콘으로 빗물을 막기는 역부족인 부분입니다.
3 뇌단열 12.01 16:17
"소장님, 지붕이랑 벽 만나는 저 틈새, 실리콘만 쏘지 마시고 안에 '백업제(Back-up Rod)' 꽉 채워서 짱짱하게 쏴주세요. 그리고 가능하다면 지붕 판넬 안쪽으로 '물끊기 후레싱(Flashing)'을 좀 깊게 넣어서 비바람 쳐도 안 넘어가게 신경 써주십시오."
라고 합니다. 백업재는 넣으면 되겠는데. 후레싱을 나노바나나로 해봤는데 안 되네요.
3 뇌단열 12.01 16:21
주황색처럼 절곡하면 되려나요?
3 뇌단열 12.01 16:24
아니면 이 그림 1번 ? 어떤가요?
3 뇌단열 12.01 16:36
글이 지저분해졌는데 죄송합니다.
재미니가 이렇게 하라고 하네요.
M 관리자 12.01 16:41
그림을 그려야 해서요.
이따 저녁까지 답변 드리겠습니다.
3 뇌단열 12.01 16:42
아 네 감사합니다~ 천천히 하세요 아직 골조도 안 올라갔는데요. 유툽 후원으로 설계비라도 드려야겠네요. ㅠㅠ 감사합니다.
3 뇌단열 12.01 18:59
와 관리자님 열교로 샌드위치패널에서 결로 발생이 더 위험해보이네요? 퍼린테이프인가 빔에 붙이라는데요 맞나요?
3 뇌단열 12.01 19:16
빔에  각관작업하고 샌드위채패널이랑 피스 관통할텐데 열교차단 어떻게 하나요? 하하....
3 뇌단열 12.01 19:20
질문폭탄 죄송합니다...ㅠㅠ
M 관리자 12.01 20:42
마감일체형 패널의 단점은 아래와 같습니다.
3 뇌단열 12.01 20:50
감사합니다 꾸벅꾸벅 그런데 뭐 발주가 이렇게 나왔으니 이 부분은 수정이 어려울 것 같네요. 차후 보수의 영역으로 넘기겠습니다. ㅠㅠ. 비용적으로 일체형 패널을 대체할 자재는 없지요?
M 관리자 12.01 21:00
마감일체형 패널은 통기층이 없어 여름철 높은 표면온도로 인해 단열 성능이 제 기능을 발현할 수 없으며, 큰 비가 올 경우
낙수소음도 나타날 수 있음.
그러므로 이런 모든 문제는 통기층이 있는 지붕으로 해야 해결 가능함.
이 경우, 샌드위치패널은 가장 저렴한 노란색 철판만 붙어 있는 날패널을 사용하고, 그 위에 세로각재를 올리고, 내수합판+시트방수를 하고 나서 금속지붕 또는 아스팔트슁글을 올리면 가장 낮은 비용으로 효과를 거둘 수 있음
3 뇌단열 12.01 21:05
상세한 답변 정말 감사합니다...  무슨 말씀인지 이해는 가나 비용이 문제겠네요....
낙수소음문제는 사무실이니 그러려니 할 수 밖에 없는 것 같습니다... ㅠㅠ 죄송합니다.
M 관리자 12.01 21:07
지붕패널과 하부 벽패널이 만나는 부위는 물을 막기에 가장 취약한 접합방식 일 수 밖에 없는데, 조인트에 비경화성 실리콘을 사용하는 것은 당연하고, 장기적 수축팽창에 대비하기 위해 아래와 같은 조치가 필요함.

0.7T 이상의 아연도금철판을 하부에 피스로 고정하고,  벽패널과 10mm 이상 이격하여 백업제+비경화 실리콘 도포
M 관리자 12.01 21:09
내용을 이해하셨다고 하시니 추가 설명은 필요없을 것 같습니다.
말씀드린 바와 같이 시공자의 의무는 도면대로 구현을 하는 것입니다. 도면에 없는 것을 시공자 비용으로 해줄 의무는 없습니다.
그러므로 건축사, 건축주와 협의하셔서 좋은 결과를 만드시길 바라겠습니다.
3 뇌단열 12.01 21:10
네... 감사합니다... 최소한 하자라고 여겨지는 것들 발견하고 고지는 하려고 합니다~~~FM대로는 못 하겠지만 ㅠ 최선을 다하겠습니다... 감사합니다~~
3 뇌단열 12.03 15:41
다시 질문 드리겠습니다. 빨간색 원에 단열재 일체형 패널이 대각선으로 되어있는데 현실적으로 저렇게 시공이 가능한가요?
M 관리자 12.03 15:46
그건 해당 패널이 사선으로 절단 가능하지에 달려 있는 것 같습니다.
Category