거실 창호 난간 영롱쌓기 디테일관련 질문입니다.

설계/시공관련 질문

질문 전에 먼저 검색을 해주세요.

 

거실 창호 난간 영롱쌓기 디테일관련 질문입니다.

1 스와브 6 5,069 2023.01.11 20:48

 안녕하세요.

 

이전 라이브방송에서 질문드렸던 내용인데

 

도면으로 설명이 필요한 부분이라 협회 질문게시판으로 질문을 올려달라고 말씀주셔서

 

이곳에 질문드리게 되었습니다.

 

간단하게 설명해주실 수도 있는데 이렇게 성심성의껏 답변을 주신다하시어 감동입니다!!

 

 

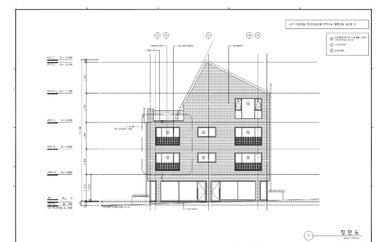
아래 사진은 현재 도면상태입니다.

 

거실 창호 난간을 영롱쌓기로 하고자 하는데요.

 

합리적이고 건전한 시공은 어떤 식으로 시공해야하는지가 궁금합니다!

 

추운 날씨에 항상 건강유념하시고, 새해에도 복 많이 받으세요^^

감사합니다!!

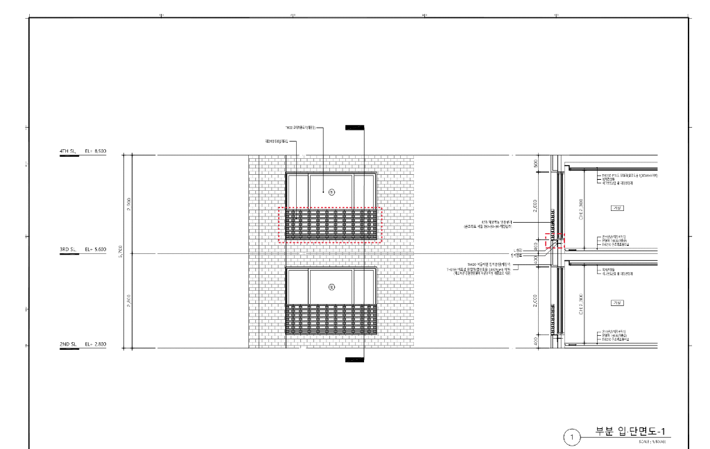
영롱쌓기 디테일_1.png

 

정면도.png

Comments

M 관리자 2023.01.11 22:12
영롱쌓기의 문제는 .. 벽돌 뒤로 빗물이 쉽게 넘어갈 수 있는 구조가 된다는 점입니다.
그러므로 라이브를 보셨기에 이미 잘 아시겠지만, 구조체가 끝난 후 창호를 설치하고 창호 주변으로 방수처리를 잘한 다음, 단열재를 붙이고 벽돌을 쌓아야 합니다.
노파심에 말씀을 드렸습니다.

영롱쌓기는 사실 우리나라에서 그리 맞는 방법은 아닙니다.
아래 그림처럼 수직으로 벽돌의 구멍을 일치 시켜서 철근을 넣어야 하나, 아시다시피 우리나라 벽돌은 구멍이 3개만 있기 때문에.. 본질적으로 구축방식이 일치하지 않습니다. (파란색이 철근)
그래서 해외 처럼 작은 구멍이 많이 나 있는 벽돌을 사용해야 합니다.
M 관리자 2023.01.11 22:14
이런 상황에서의 최선은...
주변 벽돌이 비구조요소의 내진설계 메뉴얼에 따라 설계/시공이 된다고 가정을 하고...
난간의 맨 윗단 바로 전에.. 두께 6mm 의 아연도금철판을 올려서, 주변 벽돌과 일체화를 만드는 방법이 유일합니다.

즉 아래 그림처럼 벽돌 위에 아연도금철판을 올리고 그 위에 다시 한 단을 더 올리는 개념입니다.
철판은 양쪽의 막힌 줄눈 벽돌 속에 들어가되, 한장 반 만큼의 길이가 묻혀야 합니다.
G 스와브 2023.01.12 08:53
상세한 답변 감사드립니다!
첫 질문에 사용 예정인 벽돌을 함께 올려서 문의드려야 했는데 생각을 못 했네요~
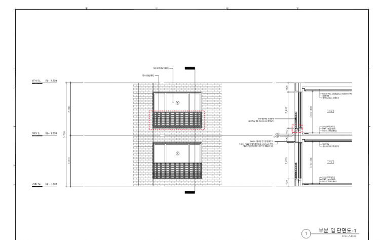
아래와 같은 영롱쌓기 전용 벽돌이 있던데요.
이런 전용 벽돌을 사용 시에도 시공방법은 동일하게 하면 될까요!?
M 관리자 2023.01.12 10:13
이런 벽돌이면 괜찮습니다. 이 구멍 속에 철근을 넣고 몰탈을 채우면 되세요.
맨 상부에도 창과 수평방향으로 벽돌 상단에 철근을 넣고 벽돌을 붙이면 되는 방식입니다.
1 스와브 2023.01.12 19:06
네 그렇군요!! 답변 감사드립니다!!
M 관리자 2023.01.13 10:59
감사합니다^^
Category