창호사이즈줄이고줄인만큼벽이생기면구조검사를다시해야하나요?

설계/시공관련 질문

질문 전에 먼저 검색을 해주세요.

 

창호사이즈줄이고줄인만큼벽이생기면구조검사를다시해야하나요?

G 유상원 6 2,383 2022.12.27 01:59



오늘건축사님과통화하면서

창호사이즈를줄이게되면벽이늘어나는거니

구조계산을따로안해도되는거아니냐고말씀드렸더니

벽이늘어나는만큼새로생긴벽에들어가는철근양이나두께가달라지니그걸알아보려면구조를다시받아야한다고말을합니다.

설계변경비용도700만원내야한다고합니다.

그리고창호사이즈조정도면적대비50프로이상뽑아서

도면다만들고건축허가나면다행인데

주문관이빠꾸놓으면다시조정하고주무관한테검사받고

해야한답니다.

빠꾸맞으면다시설계해야하니

추가설계비용이또발생하고요.

답답합니다.

법적인기준을맞춘다고해도주무관이안된다고하면

어쩔수없다는게.

 

 

1.창호사이즈줄이면서추가로생긴벽때문에

구조를다시맡겨서추가된벽에들어가는재료들을다시뽑아야하는게맞는건지요?

아니면그냥새로생긴벽만큼철근양이라던지콘크리트양이라든지비율에맞게늘리면되는건지요?

 

2.발코니확장부분창호면적을50프로이상맞춰서조정했음에도빠꾸를맞아서다시조정해야한다면건축사가허가날수있는크기를알아봐줘야하는데알아봐주지못한부분에대한책임은없는지요?

 

자다가이생각이정리가안되서

답답한마음에글남겨봅니다-.-



Comments

M 관리자 2022.12.27 12:46
1. 창문 크기와 관련해서는 정황을 알지 못하기에 따로 언급할 것은 없어 보입니다.
2. 해당 부분은 건축사의 귀책사유입니다.  다만 설계과정에서 건축사의 의견과 다른 것을 건축주가 요구를 했고, 그 요구 사항 때문에 허가시 수정 요청 사항이 나온다면, 그 부분은 건축주의 귀책사유가 될 수 있습니다.
M 관리자 2022.12.27 16:10
다만 노파심에 첨언을 하자면...
설계비용에 대한 협의 사항을 모르기에 두번째도 제가 함부로 말씀드릴 수는 없긴 합니다.
예를 들어 천만원을 받아야 하는데, 7백만원으로 합의를 보고.. 설계변경의 요인이 발행하면 (설사 그게 건축사의 귀책사유라 할지라도) 추가 비용을 요구할 수도 있습니다.
이 방식이 올바른 방식도 아니기도 하고, 이렇게 되려면, 이런 이야기가 계약 과정에서 모두 겉으로 표현이 되어야 합니다만.. 이런 사연을 모르고 말씀을 드리는 것이 잘못된 접근일 수도 있어서 댓글을 추가했습니다.
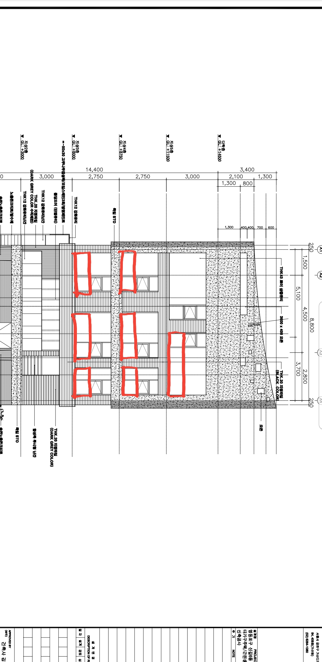
G 유상원 2022.12.27 19:35
창문사이즈줄이는게대략이정도입니다
M 관리자 2022.12.27 21:36
아.. 이해를 했습니다.
신축이고, 이미 설계를 완료했는데.. 창문을 줄이고자 하시니... 구조 검토를 다시 해야 한다는 의미시네요.

창을 줄이면 관련 도면을 다시 그려야 하므로, 설계변경비용은 들어갑니다. 지금이 설계의 어느 시점인가에 따라서 그 비용은 달라집니다만...
이미 모든 설계가 완료된 것이고, 허가만 남은 것이라면 비용은 발생됩니다.
다만 이미 있는 창문을 줄이는 것이므로 별도의 구조검토가 필요로 하지는 않습니다. 철근배근도 달라질 것은 없어 보입니다.
아마도 건축사의 업무가 증가됨에 따라 발생하는 비용에 대해, (그저 서로 이해되기 쉽게) 구조검토로 이야기를 한 것 같습니다.

또한 허가과정 중에 건축심의를 받은 건물이라면, 창문 크기가 달라진 것에 대해 재심의를 받아야 할 수도 있습니다. 공무원이 반려를 한다는 것이 그런 의미일 수도 있습니다.
G 유상원 2022.12.28 07:44
답변감사합니다.
돌려돌려조금이라도설계변경비용을합리적으로올리기위한거겠네요.
일단주기로한거감정상할필요없이그냥주고털어버려야겠네요^^
속이후련합니다ㅎ
M 관리자 2022.12.28 09:28
잘 생각하셨습니다. 감사합니다.
Category