스토(로투산 페인트)가 외장재로 가격만큼 가치가 있나요?

설계/시공관련 질문

질문 전에 먼저 검색을 해주세요.

 

스토(로투산 페인트)가 외장재로 가격만큼 가치가 있나요?

1 데이빛 50 5,853 2022.08.29 20:01

지하층 양옆으로 사선마감이 있습니다. 흙에 잠기지 않는 부분에 외장재를 처음엔 스테인칠로 하고 내단열을 생각했는데요..아무래도 사무실 등으로 쓸 생각이라 외단열로 가고 외장재를 다시 생각 중입니다. 

 

면 느낌을 주고 싶어서 결국 스타코 종류로 생각이 모아지는데요.(혹시 다른 외장재 중에 면 느낌을 줄 수 있는 자재 있다면 추천 부탁드립니다) 

 

스타코보다 좀 더 오염에 강하고 품질이 좋다고 하는 스토(로투산 페인트)를 생각 중입니다. 

 

어떤 분은 스타코 중에서도 비슷한 성능의 제품들이 있다고 하시더라고요. 

 

직접 경험해보신 분들(건축주분들) 있다면 의견 듣고 싶습니다. 5-10년 그 이상 지나도 어느 정도 퀄리티가 나오는 그런 제품이 스타코 중에서도 있나요? 

 

스토랑 비슷한 기능을 갖고 있으면서 좀 더 저렴한 제품을 찾고 싶습니다. 

Comments

M 관리자 2022.08.29 21:58
가격만큼의 가치는 없습니다.
오염은 오로지 물끊기만 잘해도 되세요. 기능성 마감재는 건강보조식품이라고 보시면 적당합니다.

여기에 관한 내용은 아래 글에 정리되어 있습니다.
http://www.phiko.kr/bbs/board.php?bo_table=z3_01&wr_id=556
1 데이빛 2022.08.29 22:09
관리자님, 랑크 글을 읽다가 궁금한게 또 생겨서 여쭙습니다.

시스템창호(엔썸)를 설치하고 4면 갈바후레슁을 외부에 시공하려고 합니다.

갈바후레슁 시공 시 주의해야할 점이 있을까요? 물끊기 혹은 기타 다른 측면에서 예방할 수 있는게 있을까해서요.
1 데이빛 2022.08.29 22:18
두 가지 질문 더 드립니다.

1)혹시 스타코 마감시에 단열재는 준불연 혹은 불연자재를 쓰는게 좋을까요? 대체로 eps로 많이 하는 걸로 알고 있습니다만..

2) 스타코 제품 중에서 좀 더 추천할만한 제품은 없을까요? 하자가 적은 제품이 있는지 궁금합니다.
M 관리자 2022.08.29 22:26
갈바후레싱은 나중에 디테일이 나오면 구체적으로 답변을 드리는 것이 좋을 것 같습니다. 지금은 너무 막연해서요.

1. 법이 정한 것이 아니라면 EPS를 사용하시면 되세요.
2. 그런 제품은 없습니다. 전문 시공팀과 계약을 하는 것이 중요하며, 그 것은 규정을 지키기 때문입니다. 규정은 아래 글의 첨부 파일을 다운받으시면 되세요.
http://www.phiko.kr/bbs/board.php?bo_table=z3_01&wr_id=351
2 데이빛 2022.09.13 11:03
관리자님 두 가지 질문 좀 드릴게요.

1)지하층 외장재를 외단열 및 외방수 꼭 하고 싶은데, 사실 1,2층은 조적마감입니다. 그래서 외장마감선이 달라지는 상황 때문에 고민인데요.
 조적의 내진관련 이슈는 일단 차치하고..
지하층과 1층 외벽마감라인이 달라질 경우, 하자가 생길 위험이 커질까요? 지하층은 철콘에 스타코 마감이 되면서..1층 조적턱보다 더 외부로 튀어나오게 됩니다..

조적철물을 1층 기단부에 쭉 대고 그 부분에 조적일부를 얹어서 쌓는 방법은 위험할 것 같아서 포기하려구요. 그렇다고 지하층 외단열 외방수도 포기하고 싶지 않아서..외관이 좀 이상해보일 수 있지만 지하층 외장마감재가 더 튀어나오는 식으로라도 해볼까합니다. 다만 이 경우 1층과 지하층 마감라인이 일치하지 않는 부분에 누수나 열교 등 문제가 생길 가능성이 큰지 궁금합니다.


2)시공사 계약서에, 민원으로 인한 책임에 대해서 특약을 넣으려고 합니다.

시공사는 ‘민원으로 발생되는 공사지연에 대한 손실책임, 벌금 및 법적책임 등은 건축주의 책임으로함’이란 문구를 넣자고 하는데, 저는 이런 문구는 좀 건축주에게 부당한 것 같아서요.

차라리 ‘ 민원 중에 법적으로 건축주가 미리 알아보고 선행조치를 취했다면 나오지 않았을 민원들(도로점용허가/주말공사 시 동의서 받기 등등)이라면 건축주가 책임지되, 건축주와 시공사가 협의 하에 진행한 경우에 생긴 민원에 대해서는 시공사가 책임지고,  그 외 비상식적인 민원에 대해서는 시공사와 건축주가 공동으로(1/2씩) 책임진다.’ 이런 문구로 바꿀까합니다.

보통 이런 시공사와 계약에(건축주 직영) 민원관련 책임은 어떤 식으로 명시가 되는지 궁금합니다.
2 데이빛 2022.09.13 11:22
그리고 혹시 스타코 시공 시 레인스크린(?) 역할을 해주는 뭔가를 시공해야 하자예방을 할 수 있다는 이야기를 들은 것 같은데 어디서 들었는지 기억이 나지 않네요..혹시 건축의 악 등 협회 유투브에서 이런 내용 다루신 적 있을까요?
M 관리자 2022.09.13 12:53
제가 질문이 하나 있는데요.
위에 설명하신 내용 중에 지하층의 상부 절반은 콘크리트가 노출되는 형태라고 하셨는데요. 그래서 저는 상부 절반이 노출인데, 하부만 외단열을 하는 것이 아무 의미가 없기에 밑에 그런 답변을 드렸던 것입니다.
이 것이 저의 오해일 수도 있겠다 싶어서요. 이 부분을 먼저 정리를 해야 할 것 같습니다.
2 데이빛 2022.09.13 20:35
아..네 처음 글을 쓸 때만해도, 사선마감에서 1/2는 비노출이고 나머지 노출1/2만 스타코 마감을 생각했습니다.

근데 아예 그냥 전체를 스타코 마감으로 할까싶은데 가능할까요? 아니면 가능해도 불필요할까요?


즉, 원래 지하층 비노출되는 부분은

콘크리트외벽->프라이머->방수시트->압출법단열재 두 겹->드레인보드(울퉁불퉁한 부분이 단열재 방향)->흙.

이렇게 생각했거든요.

근데 생각해보니..스타코 마감을 노출된 부분만 한다면 제대로 가능할지(마감라인이 맞춰서 제대로 스타코 시공이 가능할지) 몰라서 아래처럼 생각 중입니다.

콘크리트외벽->프라이머->방수시트->드레인보드(울퉁불퉁한 부분이 단열재 방향)->압출법단열재 두 겹->스타코 마감.

비노출 부분 노출 부분 모두 이런 구성으로 하면 어떨까요? 비노출 부분은 스타코 마감을 안 하면, 그냥 단열재 두 겹으로 자갈에(배수를 좋게 하려고 지하측면에 자갈이랑 모레 등으로 되메우기 하려고요) 잠길텐데요..단열재와 자갈 등이 바로 닿으면 분명 단열재가 찢어질테고..뭔가 더 해야하지 않을까요?
M 관리자 2022.09.13 21:12
사선의 경사도가 대략 얼마 정도일까요?
2 데이빛 2022.09.14 00:28
글쎄요..사실 도면에는 경사도까지는 없어서요. 일단 한쪽 면 외부계단이 있으니 대략 30도쯤 될 것 같습니다만..사실 측면 마감은 현장 시공상황에 따라서 유동적일
것 같습니다..
M 관리자 2022.09.14 13:12
혹시 설계도면의 수정이 가능한 상황이신가요?
경사면에는 스타코마감이 불가능하거든요. 모든 경사면은 지붕과 같은 소재로 마감이 되는 것이 맞습니다. 즉 금속계열이 개입이 되어야 합니다.
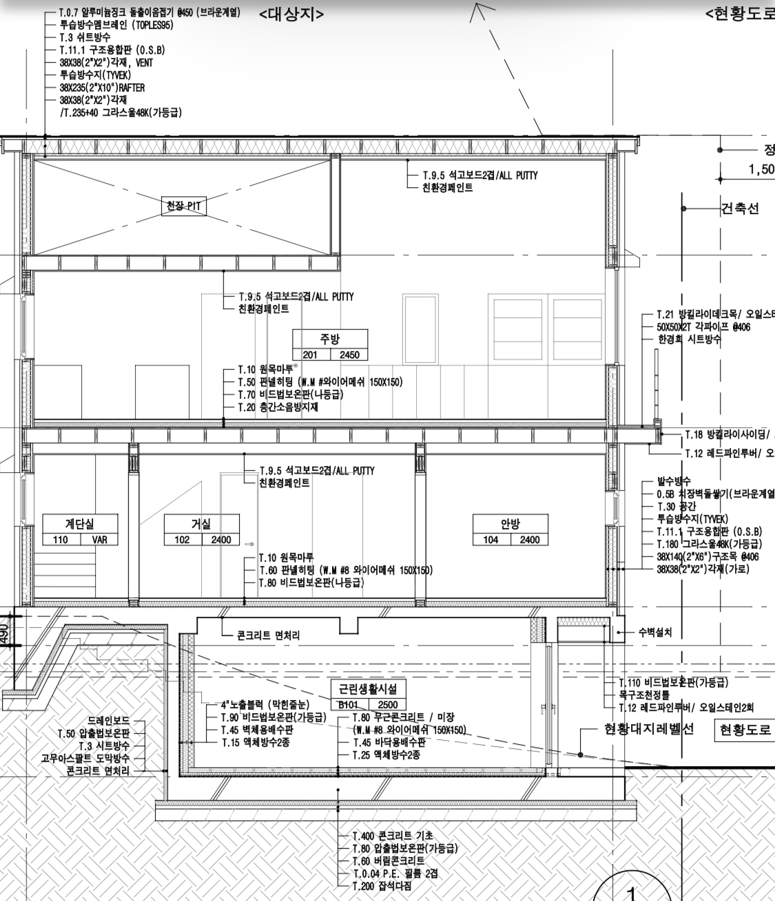
그 아래 수직면은 스타코가 가능하고, 만약 도면의 수정이 가능한 상황이라면 여기에 맞는 개념도를 그려서 올려 드릴게요.
2 데이빛 2022.09.14 16:56
착공 전이기도 하고 경미한 수정은 필요하다면 하려고 합니다.

말씀하신 경사면이..혹시 지하층 사선마감 경사면 말씀일까요? 그리고 지붕마감은 원래 도면상의 알징크 대신 평기와로 변경했습니다. 그럼 이 경우 지하층 양옆면 경사면 사선마감은 어떤 식으로 하는게 좋을까요?

그 아래 수직면은 어떤 부분을 말씀하시는건지 제가 잘 이해가 안 되긴 합니다..!ㅠㅠ
2 데이빛 2022.09.14 17:35
관리자님 다른 질문인데요.

지하층 외단열을 중부2지역 기준 140t로 생각하고 있습니다. 혹시 더 얇으면서 열관류율이 좋은(?) 단열재가 있을까요? eps나 xps 말고 pf보드라는건 들어봤는데요..혹시 추천해주실만한 단열재가 있다면 추천 좀 부탁드립니다. 지하층 외부에 작업공간이 넉넉치 않아서..단열성능을 높이고 싶은데 무작정 두껍게 하기가 어려울 수 있어서요. 상대적으로 얇지만 단열성능은 더 좋은 자재가 있다면 그걸로 바꾸고 싶습니다.
M 관리자 2022.09.14 17:38
그 사선이 있는 부분의 단면도가 있다면, 올려 주시는 것이 좋습니다.
지하층 외단열은 XPS외에 대안은 없습니다. PF는 아예 사용가능하지도 않고요.
2 데이빛 2022.09.14 21:31
댓글내용 확인
2 데이빛 2022.09.14 21:38
댓글내용 확인
2 데이빛 2022.09.14 21:54
혹시 지하층 외단열 관련해서..ek단열드레인보드는 비추일까요?

https://m.blog.naver.com/PostView.naver?blogId=h0618&logNo=220078511553&navType=by
M 관리자 2022.09.15 13:07
도면은 제가 주말에 한번 정리하겠습니다.
단열드레인보드는 내부용이며, 외부에 사용될 수는 없습니다. (해당 회사의 메뉴얼과 상관없이 물의 흐름상 내부용입니다.)
질문이 있는데요.. 올려 주신 도면에 사선 구간이 존재하지 않는데요. 사선 부분이 잘린 단면도는 없을까요?
2 데이빛 2022.09.16 02:35
감사합니다. 단열드레인보드는 내부용이군요..

사선 잘린 단면도는 없네요..

관리자님, 지하층 관련 질문 하나 더 드려요.

외단열 50t+지하층벽체(200t)+내단열50t(내단열재 두께는 필요시 더 두껍게 할 수도 있습니다)

이런 식으로 단열을 할 경우, 중부2지역 혹은 1지역 기준일 때, 지하층 벽체와 내단열재 사이에 겨울철 결로 가능성이 있을까요?

아무래도 실제 측량해보니, 지하층 외부 작업공간 부족으로 외단열을 140t정도 하고 싶은데 못할 것 같아서요. 외단열 일부+내단열 일부 조합으로 가야할 것 같습니다.

제가 우려하는건..원래 도면에 있던 이중벽처럼, 이중벽을 하면 그 안에 곰팡이가 생기고 그 냄새가 지하층에 스며들거라서요..그래서 안 할 예정인데요. 만약 100% 외단열이 아닌, 외단열+내단열 구조일 경우, 결로점이 내단열재와 벽체 사이 틈(?)에 생기면, 이중벽체 곰팡이 생기는 것과 비슷하게 곰팡이가 생겨서 결국 지하층에 곰팡이 냄새가 날 수 있을 것 같아서요..

얼마나 그럴 가능성이 있을까요?


그리고..지하층 벽체와 1층 기초바닥(지하층 천장) 타설이 이어치기를 할 수밖에 없다고 하는데요..그러면 어느 정도 단열이나 방수가 깨질 수밖에 없을 것 같습니다.지하층 타설에서 이어치기가 불가피하다면, 보완책이 있을까요?
M 관리자 2022.09.16 20:11
외단열이 안된다면 내단열에서의 최선을 찾을 수 밖에 없습니다.
내단열은 방습층의 건전성에 달려 있으므로, 지하층인 경우 언급하신 단열드레인보드를 사용하시고, 방습테잎을 시공해 주면 되세요.

이어치는 구간에 지수제를 시공해 주는 것이 최선입니다. 이 역시 불가피하다면 어쩔 수 없을 것 같습니다.
2 권희범 2022.09.18 01:15
사선은 지하층 골조의 경사면이 아니라 흙의 경사면을 말씀하시는 것 같습니다.
경사가 있는 대지에서 지하층이 일부는 매립되고 일부는 노출되는 샹황요.
M 관리자 2022.09.18 23:42
아.. 그런 가요..
데이빚님.. 맞다면 다시 알려 주세요..
2 데이빛 2022.09.19 16:48
아 네 권희범님 말씀이 맞습니다. 

물론 흙의 경사면이 정확히
사선은 아니지만..

양 옆면은 일부는
땅에 잠기고 일부는 외부로 노출되는
형태라서요. 얼마나 노출될지는 현장 상황보면서 결정될 것 같습니다.

여튼 한 면에 땅에 잠기는 부분(혹은 외부계단 등에 의해 비노출되는 부분)과 외장재 마감이 필요한 부분이
동시에 존재하는거죠.
2 데이빛 2022.09.19 17:03
지하층(콘크리트) 양단열 문의 한 번 더 드립니다.

지하층 벽체는..외부 작업공간이 부족한 부분이 있어서 일단 양단열로 하기로 했는데요.(원래는 외단열140t xps를 하고 싶었습니다.)


*외부벽체구성은 아래와 같습니다.

(흙에 잠기지 않고 외부로 노출부분)
스타코->EPS50t(가등급)->쉬트방수->액체방수(비노출우레탄)->콘크리트벽체(200t)->액체방수(비노출우레탄)->EPS90t(가등급)->합판+천연미장(규조토 등) 마감.


(흙이나 외부계단에 의해 비노출되는 부분)
드레인보드->XPS50t(특호)->액체방수(비노출우레탄)->콘크리트벽체(200t)-> 액체방수(비노출우레탄)->EPS90t(가등급)->합판+천연미장(규조토 등) 마감.


양단열이 콘크리트 수분 미배출로 인한 결로 곰팡이 문제가 있다고 들었는데 괜찮을지 염려가 됩니다.

특히 지하층이다보니..분명 습기가 외부에서 혹은 내부에서 올라올텐데요..이 습기가 과연 내부 90t eps를 만나서 어떻게 될지..혹시 결로가 거기서 생길 우려가 있다면 그냥 내단열 포기하는게 나을까싶기도 합니다.

아무리 벽체를 말리고 내단열 시공해도, 지하층 특성상 분명히 외부벽체로 혹은 바닥에서 습기가 올라올텐데요..내단열재와 벽체 사이가 괜찮을지 아무리 생각해도 마음이 놓이지 않고 분명 장기적으로 곰팡이가 생길 가능성이 커보입니다..

이중벽체를 포기한건 곰팡이 냄새를 맡고 싶지 않아서였거든요.
M 관리자 2022.09.19 19:23
아. 이해했습니다.
그럼 지금까지 오고간 것을 다시 정리할 필요가 있습니다.
그림을 그려서 다시 설명을 드리겠습니다.
M 관리자 2022.09.19 23:43
일단 단열의 처리는 평지와 같습니다. 흙으로 묻히는 부분으로 부터 150mm 높이까지는 압출법단열재로 처리가 됩니다.  그러므로 흙을 되메우기할 높이를 고려해서 조금 여유있게 압출법단열재를 시공해야 합니다.
M 관리자 2022.09.19 23:45
지하층은 .. 특히 외부에 별도의 구조물이 붙는다면 이중벽까지는 아니더라도 위에 언급된 단열드레인보드가 실내측에 들어가는 것이 좋습니다.
그리고 혹시 모르니 바닥에도 배수판을 두고, 집수정은 두지 않더라도 하수배관을 통해서 나갈 수 있는 구조였으면 좋겠습니다.

그리고 실내측의 방수 작업은 무의미합니다. 그 비용을 아껴서 단열드레인 보드에 방습테잎을 건전하게 시공하도록 투자하는 것이 더 나은 방법입니다.
2 데이빛 2022.09.20 10:48
관리자님, 제가 업체에 물어보니,

외부용(ek 단열드레인보드)과

https://m.blog.naver.com/PostView.naver?blogId=h0618&logNo=220078511553&targetKeyword=&targetRecommendationCode=1


내부용(ek 단열방습보드) 두 가지가 있다고 하네요.
https://m.blog.naver.com/PostView.naver?blogId=h0618&logNo=220655181488&targetKeyword=&targetRecommendationCode=1

여기서 외부용(드레인보드)은 외단열재+드레인보드 하는 것과 비슷해보이는데, 드레인보드 울퉁불퉁한 면이
부직포쪽을 향한다는 게 다르더군요. 즉,[ 흙->부직포->드레인보드(울퉁불퉁한 면이 부직포쪽)->외단열재] 이런 식의 구성입니다.

내부용은 10센치 간격으로 1센치 정도 직경으로 홈피 파여있어서 콘크리트 내벽 습기가 마를 수 있게 한다고 하네요.


두 가지 중 어떤 걸 추천하시나요?
M 관리자 2022.09.20 11:39
외부용의 단면 형상에 대한 정확한 정보가 없어서 판단이 어렵지만. 희릿한 사진으로 볼 때, 외부에 외부용은 사용될 수 없을 것 같습니다.
내부에 내부용은 사용가능합니다. 다만 습기가 마르는 것은 아닙니다. 증발해서 갈 곳이 없기 때문입니다. 그저 흘러 내려서 배수가 될 수 있도록 하는 역할입니다. 그래서 이름도 드레인보드 이고요.
2 데이빛 2022.09.23 13:20
감사합니다.
2 데이빛 2022.09.23 13:21
감리자님 혹시
티푸스코리아 열교차단 제품 중에서..

지하층 공사 때,
혹은 지하층->1층 연결 부위 등에 사용할 만한 제품이 있다면 추천 좀 부탁드립니다.
M 관리자 2022.09.23 18:04
층간의 연결부위의 구조체 사이에 개입되는 것이라면 사용될 수 있는 제품은 없습니다.
다만 위에서 말씀하신 본 구조체의 옆에 이어치기를 하는 (옹벽 하부 지지용) 콘크리트 기초 사이의 열교를 차단할 수 있는 제품은 TB블럭에 주문제작으로 만들 수 있습니다. 다만 일반 티비블럭 제품보다는 가격이 꽤 올라갈 수 있습니다.
2 데이빛 2022.10.01 02:19
감사합니다.
2 데이빛 2022.10.01 02:24
댓글내용 확인
2 데이빛 2022.10.01 02:25
댓글내용 확인
2 데이빛 2022.10.01 02:27
댓글내용 확인
2 데이빛 2022.10.01 02:48
그리고..첨부한 사진에 보면 배관이랑 철근이 서로 연결되어 고정되어 있지 않습니다. 나중에 기초 타설 할때 배관 구배가 흐트러질 수 있을까요? 그럼 철사로 최대한 철근이랑 배관을 고정시키는게 필요할까요? 현재 배관구배는 아래 벽돌로 높이를 조정해놓았는데요..역시나 기초 타설할 때 구배가 무너질까 염려가 됩니다..
M 관리자 2022.10.01 21:57
비가 올 때, 빗물을 미리 뺄 필요는 없습니다. 비가 다 그친 후에 빼시면 되세요.
이는 단열재를 깐 다음에도 마찬가지입니다.

배관은 철근과 타이를 이용해서 강하게 접속을 해야 합니다.

-----------------
진행 중인 현장임을 이해합니다만, 이를 떠나서 비밀글은 답변을 드리지 못합니다.
전에 올려 주신 도면은 연휴동안 시간을 내서 정리해 드리겠습니다.
앞으로는 공개 가능한 범위를 심사숙고하셔서 질문을 공개글로 올려 주시면 성실히 답변 드리겠습니다.
2 데이빛 2022.10.02 17:49
네..답변 감사합니다.

기초 비닐을 0.15t로 두 장 깔았거든요. 제가 염려하는 부분은, 두 겹 비닐 사이로 흘러들어간 빗물이, 며칠 지나더라도 그리고 단열재 위 또는 맨 위에 있는 비닐 위에 남은 빗물을 뺀 뒤에도, 여전히 그 빗물이 비닐 사이에 남아 있을 텐데요..그걸 완전히 건조시키지 않고 기초 타설을 해도 괜찮을까요? 결국 비닐은 땅 바닥에서 올라오는 수분을 막는 역할도 있는데 이 경우에는, 비닐 사이에 물이 있는 상태로 위에 기초를 타설하면, 결국 비닐을 한 장만 깐 것과 다를바 없는 시공이 되는 것 같은데 어떨까요?

철근과 타이를 이용해서 배관을 강하게 결속해야한다고 하셨는데요..혹시 타이를 사용하지 않고, 가는 철사(?)로 배관을 철근에 묶는 걸로는 부족한걸까요?
M 관리자 2022.10.02 18:27
그 역시 괜찮습니다. 준공 후 상시 그 정도의 수분에 노출되어 있는 상태니까요..
단열재 위의 비닐은 방습층의 역할도 있지만 엄밀히는 분리층의 역할입니다.
배관이 VG1 이라면 철사를 이용해도 괜찮습니만, VG2 라면 철사가 장기적으로 배관을 손상시킬 수 있어서요.. 케이블 타이를 이용하는 것이 가장 좋긴 합니다.
2 데이빛 2022.10.03 04:53
아, 제가 말씀드린 기초 비닐은, 잡석다짐 위에 까는 비닐이었습니다.(0.15 두 겹). 비닐 위로 단열재가 올라가 있고, 댓글에 첨부한 사진에서 보이듯, 단열재 위에 비닐은 없습니다.(철근 및 배관만 시공되어 있습니다) 배관이 VG1인지 다시 체크해보겠습니다.

어제부터 비가 계속 오는데..수요일까지 온다면 분명 단열재까지도 물에 잠겨있을 가능성이 높은데요..2-3일 동안 물에 다 잠긴 채로 있어도 괜찮을지 모르겠습니다. 양수기로 계속 물을 빼줘야 할지..아니면 다 그치고나서(며칠 동안 물에 잠기더라도) 물을 빼는게 좋을지..2-3일이라도 버림 및 단열재(xps라도)가 물에 잠기면 좋을게 없을 것 같아서요.
M 관리자 2022.10.03 10:43
네. 그거라도 같습니다. 그렇게 급하게 빼지 않으셔도 괜찮으세요.
2 데이빛 2022.10.06 16:51
감사합니다. 관리자님 질문 하나 더 드릴게요.

기초 콘크리트 타설 하는 날에 비가 약간(5-10미리) 내리면 타설해도 괜찮다고 들었습니다. 어떨까요? 강도가 약해질 수 있겠지만..소규모 건축물이라서(지하층은 rc 1/2층은 목구조) 그리고 구조계산 자체가 기초는 (윗층들이 다) rc라고 가정하고 기초 콘크리트 강도 철근 배근 등을 정한다고 들었거든요.

그렇다면 기초타설 당일 비가 좀 내릴 경우, 약간 기초 강도가 떨어지는건 건축주 선택에 따라 받아들일 수도 있을까요? 아니면 절대 하면 안 되는 걸까요? 현장소장님이, 설사 자기 집이어도 비가 약하게 온다면 콘크리트 타설 할 거라고는 하더라고요.
M 관리자 2022.10.07 23:28
비가 올 때는 타설을 하지 않는 것이 원칙입니다. 타설 후 그 정도의 비가 오는 것은 괜찮습니다.
2 데이빛 2022.10.11 17:47
감사합니다. 혹시 지수링을 이렇게 시공해도 괜찮을까요? 기초 타설 후 지하 바닥 타설 전 사진입니다.
M 관리자 2022.10.11 17:58
네 맞게 설치하셨어요.
그리고 이건 정식이름이 수팽창지수제 이며, 지수링은 벽에 설치되는 폼타이에 끼우는 지수제의 명칭입니다.^^
2 데이빛 2022.10.12 20:21
아 그렇군요. 감사합니다.

관리자님, 혹시..펌프카 하는 분들 아시는 분 있으신가요? 현장이 좀 높은 곳이다보니..시공사 협력업체(기초) 사장님께서도 펌프카 하시는 분을 구하고 있다고 하시네요. 기존에 같이 하던 분이 어렵다고 하셨나봐요.

인터넷 검색해서 찾는 방법 말고는 따로 인맥이 없어서 혹시나해서 여쭤봅니다. 32m짜리로 구하고 있습니다.
M 관리자 2022.10.12 20:54
죄송합니다만, 따로 알고 있지는 못합니다.
2 데이빛 2022.10.15 10:05
네 관리자님 지하층 바닥방수 질문 좀 드릴게요.

도면에는 액체방수로 끝이거든요.

일단 지하 벽체는 외방수(시트 및 비노출우레탄)를 하려고 합니다.

이 경우 지하층 바닥에는 어떤 식으로 방수를 하면 될까요?

저는 바닥 아래 땅에서 올라오는 수분을 막는걸 바닥방수라고 생각했어요. 그래서 기초 타설 때 깔았던 비닐(0.15t)을 지하층 바닥 타설 전에 한 번 더 깔면 어떨까했습니다.

이게 맞는 걸까요?

참고로 내방수 내단열 이중벽은 하지 않습니다.
M 관리자 2022.10.16 17:47
400mm 콘크리트를 밀실하게 타설하면, 별도의 내방수는 필요로 하지 않습니다.
항상 벽과의 이어치기한 부분에서의 누수가 생기므로 지수판 또는 수팽창지수재, 그리고 외벽의 폼타이에 지수링을 사용하는 것에 더 집중해 주시면 되세요..
Category