평지붕 역전지붕에 부동전 시공

설계/시공관련 질문

질문 전에 먼저 검색을 해주세요.

 

평지붕 역전지붕에 부동전 시공

4 무급공무원 8 2,468 2022.07.31 23:13

안녕하세요. 관리자님,

 

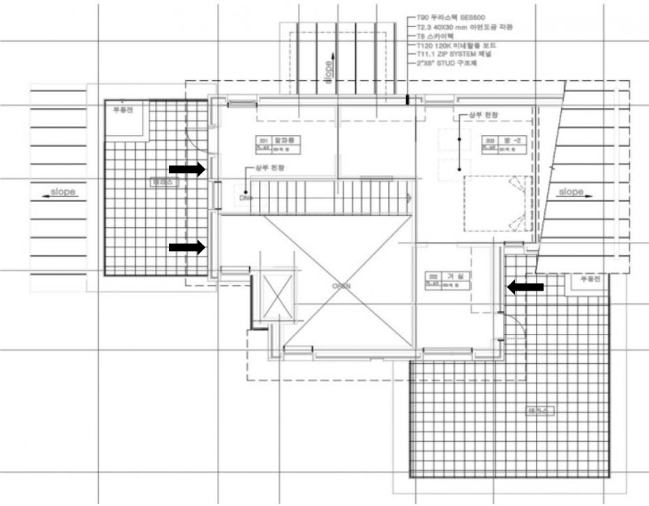
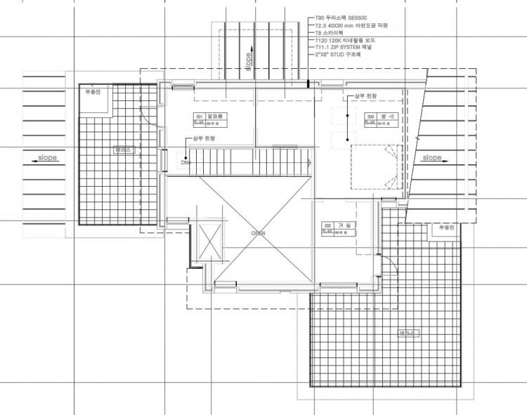
마지막 기본 도면 수정작업 중인데,

도면에서 보듯이 평지붕 옥상에 부동전을 설치하는 것이 바람직할까요?

평지붕은 슬라브 다운하고 역전지붕으로 시공합니다.

미리 답변에 감사드립니다.

Comments

M 관리자 2022.08.01 05:36
안녕하세요.
열교가 있기는 합니다만, 기술적으로는 문제가 되지 않습니다. 취향으로 선택을 하시면 될 것 같습니다.
11 잡자재 2022.08.01 05:49
부동전을 설치해야하는 특별한 이유가 있는 것이 아니라면 저라면 부동전 대신 아랫층에 퇴수구를 만들겠습니다.
4 무급공무원 2022.08.01 08:19
특별한 이유는 없고 그저 옥상과 지붕 물청소, 그리고 뒤에 야산이 임접한 관계로, 혹시나 하는 마음에 지붕에 물이라도 뿌려 놓고 도망가려는 의도가 있습니다.
평지붕에 드레인이 두 곳 있는데, 부동전에도 연결되어 배수할 수 있도록 조치할 생각입니다.
두 분 조언에 감사드립니다.
G 조영신 2022.08.01 10:23
궁금해서 그러는데요, 외단열 벽면에 매립하는 수전도 가능한데요
부동전을 하시려는 이유가 있으신가요?  도면 수정 과정이라면 벽면매립수전이 더 나을 듯 한데요
M 관리자 2022.08.01 10:56
저 역시 벽면 매립을 전제로 말씀을 드렸었습니다. 바닥에서 올라오는 것은 생각도 못했는데요. ㅠ
4 무급공무원 2022.08.01 16:52
저 역시 바닥에서 올라오는 수전만을 고려한 것은 아닙니다.(이제와서 아하~ 라고 감탄하면서....)
다만 이 수전 아래에는 평지붕 마감과 연결된 퇴수구가 함께 설치되어야 할 듯 했습니다.
면적 대비 적어도 두 개 이상의 드레인이 바닥에 있어야 해서요.
당연한 듯 보였지만 참신한 아이디어를 주신 조영신님 감사드립니다^*^
G 조영신 2022.08.01 17:20
역전지붕으로 하실 계획이시면 수전의 위치에 꼭 드레인이 위치할 필요는 없다고 생각합니다. 방수층의 구배가 있을 거고 최상층은 자갈아니면 페데스탈이면 수전에서 나온 물도 빗물처럼 동일한 경로로 드레인쪽으로 빠져 나갈거니까요. 멋진 집 지으시길 빌겠습니다.
4 무급공무원 2022.08.01 20:05
네. 감사합니다.
말씀하신 것 처럼 굳이 별도의 구조물을 역전지붕 위에 설치하지 않아도 되겠네요.
Category