테라스 방수 관련 질문입니다.

설계/시공관련 질문

질문 전에 먼저 검색을 해주세요.

 

테라스 방수 관련 질문입니다.

1 스와브 6 2,823 2022.06.27 09:13

안녕하세요!
테라스 방수관련하여 조언해주실 수 있을까요!?


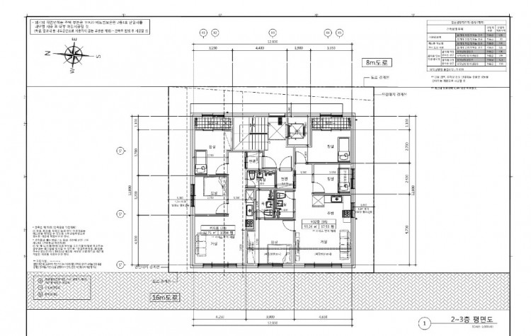
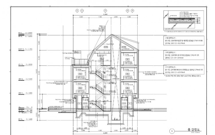
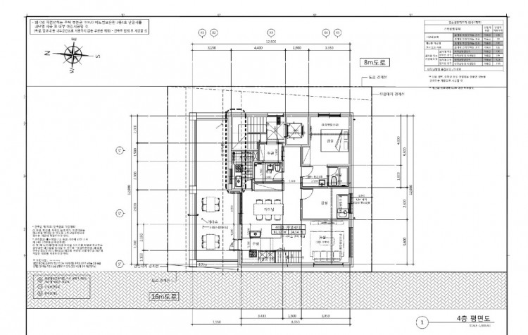
현재는 아래 도면처럼 4층 테라스 부분이 우레탄노출방수로 되어 있습니다..

계획대지가 일조사선을 받는데다가 2층/3층 임대세대 천정고를 2,300을 확보하려다보니

테라스부분 일조사선으로 인해 외단열로 할 경우

단열재(200T)를 설치할 높이가 나오질 않는 상황입니다. (중부2지역)

 

현재 내단열로 PF보드 150T 계획되어 있는 것을 외단열로 변경하고,

2,900 층고로 2,800으로 낮추더라도,

슬라브 다운을 150mm 이상을 해야 외단열을 할 수 있는 공간이 확보될 것 같은데요.

슬라브 다운을 150mm를 할 경우 3층 천정 속 공간이 50mm밖에 되질 않습니다.

 

2층/3층 층고나 천정공간을 줄이면서 외단열을 위한 높이를 확보해야 맞는것인지

아님 내단열로 갈 것인지 고민입니다.

 

테라스를 인조잔디로 최종 마감할 경우의 외단열/내단열 방수방법 좀 제안해주실 수 있을까요?

1. 외단열로 할 경우

2. 내단열로 할 경우

1 (1).jpg

 

1 (2).jpg

 

1 (3).jpg

Comments

1 스와브 2022.06.27 09:21
해상도가 낮은 것 같아 PDF파일 첨부합니다.
M 관리자 2022.06.28 10:55
안녕하세요.
답변이 늦어서 죄송합니다.

--------------------
내단열을 경우...
지금 그대로의 상태에서
5mm 두께의 하얀 부직포 - 지름 20mm 내외의 파쇄석 (드레인 구멍으로 빠져 나가지 않을 정도) - 인조잔디 를 까시면 되세요.

다만 더 신경써야 할 것이 많은데.. 지금 현재 상세도가 없으므로, 외벽과 만나는 부분 등에 대한 내용과 외단열의 실행 방법은 내일 오전까지 정리해서 올려 드리겠습니다.
1 스와브 2022.06.28 11:13
아이구... 바쁘신데 신경써주셔서 너무 감사드립니다!!
행복한 하루 되세요!!
1 스와브 2022.06.29 10:09
아.. 그리고 추가적으로 위와 같이 20mm내외 파쇄석을 깔고 인조잔디를 시공 후 사람이 밟게되면 파쇄석들이 움직이며 꿀렁거림이 있지 않을까 생각되는데요. 이 부분을 해결하려면 20mm배수용깔판이 있다면 파쇄석과 함께 시공해도 될런지요!?
M 관리자 2022.07.02 17:02
답이 늦어서 죄송합니다.
글의 양이 많아서 기술자료실에 좀 더 상세히 풀어서 새로운 글로 올려 놓았습니다.
보시고 궁금한 점은 언제든 말씀해 주세요.
http://www.phiko.kr/bbs/board.php?bo_table=z3_01&wr_id=5602

추가로 물어 보신 것은.. 생각처럼 그렇게 움직이지는 않습니다만 20mm (구멍뚫린) 배수용 깔판을 까는 것은 도움이 되긴 합니다.
1 스와브 2022.07.03 08:36
항상 정성스런 답변과 도움주셔서 감사합니다!
행복한 주말 되세요!!
Category