외벽의 창호설치 자문 부탁드립니다

설계/시공관련 질문

질문 전에 먼저 검색을 해주세요.

 

외벽의 창호설치 자문 부탁드립니다

G 집짓기 6 3,113 2022.06.04 03:39

안녕하세요. 항상 조언주셔서 감사합니다.

 

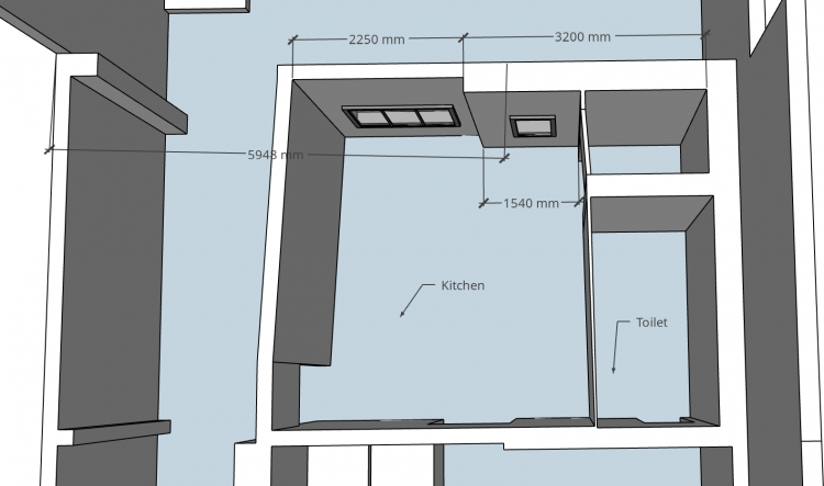
현재 외벽에 창문 둘이 있는데 벽을 최대한 허물고 전면에 창을 설치하려 합니다. 첨부한 사진과 같은 상황이고 1층입니다. 2좌측(H빔 위) 2층은 발코니, 우측창 위쪽으로 2층은 방이 있습니다.

 

벽의 가운데 부분을 제외하고 허물고(보시면 타일이 있는 부분과 타일이 없는 벽 부분이 곧바로 연결되지 않고 깊이 단차가 있습니다. 가운데 시멘트벽돌 있는 부분이 더 두껍구요. 짙은 시멘트 벽돌 부분이 H빔을 떠받치고 있는 영역입니다, 그림의 빨간 부분에 PVC 창/문 설치를 고려중입니다.

 

1. 좌측상단의 어두운 부분이 H빔 입니다, 벽을 허물어도 H빔이 있고 좌측벽체와 가운데 벽돌 위에 앉게 되기에 따로 상인방을 설치하지 않아도 될 것 같은데, H빔 아래로 바로 문틀을 설치해도 괜찮을지 알고싶습니다. 그게 아니라면 H빔에 맞닿도록 2x8같은 목재 프레임을 설치하고 그 위에 문을 설치해야 할지요. 업체에 문의해 본 바로는 H빔 바로 아래 창프레임이 설치되는것에 부정적인데 미관상 목적 외에 따로 이유를 듣지 못했습니다. 참고로 문은 그림과 같이 양쯕 여닫이 시스템 창호로 더블글라스 고려중입니다.

 

2. 우측의 경우도 벽 일부를 허물고 전면 통유리창을 설치하려 하기에 파란부분에 상인방을 삽입 후 설치하고자 합니다. 천장에 직각으로 지나가는  콘크리트 I빔 바로 아래 벽돌 다음 라인에 맞춰서요. (오른쪽 파란부분 표시) 1번 질문과 마찬가지로 그렇게 상인방 설치 후 바로 창호를 맞닿게 설치해도 괜찮을지 다른 고려할 것이 있을 지 조언 부탁드립니다.

 

 

 

Comments

M 관리자 2022.06.03 19:22
안녕하세요..

도면을 봐야 알 수 있겠지만, 벽량이 너무 많이 줄어 드는 것 같습니다. 그러므로 지금 보다 개구부의 크기가 줄어야 합니다. 이는 상부 H빔의 길이를 떠나서 횡력에 대한 저항력이 약해지면 장기적으로 외벽에 균열을 피하기 어렵기 때문입니다.

그러므로..
좌측은 지금 창문 크기에서 더 넓어 지는 것은 어려워 보이고..
(그림처럼 하고 싶으시다면, 개구부 사방으로 빔 보강이 들어가야 합니다.)

오른쪽은...
상부 하중이 창과 창 사이의 좁은 벽을 타고 내려오는 상황이라면.. 창문의 왼쪽 끝 선을 더 넘어서는 안될 것으로 보입니다. 다만 오른쪽의 경우 벽면 사진이 잘려서 판단을 할 수는 없었습니다.
만약 "콘크리트 I빔"을 지지하는 구조체가 (사진의 외부측으로) 있다면 지금 그리신 크기 만큼 절개가 가능합니다.

무언가 더 판단이 필요하다면.. 손으로라도.. 해당 부분의 평면도를 그려 주시면 답변에 도움이 될 것 같습니다.
G 집짓기 2022.06.04 03:47
조언 감사합니다. 창문면적이 너무 커지는게 아닌가 싶었는데 말씀해주셨네요.

답글은 첨부가 하나밖에 안되어 수정으로 추가 첨부하였습니다. H빔은 6미터 정도 되는 것 같고, 처음 사진의 왼쪽에서 뻗어나가 외부 차고쪽 벽면에도 앉아있습니다.(답글의 첨부사진 참조)

1. 이런경우에도 창을 키우고 싶다면 보강이 요구되는지요.
2. 스케치를 보시면 처음사진의 오른쪽으로도 벽이 이어집니다. (기본적으로 오른쪽 부분이 원래 집의 구조이고 왼쪽의 주방부분을 콘크리트 I빔과 H빔을 놓아서 확장한 것으로 저는 이해했습니다.) 이런 경우에도 오른쪽 창문의 사이즈 확대가 구조적으로 안정성에 부담을 준다고 봐야할까요?

두번째 스케치가 이상적인? 도면인데 (창이 저렇게 격자일 필요는 없고...) 추가 자료들과 함께 다시한번 봐주시면 정말 감사하겠습니다..

마지막으로 좌/우와 관계없이 구조보강을 해야하는 경우, 상인방 삽입 외에 어떤 보강이 필요할지 알고싶습니다...(목재 등으로 창틀이 삽입되는 것을 의미하는 것인지요.)
G 집짓기 2022.06.04 03:48
자세한 부위 사진 첨부입니다
G 집짓기 2022.06.04 19:55
무식한 질문이겠지만 또 여쭤보자면, 보통 아파트는 전면에 통창&미닫이가 설치되는데 말씀하신 벽면적 대비 창 개구부 비율이 엄청나게 높은것 아닌가요? 그것까지 포함해서 보강이 되어있겠지만, 일반적으로 벽면대비 창면적을 계산하는 방법이 있는지 궁금해 여쭙니다.
M 관리자 2022.06.05 14:34
오른쪽 창문을 더 오른쪽으로 키우는 것은 가능해 보입니다. 왼쪽으로의 확장은 벽량이 너무 줄어서 안되고요.
벽면대비 창면적의 답은 없습니다. 그저 거기에 맞추어서 구조체를 형성하는 것이라서요.
이와 같이 기존 건축물을 변경한다면 제약 사항이 생길 수 밖에 없습니다.
G 집짓기 2022.06.05 19:18
항상 답변 감사합니다.
Category