줄기초와 콘크리트 데크 분리 시공 방법을 알고 싶습니다.

설계/시공관련 질문

질문 전에 먼저 검색을 해주세요.

 

줄기초와 콘크리트 데크 분리 시공 방법을 알고 싶습니다.

G 이호준 16 8,482 2022.05.19 01:11

안녕하세요, 거의 매일 본 사이트에 방문하고 궁금한 점을 해결하며 늘 감사하고 있습니다.

 

그런데 제 검색 능력 부족인지 몰라도 본 질문과 관련 된 내용을 찾지 못하여 질문을 올리게 되었습니다.

 

관리자님께서 댓글 다신 글 중 열교를 차단하기 위해 콘크리트 데크의 경우 기초와 콘크리트 데크를 분리하여 시공하면 된다라는 댓글을 발견했는데요. 해당 부분에 대한 디테일을 조금 여쭙고 싶습니다.

 

 

 스크린샷 2022-05-19 오전 1.03.55.png


 

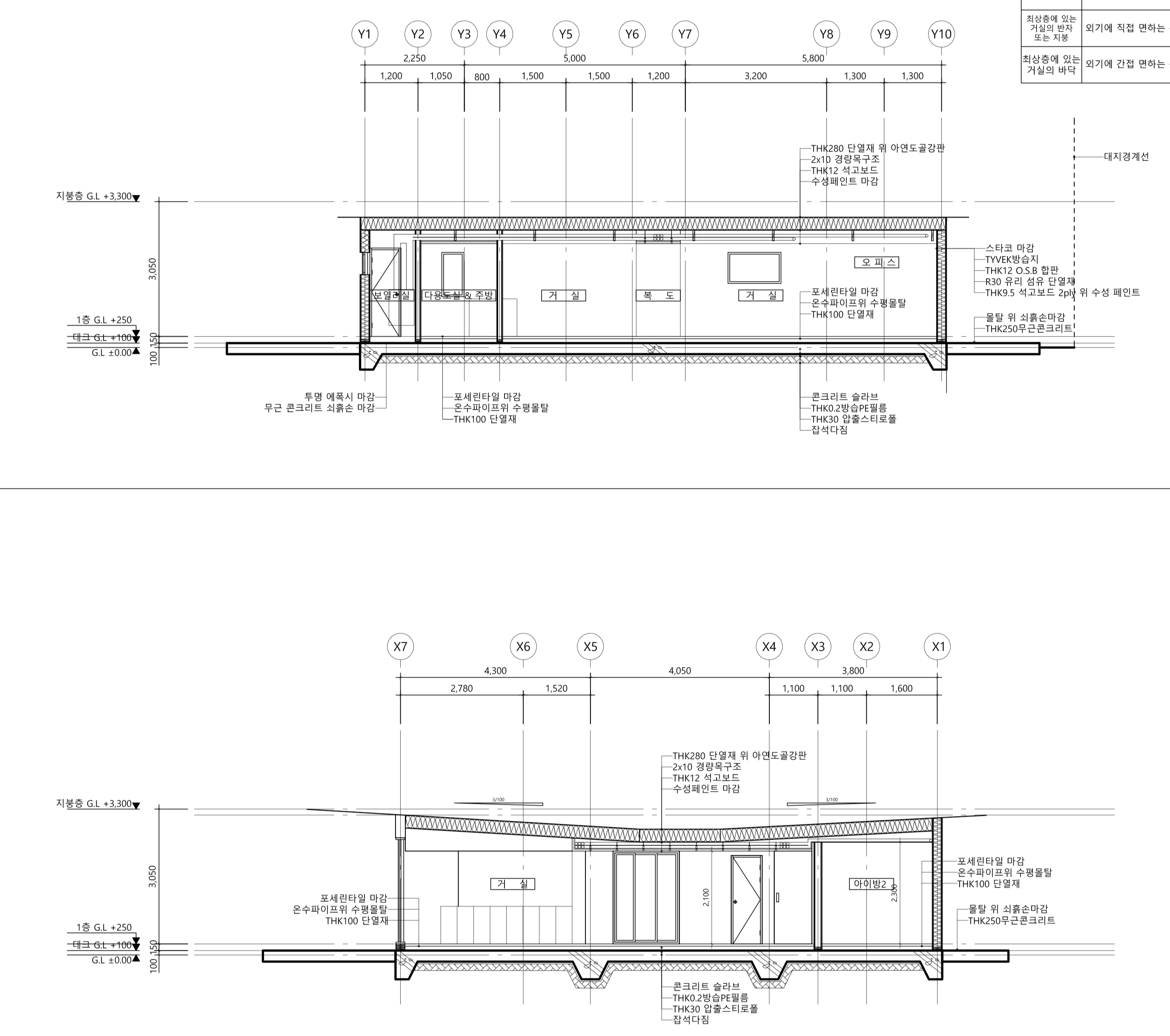
위 기초 평면도에서 실선으로 된 부분이 콘크리트 데크가 생겨날 부분입니다. (MS1)

줄기초 형식으로 FG1 영역에 기둥보가 자리할 예정인데요, 

건축사는 줄기초 영역과 데크 슬라브 영역을 철근으로 연결하여 딱 붙여 시공할 계획이라 하였습니다.

줄기초를 치고 거푸집을 해체한 후에 기초 콘크리트에 구멍을 뚫어 철근을 일정길이만 박고 MS1에는 무근으로 콘크리트를 타설하는 계획입니다.

 

그런데 본 협회 정보들을 통해 배운 열교의 중요성을 고려하였을때,

 

제 생각으로는 기초 측면도 단열을 해야하기에 줄기초 기둥 보 부분들의 측면에 XPS단열재를 부착하고 그 이후로 콘크리트 데크를 타설해야한다 생각합니다.

 

본 협회에서 본 자료에 더해 설명드리면 이런식으로요.

스크린샷 2022-05-19 오전 1.04.08.png 

 

콘크리트 데크 (MS1) 위에는 처마가 데크를 모두 덮을만큼 나올 예정이고, 

처마 또한 외박공지붕형태로 물이 모두 중정쪽으로 흐를 예정이라

중정의 물이 떨어지는 곳에만 쇄석을 깔 예정입니다.

 

만약 위 제가 생각한 방식으로 콘크리트 데크를 시공할 경우

현재 MS1의 두께가 250mm로 설계되어 있는데, 데크가 타설 될 바닥을 일정 깊이 파고 비닐을 깐후

건축사가 제안한 기초에 철근 박기 없이 그냥 무배근으로 타설해도 괜찮은 걸까요?

콘크리트 데크가 시간이 지나면 구조적 안정성을 가지지 못할 것 같아 걱정이 됩니다. (크랙은 당연지사고요..)

 

참고하실수 있게 구조일람표도 함꼐 첨부합니다.

 

스크린샷 2022-05-19 오전 1.04.20.png

 

 

참고로 배근도에는 MS1이 복배근으로 되어있는데,

철근값이 너무 올라 비용문제로 제거하는걸로 건축사와 협의하였습니다.

 

 

 

추가로.. 질문드리는김에 하나먼 더 여쭈어보면

현재 줄기초의 기둥보 영역인 FG1이 협회의 줄기초 방식에 비해 너무 적은 것 같단 생각이 들었습니다.

 

스크린샷 2022-05-19 오전 1.04.35.png

제 생각에는 위 사진처럼 3m가 초과하는 영역에는 기둥보를 더 넣어야할 것 같은데

이 부분도 함께 답변 주시면 너무 감사할 것 같습니다.

 

염치불구하고 질문만 올려드려 죄송합니다.

달릴 답변에 미리 감사드립니다.

Comments

G 이호준 2022.05.19 01:24
추가로... 글쓰다보니 궁금해진 부분인데요
본 댓글에 첨부한 사진의 기초방식에서

1. EPS단열재 위에는 PE비닐을 깔지 않았는데 이는 단열재 자체로도 PE비닐의 역할과 되메우기흙을 대신하는 역할 모두를 수행하기 때문일까요? 아니면... 단순 이미지상의 생략일까요?

2. 지중보와 줄기초의 보는 다른걸까요? 줄기초의 변형방식이라 설명해주셨는데 어떤부분이 변형되어 차이가 있는건지 잘 몰라서요.. 위 제가 올린 글에 있는 FG1의 배근도가 "지중보는 횡력을 받지 않으므로 테두리를 제외하고는 간략한 단배근으로 해결할 수 있는 점"의 관점에서 생각했을때 조금 과한 배근인건가 싶어서 여쭈어봅니다.
M 관리자 2022.05.19 09:57
안녕하세요.

말씀하신 줄기초의 단면을 올려 주실 수 있으실까요? 해당 부분만 있으면 됩니다.
알고 싶은 것은 줄기초의 깊이와 땅과의 관계만 보면 되어요.
G 이호준 2022.05.19 10:54
안녕하세요, 본 첨부파일로 확인이 가능하실지 모르겠네요,
건축사의 도면상 단면도와 토목 현황측량 후 확인한 지대 높이, 성토계획에 따라 제가 그려본 수치 기입 된 단면 올려드립니다. 원 지반이 경사가 있었기에 (9.556이 가장 낮은 상태) 성토를 하여 평평하게 만들어 놓았습니다. 성토 시기는 얼마 안됐습니다.
G 이호준 2022.05.19 10:55
댓글에 첨부가 하나씩밖에 안돼 추가 첨부파일 댓글입니다.
M 관리자 2022.05.19 13:33
안녕하세요..
소규모건축물에서의 기초는 ... 일단 개념부터 말씀을 드리면 아래와 같습니다.

위의 것이 지중보 방식입니다. 하중을 보에서 다 처리하고, 슬라브는 자기층의 생활하중만 감당을 합니다. 이 것이 SOG의 변형형태입니다.
이 경우는 모든 내력벽 하부에 지중보가 들어가야 합니다.
(하지만 결국 이 모든 것을 구조기술사가 판단을 하게 되므로.. 이 논의가 무의미 할 수 있습니다.)

아래 것은 매트기초입니다. 아래 들어가는 지중보 형태는 구조체이기 보다는 지면까지 하중을 전달하는 역할만 하는 "흙"의 단단한 형태입니다.
연약지반의 개량 공법과 같은 개념이라고 보시면 될 것 같습니다.

원래 올려 주셨던 기초는 이 두가지가 혼합된 형식이고, 경제적이지 못하다고 보고 있습니다.
저희 협회는 (구조형식에 따라 계산을 해야 하지만) 지금의 철근비용과 지중보의 철근을 가공하는 인건비를 고려할 때 아래 방식이 더 낫다고 보고 있습니다.
M 관리자 2022.05.19 13:36
아래 방식은 내력벽 구간 마다 지중보가 들어갈 필요는 없습니다만, 배근과 거푸집 공사를 하지 않기에, 지붕보 형태를 콘크리트로 채우나, EPS로 채우나 가격의 차이는 없습니다.
그러므로, 이 둘 중에 하나로 접근을 하는 것이 좋은데.. 이미 슬라브 철근을 단배근으로 줄이고자 하셨다면, 위의 형식을 선택한 셈입니다.
이 경우 내력벽의 하부에 지중보가 있어야 합니다. (물론 그래야 한다... 는 구조기술가의 계산 결과를 준용하시면 되세요.)

만약 아래 형식으로 변경하고자 한다면, 개념은 이와 같습니다.
기초 하부에 잡석다짐 150mm 와 무근콘크리트 50mm 가 있으므로, 기초의 하부는 현재 GL-360 에서 GL-200 으로 변경을 하시면 좀 더 경제적인 형태를 갖출 수 있습니다.
M 관리자 2022.05.19 13:44
그리고, 질문하신 것이 아닌지라 눈감고 지나가려 해으나... 계속 밟혀서...
지붕의 골강판으로 중간 모임 지붕을 만드는 것은 누수의 위험이 너무 높습니다.
전체 도면을 보지 않았기에 무어라 확신은 가질 수 없지만, 방수계획에 대해 구체성을 가지고 가시는 것이 좋겠습니다.
G 이호준 2022.05.19 14:04
관리자님 바쁘실텐데 빠르게 답변 주셔서 너무나 감사드립니다.
제가 질문을 너무 장황하게해서 답변의 양이 더 방대해진건 아닌지 죄송스러울 따름이네요.

기초 슬라브는 단배근으로 줄이는 부분으로 이야기한 적은 없습니다. 기초 옆에 필요한 처마 밑 데크를 복배근에서 무배근으로 변경하는 부분을 건축사와 협의하였습니다. 집이 올라갈 기초의 상부 슬라브는 현재 설계도면의 배근대로 복배근으로 진행 할 예정이며 기초 아래 기둥보의 경우에도 상하 4개에 늑근까지 배근하는 형태로 진행하려 했습니다.

추천 주신 기초 방식을 사실 최근 유튜브채널에 올려주신 영상에도 있던 내용인 것 같아 해당 영상을 사전에 건축사님께 보여드리며 기초도 높이고 나름 경제성도 확보할 수 있는 기초방식에 대한 고려를 요청하였으나 저희 집터의 흙이 원래 밭이였기에 잘못하면 매트가 슬라이딩 할 수 있어 위험하다며 현재 도면상의 기초 방식을 고수하셔서 비싼 비용의 눈물을 머금고 진행하려 했습니다. 추천주신 기초는 다시 한번 고민해보도록 하겠습니다 ㅠㅠ 얼마나 더 가격이 줄어들지도 따져보고요.

제 원글에 드렸던 질문중에 답변을 못받은 것같아 좀더 명확하게 질문을 다시 드리면,

질문 1. 현 기초에 이어지는 콘크리트 데크를 시공할 때 분리하는 시공 방식이 어떻게 될까요? 첨부드린 사진과 같이 진행하면 되는걸까요? 무배근으로도 가능할까요?

질문 2. 콘크리트 데크가 아닌 경량목구조 건물이 올라갈 기초 슬라브(S1)를 300mm 두께에 복배근 시공으로 하고 기둥보(FG1)을 650mm높이에 상하부 4가닥+늑근으로 시공할 경우에도 내력벽 구간 및 3m초과 부분에 모두 기둥보(FG1)를 쳐야할까요?
G 이호준 2022.05.19 14:07
추가로 염려해주신 아연골강판 지붕 시공은 저도 너무나 우려되어
아연 도금 컬러 강판에 거멀접기로 마감하는걸로 이야기하고있습니다.
허나 그래도 현관복도쪽 지붕위로 빗물이 모이는부분이 걱정되긴합니다..
물끊키는 하나 자연 낙수 형태로 중정에 비가 떨어지는 디자인(?)을 추구하는 중이라서 빗물받이도 안할 예정이거든요..
M 관리자 2022.05.19 14:14
1. 죄송합니다. 정작 데크 이야기를 못드렸네요.
데크를 매트콘크리트로 형성하는 것은 너무나 비용 소모적입니다. 아래와 같이 하시는 것이 좋습니다. 기초 측면의 단열재 시공도 용이하고요.
그저 콘크리트 (사실 콘크리트 조차 필요로 하지 않습니다. 블럭벽을 쌓을 수도 있습니다.)로 테두리를 만들고, 그 내부를 쇄석으로 채운 후, 건식 포장을 하는 방법입니다.

2. 위에 이미 말씀 드린 것 같습니다. 지금의 형식은 1과 2를 합쳐 놓은 거라서, 내력벽 구간 마다 지중보는 필요로 하지 않습니다.
G 이호준 2022.05.19 14:26
빠르게 답변 주셔서 감사합니다.
말씀드린 데크 부분이 사실 건축사랑 그렸던 그림과 비슷한게 표준주택에도 있어 사진을 가져와보면

광주 표준주택 7호 마무리 모습
http://www.phiko.kr/bbs/board.php?bo_table=z11_04&wr_id=208&sca=S2-7호_광주-플랜트리

요 부분과 유사하게 생각하고 있었거든요..
건식 포장을 하는 방법중에 유사하게 진행할 수 있는 방법이 있을까요?
와이프는 현무암도 이야기하던데 가성비적 측면에서 어떨지 감이 없네요ㅠㅠ
M 관리자 2022.05.19 14:29
이 것은.. 데크이지만, 지붕의 구조가 태워 지는 형식이라.. 접근 방법이 다릅니다.
진행하시는 주택을 이렇게 하는 것은 과유불급이어요.
건식으로 하시고, 현무암 판석을 올리는 것이 좋겠습니다. 이 부분도 조만간 유튜브에서 다룰 예정입니다.
G 이호준 2022.05.19 15:22
사실 저희 집도 설계가.. 지붕의 구조가 태워지는 형식입니다...

첨부드린 사진처럼 처마가 길게 나오고 처마의 구조적 안정성을 고려하여 바닥에 기둥을 넣을지 말지 현재 시공팀과 건축사간 논의를 진행하고있습니다.

지붕구조가 2X6 스터드를 실내쪽에 벽으로 지탱을하고, 그 위에 2X10을 추가 시공하여 길게 빼는것으로 시공팀장님은 이야기하시더라고요.

그럴경우 기둥은 필요없다 판단하시던데, 참고 하실 수 있도록 저희 집의 스케치업 사진과 처마 및 데크 사이즈를 첨부하였습니다.
M 관리자 2022.05.19 16:49
이 부분은 디자인이 확정된 다음에 다시 이 글의 댓글로 문의를 주시는 것이 좋을 것 같습니다.
디자인은 담당 건축사의 고유권한 이기도 하고요.
G 이호준 2022.05.19 17:31
디자인은 저희 건축주의 요구사항에 따라 본 스케치업으로 나온 상태입니다.
허나 시공과 관련해서는 아무래도 건축사가 경량목구조에 대한 이해와 구조 설계에 대한 부분까지 완벽히 알 수 없다 판단하였는지 시공팀에 조금 의지하고 있습니다. 저와 3명이서 함께 의논을 몇번 나누었거든요.

그래도 시공팀장님이 30년가까이 경량목구조 주택을 지으셨다고 하셔서 저와 건축사님 모두 시공 팀장님을 의지하고 있는 상황입니다.

데크 부분의 시공에 가성비를 생각했을때, 무배근 콘크리트 타설이 큰 비용이 들지 않는다면, 그대로 마감 없이 사용하거나 폴리싱 정도 여유있을때 하려고 생각하고는 있습니다.

그런데.. 데크 시공 디테일에서 열교현상에 대한 부분은 건축사님과 시공팀장님 모두 제가 너무 과하다고 하셔서 이렇게 패시브협회에 질문을 올리게 되었습니다..ㅠㅠ
M 관리자 2022.05.19 19:02
기술적 측면에서만 말씀을 드리면, 해당 무근콘크리트의 건전성은 바탕면의 강도와 평활도에 달려 있습니다. 말그대로 무근이니까요.
전문가가 판단하시겠지만, 기둥이 있더라도 해당 기둥만 독립기초로 처리를 하고 나머지는 올려 드린대로 건식 데크 형식을 권해 드립니다. 그게 극히 장기적으로도 문제가 없기 때문입니다.

그리고 노파심에 말씀드리면 구조기술사가 개입이 되어야 합니다. 아무리 목구조경력이 많이 있다고 하더라도 현행법에서는 건축사와 구조기술사에게 책임을 묻고 있기 때문입니다.
Category