전열교환기 관련 질문이 있습니다.

설계/시공관련 질문

질문 전에 먼저 검색을 해주세요.

 

전열교환기 관련 질문이 있습니다.

G 박정수 6 4,032 2022.05.16 06:08

안녕하세요.

두가지 질문이 있습니다.


유튜브를 보는데 국내 전열교환기 급.환기 디퓨저 위치가 잘못 설치된 경우가 많다고 하는걸 봤습니다.

혹시 어떻게 위치를 정하는지 알려준 영상이 있나 찾아봤는데 못찾겠네요.

방문쪽이 환기라는데, 환기가 방문 기준 안쪽 인지 밖인지 모르겠어요.

또한 안방에는 침대가 방 안쪽에 있는데 어머니가 안구건조증과 수족냉증이 심해서 급기 디퓨저를 안쪽 침대 근처에 놓기도 애매한 상황입니다.

화장실 앞엔 습기가 많이 있어서 배기 놓으면 안좋을것같고, 주방에 배기를 놓으면 음식 냄새가 온방에 퍼질것같고... 아무튼 이런저런 고민으로 혼자 이곳 저곳 생각도 해보고 고객센터에도 연락해봤지만 원하는 결과를 얻지 못했습니다. 이번주 까진 업체선정을 해서 설치해야하는 상황이라 마음이 급하여 도움요청드립니다...

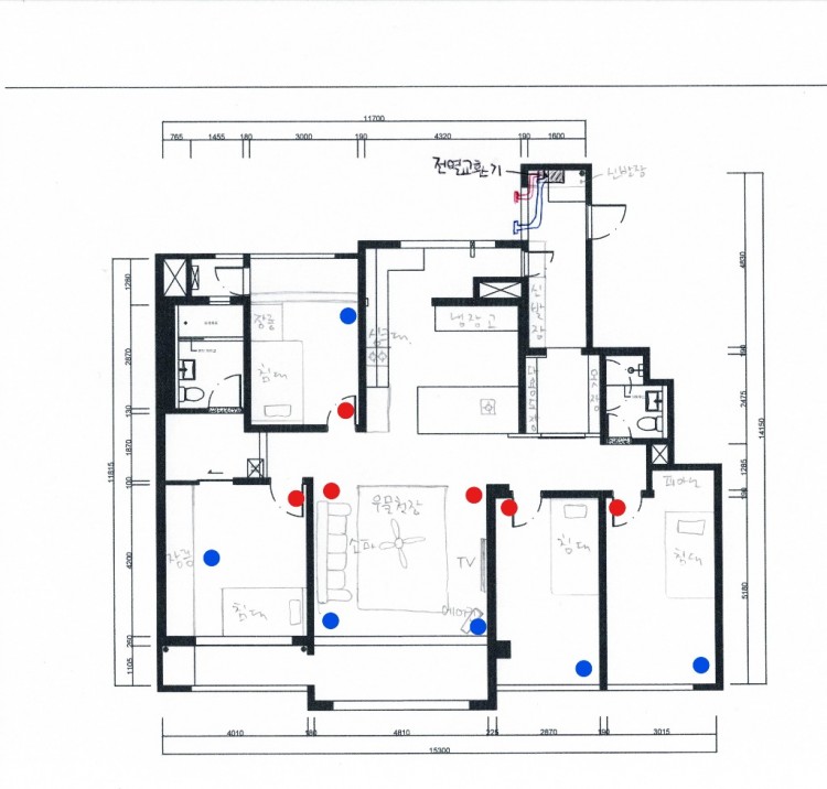
1.저희집 구조상 좋은 위치에 점 찍어주시면 안될까요?

 

 

두번째 질문은 배관에 대한 질문입니다.


최대 투자금액은 550만원...유럽제품은 높은 가격에 포기하고,경동나비엔 300CMH 를 알아봤습니다.

대부분 외벽쪽 급 배기는 150파이 흰색플렉시블 을 사용하고 각방으로 들어가는 덕트는 65파이 크린호스 라는 말랑말랑한 PVC로 된것을 사용 한다고 합니다.

이 PVC크린호스 를 사진으로 봤는데 특유 고무냄새나 화학제품 특유의 냄새가 날것같은 느낌이 들더라구요.

그리고 혹시나 포름알데히드나 무언가 호흡기 또는 피부에 안좋은 영향이 있지않을까? 하는 생각이 들어서 자재비용 더 들더라도 잡자재에서 판매하는 자재로 설치가능하냐고 물었더니,해본적 없는거라 힘들다,향균이 들어간건 성분에따라 폐에 더 위험할수 있고,연구실에서나 쓰는거다,자재를 대량으로 미리 구입했기 때문에 다른건 못쓴다. 등등 여러 이유로 거절당하다가 

보온플렉시블과 HDPE덕트로 경동에어원 시공해주는곳을 겨우겨우 찾았는데 견적이 150만원이나 차이나서 힘들것 같아요.ㅜㅜ

정대표님의 단열플렌지,이중외피보온플렉시블,기밀이 까지는 요청해서 가능할것 같은데 덕트는 크린호스로 사용해야 할것 같습니다. 

 

2.크린호스가 호흡기,피부등 인체에 무해할까요? 어떻게 생각하시는지 궁금합니다.

 

ASDASDASD.jpg

 

esa49_LI (3).jpg

 

esa49_LI (2).jpg

 

esa49_LI.jpg

Comments

11 잡자재 2022.05.16 07:58
안녕하세요. 잡자재의 정광호입니다.
 PVC 크린호스와 디퓨져의 가장 큰 단점은 항균이나 항정전기 처리보다도 배관과 디퓨져가 1대1로만 연결 가능하다는 것입니다. 75A 배관에 30CMH를 보내면 1M당 압손실이 3Pa정도 걸립니다. 배관이 길어지면 길어질수록 공기를 보내기 위해서 팬이 더 많이 일해야 합니다. 전기를 그만큼 많이 쓰게 되구요. 75A 배관에 30CMH가 아닌 15CMH 정도를 보내면 1M당 압손실이 1Pa로 줄어듭니다. 그리고 토출구의 풍속도 줄어들게 됨으로 제가 올린 도면에는 디퓨져가 방마다 2개씩 들어있습니다. 토출구의 속도가 줄어들면 차갑게 느껴지는 것도 줄어듭니다. 가능하다면 그렇게 하시는 방향을 추천드립니다.
단열플랜지와 이중외피배관은 쓰는게 좋습니다만 안 쓰셔도 괜찮습니다. 해당 제품은 일정온도 이하에서 17분 배기, 3분 급기의 방식으로 작동하기에 표면 결로의 가능성이 아주 낮습니다.
저희가 단열플랜지와 이중외피배관을 만든 것은 영하의 기온에 멈추지 않고 작동하는 해외제품을 설치할 때 효율을 높이고 표면 결로를 방지하기 위해서 입니다. 단열플랜지와 이중외피보다도 소음기를 최우선으로 설치하시길 권장드립니다.
G 박정수 2022.05.17 02:44
안녕하세요.
우선 답변 너무 감사합니다.
답변을 읽어보니 또 궁금한 것이 있습니다.

1. 분배기는 6구로 알고 있습니다. 그런데 각방에 2개씩 들어가려면 방으로 덕트가 한 줄 들어오고 방에서 라인 YB를 통해 나누는 건가요?

2. 천장높이 때문에 거실 화장실 왼쪽 전실(빨간 점찍어주신 곳) 근처에 분배기를 놓을까 하는데 괜찮은 위치인지요?

3. 소음기 장착을 위해 벽의 양쪽 폭을 측정해 봤는데 기기를 신발장 안쪽 벽에 달고(전열교환기를 벽에 걸 수 있는 수직 형태로 설치 예정)
이런 경우 소음기가 기기에 바로 장착이 안되고
기기에서 - 천장까지 150파이 배관 - 천장 속에서 소음기 연결 - 다시 소음기에서 150파이 배관 - 분배기 이런 식으로 기기와 소음기 중간에 배관이 들어가도 효과에 지장이 없는 건지 궁금합니다.
(첨부사진 넣었습니다. 왼쪽 방식으로 가능한지 궁금합니다. 오른쪽 방식은 신발장에 신발을 넣을 공간이 너무 부족해지는 단점이 있고, 기기를 반바퀴 돌리면 벽걸이 고정 자체가 안될 가능성이 매우 높습니다.)

4.주방과 욕실 앞쪽에 흡기 가 몰려있는데 이유를 알 수 있을까요?
그냥 개인적인 생각으론 욕실 앞은 습기가 많아 소자나 필터에 균이 번식하거나 성능을 저하 시키지 않을까? 하는 생각을 해봤구요.
주방은 조리시 나오는 음식 냄새가 온 방에 퍼지지 않을까? 하는 걱정과 디퓨저 근처에 기름과 먼지가 혼합되어 끈적하게 오염될 것 같고, 배관과 필터에도 악영향을 끼치지 않을까.. 생각했거든요.
또 한 가지는 .. 솔직히 이해하면서 듣지는 못해 틀린 생각 일 수도 있습니다만..
정광호 대표님 과 최정만 회장님 이 리뷰한 전열교환기 편에서 음압이란 걸 설명하셨는데 타일 탈락, 봉수가 깨지고, 환풍구를 통해 다른 집의 담배 냄새 유입에 관한 이야기와 회장님이 의정부 화재에 대해 이야기하다가 계절에 따라 .. 지하를 통해 집으로 들어오는 바람이 쌔지는 현상에 대해 들은 것 같은데 이런 현상+환풍기,후드,하수구에 가까이 있는 디퓨저에서 빨아들이는 흡기가 만나 
냄새가 들어오는 걸 도와주는 역할이 되지는 않을지 걱정됩니다.
사용자가 직접 급배기의 팬 속을 컨트롤할 수 없는 경동 나비엔 에어원이라는 것도 이런 걱정에 한몫을 합니다. 이에 대한 고견을 듣고 싶습니다.
11 잡자재 2022.05.17 08:41
1. 아닙니다. 63mm배관의 마찰손실이 높아서 풍량확보를 위해 메인배관을 2개로 나누어 분배기를 총 3개 설치하는 방식입니다. 말씀하신대로 YB나 YT를 사용해서 말단에서 디퓨져를 2개로 하는 것은 토출구의 풍량을 줄이는 이점만 있습니다. 급기와 배기 6구 분배기 2개만을 사용한다면 오른쪽 아래 방 2개는 디퓨져의 갯수를 하나씩으로 줄이고 분배기 바로 앞에서 분기시켜서 왼쪽 하단으로 연결되는 가장 긴 배관을 2개로 가는 것이 좋겠습니다. 혹시 설명이 부족하면 말씀해주세요.

2. 환기장치의 효율과 풍량확보를 위해서는 분배기의 위치는 집의 중앙부분이 유리합니다. 분배기가 중앙에 위치하지 못하기 때문에 분배기로부터 먼 곳에는 배관이 2개 가야합니다.

3. 소음기의 성능은 분배기 전에만 있으면 수직 수평 위치에 상관없습니다. 다만 기기의 설치 방향이 바뀌는 것은 제조사에 문의해보셔야 합니다.

4. 주방과 욕실이 집안에서 가장 오염도가 높은 곳입니다. 욕실도 가능하면 안에 있는 것이 유리하지만 말씀하신 것처럼 열교환소자가 펄프여서 곰팡이 등 추후 문제가 생길 수 있어 전면부로 옮긴 것입니다.
주방 조리시에 냄새가 방의 급기로 토출되는 것은 기기자체의 누기율 문제가 없다면 주방과 화장실 앞쪽에 배기디퓨져를 설치하는게 공기질 측면에서 훨씬 유리합니다. RA쪽에 디퓨져는 오염될 경우 세척이 가능하고 배관은 버리는 공기이기에 상관없으며 열교환소자의 오염이 우려된다면 디퓨져에 부직포 등을 덧대어주면 됩니다. 제가 영상을 찍을 당시에 해당제품의 RA쪽 필터는 고운 모기장으로 되어있었습니다. 혹여 개선이 되었다면 배기디퓨져에 부직포는 필요하지 않습니다.

배기 디퓨져의 흡입력이 봉수를 깰만큼의 힘은 없습니다. 다만 오래된 아파트의 경우 화장실 내부에 설치시 PS쪽에 구멍이 뚫려있어 다량의 악취 등이 유입될 수 있습니다. 말씀하신 연돌현상과는 무관합니다.

팬의 속도를 조절하는 방법은 설치하는 업체 혹은 제조사에 문의하는 방법 밖에는 없는 듯 싶습니다.
하지만 방법을 안다고 하여도 풍량을 측정할 수 있는 측정기가 있어야하고 TAB를 하여 세팅을 한번 하면 굳이 다시할 필요가 없기도 합니다.
G 박정수 2022.05.17 10:09
1번에 대한 답변이 상상이 잘...ㅜㅜ
두가지 방법을 말씀 하셨는데
하나는 150파이 메인배관을 yb같은걸로 나눠서 분배기 3개에 연결하는 건가요?
그리고 두번째 분배기 2개 사용 조건에선
입구쪽 방 2개는 급기를 1개씩으로 줄인다. 까지 이해했습니다.
그림이면 조금 더 쉽게 이해 할 수 있을 것 같아요
11 잡자재 2022.05.17 10:40
분배기가 3개가 어려울 경우에 풍량확보를 위해서 분배기에서 바로 앞에 YB를 사용해서 2개의 배관으로 가는 방식입니다. 방에 가서 분기하는게 아니라 분배기에서 나오자마자 분기한다고 생각하시면 되세요. 그림으로는 그리기가 어려워서 멀리서 그렸습니다. 빨간색 원안의 분기되는 부분을 분배기 바로 앞에서 한다고 보시면 되세요.
5 지람 2022.05.18 08:42
좋은 질문과 답변으로 많이 배웠습니다. 감사합니다.
Category