근생 평지붕 관련.. 이것이 최선인 걸까요?

설계/시공관련 질문

질문 전에 먼저 검색을 해주세요.

 

근생 평지붕 관련.. 이것이 최선인 걸까요?

1 서기조 1 2,083 2022.05.08 12:15

1.jpg

 

20220507_101949.jpg

 

 

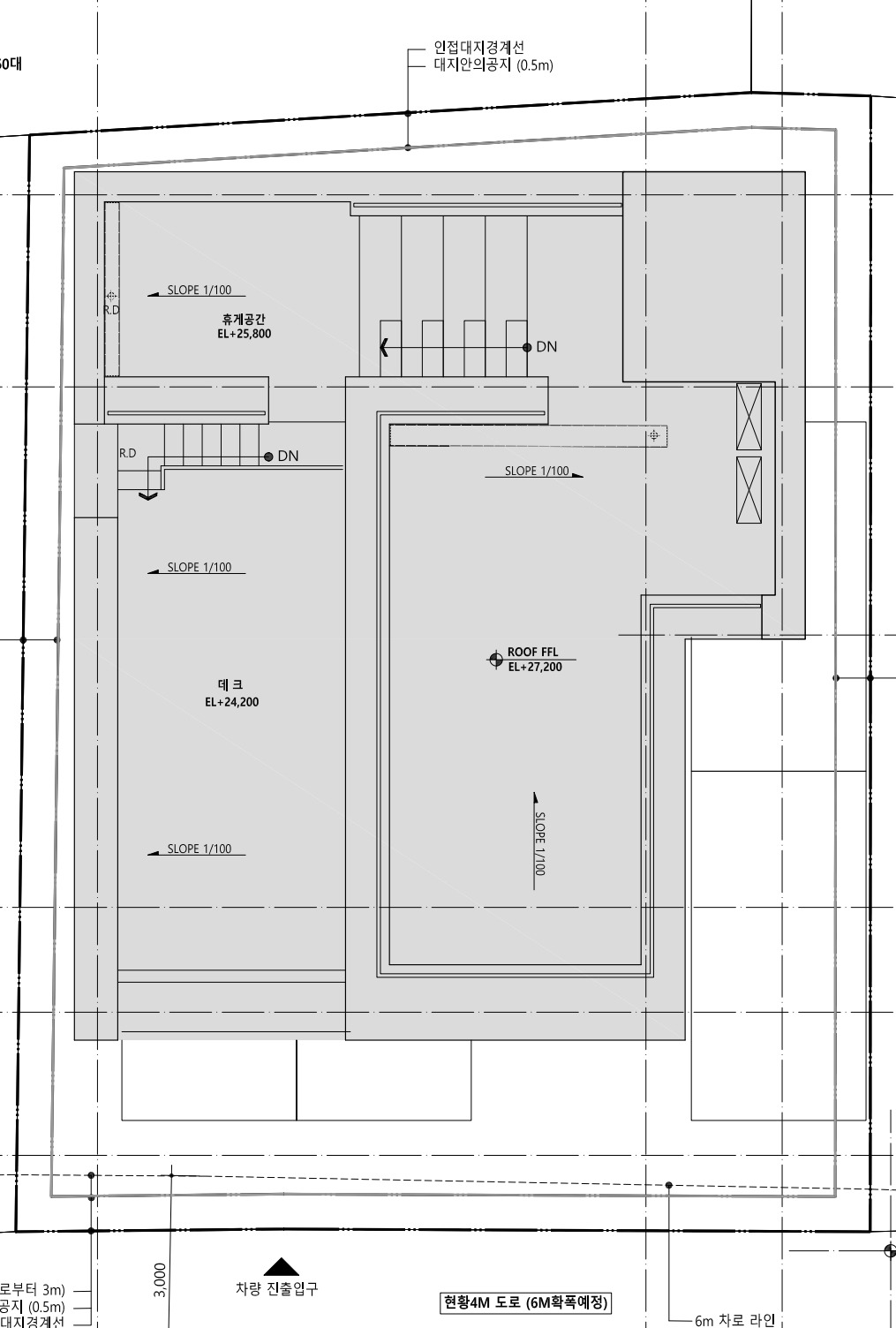
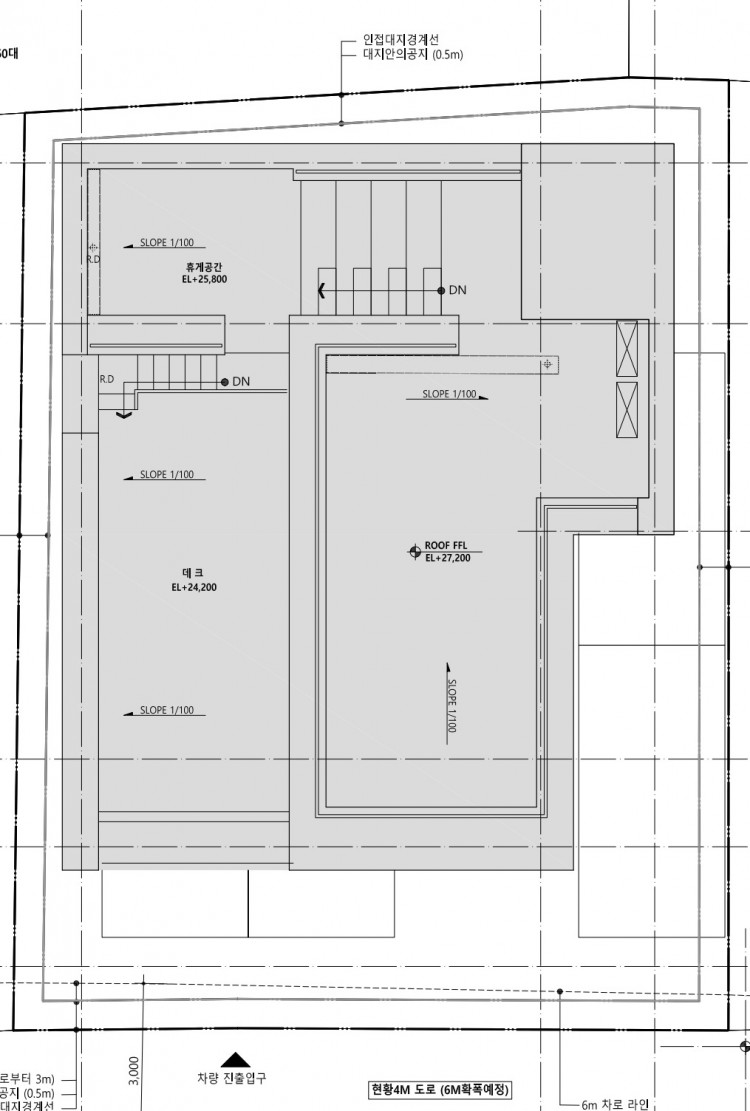
안녕하세요 패시브 협회에 처음으로 질문을 올려 봅니다.

 

이번에 근생으로 건물을 짓고 있습니다. 천정 부분이 중요하고 가로구역높이 제한 때문에

 

평지붕 디테일을 이렇게 풀어 보았는데요.. 이 방식이 하자 없이 오래 갈수 있는 최선인건지.. 아니면 

 

페데스타 방식으로 하는 것이 나은 것 인지.. 조언 부탁드립니다.

 

답변이후 질문:

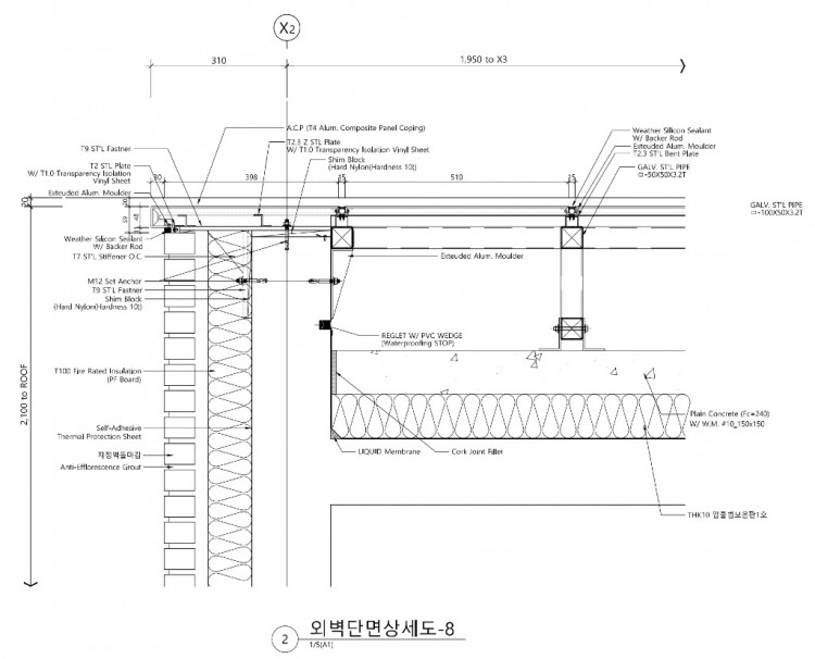
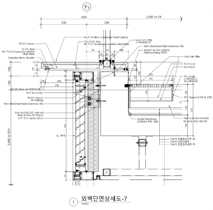
 빠른 답변 감사합니다. 요청하신 대로 상세부분도 올려드립니다. 조언 부탁드립니다.

 또한 현재 방식 보다는 그럼 패데스탈 방식이 더 나을지도 함께 고민 부탁드립니다.~

20220508_120504.jpg

 

20220508_120530.jpg

 

20220508_120558.jpg

 

Comments

M 관리자 2022.05.08 08:56
안녕하세요.

불가능한 방식은 아닙니다. 다만 이 방식은 물이 조금이라도 고여 있으면 지속가능하지 못하기에, 기울기에 유의를 많이 해야 하는데, 현실에서 이 기울기를 제대로 맞추는 것이 거의 불가능하다는 점인데요. 이 점은 우리나라 뿐만 아니라 해외도 마찬가지인 것 같습니다.
또한 줄눈은 백화방지용 보다는 탄성줄눈이어야 합니다.

근생은 결로로 부터 어느 정도 자유롭기 소소한 열교는 하자로 이어지지 않을 것 같고요.
지금 도면에서 100mm 무근 콘크리트를 지름 20mm 파쇄석으로 바꾸어 주고, 상부 타일을 두께를 20mm로 해주면 될 것 같습니다.
그러면 두겁하고의 경계 등에서 고민이 되실 텐데요.. 해당 부분을 조금 확대해서 올려 주시면 나머지 부분도 말씀드리도록 하겠습니다.
Category