우수구배 관련..[무근콘크리트+경량어떤것] or [슬라브구배]

설계/시공관련 질문

질문 전에 먼저 검색을 해주세요.

 

우수구배 관련..[무근콘크리트+경량어떤것] or [슬라브구배]

G 어맹란 2 5,215 2022.04.21 10:39

안녕하세요. 

 

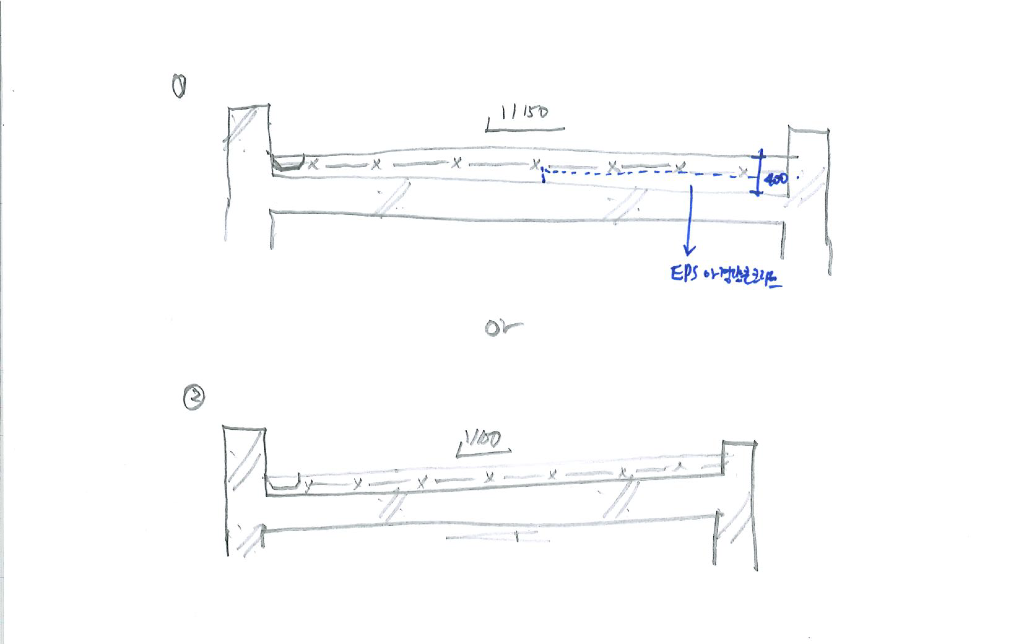
학교를 설계중인데.. 외벽 선홈통을 최소화 하기위해(ps로 연결불가) 트렌치로 최대한 모아서 외벽선홈통으로 내려보내려고 합니다. 또 한방향으로만 구배를 잡아야해서 무근 두께를 계산해보니 400정도는 필요한 상황이네요.. 너무 불필요하게 두꺼운것 같고 400으로 치는게 가능한지도 모르겠습니다.

① eps블록이나 경량콘크리트로 경량화 하는 방법

② 구조체에 구배를 주고 무근을 최소화하는 방법 중에 뭐가나을까요.. 

220421 옥상구배관련.png

아님 더 좋은 방법이 있을지 궁금합니다.

Comments

M 관리자 2022.04.21 18:06
구조체에서 기울기를 주시는 것이 올바른 방법입니다. 무근은 구조체의 평활도가 좋지 못해서 물이 고이는 것 정도만 정리를 해 주는 역할로 사용을 하고요.

형틀팀이 고생을 하겠지만, 무근 400mm 는 구조체의 강도 자체가 달라지는 무게이기에 피하는 것이 맞습니다.
G 어맹란 2022.04.21 19:47
항상 감사드립니다!!!
Category