전열교환기 급배기 위치문의

설계/시공관련 질문

질문 전에 먼저 검색을 해주세요.

 

전열교환기 급배기 위치문의

G 최연희 7 4,490 2022.04.21 12:30

안녕하세요

전열교환기 급배기위치 문의드립니다.

 

꼭 확인해 주시길 부탁드립니다.

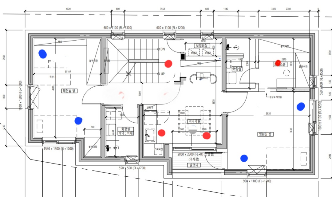
설계사님도 잘 모르시는거 같아서 제가 협회 글보고 공부한거 토대로 그려 봤어요.

3.4층복층이고요. 각층 20평정도에요

경동 에어원 한대로 3.4층같이 사용하고, 3층 다용도실에 설치예정이에요.

급기와 배기가 너무 많은 것도 같고 배기가 많은건가 싶기도 하구요.

위치랑 설치 장소가 맞는지 검토부탁드려요.

배기나 급기의 적정 간격이 있나요?

몇cm를 꼭 띄워야 하는 기준이 있나 해서요.

용량도 어느정도가 좋은지도요.

그럼 좋은 하루 보내세요~

 

 

Comments

M 관리자 2022.04.21 18:44
아래 정도 하시면 되실 것 같습니다.
용량은 250CMH 내외가 될 것 같고요.
11 잡자재 2022.04.21 23:01
안녕하세요. 잡자재입니다.
비슷합니다만 1층은 복도가 아닌 주방에 배기디퓨져를 위치시키는게 더 효율적일 것 같습니다.
드레스룸 내부의 배기도 안쪽으로 위치시키는게 조금 더 나을 듯 싶습니다.
면적만으로는 관리자님이 말씀하신 250이 적합하지만 열교환효율과 배관의 마찰손실을 고려했을 때 비용상의 큰 차이가 없음으로 300모델 적용을 권장드립니다.
그리고 도면상에는 환기장치의 위치가 표시되어 있지 않습니다만
보일러의 갯수를 한대로 줄이고 전열교환기를 보일러실에 위치시키는 것이 좋을 듯 싶습니다.
11 잡자재 2022.04.21 23:02
상부층입니다
M 관리자 2022.04.22 00:29
감사합니다.~^
G 최연희 2022.04.22 09:19
정말 감사합니다~
몇가지 더 문의드리면 상부층 작은 거실에 급기구가 없어도 되나요?
배기구만 있어서 괜찮나 싶어서요.
하부층 복도에도 배기구가 하나도 없어도 괜찮나요?
환기장치가 하부층 다용도실에 위치해도 괜찮을까요?
보일러실이 작고
보일러를 2대를 놓아야 해서요.
11 잡자재 2022.04.22 12:07
네. 방에 급기한 공기가 배기구까지 원활하게 갈 수 있도록 문의 하부를 바닥에서 1cm이상 띄어주시면 됩니다. 환기장치가 다용도실에 위치 할 경우 겨울철 차가운 외기가 유입되는 배관과 기기 표면에 결로가 생길 가능성이 높습니다.  다용도실은 세탁 및 보조주방 등으로 상대적으로 습도가 높다보니 결로가 생길 가능성이 더 높습니다. 참고 부탁드립니다.
G 최연희 2022.04.22 20:11
네.고맙습니다~
Category