탄성코트 질문입니다!

설계/시공관련 질문

질문 전에 먼저 검색을 해주세요.

 

탄성코트 질문입니다!

1 이송 9 1,721 07.16 12:01

스크린샷 2025-07-16 115516.png

안녕하세요 신축 아파트 입주예정인데요!

신축 아파트 입주하는 사람들이 보통 하는 것들이 줄눈,나노코팅,탄성코트, 단열필름 등등 있습니다.

저는 물론 할 생각이 없지만 하는 사람들이 왜 안하냐고 필수템들이라고 자꾸 말들을 하셔서..

다른 것들은 합리적인 이유를 알고 있지만 탄성코트는 잘 몰라서 질문하려고 합니다

 

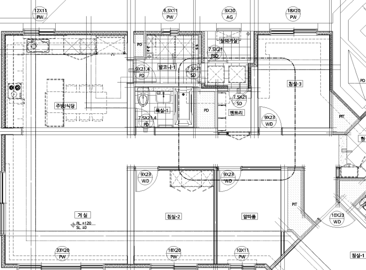
해당 도면이 아파트 도면입니다. 발코니(다용도실),실외기실에 탄성코트를 해야하는지 여쭙고 싶습니다. 탄성코트는 단열재가 안들어간 발코니에 하는것으로 알고있는데 

저희 아파트엔 단열재가 들어가는 것으로 해당 도면으로 확인이 됩니다.

이에 대한 의견을 여쭙습니다!

그리고 추가로 탄성코트에 대한 게시글 중 선생님께서 댓글을 남기셨는데
"탄성코트를 제외한 어떠한 페인트라도 상관없습니다" 라고 하셨는데 

탄성코트는 왜 안되는지도 부탁드립니다..! 

감사합니다!

 

 

Comments

M 관리자 07.16 12:59
신축은 초기 콘크리트 건조수분의 양이 상당히 많습니다.
https://www.phiko.kr/bbs/board.php?bo_table=z4_06&wr_id=352

그러나 탄성코트는 습기가 통과하기 어려운 소재라서, 이 건조수분이 탄성코트에 갇혀서 빠져 나가지 못하는 결과를 초래합니다.
그로 인한 2차 하자는 탄성코트의 부풀음. 부푼 표면 속에 물이 참, 표면 탈락.. 등의 결과로 나타납니다.
운이 좋지 않으면 겨울에 얼기도 하고요.

그러므로 하시더라도, 3년 정도 후에 콘크리트가 어느 정도 건조가 된 다음에 하시는 것이 지속가능한 방법입니다.

---------------
예전 아파트는 탄성코트가 기본 마감이었습니다.
그러나 공사기간이 점차 단축되면서, 아주 건조조차 되지 않은 콘크리트 상태로 준공이 되는 아파트가 늘어 나게 되었고, 그러다 보니.. 위에 말씀드린 하자가 빈번해 지고, 그로 인해 지금처럼 옵션으로 빠지게 되고.. 하자가 생겨도 대부분 "너의 선택"이라는 말로 넘어가는 쪽으로 발전(?)을 해왔습니다.

항상 "할 때 같이 하면 저렴하다."라는 달콤한 말로 소비자의 주머니를 털고 있는 것이 좀 더 직설적 표현일 것 같습니다.
만약 정말 필요했다면 시방서에 기준 마감재 (그 것이 필름이든, 탄성코트든..)로 포함되었을 것이기에... 눈감고 피하시는 것이 상책입니다.
1 이송 07.16 13:40
답변 감사합니다!
한가지 더 질문드리자면 해당 아파트엔 발코니와 실외기실에도 단열재가 들어갔는데 말씀하시면 건조수분때문에 하자가 발생한다면
단열재와 벽사이의 공간에 곰팡이가 피는 조건이 생기는게 아닌가요???
M 관리자 07.16 13:46
네 맞습니다. 다만 해당 단열재를 일체타설했을 거여요. 시공사가 오랫동안 지긋지긋하게 겪은 하자라서...
그러므로 틈새만 없다면 공기층이 없고, 그렇기게 결로/곰팡이가 그 속에서 생기진 않습니다.
1 이송 07.16 13:49
흠.. 그러면 탄성코트는 곰팡이 피는 환경에 하는데
발코니에 단열재가 들어갔으니 비교적 그 환경에서 멀어진거고
단열재가 들어간 발코니엔 굳이 탄성코트를 더욱 더 할 필요가 없는건가요??
M 관리자 07.16 13:52
후자는 맞는데.. 전자는 아닙니다.
탄성코트는, 곰팡이가 피든 환경이든 그렇지 않든, 딱히 할 필요가 없는 소재입니다.
다만 할 거라면, 충분히 건조된 콘크리트 면에 하는 것이 맞다... 입니다.
1 이송 07.16 14:01
곰팡이가 피는 환경인 발코니에서 탄성코트를 한다면 그래도 곰팡이가 핀다는거가 맞는거죠????
1 이송 07.16 14:02
어렵습니다.. 그러면.. 외기에 접하고 단열재가 들어간 세탁실에 곰팡이가 필 수도 있나요??
M 관리자 07.16 17:15
곰팡이가 피는 환경에서 탄성코트를 해도 곰팡이가 피는 것은 맞습니다. 더 나아가 곰팡이 방지 페인트를 해도 곰팡이는 핍니다.
단열재가 들어가 있는 벽은 괜찮습니다. 다만 난방 구간은 아니고, 세탁에 의한 습기 발생은 있을 수 있기에.. 입주 후 기미가 보이면 제습기를 놓는 것이 좋습니다.
1 느림보2 07.17 23:20
좋은 정보네요^^ 저도 안했습니다만 설명을 들으니 너무 좋네요
Category