비대칭 경사 지붕 하부 다락 유효 높이(1.8m) 산정 기준

설계/시공관련 질문

질문 전에 먼저 검색을 해주세요.

 

비대칭 경사 지붕 하부 다락 유효 높이(1.8m) 산정 기준

G wldjd 1 1,443 07.16 18:55

안녕하세요

현재 검토 중인 건축 도면에서, 

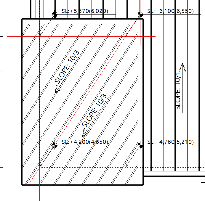
다락 공간의 지붕은 사면이 비대칭이며 각 모서리의 각 레벨이 상이합니다.

다락은 관련 법령에 따라 유효높이 1.8m 이하로 제한되는 것으로 알고 있으나,
이처럼 지붕의 경사 방향이 일정하지 않고, 기준점이 모두 다른 경우에는

1. 비대칭 지붕에서 체적 산정 시, 다락단면 기준을 어떻게 설정하는지

2.지붕 경사가 일정하지 않고 레벨이 다를 경우, 1.8m 높이 기준선을 어떤 기준으로 적용해야 하는지

여쭤봅니다.

Comments

M 관리자 07.16 20:59
안녕하세요.

해당 도형의 체적을 구해서, 바닥 면적으로 나누시면 되세요. 그게 1.8m 이하면 적법합니다.
Category