중부2지역, osb/타이벡/글라스울/쉬트방수지..2X2각재 종류 등 추천 부탁드립니다.

설계/시공관련 질문

질문 전에 먼저 검색을 해주세요.

 

중부2지역, osb/타이벡/글라스울/쉬트방수지..2X2각재 종류 등 추천 부탁드립니다.

1 데이빛 3 2,231 2022.03.16 22:53

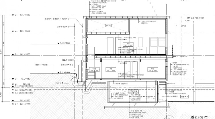
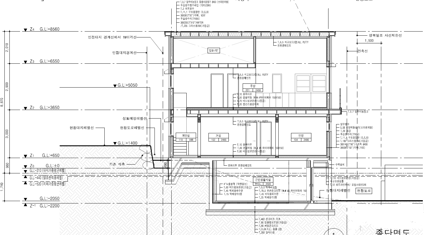
첨부한 파일은 설계중인 주택 종단면도입니다.

중부 2지역인데, 약간 산자락입니다. 

 

일단 단면도에 반영이 안됐지만,

 

*벽체: 

합판+(설비층+가변형투습방습지)+석고보드 2t+2x6(글라스울, 가등급)+OSB+2x2(가로/글라스울,가등급,2인치)+투습방수지/타이벡+레인스크린(세로)+CRC보드+파벽돌

 

*지붕:

석고보드 2t+(설비층+가변형투습방습지)+2x10(글라스울)+투습방수지+2x2벤트+OSB+방수시트+멤브레인+지붕외장(알루미늄징크)

 

 

이렇게 구상 중입니다.  

가변형투습방습지는 아직 확정은 아닙니다..

 

 

제 생각에는

지붕 단열을 더 늘려야 할 것 같은데요..

그러러면 2X10 대신 2X12가 맞지 않나 싶습니다.

 

벽체도 단열이..2X6 글라스울 가등급 약 14센치 24K에 2X2 가등급 4센치 정도로 될까 모르겠습니다.ㅠㅠ


지하층 및 기초의 경우 방수와 단열재 위치 등도 좀 수정이 필요할 것 같고요..

 

더 수정할 부분 있다면 의견 부탁드립니다.

그리고 구체적인 osb/타이벡/글라스울/쉬트방수지..제품명 추천도 부탁드립니다.

예컨대, osb는 유럽산은 투습률이 높고 캐나다산은 투습률이 낮다고 들었습니다. 대체로 캐나다산을 많이 쓰시는 것 같지만..기능적인 차이가 있을 것이기에 어떤 게 더 나을지 모르겠습니다.

 

타이벡도 종류가 많은텐데요..추천 부탁드립니다. 최소한 이 정도 이상은 쓰는 게 좋다라는 식으로 추천해주시면 좋겠습니다. 비용 고려해서..선택을 해야겠지요.

 

글라스울, 쉬트방수지 및 각재도..가압방부 각재를 쓰는 게 좋다거나..그냥 일반 각재도 좋다거나..

 

의견 부탁드립니다.


 

감사합니다.

Comments

4 재섭 2022.03.17 09:41
1. 다른것보다 유일하게 잘못 알고 계신게 글라스울은 48K이상이여야 가등급입니다.
2. 2x12장선이 최대이긴합니다. 그렇게 가도 무방할거 같아요
3. 벽체나 지붕구성은 잘하신거 같네요
1 데이빛 2022.03.17 11:36
감사합니다. 48K이상이 가등급이군요..그럼 가등급이 중부2지역 최소기준인지 모르겠네요 찾아볼게요.

2X12를 하거나 아님 외단열 한 번 더 2x2를 하는게
더 낫지 않나싶습니다..징크는 여름에 엄청 뜨거워지고 겨울엔 엄청 차가워질테니..지붕 단열재에 결로가 안 생기려면 최대한 징크지붕은 특히 더 단열을 강하게 하는게 맞는 것 같아서요. 제 생각이 일리가 있나요?
4 재섭 2022.03.17 14:33
단열재두께가 단독주택기준이라면 벽135mm, 지붕220mm 이라는게 가등급일때 이야기이고 나등급이면 각각 155, 260입니다.

2x10에 글라스울 채우는것만해도(220~235mm) 충분다고 생각합니다. 다만 좀더 두꺼우면 좀더 좋긴하겠지만.... 비용들인 합당한 결과값을 얻는지는 또 다른문제니까요. (이건 좀 개개인의 판단기준이 필요하다고 생각됨) 결로가 격정되시는것이라면 단열두께보다는 설비나 전선등이 지나다니면서 일으키는 문제를 더 고민하시는게 맞을꺼 같습니다.
Category