돌음계단 의견 구합니다.

설계/시공관련 질문

질문 전에 먼저 검색을 해주세요.

 

돌음계단 의견 구합니다.

1 데이빛 7 2,784 2022.03.14 02:56
다른 글의 댓글로 관리자님께 여쭤본 질문인데요..

 

좀 다른 분들 의견도 궁금해서 글 올립니다.

 

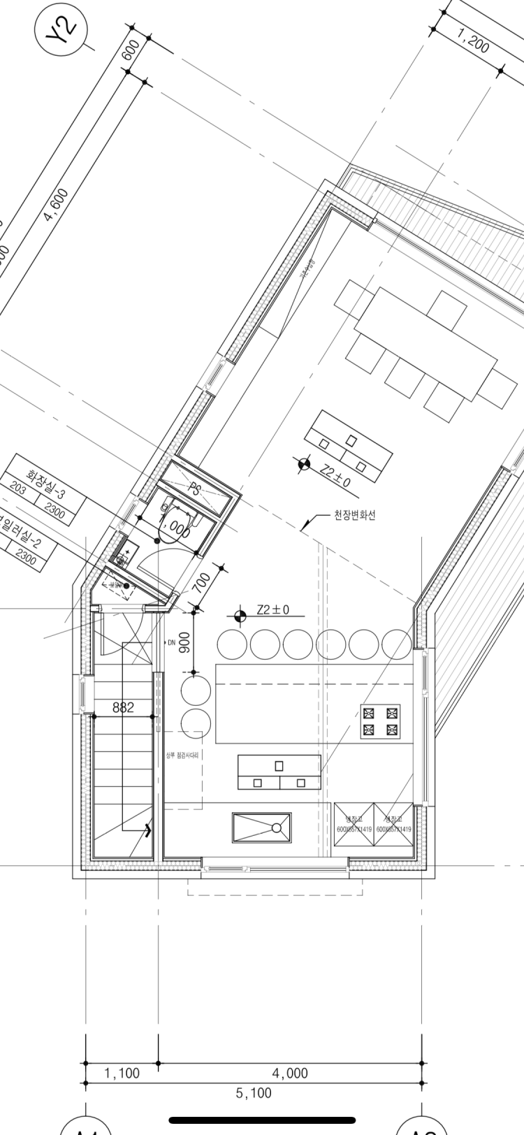
 일자계단 직전과 직후 부분에 돌음계단을 만들게

되는데요. 돌음계단을 세 개로 혹은 다섯개로 할지..(일자계단 직전 계단들), 세개 혹은 네 개로 할지(일자계단 이후 계단들) 문제입니다. 

 

계단 너비는 일단 도면엔 830/800으로 돼있는데요, 짧은

것 같아서 930x900으로 수정했습니다 

 


 

Comments

17 허수할범 2022.03.14 11:12
계단 수는 일반적으로 층고에 영향을 받습니다. 조정이 가능하다면 디딤판이 넓을 수록 사용하기에 편리합니다. 디딤불가부분도 작아지고요.
1 데이빛 2022.03.14 12:01
참고로 Rise는 18.7센치, 디딤폭은 265입니다.
1 데이빛 2022.03.14 12:01
허수할범님 그런 기준으로 고르면 어떤 게 나을까요?
17 허수할범 2022.03.14 14:22
계단이 설치되는 윗층의 개구부를 더 길게 팔 수 있다면 디딤판의 수를 더 증가할 수 있겠지만,
여의치 않다면 한정된 길이에서는 계단 수를 늘리고 싶다면 디딤폭을 조정할 수 밖에 없습니다.
물론 높이를 조정하는 것도 가능하지만 높아지는 만큼 사용함에 불편함도 있으며
법적으로 계단의 높이에 대한 규제가 있는 것으로 알고 있습니다.
평계단은 그렇다치고, 돌음계단에서 이것 저것 따지지 않고 사용하기 편한 것을 3단, 5단 중
선택하라고 한다면 제 경우라면 비교적 좀 더 안정적으로 판단되는 3단으로 시공하고 싶습니다.
좀 더 자세한 것은 설계사에게 문의하시고 의견을 구해보시는 것이 좋을 것 같습니다.
1 데이빛 2022.03.14 16:04
감사합니다. 사실 마지막 안은 돌음을 4단으로 나누긴 했습니다..
3 로유 2022.03.16 18:57
계단은 디딤판과 챌판의 합계가 450이면 제일 좋다고 합니다.
그런데 번외로... 내단열로 계획하셨군요
1 데이빛 2022.03.16 23:18
로유님 목조주택인데 내단열이라고 하는 게 맞을지 모르겠습니다..
Category